ᐅ Grundriss Einfamilienhaus-Ersatzneubau neben Fachwerkhaus im Denkmalschutz
Erstellt am: 31.12.25 18:23
S
skuddel
Hallo liebes Forum,
wir sind eine junge Familie, die das Abenteuer Hausbau wagen will. Im Laufe des Jahres konnten wir ein Grundstück erwerben. Es befindet sich im ländlichen Raum einer ostdeutschen Großstadt und ist knapp 3000qm groß, an einen Wald grenzend. Aktuell mit mehreren Gebäuden bebaut. Bei einem diese Gebäude handelt es sich um ein denkmalgeschütztes Fachwerkhaus aus dem 19. Jahrhundert, welches Giebelständig zur Straße steht. Etwas versetzt steht ein Einfamilienhaus Bj 1966 (Gebäude mit Nr 32 im Flurplan), welches wir demontieren werden und an der gleichen Stelle einen Ersatzneubau in gleicher Ausrichtung erstellen wollen. Unsere Vorstellung ist, dass sich mit dem Neubau das Bild eines Zweiseitenhofes ergibt. Straßenseitig darf der Neubau wie eine ausgebaute Scheue aussehen. In Gesprächen mit der Architektin und aus gemeinsamen Überlegungen haben wir nun folgenden Grundriss erarbeitet:
Bebauungsplan/Einschränkungen
Es gibt keinen Bebauungsplan, es muss sich nach §34BauGB gerichtet werden, Baufenster ist in etwa die Sichtlinie der anderen Nachbarhäuser. Laut Bauamt sind verschiedene Hausformen möglich (Bungalow, 2-Geschosse, etc.), da diese in der Umgebung sind. Aufgrund des denkmalgeschützten Gebäudes hat die Denkmalschutzbehörde besteht jedoch ein Umgebungsschutz, d. h. der Neubau soll sich entsprechend in das Ortsbild einfügen. Ein modernes Cubus-Haus würde entsprechend rausfallen. Die ist auch der Grund weshalb wir Richtung Zweiseitenhof planen. Die Firsthöhe ist für unsere Sachbearbeiterin entscheidend. Der Neubau darf nicht sehr viel höher als das Bauernhaus sein (das Bauernhaus hat eine Firsthöhe von 7,9m)
Größe des Grundstücks: 3000qm
Hang: leichtes Gefälle von der Straße zum Haus
Grundflächenzahl
Geschossflächenzahl
Baufenster, Baulinie und -grenze
Randbebauung
Anzahl Stellplatz:
Geschossigkeit:
Dachform:
Stilrichtung:
Ausrichtung:
Maximale Höhen/Begrenzungen:
Anforderungen der Bauherren
Stilrichtung, Dachform, Gebäudetyp: 1,5 Geschoss, Satteldach 40-45° Neigung, kein Keller;
Anzahl der Personen, Alter: aktuell 4 Personen (34+34+7+3, evtl. noch 1 Kind)
Raumbedarf: EG mit Küche, WZ, EZ, Bad mit Dusche, Hauswirtschaftsraum (Wäsche/Stauraum); OG mit 2 KiZ, 1 Schlafzimmer, 1 Ankleide (als 3. KiZ bei Bedarf angedacht); Bad mit Wanne
Büro/Gästezimmer: kein Homeoffich, Schlafgäste pro Jahr: ca 1 x aller 2 Monat 2 Personen für mehrere Tage -> ausgelagert in Bauernhaus
offene oder geschlossene Architektur: geschlossen
konservative, eher geschlossene Bauweise
Anzahl Essplätze: fest 5 Personen, erweiterbar auf 8-10
Kamin: Kachelofen
Musik/Stereowand: nein
Balkon, Dachterrasse: nein
Garage, Carport: Carport als Grenzbebauung zum N/W-Nachbarn
Nutzgarten, Treibhaus: ja, aktuell noch zwei Gewächshäuser bestehend, geplant Schafe + Hühner
weitere Wünsche/Besonderheiten/Tagesablauf:
Fensterläden, Fensterformate möglichst gleich groß. (Differenzen zwischen OG und EG sind ok, aber Form muss ähnlich bleiben)
Zugang zur Terrasse über Küche und Esszimmer; Zufahrt aktuell über S-O Seite, angrenzend an Bauernhaus, zur Schonung des denkmalgeschützten Hauses, wegen Platzmangels für zwei PKW und da eine zweite Bordsteinabsenkung besteht, werden wir die Einfahrt auf die N/W-Seite verlegen und dort an die Straßenseite auch ein Carport setzen. Hierdurch ergibt sich dann ein kürzerer Weg zur Küche um Einkäufe etc ausladen zu können. Haupteingang dennoch auf S-O-Seite, da kürzerer Weg zum Nebengelass/Bauernhaus/Heizraum/Fahrradschuppen etc.
In Rücksprache mit Bauunternehmer und Heizung/Sanitär planen wir den Heizraum in ein bestehendes Nebengelass zu integrieren, sodass der Hauswirtschaftsraum im Haus wirklich nur für Wäsche/Lager/Stauraum genutzt werden kann
Fassade Straßenseite Terrassentür/Bodentiefes Fenster evtl. mit verschiebbarem Holztor -> Scheunenoptik
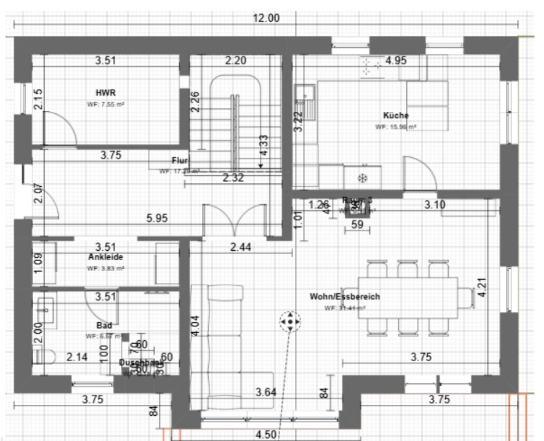
Initial war im Obergeschoss das Giebel-Zimmer als Ankleide angedacht, da dies jedoch den schönsten Ausblick in den Garten hat, haben wir es mit dem im Plan als Ankleide bezeichnetem Zimmer getauscht, dieses könnte bei Bedarf als 3. Kinderzimmer genutzt werden. Eigentlich ist uns der Luxus wichtig im Schlafzimmer nur ein Bett zu stehen zu haben und keine Schränke. Bei einem 3. Kind könnte jedoch auch noch ein Schrank in das Giebelzimmer gestellt werden.
Wir wollen gerne eine Plateau-Treppe realisieren, auch im Hinblick auf das Alter. Haben hier auch auf halber Treppe an eine Klappe für die Wäsche gedacht, damit diese nicht einmal quer durch das Haus getragen werden muss.
Licht von zwei Seiten im Obergeschoss war uns wichtig, weshalb es je Zimmer noch ein Dachfenster gibt. Die „fixen“ Kinderzimmer sind Straßenseitig mit Fenstern im Westen, sowie je 1 x Norden und 1 x Süden.
Uns war für die Hauptaufenthaltsräume Küche und Esszimmer der Blick und Zugang in den Garten wichtig. Wohnzimmer ist in den Norden/Nordwesten gewandert, weil dieses für uns nicht die größte Priorität hat und wir uns viel draußen aufhalten werden. Mit dem Bodentiefen Fenster/Terrassentür im Wohnzimmer wollten wir versuchen auch im Herbst/Winter noch Licht einzufangen.
Hausentwurf
Von wem stammt die Planung:
- DIY und Architektin
Was gefällt besonders? Warum? Ansicht, im EG Trennung „Schmutzbereich“ von
Was gefällt nicht? Warum?
Preisschätzung laut Architekt/Planer:
Persönliches Preislimit fürs Haus, inkl. Ausstattung:
favorisierte Heiztechnik: Kombi aus Wärmepumpe und Gasheizung (für Bauernhaus)
Wenn Ihr verzichten müsst, auf welche Details/Ausbauten
-könnt Ihr verzichten: wir würden gerne auf einige Quadratmeter, v. a. im Obergeschoss, verzichten wüssten aber nicht wie und wo? Wir sind für Ideen offen, um den Grundriss noch etwas schlanker zu gestalten, gerade auch im Hinblick auf den Auszug der Kinder in einigen fernen Jahren.
-könnt Ihr nicht verzichten:
Warum ist der Entwurf so geworden, wie er jetzt ist? ZB
Uns gefällt die Architektur der Siedlungshäuser oder der Landhäuser in Brandenburg. Zudem haben wir versucht auf Sichtachsen im Haus zu achten. Wir mögen es unaufgeregt und wünschen uns etwas, was auch in Hinblick auf das denkmalgeschützte Bauernhaus, eher traditionell ist.
Wir sind uns unsicher, ob die Küche so funktioniert. Diese ist noch nicht komplett möbliert. Wir finden es aber gut auf einer Halbinsel mit Blick in den Garten zu werkeln. Angedacht ist auch eine Bank an der Halbinsel (Fenster/Tür im Rücken), damit man sich unterhalten kann oder die Kinder mal fix etwas essen könnten.
Leider konnte ich gerade in die Grundrisse keinen Kompass einfügen. Der Erker zeigt in den Garten, d. h. Richtung Osten.
Falls ich etwas vergessen habe, bitte gerne nachfragen und ich versuche dies zu beantworten.
Insgesamt freuen wir uns über Eure Anmerkungen. Bis dahin wünschen wir Euch einen schönen letzten Tag des Jahres 2025.



wir sind eine junge Familie, die das Abenteuer Hausbau wagen will. Im Laufe des Jahres konnten wir ein Grundstück erwerben. Es befindet sich im ländlichen Raum einer ostdeutschen Großstadt und ist knapp 3000qm groß, an einen Wald grenzend. Aktuell mit mehreren Gebäuden bebaut. Bei einem diese Gebäude handelt es sich um ein denkmalgeschütztes Fachwerkhaus aus dem 19. Jahrhundert, welches Giebelständig zur Straße steht. Etwas versetzt steht ein Einfamilienhaus Bj 1966 (Gebäude mit Nr 32 im Flurplan), welches wir demontieren werden und an der gleichen Stelle einen Ersatzneubau in gleicher Ausrichtung erstellen wollen. Unsere Vorstellung ist, dass sich mit dem Neubau das Bild eines Zweiseitenhofes ergibt. Straßenseitig darf der Neubau wie eine ausgebaute Scheue aussehen. In Gesprächen mit der Architektin und aus gemeinsamen Überlegungen haben wir nun folgenden Grundriss erarbeitet:
Bebauungsplan/Einschränkungen
Es gibt keinen Bebauungsplan, es muss sich nach §34BauGB gerichtet werden, Baufenster ist in etwa die Sichtlinie der anderen Nachbarhäuser. Laut Bauamt sind verschiedene Hausformen möglich (Bungalow, 2-Geschosse, etc.), da diese in der Umgebung sind. Aufgrund des denkmalgeschützten Gebäudes hat die Denkmalschutzbehörde besteht jedoch ein Umgebungsschutz, d. h. der Neubau soll sich entsprechend in das Ortsbild einfügen. Ein modernes Cubus-Haus würde entsprechend rausfallen. Die ist auch der Grund weshalb wir Richtung Zweiseitenhof planen. Die Firsthöhe ist für unsere Sachbearbeiterin entscheidend. Der Neubau darf nicht sehr viel höher als das Bauernhaus sein (das Bauernhaus hat eine Firsthöhe von 7,9m)
Größe des Grundstücks: 3000qm
Hang: leichtes Gefälle von der Straße zum Haus
Grundflächenzahl
Geschossflächenzahl
Baufenster, Baulinie und -grenze
Randbebauung
Anzahl Stellplatz:
Geschossigkeit:
Dachform:
Stilrichtung:
Ausrichtung:
Maximale Höhen/Begrenzungen:
Anforderungen der Bauherren
Stilrichtung, Dachform, Gebäudetyp: 1,5 Geschoss, Satteldach 40-45° Neigung, kein Keller;
Anzahl der Personen, Alter: aktuell 4 Personen (34+34+7+3, evtl. noch 1 Kind)
Raumbedarf: EG mit Küche, WZ, EZ, Bad mit Dusche, Hauswirtschaftsraum (Wäsche/Stauraum); OG mit 2 KiZ, 1 Schlafzimmer, 1 Ankleide (als 3. KiZ bei Bedarf angedacht); Bad mit Wanne
Büro/Gästezimmer: kein Homeoffich, Schlafgäste pro Jahr: ca 1 x aller 2 Monat 2 Personen für mehrere Tage -> ausgelagert in Bauernhaus
offene oder geschlossene Architektur: geschlossen
konservative, eher geschlossene Bauweise
Anzahl Essplätze: fest 5 Personen, erweiterbar auf 8-10
Kamin: Kachelofen
Musik/Stereowand: nein
Balkon, Dachterrasse: nein
Garage, Carport: Carport als Grenzbebauung zum N/W-Nachbarn
Nutzgarten, Treibhaus: ja, aktuell noch zwei Gewächshäuser bestehend, geplant Schafe + Hühner
weitere Wünsche/Besonderheiten/Tagesablauf:
Fensterläden, Fensterformate möglichst gleich groß. (Differenzen zwischen OG und EG sind ok, aber Form muss ähnlich bleiben)
Zugang zur Terrasse über Küche und Esszimmer; Zufahrt aktuell über S-O Seite, angrenzend an Bauernhaus, zur Schonung des denkmalgeschützten Hauses, wegen Platzmangels für zwei PKW und da eine zweite Bordsteinabsenkung besteht, werden wir die Einfahrt auf die N/W-Seite verlegen und dort an die Straßenseite auch ein Carport setzen. Hierdurch ergibt sich dann ein kürzerer Weg zur Küche um Einkäufe etc ausladen zu können. Haupteingang dennoch auf S-O-Seite, da kürzerer Weg zum Nebengelass/Bauernhaus/Heizraum/Fahrradschuppen etc.
In Rücksprache mit Bauunternehmer und Heizung/Sanitär planen wir den Heizraum in ein bestehendes Nebengelass zu integrieren, sodass der Hauswirtschaftsraum im Haus wirklich nur für Wäsche/Lager/Stauraum genutzt werden kann
Fassade Straßenseite Terrassentür/Bodentiefes Fenster evtl. mit verschiebbarem Holztor -> Scheunenoptik
Initial war im Obergeschoss das Giebel-Zimmer als Ankleide angedacht, da dies jedoch den schönsten Ausblick in den Garten hat, haben wir es mit dem im Plan als Ankleide bezeichnetem Zimmer getauscht, dieses könnte bei Bedarf als 3. Kinderzimmer genutzt werden. Eigentlich ist uns der Luxus wichtig im Schlafzimmer nur ein Bett zu stehen zu haben und keine Schränke. Bei einem 3. Kind könnte jedoch auch noch ein Schrank in das Giebelzimmer gestellt werden.
Wir wollen gerne eine Plateau-Treppe realisieren, auch im Hinblick auf das Alter. Haben hier auch auf halber Treppe an eine Klappe für die Wäsche gedacht, damit diese nicht einmal quer durch das Haus getragen werden muss.
Licht von zwei Seiten im Obergeschoss war uns wichtig, weshalb es je Zimmer noch ein Dachfenster gibt. Die „fixen“ Kinderzimmer sind Straßenseitig mit Fenstern im Westen, sowie je 1 x Norden und 1 x Süden.
Uns war für die Hauptaufenthaltsräume Küche und Esszimmer der Blick und Zugang in den Garten wichtig. Wohnzimmer ist in den Norden/Nordwesten gewandert, weil dieses für uns nicht die größte Priorität hat und wir uns viel draußen aufhalten werden. Mit dem Bodentiefen Fenster/Terrassentür im Wohnzimmer wollten wir versuchen auch im Herbst/Winter noch Licht einzufangen.
Hausentwurf
Von wem stammt die Planung:
- DIY und Architektin
Was gefällt besonders? Warum? Ansicht, im EG Trennung „Schmutzbereich“ von
Was gefällt nicht? Warum?
Preisschätzung laut Architekt/Planer:
Persönliches Preislimit fürs Haus, inkl. Ausstattung:
favorisierte Heiztechnik: Kombi aus Wärmepumpe und Gasheizung (für Bauernhaus)
Wenn Ihr verzichten müsst, auf welche Details/Ausbauten
-könnt Ihr verzichten: wir würden gerne auf einige Quadratmeter, v. a. im Obergeschoss, verzichten wüssten aber nicht wie und wo? Wir sind für Ideen offen, um den Grundriss noch etwas schlanker zu gestalten, gerade auch im Hinblick auf den Auszug der Kinder in einigen fernen Jahren.
-könnt Ihr nicht verzichten:
Warum ist der Entwurf so geworden, wie er jetzt ist? ZB
Uns gefällt die Architektur der Siedlungshäuser oder der Landhäuser in Brandenburg. Zudem haben wir versucht auf Sichtachsen im Haus zu achten. Wir mögen es unaufgeregt und wünschen uns etwas, was auch in Hinblick auf das denkmalgeschützte Bauernhaus, eher traditionell ist.
Wir sind uns unsicher, ob die Küche so funktioniert. Diese ist noch nicht komplett möbliert. Wir finden es aber gut auf einer Halbinsel mit Blick in den Garten zu werkeln. Angedacht ist auch eine Bank an der Halbinsel (Fenster/Tür im Rücken), damit man sich unterhalten kann oder die Kinder mal fix etwas essen könnten.
Leider konnte ich gerade in die Grundrisse keinen Kompass einfügen. Der Erker zeigt in den Garten, d. h. Richtung Osten.
Falls ich etwas vergessen habe, bitte gerne nachfragen und ich versuche dies zu beantworten.
Insgesamt freuen wir uns über Eure Anmerkungen. Bis dahin wünschen wir Euch einen schönen letzten Tag des Jahres 2025.
@ypg ... die Platzierung Haus gefällt mir besser. Ist halt die Frage, ob das zum "Einpassen in die Umgebung" passt.
@skuddel .. gibt es den Grundstückslageplan auch mit ein paar Maßen?
@skuddel .. gibt es den Grundstückslageplan auch mit ein paar Maßen?
skuddel schrieb:Das passt nicht und dann eigentlich einer der größten Punkte
Etwas versetzt steht ein Einfamilienhaus Bj 1966 (Gebäude mit Nr 32 im Flurplan), welches wir demontieren werden und an der gleichen Stelle einen Ersatzneubau in gleicher Ausrichtung erstellen wollen.
skuddel schrieb:Ich halte das ja generell schon für schwierig, den Technikraum so auszulagern.
In Rücksprache mit Bauunternehmer und Heizung/Sanitär planen wir den Heizraum in ein bestehendes Nebengelass zu integrieren,
Guten Abend in die Runde,
herzlichen Dank für die Antworten.
Ich dachte, dass meine Beschreibung recht zutreffend war, aber scheinbar fehlten noch einige Informationen, damit es schlüssig wird.
Wir haben uns tatsächlich sehr viel mit Licht/Sonnenstand, Raumanordnung & -bedarf beschäftigt und uns zudem gefragt, inwiefern Ästhetik für uns eine Rolle spielt.
Anbei zunächst einmal der Flurstückauszug mit Baufenster und geplantem Neubau, damit die Ausrichtung klarer wird. Den Rest des Grundstücks habe ich abgeschnitten, da dieser für die Fragestellung nicht maßgeblich ist. Die Maße sind ca. 28 m x 96 m, wobei sich das Grundstück nach hinten auffächert und es hier dann 45 m Breite sind.
Die Ausrichtung des Hauses ist theoretisch gesehen offen. Dank eurer kritischen Nachfragen, konnten wir eine Giebelständige Ausrichtung intensiv durchspielen und können uns dies tatsächlich mäßig vorstellen. Zu Bedenken ist auch, dass bei Giebelständiger Bauweise möglicherweise zwei Fassaden des Hauses denkmalrelevant sind. Für eine traufseitige Ausrichtung spricht die Abschirmung des Gartens: Durch die traufseitige Bebauung entsteht ein deutlich geschützter rückwärtiger Bereich, der von der Straße aus kaum einsehbar ist. Das ist uns als Aufenthalts- und Lebensbereich wichtig. Zudem möchten wir den Bereich vor dem Haus nicht vollständig versiegeln. Die bestehende Situation mit einem großzügigen Vorgarten empfinden wir als sehr angenehm und möchten diese Qualität erhalten. Geplant ist hier u. a. ein Hausbaum.
Auch wenn es aus heutiger Sicht naheliegend erscheint, den Hauseingang unmittelbar an die Zufahrt bzw. die Stellplätze zu legen, sehen wir das für uns nicht als zwingend notwendig. Der Eingang auf der Süd-/Ostseite ergibt sich für uns aus den internen Wegebeziehungen zum Nebengelass und zu den weiteren Nutzungen auf dem Grundstück und fühlt sich im Alltag für uns stimmiger an.
Der skizzierte Vorschlag mit den Aufenthaltsräumen in südlicher Richtung zum Nebengelass ist für uns ebenfalls nur eingeschränkt umsetzbar. Das betreffende Nebengebäude ist zweigeschossig, steht aktuell nur ca. 2,5 m vom aktuellen Haus entfernt und stellt in seinem jetzigen Zustand keinen besonders attraktiven Ausblick (aka "schäbiger Schuppen der Schande") dar. Sicherlich könnte man diesen Begrünen oder Verkleiden, jedoch ist dies, wenn wir es uns aussuchen können, nicht der Hauptanblick, den wir wählen würden. Den Neubau könnte man vermutlich noch etwas zum nördlichen Nachbarn versetzen, sodass der Abstand größer wird.
Im Erdgeschoss würde sich zudem erneut ergeben, dass das Wohnzimmer in Richtung des schäbigen Schuppens der Schande orientiert wäre.
Hinsichtlich des Lichtes haben wir uns wirklich viele Gedanken gemacht und waren uns auch unsicher, ob denn die Belichtungssituation mit Nordost-Ausrichtung für das WZ/EZ ausreichend ist. Zu denken gegeben hat uns die Wohnsituation in unmittelbarer Nachbarschaft: Mit einer Terrasse in Südausrichtung wird diese den Großteil des Sommers kaum genutzt und die Fenster werden fast den ganzen Tag beschattet. Wir fänden es ungünstig, im hoffentlich kühlen Haus im Sommer im Dunkeln zu sitzen. Dann doch lieber natürliches Licht und im Winter evtl. nicht so hell. Es ist auch fraglich inwiefern die durch den zweigeschossigen Schuppen das Haus nicht deutlich beschattet.
Mir fällt noch ein bzgl. der Straßenansicht: diese ist denkmal-relevant. Hier wurde uns, zumindest mündlich, die Vorgabe gemacht, dass sich die Fensterformate am Bauernhaus orientieren müssen, d.h. eher kleinformtige Sprossenfenster. Dies war auch ein Grund, weshalb wir die Fenster auf der Straßenseite initial reduzieren wollten und die Ansicht im Ansinnen einer Scheune mit Scheunentor geplant haben. Mit der Küche im Westen und den kleinformatigeren Küchenfenster könnte dies jedoch ebenfalls gut umgesetzt werden. Die Straßenseite war für uns jedoch nicht vordergründig von der Ästhetik. Die schönste Ansicht wollen wir vom Garten aus haben, da das der Ort ist, von dem wir das Haus am intensivsten sehen werden.
Danke für die Info mit dem Handtuchhalter!
Ihr seht also, dass es mit den Gegebenheiten – u. a. dem schäbigen Schuppen der Schande und unserem klaren Wunsch nach Blick aus dem Haus in den Garten sowie vom Garten auf das Haus – nicht ganz einfach ist, die vorgeschlagenen Ideen eins zu eins umzusetzen. Dennoch würden wir uns freuen, wenn ihr uns Anregungen zu folgenden Punkten geben könntet:
Herzlichen Dank und bis dahin.
P.S. Anbei nochmal die Grundrisse mit hfftl. besseren Maßen.


herzlichen Dank für die Antworten.
Ich dachte, dass meine Beschreibung recht zutreffend war, aber scheinbar fehlten noch einige Informationen, damit es schlüssig wird.
Wir haben uns tatsächlich sehr viel mit Licht/Sonnenstand, Raumanordnung & -bedarf beschäftigt und uns zudem gefragt, inwiefern Ästhetik für uns eine Rolle spielt.
Anbei zunächst einmal der Flurstückauszug mit Baufenster und geplantem Neubau, damit die Ausrichtung klarer wird. Den Rest des Grundstücks habe ich abgeschnitten, da dieser für die Fragestellung nicht maßgeblich ist. Die Maße sind ca. 28 m x 96 m, wobei sich das Grundstück nach hinten auffächert und es hier dann 45 m Breite sind.
ypg schrieb:
Sehe ich ebenso.
Ohne den Grundriss zu betrachten, sondern nur das Haus, (welches wohl so gewählt wurde, weil es gefällt), so würde ich den Eingang in den Norden Richtung der geplanten Stellplätze wählen. Dann würde ich die Aufenthaltsräume so anordnen, dass man einmal Richtung Wald und einmal Richtung Hof eine Terrasse generiert: hinten raus für die Ruhe und Entspannung im Garten mit Blick in den Wald, nach vorn die Aktivitätenterrasse mit Essplatz, nett rustikal angelegt.
Dann kann man das lesen:
und anscheinend ist nicht festgelegt, in welche Richtung der Giebel liegt. Vom denkmalsgeschützen Haus liegt der Giebel nach vorn.
Die Ausrichtung des Hauses ist theoretisch gesehen offen. Dank eurer kritischen Nachfragen, konnten wir eine Giebelständige Ausrichtung intensiv durchspielen und können uns dies tatsächlich mäßig vorstellen. Zu Bedenken ist auch, dass bei Giebelständiger Bauweise möglicherweise zwei Fassaden des Hauses denkmalrelevant sind. Für eine traufseitige Ausrichtung spricht die Abschirmung des Gartens: Durch die traufseitige Bebauung entsteht ein deutlich geschützter rückwärtiger Bereich, der von der Straße aus kaum einsehbar ist. Das ist uns als Aufenthalts- und Lebensbereich wichtig. Zudem möchten wir den Bereich vor dem Haus nicht vollständig versiegeln. Die bestehende Situation mit einem großzügigen Vorgarten empfinden wir als sehr angenehm und möchten diese Qualität erhalten. Geplant ist hier u. a. ein Hausbaum.
Auch wenn es aus heutiger Sicht naheliegend erscheint, den Hauseingang unmittelbar an die Zufahrt bzw. die Stellplätze zu legen, sehen wir das für uns nicht als zwingend notwendig. Der Eingang auf der Süd-/Ostseite ergibt sich für uns aus den internen Wegebeziehungen zum Nebengelass und zu den weiteren Nutzungen auf dem Grundstück und fühlt sich im Alltag für uns stimmiger an.
Der skizzierte Vorschlag mit den Aufenthaltsräumen in südlicher Richtung zum Nebengelass ist für uns ebenfalls nur eingeschränkt umsetzbar. Das betreffende Nebengebäude ist zweigeschossig, steht aktuell nur ca. 2,5 m vom aktuellen Haus entfernt und stellt in seinem jetzigen Zustand keinen besonders attraktiven Ausblick (aka "schäbiger Schuppen der Schande") dar. Sicherlich könnte man diesen Begrünen oder Verkleiden, jedoch ist dies, wenn wir es uns aussuchen können, nicht der Hauptanblick, den wir wählen würden. Den Neubau könnte man vermutlich noch etwas zum nördlichen Nachbarn versetzen, sodass der Abstand größer wird.
ypg schrieb:Den vorgeschlagenen Thread haben wir ebenfalls durchgesehen und finden Ansatz nachvollziehbar und hilfreich, sind jedoch bei der Übertragung auf unsere konkrete Situation an einige Grenzen gestoßen: Zum einen müsste das Bad im Obergeschoss in den Nordosten rücken und das Gästebad EG entsprechend darunter organisiert werden, hiermit würde das WZ/EZ zum Schuppen der Schande rücken. Zum anderen läge dann eines der Kinderzimmer nicht mehr im Westen.
So würde ich ein Pendant zum dkmgesch. Haus erstellen, etwas weiter nach hinten versetzt, dass sich ein Hof ergibt. Das/die Nebengebäude ggf etwas schick machen und zwischen den Gebäuden dann eine geschütze Terrasse.
Mal hier skizziert, natürlich sind keine Maße vorhanden, weil keine vom Grundstück bekannt sind.
Im Erdgeschoss würde sich zudem erneut ergeben, dass das Wohnzimmer in Richtung des schäbigen Schuppens der Schande orientiert wäre.
Papierturm schrieb:Die Zweiteilung in einen "Schmutz"- und Wohnbereich im Erdgeschoss, sowie das eine südseitige Fenster im EG (Hauswirtschaftsraum) waren beabsichtigt. Die Südseite kann man von weiter weg nicht betrachten, da der schäbige Schuppen gleich neben an ist und die Durchgangsbreite ca 2,5 m beträgt.
Auch wirkt das Haus sehr zweigeteilt. Beispielsweise im Westen im EG nur ein Fenster. Im Süden auch nur im EG ein Fenster.
Die Aufenthaltsräume nach N/O ausrichten kann man machen, es macht jedoch viel mit dem Licht. Und es kann gute Gründe geben, dies zu trotzdem tun. Hier kenne ich das Grundstück nicht, und weiß nicht ob das wirklich eine so gute Idee ist. In der zweiten Planung werden im EG die Aufenthaltsräume am Nachmittag recht dunkel sein und permanent im Schatten liegen - direkte Sonne gibt es da nur morgens früh.
Hinsichtlich des Lichtes haben wir uns wirklich viele Gedanken gemacht und waren uns auch unsicher, ob denn die Belichtungssituation mit Nordost-Ausrichtung für das WZ/EZ ausreichend ist. Zu denken gegeben hat uns die Wohnsituation in unmittelbarer Nachbarschaft: Mit einer Terrasse in Südausrichtung wird diese den Großteil des Sommers kaum genutzt und die Fenster werden fast den ganzen Tag beschattet. Wir fänden es ungünstig, im hoffentlich kühlen Haus im Sommer im Dunkeln zu sitzen. Dann doch lieber natürliches Licht und im Winter evtl. nicht so hell. Es ist auch fraglich inwiefern die durch den zweigeschossigen Schuppen das Haus nicht deutlich beschattet.
Mir fällt noch ein bzgl. der Straßenansicht: diese ist denkmal-relevant. Hier wurde uns, zumindest mündlich, die Vorgabe gemacht, dass sich die Fensterformate am Bauernhaus orientieren müssen, d.h. eher kleinformtige Sprossenfenster. Dies war auch ein Grund, weshalb wir die Fenster auf der Straßenseite initial reduzieren wollten und die Ansicht im Ansinnen einer Scheune mit Scheunentor geplant haben. Mit der Küche im Westen und den kleinformatigeren Küchenfenster könnte dies jedoch ebenfalls gut umgesetzt werden. Die Straßenseite war für uns jedoch nicht vordergründig von der Ästhetik. Die schönste Ansicht wollen wir vom Garten aus haben, da das der Ort ist, von dem wir das Haus am intensivsten sehen werden.
Papierturm schrieb:Zum angesprochenen Thema Badezimmer OG und der „Wand, gegen die man läuft“: Der Ansatz war hier, den Duschbereich optisch etwas abzutrennen, sodass man beim Betreten des Raumes nicht direkt in die Dusche schaut.
- Badezimmer OG: Man läuft erstmal gegen eine Wand.
- beide Badezimmern: Es fehlen Maße, ich gehe jedoch davon aus, dass die Handtuchheizer im Bereich liegen, wo zwar selten, aber durchaus noch manchmal Wasser hin spritzen könnte. Wenn die elektrisch betrieben sind daher schon ein Thema, das man auf dem Schirm haben sollte
Danke für die Info mit dem Handtuchhalter!
ypg schrieb:Das hatte kbt ja ebenfalls bereits angemerkt, aber ich frage mich, was macht mensch bei einer U-/L-Küche in einem 14qm Raum mit der vielen freien Fläche im Raum?
Diese Insellösung im geschlossenen Raum halte ich auch nicht für rund. Die frisst nur Fläche. Genauso gut kann man in den Garten schauen, wenn man die Arbeitsplatte vor einem Fenster hat. Den Zwergen ist das eh egal, wo sie essen, hauptsache es schmeckt, und sie haben Gesellschaft.
Ihr seht also, dass es mit den Gegebenheiten – u. a. dem schäbigen Schuppen der Schande und unserem klaren Wunsch nach Blick aus dem Haus in den Garten sowie vom Garten auf das Haus – nicht ganz einfach ist, die vorgeschlagenen Ideen eins zu eins umzusetzen. Dennoch würden wir uns freuen, wenn ihr uns Anregungen zu folgenden Punkten geben könntet:
- Ideen, wie man den Durchgangscharakter des Wohnzimmers reduzieren könnte, ohne das Haus deutlich zu vergrößern.
- Hinweise zur besseren Küchenplanung.
- Vorschläge für einfache Grundrissanpassungen, die den Alltag erleichtern könnten, die wir bisher vielleicht übersehen haben.
Herzlichen Dank und bis dahin.
P.S. Anbei nochmal die Grundrisse mit hfftl. besseren Maßen.
Weshalb hat die Grenzlinie zwischen Wohnbau- (rosafarbenem) und Hinterland- oder gar Außen?bereich (auch beim Nachbarn) diesen Knick ?
Die rotbraunen Strichellinien im OG-Grundriss stellen offenbar die Fensterlagen des EG dar. Die ich sachsma nett "Inkongruenzen" müssen da doch auffallen, wenn man die schon einzeichnet. Auch die Wände sind teilweise stärker als die darunterliegenden. Die orangefarbenen Linien kann ich nicht assoziieren.
https://www.instagram.com/11antgmxde/
https://www.linkedin.com/company/bauen-jetzt/
Die rotbraunen Strichellinien im OG-Grundriss stellen offenbar die Fensterlagen des EG dar. Die ich sachsma nett "Inkongruenzen" müssen da doch auffallen, wenn man die schon einzeichnet. Auch die Wände sind teilweise stärker als die darunterliegenden. Die orangefarbenen Linien kann ich nicht assoziieren.
https://www.instagram.com/11antgmxde/
https://www.linkedin.com/company/bauen-jetzt/
skuddel schrieb:
Vorschläge für einfache Grundrissanpassungen, die den Alltag erleichtern könnten, die wir bisher vielleicht übersehen haben.Kann ich in diesem Fall nicht. Ich kann, auch wenn Du Begründungen zu Euren/Deinen Entscheidungen hast, diese Begründungen nicht nachvollziehen.Einfach gesagt:
- habe ich einen hässlichen Schuppen in greifbarer Nähe zum Neubau, dann reiss ich ihn entweder ab oder integriere ihn mit dem Neubau, sprich ich mache ihn hübsch.
- habe ich ein zweites Gebäude im Vordergrund, dann pass ich auch hier zB Dachneigung, Stil oder Ansicht an.
- den Vorzug von Dunkelheit im Winter vor grundsätzlich hellen Räumen kann ich auch nicht nachvollziehen. Da haben mir die Sätze auch zu viel Stammtischcharakter.
- Genauso wie einen Hauseingang entgegengesetzt zu geplanten Stellflächen.
Zu Deinen weiteren Fragen:
skuddel schrieb:
was macht mensch bei einer U-/L-Küche in einem 14qm Raum mit der vielen freien Fläche im Raum?skuddel schrieb:
Ideen, wie man den Durchgangscharakter des Wohnzimmers reduzieren könnte, ohne das Haus deutlich zu vergrößern.skuddel schrieb:
Hinweise zur besseren Küchenplanung.Unabhängig meiner Meinung oben: eine gute Raumplanung entsteht nicht, indem man statisch ein paar Wände auf dem Papier zieht und dabei bleibt. Gerade an Deinen Fragen oder Nachfragen erkennt man, dass bei Dir kein Prozess an Raumplanung stattfindet.Dabei ist es genau das, was Du bzw ein Haus braucht: eine Entwicklung.
Ich würde spätestens nach diesem Forum einen Architekten aufsuchen und ihm mit nur einem aufgeschriebenen Raumprogramm freie Hand geben.
Ähnliche Themen