Hausbau - Ratgeber
Bauherrenhilfe
- Bauherrenhilfe vor Vertragsabschluss
-- Warum einen unabhängigen Baubetreuer?
-- Vertragsgrundlagen
-- Bausumme
-- Zahlungsplan zur Kostenkontrolle
-- Pflichten des Bauherren vor Vertragsabschluss
-- Unterlagen beim Hausbau vor Vertragsabschluss
- Bauherrenhilfe nach Vertragsabschluss
-- Bauantrag bei Behörden
-- Bau-Genehmigungsverfahren bei Baubehörden
-- Bauspezifische Versicherungen
-- Bauzeitenplan
-- Baubeginn - die Letzten Pflichten der Bauherrschaft
- Bauherrenhilfe während der Bauzeit
- Gewährleistungsansprüche
- Bauabnahme
Baufinanzierung
- Baufinanzierung - Allgemeine Fragen
- Kreditarten
- Kredit-Konditionen
- Bausparen
- Staatliche Förderungen
- Verkehrswert
- Haushaltsrechnung und Bonität
Hausbau Planung
- Haustypen
- Hausbau Vorbereitungsarbeiten
- Das Baugrundstück
- Baugrund beim Hausbau
- Baurecht
- Gebäudeschutz
- Erdarbeiten und Wasserhaltung
- Stützmauern
- Einfriedung
- Untergeschoss
- Kanalisation
- Tragende Elemente
- Nichttragende Innenwände
- Fundation / Fundament
- Deckenkonstruktionen
- Dächer
- Kaminanlagen
- Treppen Rampen Leitern
- Dachbeläge und Spengler
- Fenster
- Sonnen und Wetterschutz
- Aussenputze
- Einbauten, Küchen, Türen
- Bodenbeläge und Unterlagsböden
- Parkett
- Gips, Wand, Decke
Haustechnik und Energie
- Heiztechnik
- Lüftung und Klimatechnik
- Sanitärtechnik
- Elektrotechnik
- Erneuerbare Energie
Whirlpools / Jacuzzi
Hausbau Magazin
- Baufinanzierung trotz Krise?
- Das Blockhaus
- Moderne Dämmstoffe im Vergleich
- Erker Vor- und Nachteile
- Glasflächen beim Hausbau
- Günstig ein Haus Bauen
- Mediterraner Hausbaustil
- Mehrgenerationenhaus
- Moderne Architektur
- Gartengestaltung leicht gemacht
- Traditioneller Ziegelbau
- Villa als höchster Traum
- Im Eigenheim Ruhestand geniessen
- Altbau sanieren
- Kauf einer Holzgarage
- Immobilienmakler
- Arbeitshandschuhe für den Winter
- Zuhause verschönern
- Outdoor-Plissees
- Schlafzimmer planen
- Terrassenüberdachung
- Wohngebäudeversicherung
- Zaunarten und Eigenschaften
- Hauseingang gestalten
- Der perfekte Grundriss
- Sparsamer heizen im Altbau
- Einfamilienhaus smart finanzieren
- Planung einer PV-Anlage
- Neues Haus
- Immobilienfinanzierung
- Installation einer Photovoltaikanlage
- Asbest erkennen und entfernen
- Gartenpflege im Frühling – worauf achten
- Sauna im Fokus - Wellness zuhause
- Erfolgreich vermieten
- Die perfekte Winterbekleidung
- Das Niedrigenergiehaus
- Der April und seine Stürme
- Architektonische Vielfalt
- Ökologisch und nachhaltig bauen
- Das perfekte Schlafzimmer
- Nachhaltige Energieversorgung
- Zukunftsorientiert bauen
- Nachhaltigkeit beim Hausbau
- Tiny Houses
- Wärmepumpen als nachhaltige Heizvariante
- Maßgeschneiderten Kleiderschrank
- Der richtige Baukredit
- Ratgeber für erfolgreichen Hausbau
- Haus als Altersvorsorge
Do-it-yourself Anleitungen
- Verlegeanleitung für Bodenbeläge und Parkett
- Bodenbeläge und Parkett reinigen und pflegen
- Malerarbeiten am Haus
- Garten Tipps
- Umzug und Reinigung

ᐅ Grundriss Bad mit 13 qm

Erstellt am: 02.11.16 20:16
G
Grym
G
Grym
02.11.16 20:16
Hallo,

wir wissen einfach nicht weiter bezüglich unseres Bad-Grundrisses, habt ihr vielleicht Ideen? Unser Sanitär-Mensch meinte übrigens, ein Treffen mit ihm vor Baugenehmigung wäre nicht sinnvoll, hmm... :-(

Leider stehen mit der Baugenehmigung dann ja Sachen wie Fenster und tragende Wände fest und genau da haben wir noch etwas Spielraum. Das Fenster könnte z.B. problemlos an einer beliebigen Stelle an der kurzen Seite angeordnet werden, da unten darunter der Hausanschlussraum ist und dieser das Fenster ja an einer beliebigen Stelle haben könnte. Oder das Fenster bleibt in etwa dort wo es ist, kann aber sicher noch ein paar cm nach hier oder da gerückt werden (muss leider aber symmetrisch zum WC auf der anderen Seite gegenüber ein Stockwerk tiefer passen - Fenster weiter Richtung Tür rücken wäre also nicht gewollt). Auch könnte man beliebige mit dem Nebenraum Hauswirtschaftsraum tauschen oder dort Wände verschieben, Einbuchtungen erstellen, etc.

Hier mal 4 Ideen von uns:


Grundriss eines Apartments: HWR mit WM, Wohnbereich, Schlafzimmer, Bad mit Wanne.



Grundriss eines Hauses: Badezimmer mit Badewanne, WC, Waschbecken; HWR mit WM/TR.



2D-Grundriss eines Hauses mit HWR, Bad und Küchenbereich, Maßangaben sichtbar.



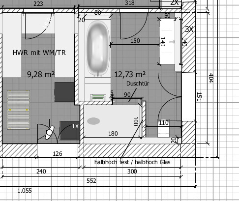
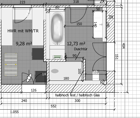
Detaillierter 2D-Badgrundriss mit Badewanne, Dusche und Sanitärbereich


Badobjekte im Moment in unsere Planung:

190x90 Duo-Badewanne
mindestens 120x90 Duschfläche (nicht gefliest, Villeroy & Boch Squaro oder so etwas in der Art)
120cm breiter waschtisch (1x Armatur) mit breiten Ablageflächen links und rechts (in den 120cm dabei)
und ein WC

Fenster am ehesten wie in Planung 1 ganz oben realisierbar bezüglich Symmetrie außen usw.
RobsonMKK02.11.16 20:24
Das mit der riesengroßen Wanne würde ich mir überlegen. Wenn Kinder drin baden sollen eine ziemliche Wasserverschwendung auf Dauer
G
Grym
02.11.16 20:36
Die Größen von Wanne und Waschtisch wurden bereits ausführlichst zwischen uns beiden diskutiert und vieles wurde ausprobiert und das sind nun die Ergebnisse. Nur bei der Dusche ist das eher so ein geschätzter Wert, der vermutlich gemütlich und großzügig genug sein müsste.
L
Legurit
02.11.16 20:51
Kannst du das Fenster noch umplanen? Dann würde ich es an die andere Seite machen und einfach Dusche und Wanne bzw. Waschbecken und WC links und rechts anordnen.
Kaldewei Mega Duo 180x90 Körperform kann ich sehr empfehlen - passt auch sehr gut zu einer 90er Dusche.
tomtom7902.11.16 21:28
Welche Brüstung Höhe hat das Fenster ? passt die Badewanne direkt drunter?
G
Grym
02.11.16 22:27
Drunter passen würde die Wanne wohl, darf man das auch? Wegen Absturzsicherung? Wir würden dort wohl eine "übliche" Brüstungshöhe wählen. Etwa 90 cm würden das sein.
villeroy & bochkaldewei mega duofensterbadewanneduschebaugenehmigungwändewaschtisch