hanghaus2023 schrieb:
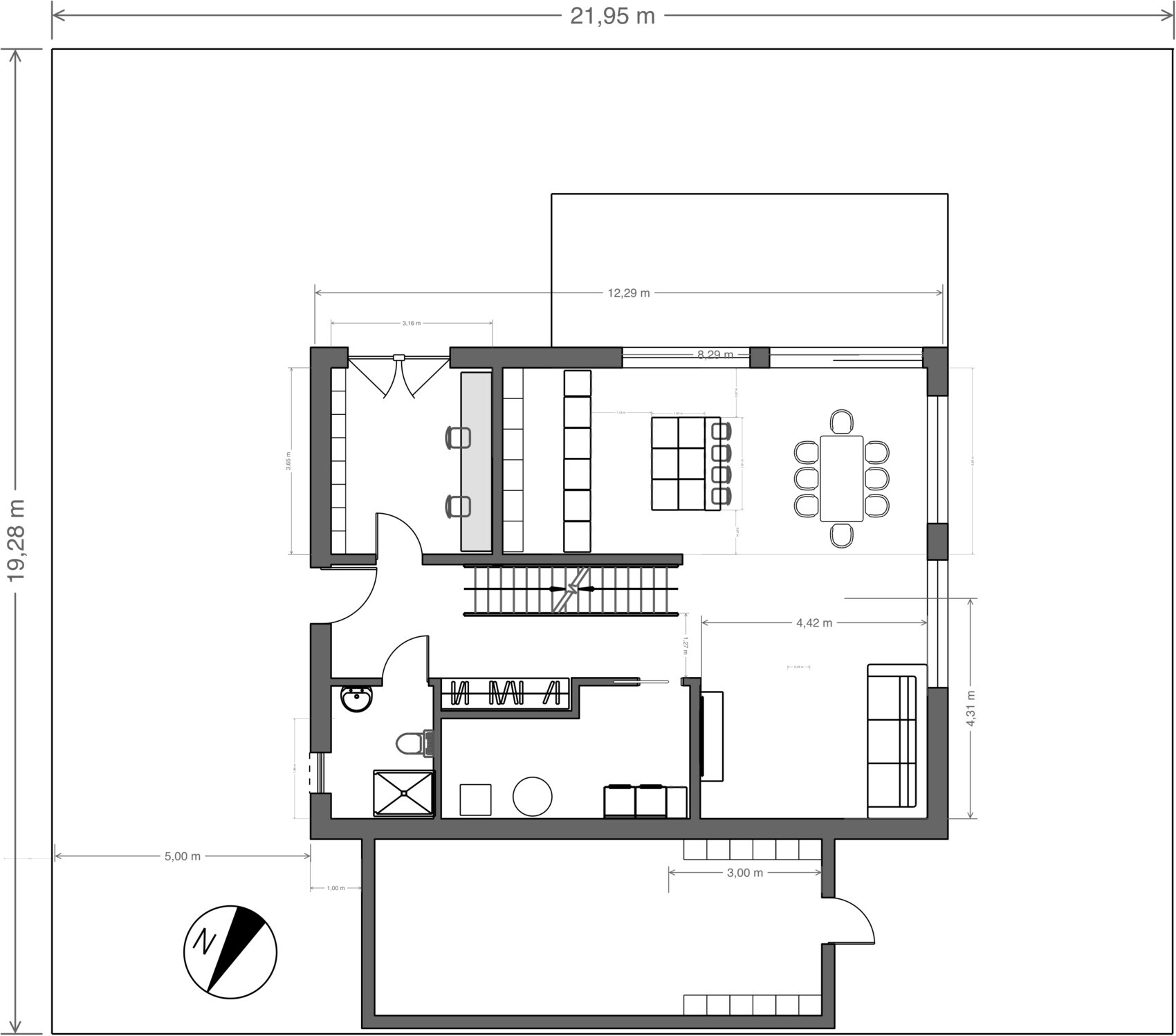
Die Treppe funktioniert so nicht. 5 Stufen überbaut? Wie hoch ist die Geschosshöhe?
Bad im OG ohne Fenster?
Warum ist bei Dir Norden unten? Besser immer Alle Pläne gleich ausrichten und dann wenn es geht Norden oben.Mit 2. Stufen sollte das funktionieren, wir haben 2,75m lichte Rohbauhöhe. Im Bad ist ein Fenster auf Höhe der Badewanne geplant plus ein Dachfenster. Drehen kann ich auch nicht da ich kein Architekt Programm habe.Julloef schrieb:
Welche Tür unter der Treppe, da ist keine. Und nein ich plane nicht ohne Fachplaner.Stimmt! Mit der Tür habe ich mich verschaut. Allerdings ist die Überbauung der Treppe tatsächlich sehr krass „Laienentwurf“, die Überbauung der Leitungen und ständiger Wechsel der Ausrichtung schon bemerkenswert hartnäckig.Julloef schrieb:
Drehen kann ich auch nicht da ich kein Architekt Programm habe.Aber ich bin schon still …H
hanghaus202311.05.24 11:02H
hanghaus202311.05.24 11:14H
hanghaus202311.05.24 11:33Warum so hoch im EG?
Hast Du schon mal was zum Budget gesagt?
Was bedeutet, wir haben das Grundstück so gut wie?
Hast Du schon mal was zum Budget gesagt?
Was bedeutet, wir haben das Grundstück so gut wie?
hanghaus2023 schrieb:
Hier mal das OG damit die Treppe so bleiben kann. Die Ankleide ist zu schmal. Schlafzimmer auch. Die Dusche bekommt hoffentlich das Dachfenster sonst ist da recht dunkel.

Ja genau da ist ein Dachfenster geplant, nicht nur wegen Licht sondern auch wegen Lüften.Ähnliche Themen