ᐅ Grundriss-Änderung Einfamilienhaus 150 m² aufgrund von Treppe
Erstellt am: 22.07.21 15:18
W
wolverine1987
Bebauungsplan/Einschränkungen
Größe des Grundstücks = 870 m²
Hang = nein
Anzahl Stellplatz = 2
Geschossigkeit = 3
Dachform = Walmdach
Stilrichtung = modern 🙂
Ausrichtung = Carport im Norden Wohnraum im Süden
Anforderungen der Bauherren
Stilrichtung, Dachform, Gebäudetyp = modern
Keller, Geschosse = Keller ja 3 Geschosse
Anzahl der Personen, Alter = derzeit 2 Erwachsene (34 und 32) + Kind 4 Monate
Raumbedarf im EG, OG = geplant waren 75 je Stockwerk
Büro: Familiennutzung oder Homeoffice = ja Homeoffice kann sein
Schlafgäste pro Jahr = keine
offene oder geschlossene Architektur = offene
konservativ oder moderne Bauweise = modern
offene Küche, Kochinsel = ja offen mit Kochinsel aber Wohnzimmer optisch getrennt
Anzahl Essplätze = min. 8
Kamin = noch offen
Balkon, Dachterrasse = nein
Garage, Carport = Carport mit Box
Hausentwurf
Von wem stammt die Planung: selbst
Was gefällt besonders? Warum? = die Trennung Wohnzimmer mit Küche Esszimmer
favorisierte Heiztechnik: Luftwärmepumpe
Wenn Ihr verzichten müsst, auf welche Details/Ausbauten
-könnt Ihr verzichten: vielleicht auf Speisekammer
-könnt Ihr nicht verzichten:
Warum ist der Entwurf so geworden, wie er jetzt ist? ZB
viel selbst gezeichnet und Besuch in Fertighäusern
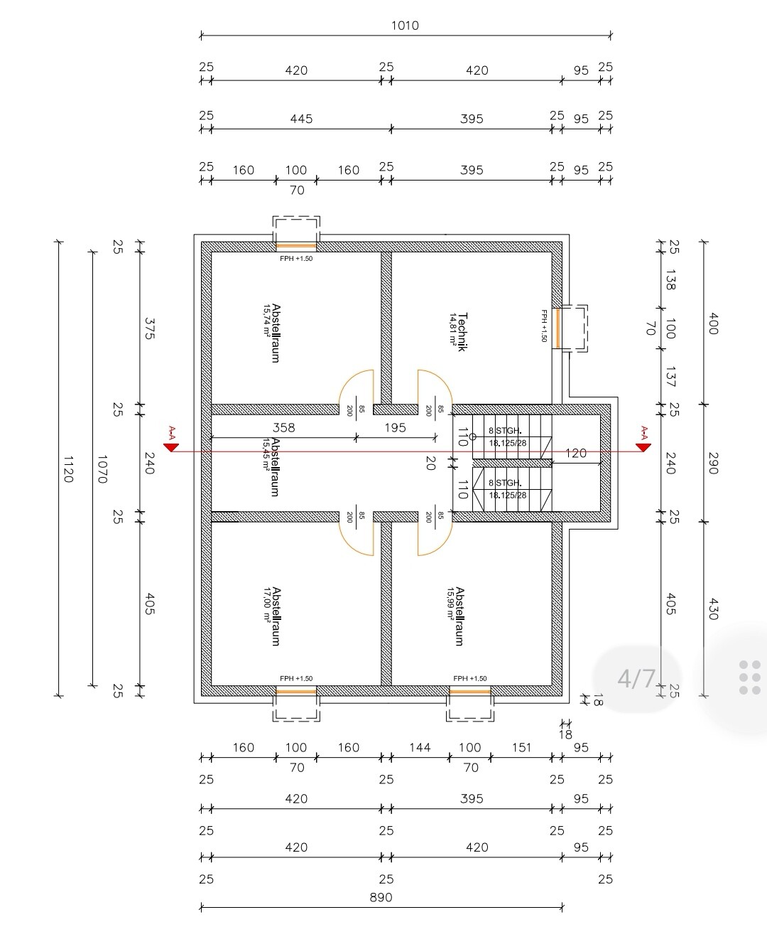
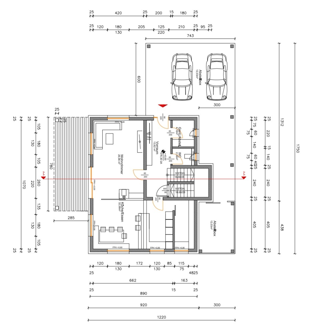
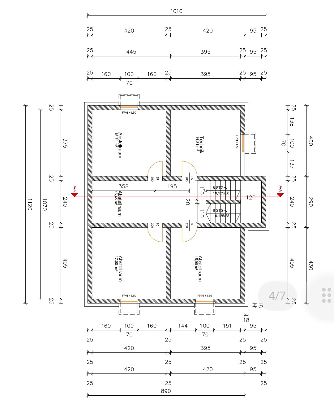
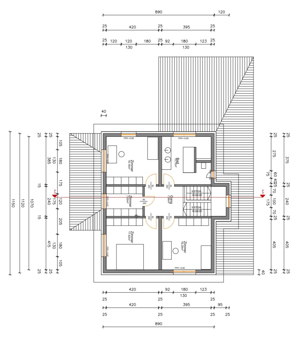
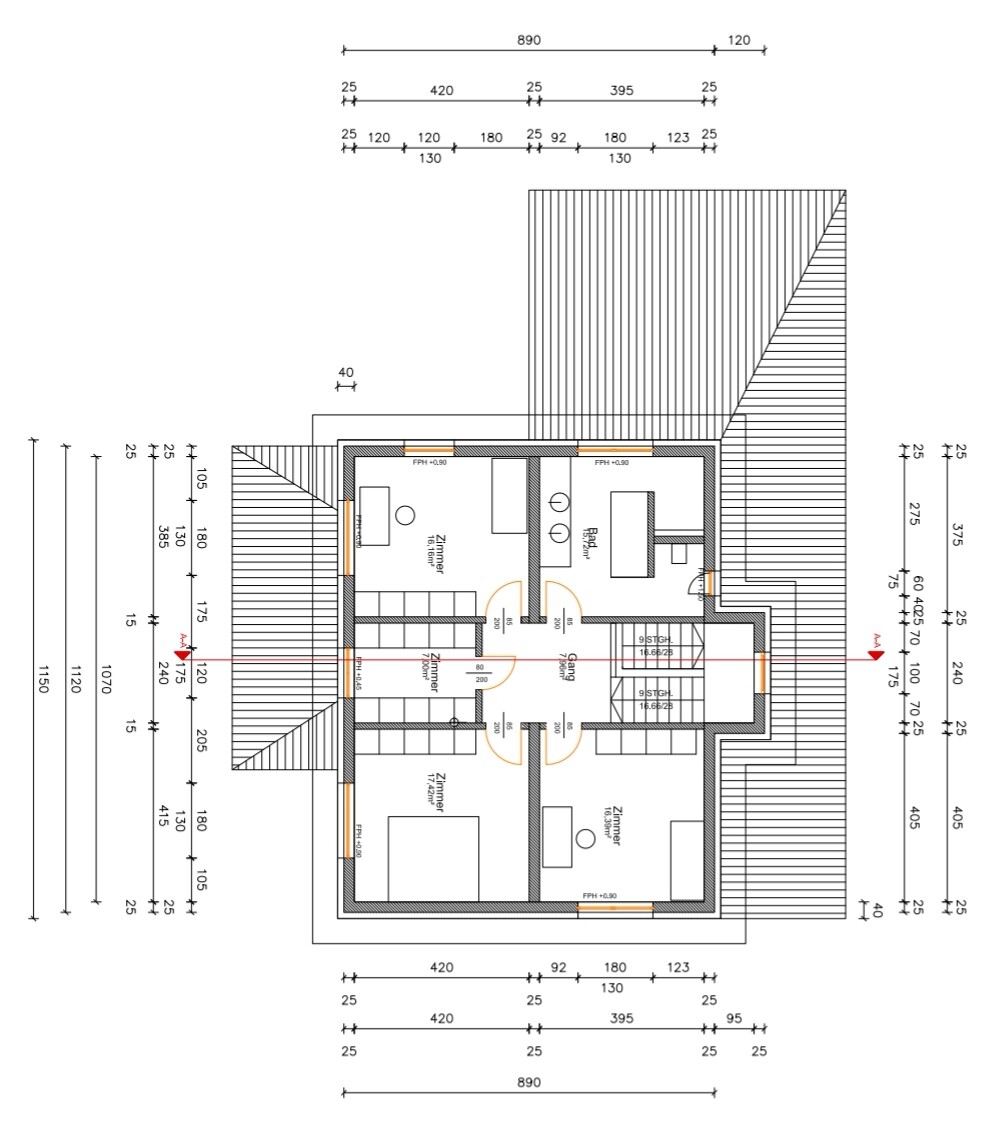
Hallo! Wir haben bereits einen anderen Plan auch in diesem Forum, überlege uns aber ob wir von einer geraden Treppe zu einer gewendelten Treppe wechseln.
Was haltet ihr von meinem Entwurf?
Geht sich das mit der Speisekammer hinter der Küche aus?
Wie findet ihr die Raumgrößen?









Größe des Grundstücks = 870 m²
Hang = nein
Anzahl Stellplatz = 2
Geschossigkeit = 3
Dachform = Walmdach
Stilrichtung = modern 🙂
Ausrichtung = Carport im Norden Wohnraum im Süden
Anforderungen der Bauherren
Stilrichtung, Dachform, Gebäudetyp = modern
Keller, Geschosse = Keller ja 3 Geschosse
Anzahl der Personen, Alter = derzeit 2 Erwachsene (34 und 32) + Kind 4 Monate
Raumbedarf im EG, OG = geplant waren 75 je Stockwerk
Büro: Familiennutzung oder Homeoffice = ja Homeoffice kann sein
Schlafgäste pro Jahr = keine
offene oder geschlossene Architektur = offene
konservativ oder moderne Bauweise = modern
offene Küche, Kochinsel = ja offen mit Kochinsel aber Wohnzimmer optisch getrennt
Anzahl Essplätze = min. 8
Kamin = noch offen
Balkon, Dachterrasse = nein
Garage, Carport = Carport mit Box
Hausentwurf
Von wem stammt die Planung: selbst
Was gefällt besonders? Warum? = die Trennung Wohnzimmer mit Küche Esszimmer
favorisierte Heiztechnik: Luftwärmepumpe
Wenn Ihr verzichten müsst, auf welche Details/Ausbauten
-könnt Ihr verzichten: vielleicht auf Speisekammer
-könnt Ihr nicht verzichten:
Warum ist der Entwurf so geworden, wie er jetzt ist? ZB
viel selbst gezeichnet und Besuch in Fertighäusern
Hallo! Wir haben bereits einen anderen Plan auch in diesem Forum, überlege uns aber ob wir von einer geraden Treppe zu einer gewendelten Treppe wechseln.
Was haltet ihr von meinem Entwurf?
Geht sich das mit der Speisekammer hinter der Küche aus?
Wie findet ihr die Raumgrößen?
wolverine1987 schrieb:
Das werde ich das Wochenende gleich mal umzeichnen und probieren 🙂Gibt’s ein Update?(Bemaßung +möbel)
W
wolverine198727.07.21 10:13driver55 schrieb:
Gibt’s ein Update?Hier mal die Änderung mit den 25cm.
Bin mir nicht sicher ob das so viel mehr bringt...
Mir gefällt es so besser, du hast einen tollen, großzügigen Küchen- und Essbereich! Bei 400 cm Küchenfront bekommst du halt 360 cm Standardschränke unter + Blenden oder + einen schmalen schrank. Für Symmetriefanatiker bei Küchenfronten ist des nix 😉 Das WZ ist mit 25 qm auch dicke groß genug.
Im WC würde ich die Tür mittig setzen, das WC unters Fenster und das Waschbecken gegenüber. Dann klebt die Tür auch nicht so direkt an der Wand.
Im WC würde ich die Tür mittig setzen, das WC unters Fenster und das Waschbecken gegenüber. Dann klebt die Tür auch nicht so direkt an der Wand.
W
wolverine198722.11.21 21:17Ähnliche Themen