ᐅ Genügend Tageslicht in den Kinderzimmern?
Erstellt am: 23.02.15 21:07
B
baumann201323.02.15 21:07Hallo Zusammen,
wir stehen kurz vor dem Start unseres Bauvorhabens. Mit unserer Grundrissplanung unseres Satteldachhauses sind wir zwar zufrieden, allerdings sind wir noch mal ins Grübeln gekommen, ob die Fenstergröße in den beiden Kinderzimmern (OG) ausreichend ist. Daher würde ich gern mal Eure Meinungen einholen.
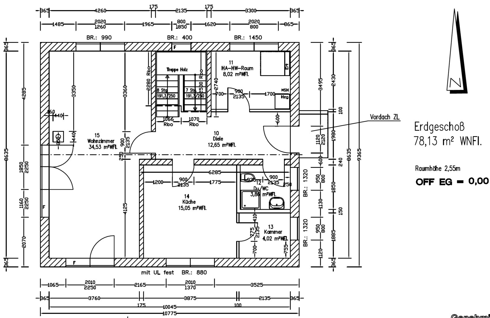
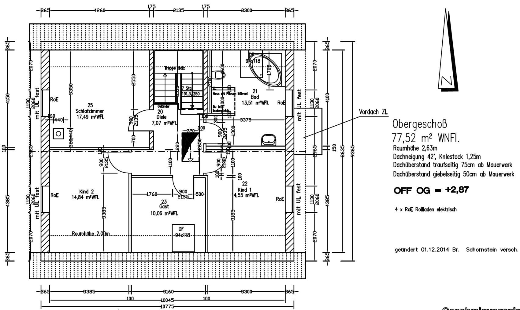
Im Anhang seht Ihr die Grundrisse und alle Hausansichten. Vorgabe für alle 4 OG-Fenster waren "bodentief mit festem Unterteil" und "einflügelig". Momentan hat das Bad auf der Nord- und das Gästezimmer auf der Südseite ein Dachflächenfenster. Irgendwie haben wir das Gefühl, in den beiden Kinderzimmern noch mehr Licht gebrauchen zu können, damit die Zimmer nicht zu dunkel wirken. Eine Verbreiterung der Fenster passt von der Außenansicht zumindest an der Ostseite nicht.
Jetzt die Frage: Würde hier je ein weiteres Dachflächenfenster in den Kinderzimmern Sinn machen oder spricht das irgendwas dagegen? Das Haus hätte dann nämlich 4 Dachflächenfenster und das erscheint mir doch recht viel. Oder reicht die Fensterbreite und Höhe vielleicht doch aus?
Über Eure Meinungen wäre ich sehr dankbar.
Grüße
baumann2013






wir stehen kurz vor dem Start unseres Bauvorhabens. Mit unserer Grundrissplanung unseres Satteldachhauses sind wir zwar zufrieden, allerdings sind wir noch mal ins Grübeln gekommen, ob die Fenstergröße in den beiden Kinderzimmern (OG) ausreichend ist. Daher würde ich gern mal Eure Meinungen einholen.
Im Anhang seht Ihr die Grundrisse und alle Hausansichten. Vorgabe für alle 4 OG-Fenster waren "bodentief mit festem Unterteil" und "einflügelig". Momentan hat das Bad auf der Nord- und das Gästezimmer auf der Südseite ein Dachflächenfenster. Irgendwie haben wir das Gefühl, in den beiden Kinderzimmern noch mehr Licht gebrauchen zu können, damit die Zimmer nicht zu dunkel wirken. Eine Verbreiterung der Fenster passt von der Außenansicht zumindest an der Ostseite nicht.
Jetzt die Frage: Würde hier je ein weiteres Dachflächenfenster in den Kinderzimmern Sinn machen oder spricht das irgendwas dagegen? Das Haus hätte dann nämlich 4 Dachflächenfenster und das erscheint mir doch recht viel. Oder reicht die Fensterbreite und Höhe vielleicht doch aus?
Über Eure Meinungen wäre ich sehr dankbar.
Grüße
baumann2013
Wie hoch ist euer Kniestock und welche Dachneigung?
Und warum sollte ein breiteres Fenster nicht passen? Unsere sind 1,26 breit (ca. 2m hoch) und ich finde kleiner hätten sie nicht sein dürfen (Zimmergröße 16m2).
Ein Grund der meiner Meinung nach gegen Dachfenster spricht, ist die Südlage. Im Sommer wären die eh die ganze Zeit verschattet.
Und warum sollte ein breiteres Fenster nicht passen? Unsere sind 1,26 breit (ca. 2m hoch) und ich finde kleiner hätten sie nicht sein dürfen (Zimmergröße 16m2).
Ein Grund der meiner Meinung nach gegen Dachfenster spricht, ist die Südlage. Im Sommer wären die eh die ganze Zeit verschattet.
B
baumann201323.02.15 21:47BeHaElJa schrieb:
"Ausreichend" ist es. Ich würde aber einfach die Fenster verbreitern auf 1,76 m oder zumindest 1,5 m.Auf der Westseite funktioniert das nicht, da uns der Schornstein im Schlafzimmer den Platz für eine weitere Fensterbreite einschränkt. Auf der Ostseite würde es nicht passen, da dann das Kinderzimmerfenster optisch nicht mehr zwischen die beiden kleinen Fenster im EG passt.
Mycraft schrieb:
Hmm also ich würde zu Dachflächenfenstern tendieren...
Ausreichen tut es...dennoch ist es mMn mit Dachfenstern einfach besser...Wir hätten dann an der südlichen Fensterseite 3 Dachfenster. Würde denn dann auch noch die Solarthermie auf dem Dach Platz finden? Gibt es sonstige Nachteile, wenn man Dachziegel mit Dämmung für ein Dachfenster "opfert"?
Ähnliche Themen