K
KlausBautHaus26.07.22 22:40Hallo zusammen,
wir bauen gerade und bislang ist nur das Fliesen der Bäder (EG+OG) sowie des Hauswirtschaftsraum vergeben (über BU). Bzgl. der übrigen Räume im EG sind wir uns mittlerweile einig, dass dort ebenfalls Fliesen hin sollen. Daher wollte ich mir mal ein paar Tipps holen und hinterfragen, ob man das nicht vielleicht auch selber erledigen könnte.
Paar Fakten:
-Ich bin handwerklich eher Anfänger.
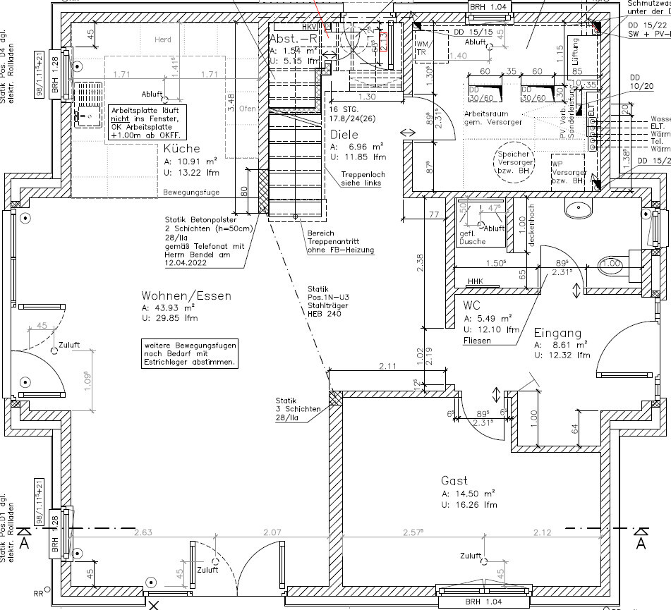
-Den Grundriss EG habe ich beigefügt.
-Der Haupteingang ist rechts, links ist Westen.
-Wir hätten am liebsten Fliesen in Holzoptik Eiche, derzeit sind wir bei dem Format 120x30.
-Bis auf Gästebad und Hauswirtschaftsraum sollen überall die gleichen Fliesen hin, insgesamt sind das ca. 85m².
-Die Treppenstufen werden vermutlich aus Buche sein. Ich hoffe das beißt sich nicht so mit der Eichenoptik.
-Wir haben noch keinen Fachmann um Rat gefragt, wobei mein Eindruck hier im Forum entstand, dass die Meinungen der Fachmänner auch öfter mal auseinandergehen...
Was uns nun so auf dem Herzen liegt:
1. Kann man sich so eine Fläche als Laie überhaupt zumuten? Der Umzug sollte sich deshalb nicht um 3 Monate hinauszögern...
2. Hat jmd. Erfahrungen mit Heimwerker-Workshops, wo einem das Fliesenlegen nähergebracht wird? Habe gesehen, dass sowas bspw. manchmal von Baumärkten angeboten wird.
3. Habt Ihr Erfahrung mit diesen Niveliersystemen, wo man benachbarte Fliesen miteinander verbindet, um die gleich Höhe zu erhalten? Ohne würde ich vermuten, könnte das bei den großen Räumen schnell krumm und schief aussehen...
4. Würdet Ihr die fliesen quer (links-rechts) verlegen oder längs? Tendieren momentan eher zu quer:
-Parallel zur Dehnungsfuge zw. Küche und Essbereich sowie vermutlich auch zu einer Fuge, die zwischen Ess- und Wohnbereich noch kommen müsste (nicht im Plan).
-In Richtung der Räume wenn man zur Haustür hereinkommt.
-Im Westen steht die Sonne auch mal tiefer und so wären die Fugen/Kanten nicht ganz so hervorgehoben.
-Parallel zu den Treppenstufen.
5. Am einfachsten stelle ich mir hier einen wilden Verband vor. Es soll auf keinen Fall gleichmäßig werden.
6. Wo würde man am besten anfangen?
-Generell erst mal inder Küche oder dem Gästezimmer üben 😀 ?
-Sonstige Tipps?
7. Wisst Ihr, ob es den Fliesenlegern in der Regel egal ist, dass man die Fliesen separat kauft oder wollen die die Fliesen lieber selber beschaffen? Grund ist, dass ich die Fliesen sonst jetzt demnächst schon mal kaufen würde, um Preiserhöhungen und Lieferengpässe zu vermeiden und das Geld der Bank schon mal ausgeben kann, bevor die Bereitstellungszinsfreie Zeit endet.
8. Das BU will irgendwann wissen wie hoch unser Boden wird, um die Estrichhöhe entsprechend anzupassen, damit es mit den Türen etc. passt. Wie geht man da am besten vor? Die Fliese ist bspw. 8mm hoch, der Kleber 1mm, also kommt man auf 9mm 🙂 Klingt irgendwie zu einfach.
Vorab schonmal danke, danke, danke

wir bauen gerade und bislang ist nur das Fliesen der Bäder (EG+OG) sowie des Hauswirtschaftsraum vergeben (über BU). Bzgl. der übrigen Räume im EG sind wir uns mittlerweile einig, dass dort ebenfalls Fliesen hin sollen. Daher wollte ich mir mal ein paar Tipps holen und hinterfragen, ob man das nicht vielleicht auch selber erledigen könnte.
Paar Fakten:
-Ich bin handwerklich eher Anfänger.
-Den Grundriss EG habe ich beigefügt.
-Der Haupteingang ist rechts, links ist Westen.
-Wir hätten am liebsten Fliesen in Holzoptik Eiche, derzeit sind wir bei dem Format 120x30.
-Bis auf Gästebad und Hauswirtschaftsraum sollen überall die gleichen Fliesen hin, insgesamt sind das ca. 85m².
-Die Treppenstufen werden vermutlich aus Buche sein. Ich hoffe das beißt sich nicht so mit der Eichenoptik.
-Wir haben noch keinen Fachmann um Rat gefragt, wobei mein Eindruck hier im Forum entstand, dass die Meinungen der Fachmänner auch öfter mal auseinandergehen...
Was uns nun so auf dem Herzen liegt:
1. Kann man sich so eine Fläche als Laie überhaupt zumuten? Der Umzug sollte sich deshalb nicht um 3 Monate hinauszögern...
2. Hat jmd. Erfahrungen mit Heimwerker-Workshops, wo einem das Fliesenlegen nähergebracht wird? Habe gesehen, dass sowas bspw. manchmal von Baumärkten angeboten wird.
3. Habt Ihr Erfahrung mit diesen Niveliersystemen, wo man benachbarte Fliesen miteinander verbindet, um die gleich Höhe zu erhalten? Ohne würde ich vermuten, könnte das bei den großen Räumen schnell krumm und schief aussehen...
4. Würdet Ihr die fliesen quer (links-rechts) verlegen oder längs? Tendieren momentan eher zu quer:
-Parallel zur Dehnungsfuge zw. Küche und Essbereich sowie vermutlich auch zu einer Fuge, die zwischen Ess- und Wohnbereich noch kommen müsste (nicht im Plan).
-In Richtung der Räume wenn man zur Haustür hereinkommt.
-Im Westen steht die Sonne auch mal tiefer und so wären die Fugen/Kanten nicht ganz so hervorgehoben.
-Parallel zu den Treppenstufen.
5. Am einfachsten stelle ich mir hier einen wilden Verband vor. Es soll auf keinen Fall gleichmäßig werden.
6. Wo würde man am besten anfangen?
-Generell erst mal inder Küche oder dem Gästezimmer üben 😀 ?
-Sonstige Tipps?
7. Wisst Ihr, ob es den Fliesenlegern in der Regel egal ist, dass man die Fliesen separat kauft oder wollen die die Fliesen lieber selber beschaffen? Grund ist, dass ich die Fliesen sonst jetzt demnächst schon mal kaufen würde, um Preiserhöhungen und Lieferengpässe zu vermeiden und das Geld der Bank schon mal ausgeben kann, bevor die Bereitstellungszinsfreie Zeit endet.
8. Das BU will irgendwann wissen wie hoch unser Boden wird, um die Estrichhöhe entsprechend anzupassen, damit es mit den Türen etc. passt. Wie geht man da am besten vor? Die Fliese ist bspw. 8mm hoch, der Kleber 1mm, also kommt man auf 9mm 🙂 Klingt irgendwie zu einfach.
Vorab schonmal danke, danke, danke
H
HausiKlausi26.07.22 23:41KlausBautHaus schrieb:
-Ich bin handwerklich eher Anfänger.Die Frage aller Fragen: Was erwartet ihr euch? Finanzielle Einsparungen? Zeitersparnis? Spaß, was eigenes zu machen? Fliesen ist keine Rocket Science, aber gerade beim Format 120x30 würde ich tunlichst davon abraten, sich selber als DAU auf 85 Quadratmetern auszuprobieren. Die Menge der Fragen die du stellst legt das nahe. Wenn es ums Geld geht: Macht lieber was in Eigenleistung, was euch möglich und als Talent gegeben ist: Garten, Außenanlagen, Spachteln, Streichen...? Aber essentielle Sachen, die man richtig verkacken kann ohne Erfahrung, würde ich da nicht gleich als erstes in Angriff nehmen.
KlausBautHaus schrieb:
Die Treppenstufen werden vermutlich aus Buche sein. Ich hoffe das beißt sich nicht so mit der Eichenoptik.hm… Buche sieht anders aus als Eiche. In meinen Augen passt das nicht bei elementaren Objekten nebeneinander, Treppe/Boden.KlausBautHaus schrieb:
Kann man sich so eine Fläche als Laie überhaupt zumuten? Der Umzug sollte sich deshalb nicht um 3 Monate hinauszögern...KlausBautHaus schrieb:
Ich bin handwerklich eher Anfänger.Ich würde Dir sogar 30/60 abraten. Einmal eine Fliese um einen Millimeter schief, ist die ganze Bahn über die Länge verpfuscht. Die nächste Bahn passt sich dann an die schiefe an und so fort…. man kann ja auch nicht einfach am nächsten Morgen die Reihe rausnehmen und nochmal korrigieren… Fliesenleger nehmen Aufpreise für die Länge dieser Fliesen, weil sie schwerer zu verlegen sind..Ich habe selbst mal das EG mit Fliesen verlegt, bin aber mit zwei rechten talentierten Händen geboren. Ich sag mal so: ich war mit mir sehr tolerant. Für einen Perfektionisten ist es sehr schmerzhaft über eine lange Zeit, auch wenn es ein Gebrauchthaus war… bis man vieles wegsieht oder überall Pflanzen verteilt…
Einen Bandscheibenvorfall habe ich auch bekommen.
im Keller auf kleiner rechteckiger Fläche allerdings würde ich da keine Probleme sehen, sich mal zu üben. Ich würde dennoch zu einem anderen Bodenbelag raten oder eben von dem Fliesenleger alles machen lassen, der auch Küche und Bad macht.
ich würde auch zum Fliesenleger raten. Bei uns wurden auch nur die Bäder und der Hauswirtschaftsraum Raum vom Bauunternehmen gefliest. Den Rest hatten wir auf Grund des aufgerufenen Preises für die Fliesen und das Verlegen "abgewählt". Uns dann einen eigenen Fliesenleger gesucht. Ihm die Aufgabe gezeigt und gefragt,ob er die Fliesen besorgt oder wir es selber tun können. Er war sogar zufrieden,sich nicht mit der Auswahl beschäftigen zu müssen. Ne,macht mal.
Er wusste die Größen und empfahl uns dann das Verlegemuster. Wir haben auch zwei große Dehnungsfugen drin.
Hat alles prima geklappt und zusätzlich haben wir eine nicht unerhebliche Summe durch die Eigenbeschaffung und Vergabe an den "eigenen" Flieserleger kräftig gespart. Kann ich nur jedem empfehlen.
Er wusste die Größen und empfahl uns dann das Verlegemuster. Wir haben auch zwei große Dehnungsfugen drin.
Hat alles prima geklappt und zusätzlich haben wir eine nicht unerhebliche Summe durch die Eigenbeschaffung und Vergabe an den "eigenen" Flieserleger kräftig gespart. Kann ich nur jedem empfehlen.
E
Energieverbrat18.08.22 10:20Hi, wir haben 256m2 fliesen km Neubau + 56m2 fliesen in Garage.
Für großformat fliesen brauchst du ein nivelliersystem, winkelschleifer mit drehzahleinstellung und konstanthalteelektronik, paar fliesenscheiben, fliesenbohrer für dosen, flexkleber für großformat (zB PCI CM 90). Und wichtig einen guten trocken fliesenschneider. Ahja und davor halt staubsaugen und grundieren.
Tipp fugen für holzoptik fliesen: kiesel servoperl Royal hat die meisten Sand/ brauntöne und auch als Silikon.
So sieht das bei uns aus.

Für großformat fliesen brauchst du ein nivelliersystem, winkelschleifer mit drehzahleinstellung und konstanthalteelektronik, paar fliesenscheiben, fliesenbohrer für dosen, flexkleber für großformat (zB PCI CM 90). Und wichtig einen guten trocken fliesenschneider. Ahja und davor halt staubsaugen und grundieren.
Tipp fugen für holzoptik fliesen: kiesel servoperl Royal hat die meisten Sand/ brauntöne und auch als Silikon.
So sieht das bei uns aus.
K
KalterKaffee21.04.23 18:22Energieverbrat schrieb:
Für großformat fliesen brauchst du ein nivelliersystemIch habe gerade Holzoptik Fliesen im Format 120 x 30 cm legen lassen, und die Ausführung liegt unter meinen Erwartungen. Einige Fliesen stehen
mehr als 1,3 mm über. Wusste nicht ob meine Erwartungen zu hoch und unrealistisch waren, also habe ich einen Gutachter beauftragt, sich das anzuschauen.
Er meinte: Hier habe man ohne Nivelliersystem gearbeitet; mit Nivelliersystem wäre das besser geworden und diese Überstände wären nicht passiert.
Er hat ca. 15 Stellen markiert, die einen Überstand von 1,3mm und mehr haben.
Das habe ich meinem Fliesenleger mitgeteilt. Der meinte, ein Nivelliersystem würde wenig bringen und ist auch mit Mehrkosten verbunden. Dazu ist die
Toleranzgrenze nach DIN 2 mm und nicht 1,3 mm.
Aber, meine Erwartungen waren auch hoch, da ich nicht damit gerechnet habe, wie "schief" Fliesen sein dürfen und doch als "1a" Ware gelten.
Je mehr verzogen die Fliesen sind, um so mehr muss der Fliesenleger ausgleichen. Dazu kommt noch, dass ein 1/3 Verbund von verzogenen Fliesen die
Unterschiede nochmals hervorhebt.
Und, man muss erwarten, dass einige Fliesen eine Überzahnung von 1,3mm oder 2mm haben. Schön sieht anders aus.
Im Keller habe ich billige Fliesen genommen (25 Euro/qm) in 20 x 120, auch rektifiziert. Fliesenleger meinte, die waren besser (weniger verbogen)
als die hochwertigen, welche fast das doppelte gekostet haben. Da habe ich solche extreme Überzahnungen nicht. Die wurden auch im 1/3 Verbund
gefliest.
Die Technolgie ist wohl doch nicht soweit, dass man solch grosse Fliesen brennen kann, ohne dass die sich verformen.
Und "teuer" heisst nicht unbedingt "weniger verzogen".
Ähnliche Themen