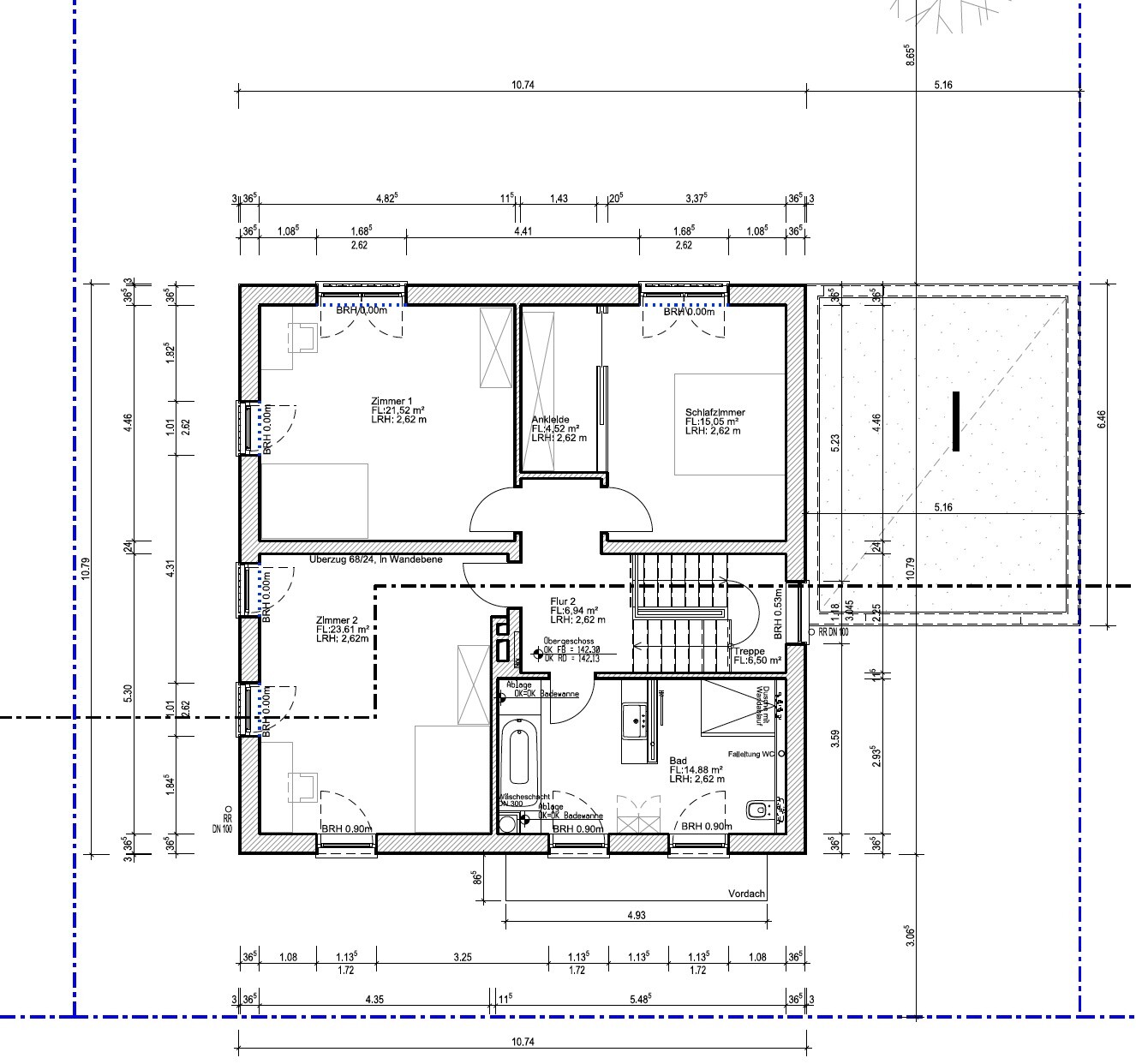
ᐅ Finaler Grundrissplan Schlafzimmer/Kinderzimmer
Erstellt am: 16.09.18 19:14
Im Kinderzimmer und Schlafzimmer wird die Wand verschoben, so das die schränke in Nischen stehen, bündig. Ankleide entfällt.
Alter Beitrag
PS:
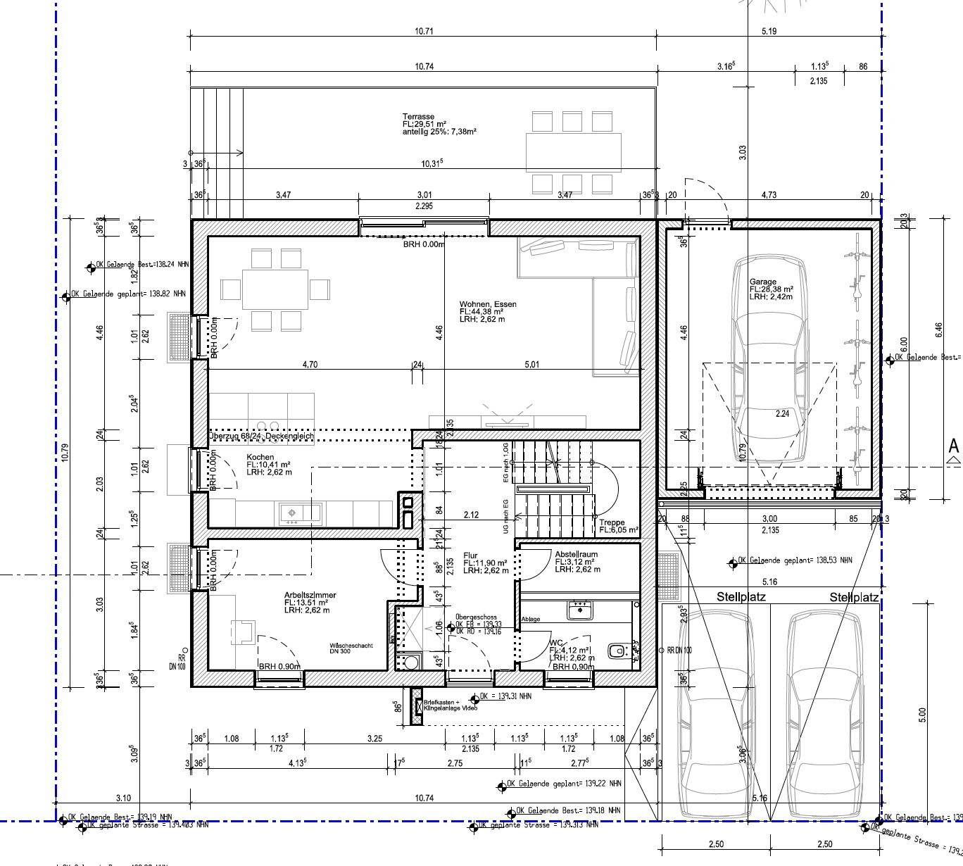
Heizung Gastherme
Bad ist Trockenbau, damit man das Bad im Alter ggf ausbauen kann. Damals war mal ein Duschbad geplant, aber duschen tut dort wahrscheinlich eh nie jemand.



Alter Beitrag
PS:
Heizung Gastherme
Bad ist Trockenbau, damit man das Bad im Alter ggf ausbauen kann. Damals war mal ein Duschbad geplant, aber duschen tut dort wahrscheinlich eh nie jemand.
kaho674 schrieb:
Die Position des Schornsteins ist mir etwas unklar. Wozu dient der? Pelletheizung im Keller?Das ist einmal ein Fallrohr für die Badewanne und Küche (Schmutzwasser) und ein Abgasrohr für die Heizung 20er Schacht, wenn ich es richtig verstanden habe.
Ähnliche Themen