Hallo zusammen,
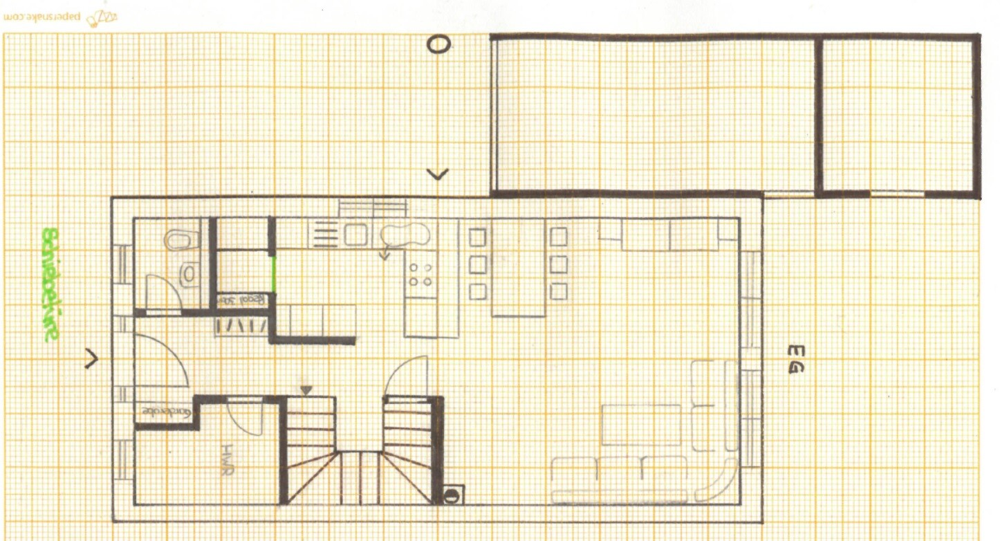
wir planen den Bau einer Doppelhaushälfte. Das Baufenster beträgt 6x12m und es darf mit zwei Vollgeschossen bebaut werden. Das DG wollen wir voll ausbauen um so drei Kinderzimmer zu verwirklichen. Einen Keller wollen wir nicht (aufgrund der Nähe zum Rhein). Firsthöhe beträgt 11m. Traufhöhe 6,5m.
Eine Garage wollen wir in der Größe 3x9m auf die Grenze setzen. Der Garten hat Südausrichtung.
Unsere ersten Ideen haben uns zu den angehängten Grundrissen "gebracht" - was haltet Ihr davon?
Anmerkung:
Im EG reiner HAR - Waschmaschine und Trockner sollen in das DG (Hauswirtschaftsraum)
Zudem wollen wir eine Speisekammer (mit Schiebetür von der offenen Küche getrennt) und eine geschlossene Betontreppe unter der wir im EG zusätzlichen Stauraum schaffen wollen.
OG mit drei Kinderzimmern und Bad
DG: Elternschlafzimmer, Hauswirtschaftsraum und Studio - Studio mit Gaube (Nordseite) - und Schlafzimmer Südseite
-> denke sieht von der Straße besser aus mit der Gaube auch wenn sonst die Räume besser getauscht wären
...und nun bin ich gespannt - alles ist noch veränderbar
VIELEN DANK



wir planen den Bau einer Doppelhaushälfte. Das Baufenster beträgt 6x12m und es darf mit zwei Vollgeschossen bebaut werden. Das DG wollen wir voll ausbauen um so drei Kinderzimmer zu verwirklichen. Einen Keller wollen wir nicht (aufgrund der Nähe zum Rhein). Firsthöhe beträgt 11m. Traufhöhe 6,5m.
Eine Garage wollen wir in der Größe 3x9m auf die Grenze setzen. Der Garten hat Südausrichtung.
Unsere ersten Ideen haben uns zu den angehängten Grundrissen "gebracht" - was haltet Ihr davon?
Anmerkung:
Im EG reiner HAR - Waschmaschine und Trockner sollen in das DG (Hauswirtschaftsraum)
Zudem wollen wir eine Speisekammer (mit Schiebetür von der offenen Küche getrennt) und eine geschlossene Betontreppe unter der wir im EG zusätzlichen Stauraum schaffen wollen.
OG mit drei Kinderzimmern und Bad
DG: Elternschlafzimmer, Hauswirtschaftsraum und Studio - Studio mit Gaube (Nordseite) - und Schlafzimmer Südseite
-> denke sieht von der Straße besser aus mit der Gaube auch wenn sonst die Räume besser getauscht wären
...und nun bin ich gespannt - alles ist noch veränderbar
VIELEN DANK
B
Bauexperte13.01.15 23:33Guten Abend,
Grüße, Bauexperte
Ländle schrieb:Bist Du sicher, daß Du eine Gaube in der 3. Ebene genehmigt bekommst?
DG: Studio mit Gaube (Nordseite)
Grüße, Bauexperte
Hier einige wenige Tipps:
eine Schiebetür braucht Platz in der Wand, also eine doppelte Wand dafür zeichnen.
Außerdem immer neben einer Tür mal so 20 cm Platz für Lichtschalter lassen.
Ich rede von SKIZZE... also lieber etwas mehr Platz bei DiY-Entwürfen einplanen, da ansonsten die Möbel nicht mehr passen, wenn man diese Maße ins Reine dann doch übernimmt.
-> Schlafzimmer: schrank, der seine 285 hat, wird es wohl nicht geben, passt auch nicht, da an der Tür die Lichtschalter gesetzt werden. Folge: Ihr sucht irgendwann nach einem Schrank, der seine 250 haben wird. Wahrscheinlich wird dann eingeplanter Platz fehlen.
Küchendurchgang zwischen den Arbeitsbereichen mit einem Meter ist zu eng! Gilt auch für die Flurenge von einem Meter.
Hinter Türen eine reelle Stellplatztiefe von 60 cm einplanen (für Schrank, siehe Hauswirtschaftsraum)
Zur Zeit habt Ihr 3! Toilettenentwässerungen... kann teuer werden...
Toiletten brauchen Spülkästen, die in Vorwandinstallationen gebaut sind, ist bei Euch nur im EG verwirklicht.
Im Hauswirtschaftsraum DG kann man sich nicht bewegen, so klein ist er...
Ihr solltet im Schlafzimmer die schräge oder fensterlose Wand als tiefen Einbauschrank von ca. 120cm Tiefe planen, damit Ihr auch einen reellen Raum dort vorfindet für Bett. Aber Vergrößerung Hauswirtschaftsraum nicht vergessen.
Ich in ein Befürworter fürs Waschen auf der Ebene, wo sie anfällt. Aber im DG waschen bedeutet: im Sommer 2 Treppen (Mit Wäschekorb) laufen, wenn man die Wäsche im Garten trocknen möchte.
Ich würde insofern das Waschen im OG planen, dafür die Treppe versetzen. DG und Wohnzimmer kann das vertragen, im EG ist dort eh zu viel Leerfläche, meiner Meinung
Gruss Yvonne
eine Schiebetür braucht Platz in der Wand, also eine doppelte Wand dafür zeichnen.
Außerdem immer neben einer Tür mal so 20 cm Platz für Lichtschalter lassen.
Ich rede von SKIZZE... also lieber etwas mehr Platz bei DiY-Entwürfen einplanen, da ansonsten die Möbel nicht mehr passen, wenn man diese Maße ins Reine dann doch übernimmt.
-> Schlafzimmer: schrank, der seine 285 hat, wird es wohl nicht geben, passt auch nicht, da an der Tür die Lichtschalter gesetzt werden. Folge: Ihr sucht irgendwann nach einem Schrank, der seine 250 haben wird. Wahrscheinlich wird dann eingeplanter Platz fehlen.
Küchendurchgang zwischen den Arbeitsbereichen mit einem Meter ist zu eng! Gilt auch für die Flurenge von einem Meter.
Hinter Türen eine reelle Stellplatztiefe von 60 cm einplanen (für Schrank, siehe Hauswirtschaftsraum)
Zur Zeit habt Ihr 3! Toilettenentwässerungen... kann teuer werden...
Toiletten brauchen Spülkästen, die in Vorwandinstallationen gebaut sind, ist bei Euch nur im EG verwirklicht.
Im Hauswirtschaftsraum DG kann man sich nicht bewegen, so klein ist er...
Ihr solltet im Schlafzimmer die schräge oder fensterlose Wand als tiefen Einbauschrank von ca. 120cm Tiefe planen, damit Ihr auch einen reellen Raum dort vorfindet für Bett. Aber Vergrößerung Hauswirtschaftsraum nicht vergessen.
Ich in ein Befürworter fürs Waschen auf der Ebene, wo sie anfällt. Aber im DG waschen bedeutet: im Sommer 2 Treppen (Mit Wäschekorb) laufen, wenn man die Wäsche im Garten trocknen möchte.
Ich würde insofern das Waschen im OG planen, dafür die Treppe versetzen. DG und Wohnzimmer kann das vertragen, im EG ist dort eh zu viel Leerfläche, meiner Meinung
Gruss Yvonne
M
Masipulami14.01.15 07:22ypg schrieb:
eine Schiebetür braucht Platz in der Wand, also eine doppelte Wand dafür zeichnen.Nicht unbedingt. Wir bekommen eine Schiebetür zwischen Küche und Esszimmer. Das ist quasi ein großes Element, dass in eine entsprechend große Rohbauöffnung gesetzt wird.
Richtig geplant müssen die Elemente nicht zwingend vor der Wand sitzen.
D
Doc.Schnaggls14.01.15 08:30Masipulami schrieb:
Richtig geplant müssen die Elemente nicht zwingend vor der Wand sitzen. Das ist schon richtig. Entweder vor der Wand (Auf-Wand-Montage) oder eben in der Wand - dann muss die Wand aber aufgedoppelt werden.
Unsere Wand zwischen Flur und Speisekammer ist aus eben diesem Grund auch nahezu doppelt so dick wie alle anderen (nichttragenden) Innenwände.
Grüße,
Dirk
M
Masipulami14.01.15 08:38Doc.Schnaggls schrieb:
dann muss die Wand aber aufgedoppelt werden.Kann ich so nicht bestätigen. Bei uns wird das Element in eine 17.5cm starke tragende Innenwand gesetzt. Da wird nichts aufgedoppelt.
Edit:
Bei nichttragenden Wänden könnte es hingegen schon sein, dass die Wanddicke nicht ausreicht, um das System einzubauen und daher aufgedoppelt werden muss.
Ähnliche Themen