🙂Hallo liebes Forum,
ich lese schon seit einiger Zeit mit und habe vor allem auch den Beitrag von Kisska sehr interessiert verfolgt. Bei uns ist es nämlich ähnlich. Wir haben eine Hanglage und haben die Haustüre im Untergeschoss geplant. Es sollen später mal 4 Personen im Haus leben. Aktuell sind wir noch zu zweit.
Wir sind seit April mit unserem Architekten am planen und inzwischen gefällt uns die Innenaufteilung schon gut und auch die Positionierung des Hauses und Garage auf dem Grundstück passt uns so. Die Außenansichten gefallen uns noch gar nicht, ich habe sie aber Vollständigkeitshalber angegeben, damit ihr euch besser vorstellen könnte, wie das Haus später mal auf dem Grundstück steht.
Zum Grundstück:
Es gibt keinen Bebauungsplan, da Altbestand. Ein altes Haus und ein Schuppen wird noch abgerissen. Unten ist die Straße und einzige Zufahrt und ein sehr schöner Ausblick über den Fluß. Oben ist ein Steilhang/Berg, der ebenfalls eine grüne Oase ist, aber auch ab 18:00 Uhr die Sonne "wegnimmt". Bis zur Unterkante der alten Garage ist eine Hochwassergefährdung, somit kann das Haus nicht so weit unten (im Südosten) stehen.
Zum Haus:
Uns war wichtig einen unverbaubaren Ausblick zu bekommen, trotzdem noch genügend sonnigen Garten und Licht zu haben. Die Lösung mit der Dachterrasse auf der Garage gefällt uns sehr gut, da wir dadurch den Platz des Garagendaches nicht verloren haben und auch ein direkter Zugang von Garage zum Haus möglich ist.
Wir wollen zwei Vollgeschosse, da wir bereits zum zweiten Mal in einer Wohnung mit Dachschrägen leben und uns das nicht gefällt und an Wohnqualität nimmt. Allerdings wird das Haus dadurch von unten gesehen sehr hoch, man sieht schließlich fast 3 volle Geschosse! 🙁 Somit hat uns der Planer einen Vorschlag gemacht wie man die Höhe nehmen könnte, dieser erste Entwurf gefällt uns aber nicht. Der Gang/Innenhof vor der Haustüre könnte bedrückend wirkend und die Ansicht von unten/vorne wird dadurch unruhig. Vielleicht habt ihr noch gute Ideen? Mir schwebt eine Holzfassade fürs OG vor.
Zu den Grundrissen:
Das Untergeschoss ist für uns von der Aufteilung her fertig. Mal schauen wie ihr das seht 😀
Das EG ist fast fertig. Die Gästebad/Speis/Küchenlösung ist noch nicht ganz Ideal, aber besser als vorher.
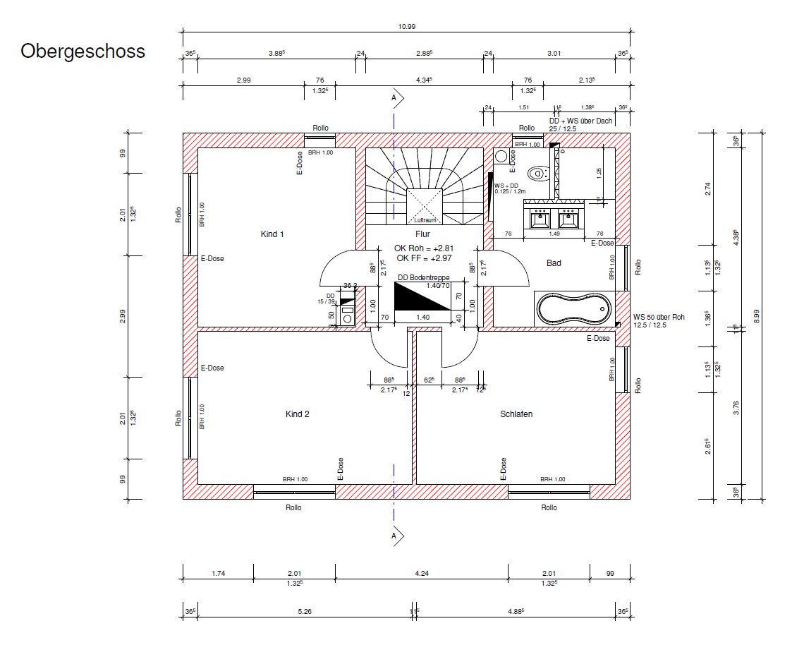
Im OG haben wir noch "wild" die Zimmer getauscht. Schlafzimmer war ursprünglich Kind1. Wir wollen zwei gleich große Kinderzimmer und ggf. eine Ankleide zum Schlafzimmer, oder zumindest die Möglichkeit mit aus dem Bett nicht auf die schrankwand sondern aus dem Fenster zu schauen.
Die Fenster und auch Ansichten gefallen uns so noch gar nicht. Gerade diese große "Über-Eck" Lösung wird auf jeden Fall noch wegkommen.
So, das war jetzt viel Text. Ich hoffe nicht zuu viel und bin sehr gespannt was ihr zu den Entwürfen sagt 🙂 😎
Viele Grüße
ich lese schon seit einiger Zeit mit und habe vor allem auch den Beitrag von Kisska sehr interessiert verfolgt. Bei uns ist es nämlich ähnlich. Wir haben eine Hanglage und haben die Haustüre im Untergeschoss geplant. Es sollen später mal 4 Personen im Haus leben. Aktuell sind wir noch zu zweit.
Wir sind seit April mit unserem Architekten am planen und inzwischen gefällt uns die Innenaufteilung schon gut und auch die Positionierung des Hauses und Garage auf dem Grundstück passt uns so. Die Außenansichten gefallen uns noch gar nicht, ich habe sie aber Vollständigkeitshalber angegeben, damit ihr euch besser vorstellen könnte, wie das Haus später mal auf dem Grundstück steht.
Zum Grundstück:
Es gibt keinen Bebauungsplan, da Altbestand. Ein altes Haus und ein Schuppen wird noch abgerissen. Unten ist die Straße und einzige Zufahrt und ein sehr schöner Ausblick über den Fluß. Oben ist ein Steilhang/Berg, der ebenfalls eine grüne Oase ist, aber auch ab 18:00 Uhr die Sonne "wegnimmt". Bis zur Unterkante der alten Garage ist eine Hochwassergefährdung, somit kann das Haus nicht so weit unten (im Südosten) stehen.
Zum Haus:
Uns war wichtig einen unverbaubaren Ausblick zu bekommen, trotzdem noch genügend sonnigen Garten und Licht zu haben. Die Lösung mit der Dachterrasse auf der Garage gefällt uns sehr gut, da wir dadurch den Platz des Garagendaches nicht verloren haben und auch ein direkter Zugang von Garage zum Haus möglich ist.
Wir wollen zwei Vollgeschosse, da wir bereits zum zweiten Mal in einer Wohnung mit Dachschrägen leben und uns das nicht gefällt und an Wohnqualität nimmt. Allerdings wird das Haus dadurch von unten gesehen sehr hoch, man sieht schließlich fast 3 volle Geschosse! 🙁 Somit hat uns der Planer einen Vorschlag gemacht wie man die Höhe nehmen könnte, dieser erste Entwurf gefällt uns aber nicht. Der Gang/Innenhof vor der Haustüre könnte bedrückend wirkend und die Ansicht von unten/vorne wird dadurch unruhig. Vielleicht habt ihr noch gute Ideen? Mir schwebt eine Holzfassade fürs OG vor.
Zu den Grundrissen:
Das Untergeschoss ist für uns von der Aufteilung her fertig. Mal schauen wie ihr das seht 😀
Das EG ist fast fertig. Die Gästebad/Speis/Küchenlösung ist noch nicht ganz Ideal, aber besser als vorher.
Im OG haben wir noch "wild" die Zimmer getauscht. Schlafzimmer war ursprünglich Kind1. Wir wollen zwei gleich große Kinderzimmer und ggf. eine Ankleide zum Schlafzimmer, oder zumindest die Möglichkeit mit aus dem Bett nicht auf die schrankwand sondern aus dem Fenster zu schauen.
Die Fenster und auch Ansichten gefallen uns so noch gar nicht. Gerade diese große "Über-Eck" Lösung wird auf jeden Fall noch wegkommen.
So, das war jetzt viel Text. Ich hoffe nicht zuu viel und bin sehr gespannt was ihr zu den Entwürfen sagt 🙂 😎
Viele Grüße
Hallo kivaas,
nein das Haus steht noch nicht. Wir hatten erst noch ein altes Haus zum abreißen und konnten erst danach starten.
Aber seit 2 Wochen ist es endlich losgegangen und wir nächste Woche wird die Bodenplatte für den Keller gegossen. Es sieht aber inzwischen doch nochmal anders aus als in den Plänen angegeben. (Siehe mein Profilbild) .
Wir haben aber jetzt schon festgestellt das man bei einem Hanggrundstück wirklich mit Mehrkosten bei der Gründung (Erdaushub ist bei uns fast doppelt so viel gewesen wie bei "normalen" Einfamilienhaus) und der späteren Gartengestaltung rechnen muss. Und auch unser Flachdach auf der Garage ist teurer als ein normales Dach und als wir vermutet hätten. Dafür wurde es jetzt eben eine etwas günstigere Heizungsvariante ;-)
nein das Haus steht noch nicht. Wir hatten erst noch ein altes Haus zum abreißen und konnten erst danach starten.
Aber seit 2 Wochen ist es endlich losgegangen und wir nächste Woche wird die Bodenplatte für den Keller gegossen. Es sieht aber inzwischen doch nochmal anders aus als in den Plänen angegeben. (Siehe mein Profilbild) .
Wir haben aber jetzt schon festgestellt das man bei einem Hanggrundstück wirklich mit Mehrkosten bei der Gründung (Erdaushub ist bei uns fast doppelt so viel gewesen wie bei "normalen" Einfamilienhaus) und der späteren Gartengestaltung rechnen muss. Und auch unser Flachdach auf der Garage ist teurer als ein normales Dach und als wir vermutet hätten. Dafür wurde es jetzt eben eine etwas günstigere Heizungsvariante ;-)
Übriegens, dass mit den Mehrkosten beim Haus am Hang, ist echt heftig. Das sollte jeder sich ganz genau überlegen. Gerade jetzt bei der Gartengestaltung merken wir es auch... Hier drückendens Wasser, da eine Drainage, da doch noch eine Sickergrube, und, und, und... *mussweg*
Hallo Kisska,
nein die endgültigen Werkpläne hatte ich noch nirgends gepostet. Ich hab sie gleich mal hier angehängt 🙂




Außerdem noch die fotorealistischen Ansichten unser Küche, die einfach hammermäßig ausschaut! Bin gespannt wie es dann in echt wird. 😀 🙂

Der Rohbau inkl. Dach und Fenster steht nun. Auch das Flachdach auf der Garage ist seit gestern fertig. Die Elektrorohinstallation ist auch fertig. Wir haben inzwischen den Heizungsraum Verputzen lassen und nur dort den Estrich legen lassen. Sobald der in 2-3 Wochen trocken ist, können wir dort Fliesen legen und die Heizung installieren. Da machen wir dann auch die Sanitär Rohinstallation.
Beim Gartenbau sind wir noch gar nicht angelangt, bzw. nur so halb. Mussten hinter dem Haus als Hangabstützung schon Gabionen setzten, weil die direkt mit de Kran vom Rohbauer hingesetzt wurden. Der Rest vom Garten wird erst nächstes Jahr kommen (wenn wir da überhaupt schon Lust haben....)
nein die endgültigen Werkpläne hatte ich noch nirgends gepostet. Ich hab sie gleich mal hier angehängt 🙂
Außerdem noch die fotorealistischen Ansichten unser Küche, die einfach hammermäßig ausschaut! Bin gespannt wie es dann in echt wird. 😀 🙂
Der Rohbau inkl. Dach und Fenster steht nun. Auch das Flachdach auf der Garage ist seit gestern fertig. Die Elektrorohinstallation ist auch fertig. Wir haben inzwischen den Heizungsraum Verputzen lassen und nur dort den Estrich legen lassen. Sobald der in 2-3 Wochen trocken ist, können wir dort Fliesen legen und die Heizung installieren. Da machen wir dann auch die Sanitär Rohinstallation.
Beim Gartenbau sind wir noch gar nicht angelangt, bzw. nur so halb. Mussten hinter dem Haus als Hangabstützung schon Gabionen setzten, weil die direkt mit de Kran vom Rohbauer hingesetzt wurden. Der Rest vom Garten wird erst nächstes Jahr kommen (wenn wir da überhaupt schon Lust haben....)
Ähnliche Themen