Hallo,
wir haben nun die Pläne vom GU mit der Elektroplanung erhalten.
Das sieht für uns noch etwas sehr mager aus, haben mit der Planung aber auch nicht wirklich Erfahrung und suchen daher kompetente Hilfe in diesem Bereich.
Ich habe die Pläne mal hier angehängt.
Was könnt ihr hier für Ratschläge geben?
Auch sind wir uns noch wegen den Accesspoints unschlüssig. Der Router wird wohl im UG im Technikraum platziert werden.
Genügt 1 Accesspoint im 1. OG im Flur für das ganze Haus?
Ich hatte hier an Netgear WAX630 oder WBE750 gedacht, also eigentlich schon was stärkeres.
Vielen Dank
Mfg Benno



wir haben nun die Pläne vom GU mit der Elektroplanung erhalten.
Das sieht für uns noch etwas sehr mager aus, haben mit der Planung aber auch nicht wirklich Erfahrung und suchen daher kompetente Hilfe in diesem Bereich.
Ich habe die Pläne mal hier angehängt.
Was könnt ihr hier für Ratschläge geben?
Auch sind wir uns noch wegen den Accesspoints unschlüssig. Der Router wird wohl im UG im Technikraum platziert werden.
Genügt 1 Accesspoint im 1. OG im Flur für das ganze Haus?
Ich hatte hier an Netgear WAX630 oder WBE750 gedacht, also eigentlich schon was stärkeres.
Vielen Dank
Mfg Benno
H
Haus Luni17.07.24 13:50MachsSelbst schrieb:
Bei den Steckdosen... wenn ihr schon sicher wisst, wie möbliert werden sollen, kann man die Steckdosen so setzen, dass es passt.Das ist ein sehr guter Punkt. Idealerweise solltet Ihr alle Positionen bemaßen. Ich war bei uns vor Ort als der Elektriker die Löcher bohren wollte. Die haben keine Zeit um großartig nachzudenken oder einzuzeichnen und dann bohrt er nach Gefühl.
Bei mir habe ich dann alle Löcher angezeichnet... Damals habe ich gedacht die messen irgendwie die Mitte des Raumes aus aber nein die Stellen sich einfach in die Mitte und machen das Pi mal Auge.
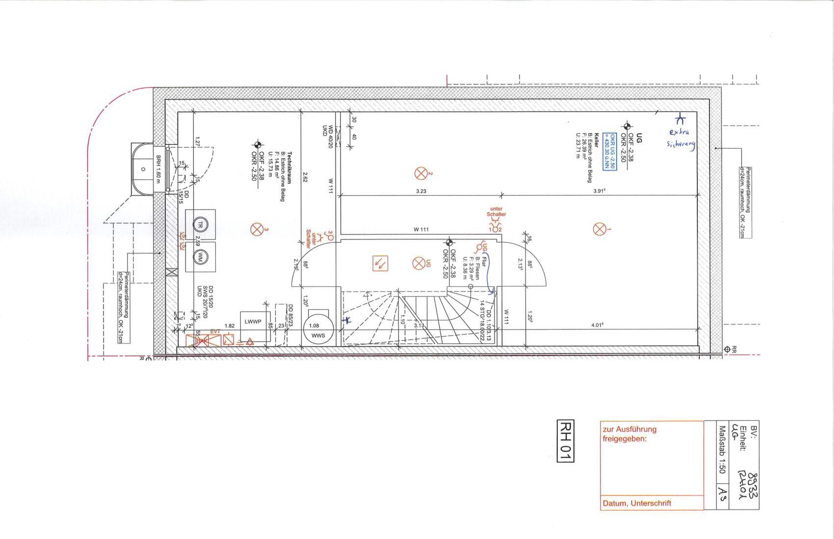
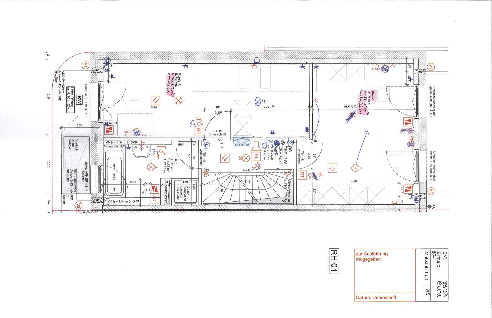
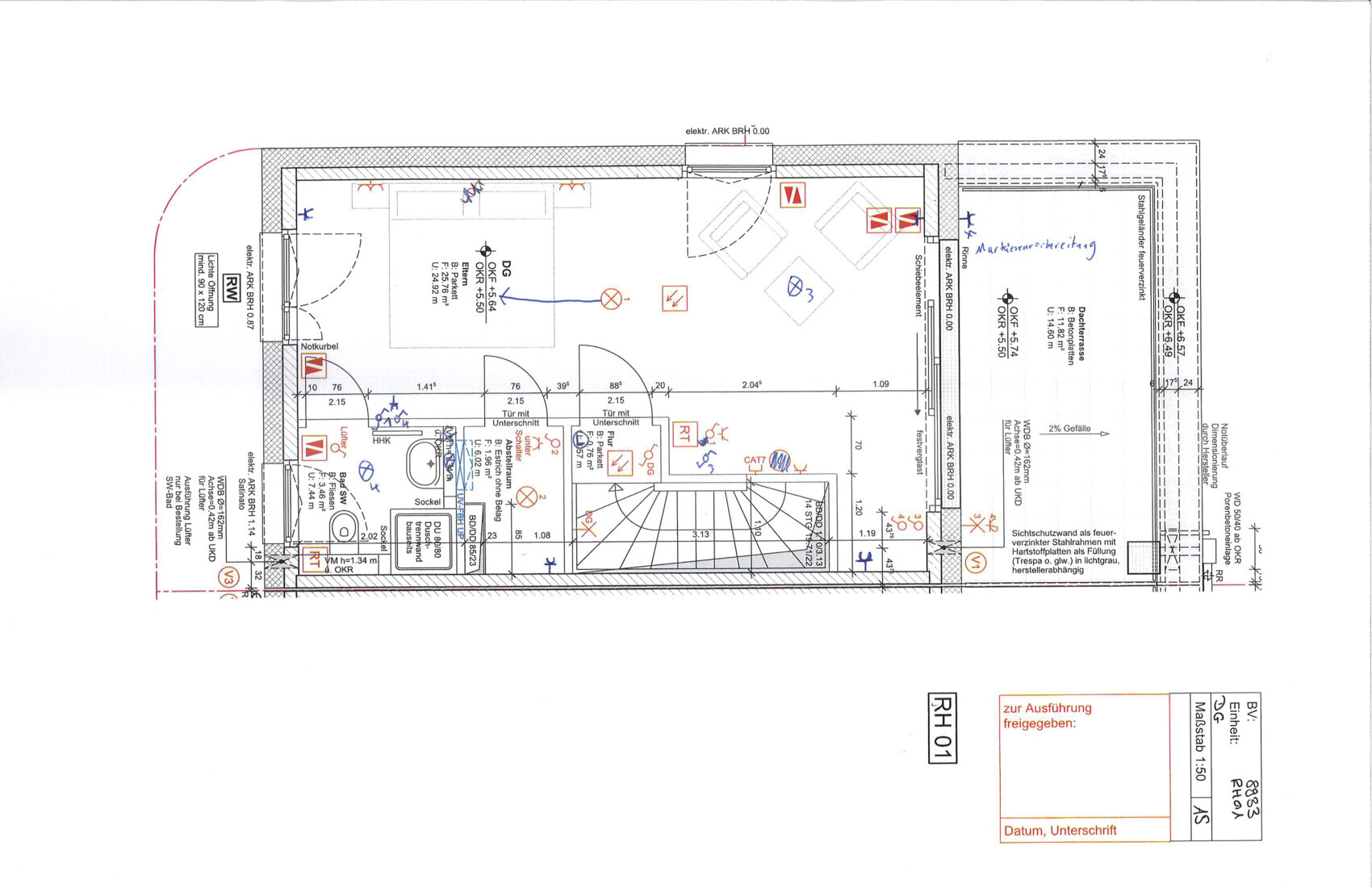
Hallo,
vielen Dank für die zahlreichen Rückmeldungen.
Ich habe nun versucht alles so weit zu übernehmen und mal wild drauf los geplant.
Die genauen Maße werden noch in ein Plan von unserem GU eingezeichnet.
Es geht mir aktuell mehr um eine grobe Planung um nichts zu vergessen.
Im Keller habe ich absichtlich nicht so viel geplant. Hier werden die Kabel auf Putz verlegt und können kostengünstiger selbst im nachgang installiert werden.
Ich bin auf euer Feedback gespannt.
Lg Benno




vielen Dank für die zahlreichen Rückmeldungen.
Ich habe nun versucht alles so weit zu übernehmen und mal wild drauf los geplant.
Die genauen Maße werden noch in ein Plan von unserem GU eingezeichnet.
Es geht mir aktuell mehr um eine grobe Planung um nichts zu vergessen.
Im Keller habe ich absichtlich nicht so viel geplant. Hier werden die Kabel auf Putz verlegt und können kostengünstiger selbst im nachgang installiert werden.
Ich bin auf euer Feedback gespannt.
Lg Benno
Mal ab von der Elektroplanung. Dir ist klar, dass du im DG vom Schlafzimmer auf die Dachterrasse eine 10cm hohe Stufe bekommst? Auf was bezieht sich eigentlich die Brüstungshöhe 0,00 bei der Schiebetür im DG? Insgesamt kommt mir der Bodenaufbau auf der Dachterrasse etwas dünn vor bzw. ist dieses Maß nur bis OK der Dämmung?
Ähnliche Themen