ᐅ Elektro- und Türenfragen
Erstellt am: 16.06.15 21:34
Hallo zusammen,
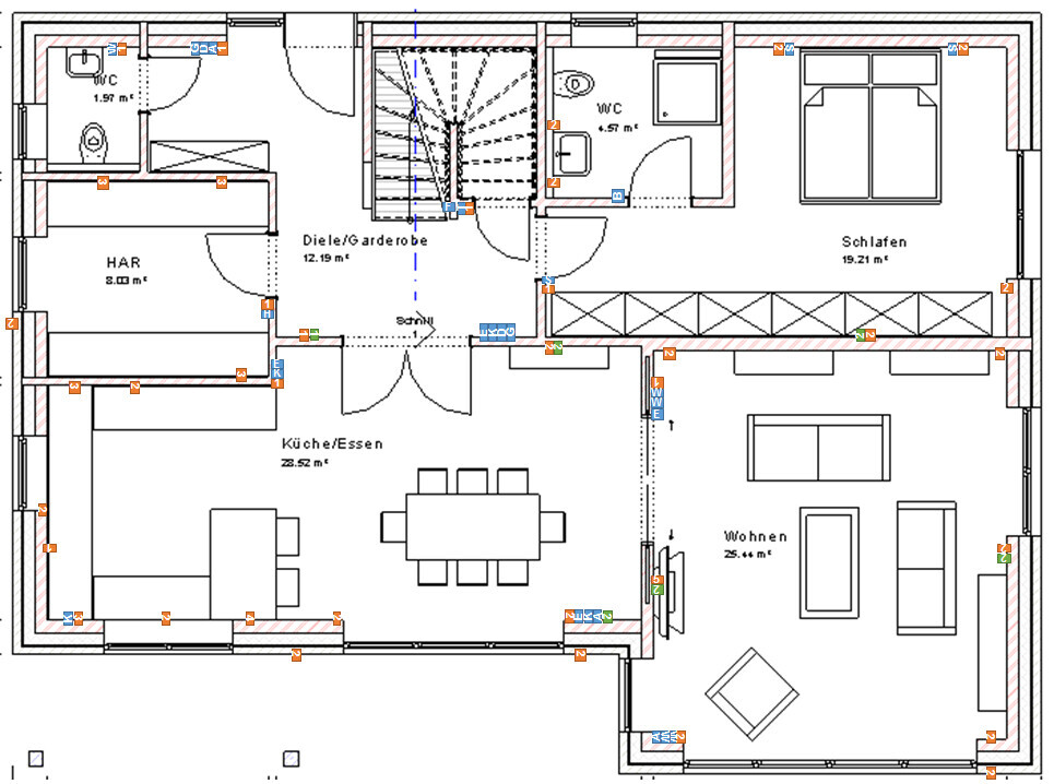
ich habe mir mal Yvonnes PDF und eure Kommentare im Steckdosenthema zu Herzen genommen und versucht die Steckdosen und Schalter zu platzieren. Macht das so Sinn? Bin mal so im Kopf alle Laufwege durchgegangen und hab über mögliche Geräte nachgedacht.
Was mich noch etwas mehr beschäftigt sind die Türen.. .einmal die Fenstertüren in der Küche nach draußen und einmal die Aufwandschiebetür zwischen Wohnzimmer und Küche.
Bei den Fenstertüren nach draußen vor allem welche Elemente da öffenbar sein sollen - oder doch eine Schiebetür?
Bei der Tür von Wohnzimmer zu Küche hab ich etwas Bauchweh, da ich noch keine schöne Aufwand-Doppelschiebetür gefunden habe... Doppelflügeltür ginge natürlich auch, frisst halt Platz. Was meint ihr?
Wie ist es eingetlich generell? Ist ein Flügel generell immer auf? Oder gar beide? (das bezieht sich auch etwas auf die Tür zwischen Diele und Essbereich. In unserer Wohnung sind glaub ich alle Türen immer auf...
Danke für euren Input. Ich hoffe man kann alles zu halbwegs erkennen (Legende steht unter dem Bild)
W=Wohnzimmer (2 Schalter)
S=Schlafzimmer
T=Unter der Treppe
F=Flur OG
D=Diele EG
G=Garderobe
W=WC (im WC;))
K=Küche
E=Essen
A=Außen
H=HAR
B= BAD EG
Grün=Netzwerk
Orange=Steckdosen
Blau = Schalter
Zahl = Anzahl
ich habe mir mal Yvonnes PDF und eure Kommentare im Steckdosenthema zu Herzen genommen und versucht die Steckdosen und Schalter zu platzieren. Macht das so Sinn? Bin mal so im Kopf alle Laufwege durchgegangen und hab über mögliche Geräte nachgedacht.
Was mich noch etwas mehr beschäftigt sind die Türen.. .einmal die Fenstertüren in der Küche nach draußen und einmal die Aufwandschiebetür zwischen Wohnzimmer und Küche.
Bei den Fenstertüren nach draußen vor allem welche Elemente da öffenbar sein sollen - oder doch eine Schiebetür?
Bei der Tür von Wohnzimmer zu Küche hab ich etwas Bauchweh, da ich noch keine schöne Aufwand-Doppelschiebetür gefunden habe... Doppelflügeltür ginge natürlich auch, frisst halt Platz. Was meint ihr?
Wie ist es eingetlich generell? Ist ein Flügel generell immer auf? Oder gar beide? (das bezieht sich auch etwas auf die Tür zwischen Diele und Essbereich. In unserer Wohnung sind glaub ich alle Türen immer auf...
Danke für euren Input. Ich hoffe man kann alles zu halbwegs erkennen (Legende steht unter dem Bild)
W=Wohnzimmer (2 Schalter)
S=Schlafzimmer
T=Unter der Treppe
F=Flur OG
D=Diele EG
G=Garderobe
W=WC (im WC;))
K=Küche
E=Essen
A=Außen
H=HAR
B= BAD EG
Grün=Netzwerk
Orange=Steckdosen
Blau = Schalter
Zahl = Anzahl
Moin Moin
Die Fenstertüren würde ich so aufteilen
Essen Tür fest fest
Wohnen fest fest Tür Tür fest Tür Tür
Warum keine innen liegende Schiebetür? Lässt sich doch besser möblieren.
Bei der Tür Diele Essen würde ich vermuten, das diese meist beidseitig geöffnet ist.
Um die ELT Installation zu beurteilen wäre es nicht schlecht die Einrichtung/ Verbraucher zu kennen.
Olli
Die Fenstertüren würde ich so aufteilen
Essen Tür fest fest
Wohnen fest fest Tür Tür fest Tür Tür
Warum keine innen liegende Schiebetür? Lässt sich doch besser möblieren.
Bei der Tür Diele Essen würde ich vermuten, das diese meist beidseitig geöffnet ist.
Um die ELT Installation zu beurteilen wäre es nicht schlecht die Einrichtung/ Verbraucher zu kennen.
Olli
J
Jochen10417.06.15 09:29Hallo,
einfach mal etwas durcheinander aber so wie es mir aufgefallen ist:
Sind das in der Küche nur die Steckdosen für die Arbeitsfläche oder auch die für deine Einbau-Elektrogeräte? Im ersten Fall fände ich das etwas viel. Im zweiteren kommt es natürlich auf deine Kücheneinrichtung an.
Ich würde mir auch überlegen Diele und Garderobe im EG zusammen zu schalten. Sonst musst du auf dem Weg zum Gäste-WC immer zwei Schalter an machen und das kann nerven. Und auf das bisschen Strom im Fall das du die Garderobe mal nicht brauchst, kommt es dir hoffentlich nicht an :-) Zudem sind zu viele Schalter auch nicht so schön (siehe weiter unten).
Zwei Kreise im Wohnzimmer haben wir auch - find ich gut.
Die eine Netzwerkdose im Flur ist vermutlich für das Telefon? Die Netzwerkdosen sind in der Regel sowieso immer Doppeldosen (2 Anschlüsse). Da würde ich auch überall eine Doppeldose hinsetzten.
Bekommt euere Beleuchtung vor der Haustür einen Bewegungsmelder? Wenn gewünscht, denkt auch hier an die Verkabelung.
Zum Thema Haustür: Bekommt ihr eine Sprechanlage / Türklingel? Auch hier an die Kabel denken. Bei uns wird diese z. B. auch über den Verteilerkasten gelenkt, so dass ich die Position später von dort aus immer noch versetzten kann.
Beim Hauswirtschaftsraum kommt es auch darauf an, was wo hin kommt. Hier haben wir unsere Dosen alle auf die mittlere Ebene (Höhe des Lichtschalters setzten lassen. Wenn du dir noch nicht sicher bist, wie der Hauswirtschaftsraum eingerichtet wird, würde ich die Dosen an der unteren Wand mittig setzten. Ggf. reichen dort auch Doppeldosen.
Für die Außenbeleuchtung solltest du dir auch überlegen, wo welche Lampe hin soll.
Zudem an das Kabel für das Gartenhaus denken.
Uns war auch wichtig, dass die Schalter nicht so da hin geklatscht aussehen und das es einigermaßen symmetrisch aussieht. Da haben wir in den sichtbaren Bereichen darauf geachtet, dass nicht mehr wie 3 Schalter/Dosen zusammen liegen (dann eher mal noch die Steckdose nach unten gesetzt). Das könnte bei dir im Wohn- und Esszimmer eng werden. Dabei musst du auch die Schalter für die elektrischen Rollladen beachten.
So, das mal für den ersten Input ;-)
einfach mal etwas durcheinander aber so wie es mir aufgefallen ist:
Sind das in der Küche nur die Steckdosen für die Arbeitsfläche oder auch die für deine Einbau-Elektrogeräte? Im ersten Fall fände ich das etwas viel. Im zweiteren kommt es natürlich auf deine Kücheneinrichtung an.
Ich würde mir auch überlegen Diele und Garderobe im EG zusammen zu schalten. Sonst musst du auf dem Weg zum Gäste-WC immer zwei Schalter an machen und das kann nerven. Und auf das bisschen Strom im Fall das du die Garderobe mal nicht brauchst, kommt es dir hoffentlich nicht an :-) Zudem sind zu viele Schalter auch nicht so schön (siehe weiter unten).
Zwei Kreise im Wohnzimmer haben wir auch - find ich gut.
Die eine Netzwerkdose im Flur ist vermutlich für das Telefon? Die Netzwerkdosen sind in der Regel sowieso immer Doppeldosen (2 Anschlüsse). Da würde ich auch überall eine Doppeldose hinsetzten.
Bekommt euere Beleuchtung vor der Haustür einen Bewegungsmelder? Wenn gewünscht, denkt auch hier an die Verkabelung.
Zum Thema Haustür: Bekommt ihr eine Sprechanlage / Türklingel? Auch hier an die Kabel denken. Bei uns wird diese z. B. auch über den Verteilerkasten gelenkt, so dass ich die Position später von dort aus immer noch versetzten kann.
Beim Hauswirtschaftsraum kommt es auch darauf an, was wo hin kommt. Hier haben wir unsere Dosen alle auf die mittlere Ebene (Höhe des Lichtschalters setzten lassen. Wenn du dir noch nicht sicher bist, wie der Hauswirtschaftsraum eingerichtet wird, würde ich die Dosen an der unteren Wand mittig setzten. Ggf. reichen dort auch Doppeldosen.
Für die Außenbeleuchtung solltest du dir auch überlegen, wo welche Lampe hin soll.
Zudem an das Kabel für das Gartenhaus denken.
Uns war auch wichtig, dass die Schalter nicht so da hin geklatscht aussehen und das es einigermaßen symmetrisch aussieht. Da haben wir in den sichtbaren Bereichen darauf geachtet, dass nicht mehr wie 3 Schalter/Dosen zusammen liegen (dann eher mal noch die Steckdose nach unten gesetzt). Das könnte bei dir im Wohn- und Esszimmer eng werden. Dabei musst du auch die Schalter für die elektrischen Rollladen beachten.
So, das mal für den ersten Input ;-)
S
Sebastian7917.06.15 12:15Ich würde mich überlegen, ob die Terrassentüren wirklich zweiflüglig mit Stulp gemacht werden müssen. Wir habe das jetzt in der Mietwohnung und abgesehen davon, dass wir aufgrund der hohen Flügelmaße (Höhe) sind die erstmal recht dick und nicht sonderlich stabil - sie verziehen sich auch im Sommer/Winter stark.
Wir haben die Stulp-Funktion praktisch noch nie genutzt und es gibt auch keine echte Praxissituation, wo man 2 Meter Durchgangsbreite braucht. Klar, viele wünschen sich das (wir erst auch), aber rational betrachtet ist das eine Funktion, die man kaum nutzt, die extra kostet, die nicht so stabil und winddicht ist, wie eine echte Rahmentür.
Deshalb haben wir zweimal auf den Stulp verzichtet und jeweils nur ein Festelement mit einer Tür kombiniert - preislich natürlich etwas günstiger, wobei das nicht ausschlaggebend war.
Wir haben die Stulp-Funktion praktisch noch nie genutzt und es gibt auch keine echte Praxissituation, wo man 2 Meter Durchgangsbreite braucht. Klar, viele wünschen sich das (wir erst auch), aber rational betrachtet ist das eine Funktion, die man kaum nutzt, die extra kostet, die nicht so stabil und winddicht ist, wie eine echte Rahmentür.
Deshalb haben wir zweimal auf den Stulp verzichtet und jeweils nur ein Festelement mit einer Tür kombiniert - preislich natürlich etwas günstiger, wobei das nicht ausschlaggebend war.
Ähnliche Themen