Einfamilienhaus Staffelgeschoss Fertigbauweise

4,40 Stern(e) 5 Votes
Zuletzt aktualisiert 20.11.2025
Sie befinden sich auf der Seite 5 der Diskussion zum Thema: Einfamilienhaus Staffelgeschoss Fertigbauweise
>> Zum 1. Beitrag <<

11ant

11ant

Sollte der Architekt doch mehr alleine entscheiden? Was soll ich ihm sagen? „Staffelgeschoss, offene Küche und Platz für 3-4 Personen... dann mach mal“?
Lieber nicht - ein GU-Zeichenknecht taugt nicht als vollwertiger Architekt, diese Erkenntnis ist kein Spezifikum von Steinbau-GU. Aber Ihr solltet schauen, ob sich keine Euren Wünschen nähere Kataloggrundlage findet, ehe Ihr eine so stark umfeilt.
 
kbt09

kbt09

Wenn die Ankleide zentraler Durchgangsplatz ist, würde ich Schränke mit Türen planen. Günstig ist da halt Ikea-Pax und da sind die Standardmaße 50, 75, 100. 240 cm bekommt man nicht am Stück. Schiebetüren ... 150, 200 Breite.

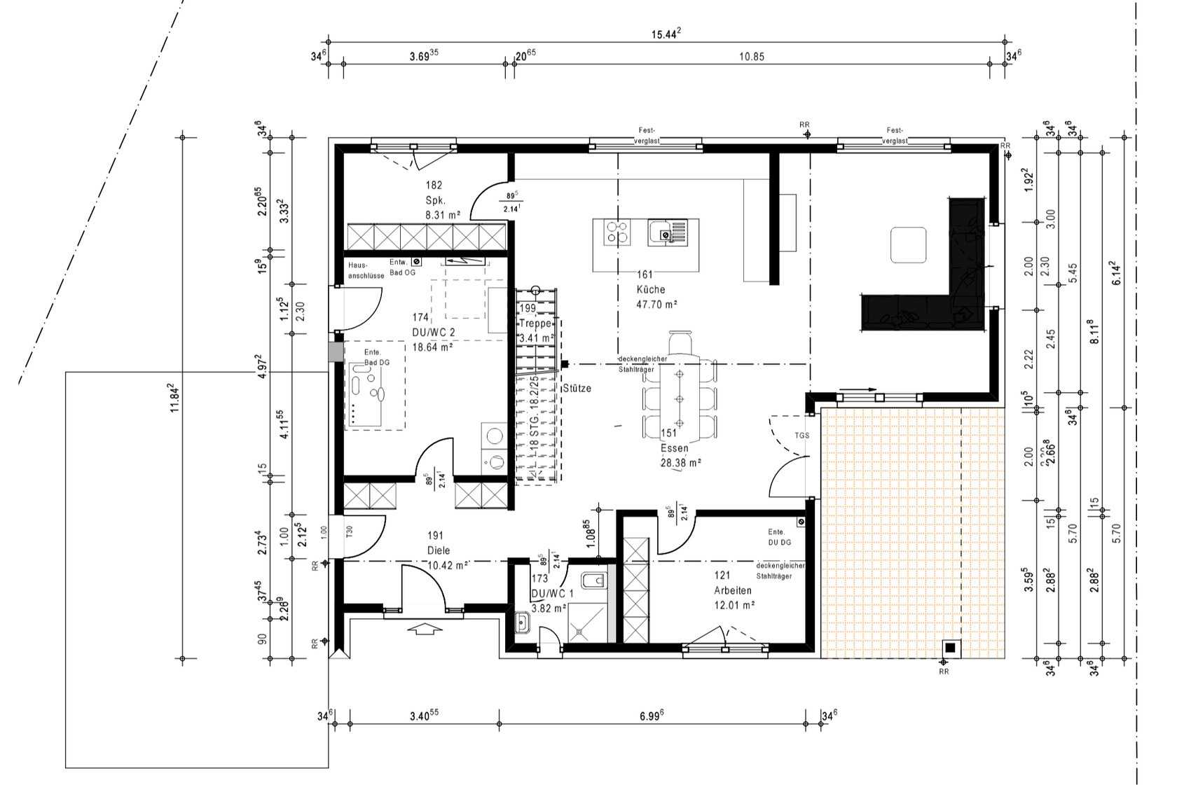
Den EG-Ansatz aus Beitrag 16 finde ich übrigens schon wesentlich gelungener. Zum Wohnzimmer soll sicherlich hinter den Küchenschränken eine Trennwand sein - oder?
 
H

heilmaenner

Hi. Danke erneut für eure hilfreichen Beiträge
Ich habe mal Fotos eingestellt vom Grundstück. Den Grundriss im EG haben wir überarbeiten lassen, am OG sind wir noch dran. Wir denken darüber nach, den Erker nach planunten zu versetzen und dann den Garten eher auf Süd/Südost zu verlagern. Dann das Haus ganz in den Westen zu stellen mit den 3m Abstand zur Straße, vor der Garage sollten/müssen es ja 5m sein. Die Straße ist übrigens eine Anwohnerstraße, Durchfahrtsverkehr wird es dort voraussichtlich nicht geben.

Die Raumhöhe beträgt übrigens 2,80m, die Fenster und Türen sind 2,40m hoch (wenn ich mich bei Letzterem richtig erinnere).

Weitläufiges Feld mit Bäumen am Rand, blauer Himmel, Blick nach Osten.


Offenes Feld, rechts Baukran und Baugebiet, Häuser, blauer Himmel mit Wolken, Blick nach Süden


Blick über eine Wiese zum Friedhof mit Grabsteinen, Bäumen und blauem Himmel.


Feld mit Häusern am Horizont, zwei Fahrräder liegen, Person am Straßenrand, blauer Himmel.


Feld mit umgekipptem Fahrrad, Häuser am Horizont, Wolken und Abendsonne.


Grundriss eines Hauses mit Küche, Essbereich, Arbeiten, Diele, Bad und Terrasse.


Lageplan des Friedhofs mit nummerierten Parzellen; gelb markierte Fläche.
 
Zuletzt aktualisiert 20.11.2025
Im Forum Grundrissplanung / Grundstücksplanung gibt es 2535 Themen mit insgesamt 87977 Beiträgen


Ähnliche Themen zu Einfamilienhaus Staffelgeschoss Fertigbauweise
Nr.ErgebnisBeiträge
1Welche Fenster und Türen empfehlenswert? - Seite 321
2Türen: lichte Höhe 13
3Fenster / Türen / Garderobe 13
4Kontrollierte-Wohnraumlüftung: Luftspalt unter den Türen erforderlich? 27
5Das leidige Thema viel benutzter Türen bei Küchenschränken 16
6Ikea BRUSALI - Türen re und li passen nicht - Zapfen zu kurz? 10
7Ikea Pax Auli/Färvirk Türen - Schubladen stoßen vor Schiebetür 14
8Ikea Faktum Dämpfung für Türen verfügbar? - Seite 212
9IKEA PAX Fardal dreckige Türen Schmutzfänger 15
10Ankleide - Schrank mit oder ohne Türen? - Seite 227
11Stumpfeinschlagende Türen - Anschlag links oder rechts!? 32
12Abstand zwischen Türen und Böden 25mm 17
13Preisunterschiede Fenster, Türen 11
14Passen hohe Türen zu einer „normalen“ Raumhöhe? 20
15Zwei Türen zur Diele berühren sich - Seite 231
16Türen und Zargen von unterschiedlichen Shops? 24
17Gleiche oder unterschiedliche Türen im Haus 23
18Kann man diese Türen bzw. Zargen lackieren? Oder neu? 11
19Türen in unserem EG nötig? Grundriss angehängt 36
20Dunkler Boden, helle Türen: beißt sich das? 29

Oben