molchi schrieb:
Fensterbereiche in der Hausecke Südwest im EG so !wirken!, als wenn dies dem natürlichen Gefühl von Stabilität entgegensteht.
So solle man lieber an der Südwest-Ecke auch noch eine sichtbares Mauerstück (glasfrei) einsetzen.
Nochmal zur Verdeutlichung, es geht lediglich um das ,stabile Gefühl' und nicht um Statik.Wenn die Statik geklärt ist, geht es wohl nur noch um Geschmack. Das kann dir keiner abnehmen.
Ich find's zum Süden hin schön, es wirkt sehr offen. Mich würden da eher so manch anderes Fenster stören.
Wer hat euch denn ein solches Modell gebastelt?
Guten Morgen!
Wieso, ist das Modell nicht gelungen?!
Im Ernst, das habe ich gebastelt, damit man aus den Entwürfen heraus auch nochmal etwas Dreidimensionales hat. Profis machen das natürlich besser!
WelchesFenster stört noch?
Yvonne, du meinst sicher der oberen drei Fenster auf der Südseite, bzgl. klobig.
Ich empfinde es ähnlich. Da muss ich nochmal ran!
Freue mich auf jeden Hinweis!
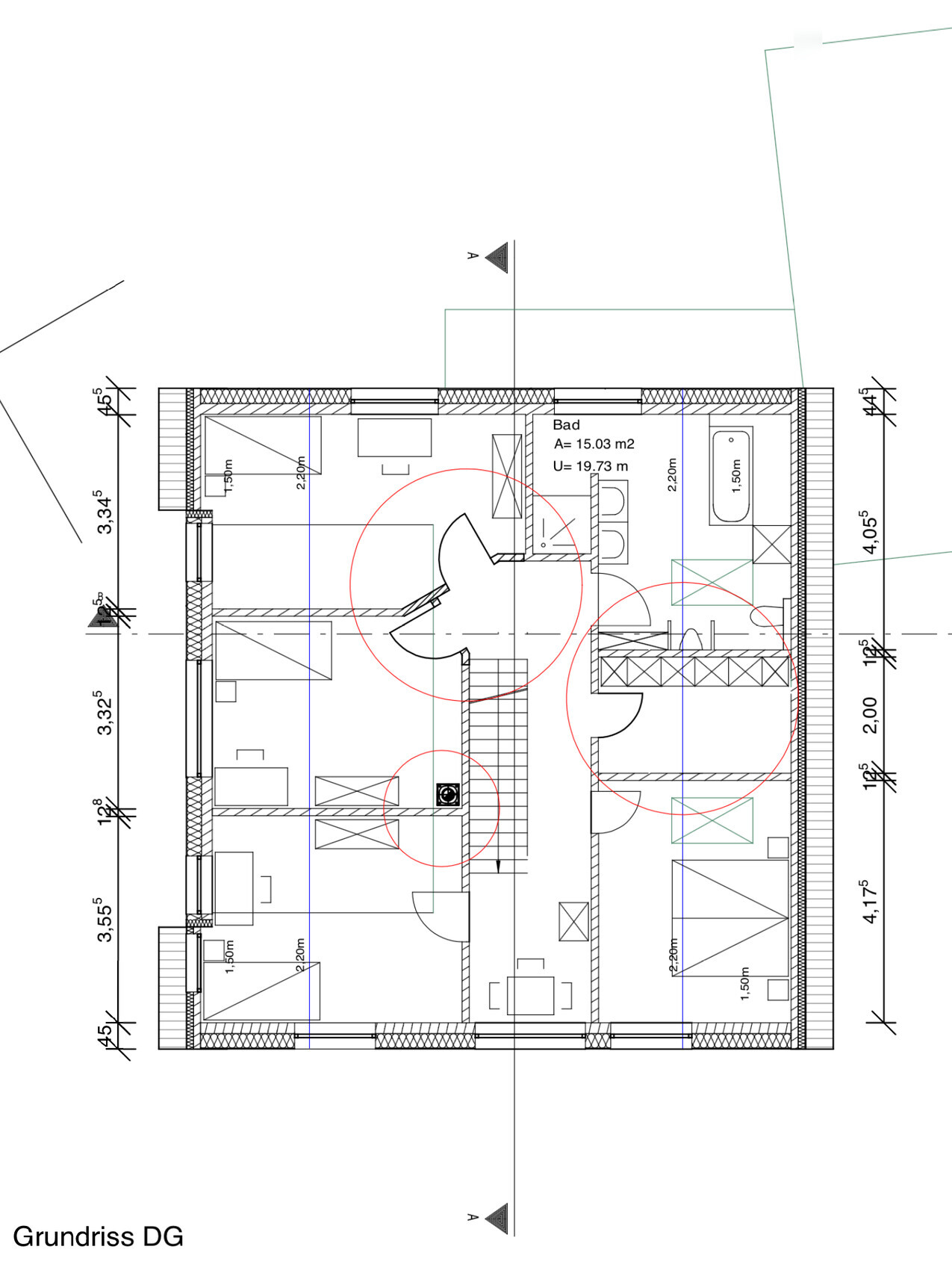
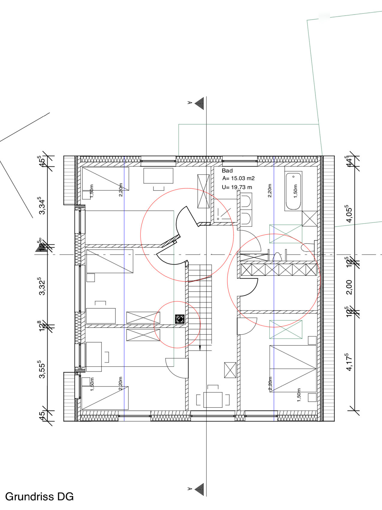
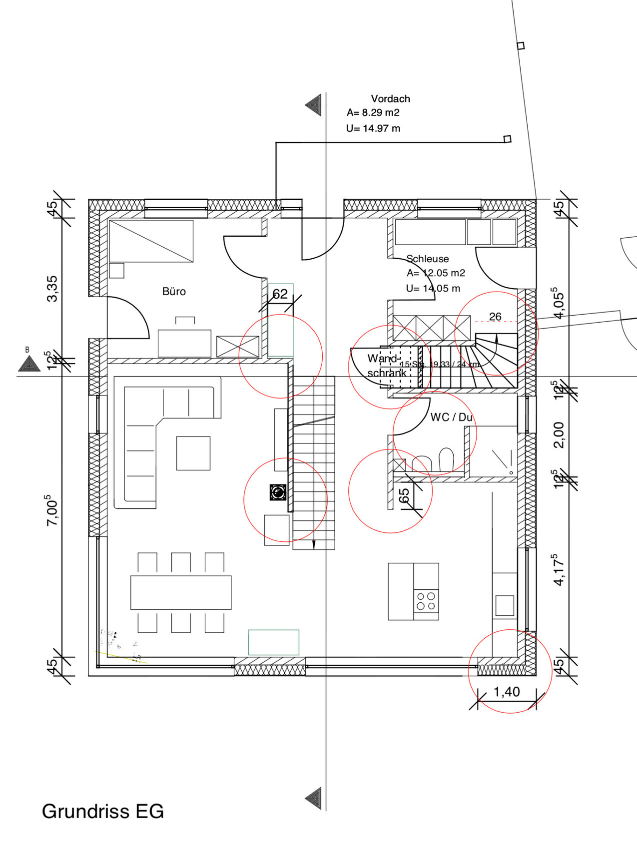
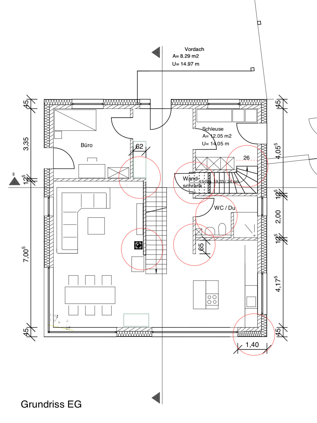
Hänge auch nochmal die Grundrisse für EG und OG angehängt, damit man die Fensterzugehörigkeiten erkennen kann.
Viel Glück


Wieso, ist das Modell nicht gelungen?!
Im Ernst, das habe ich gebastelt, damit man aus den Entwürfen heraus auch nochmal etwas Dreidimensionales hat. Profis machen das natürlich besser!
WelchesFenster stört noch?
Yvonne, du meinst sicher der oberen drei Fenster auf der Südseite, bzgl. klobig.
Ich empfinde es ähnlich. Da muss ich nochmal ran!
Freue mich auf jeden Hinweis!
Hänge auch nochmal die Grundrisse für EG und OG angehängt, damit man die Fensterzugehörigkeiten erkennen kann.
Viel Glück
Ähnliche Themen