ᐅ Einfamilienhaus am leichten Hang: Wasserschadengefahr noch gegeben?
Erstellt am: 27.07.19 12:26
C
crionHallo zusammen!
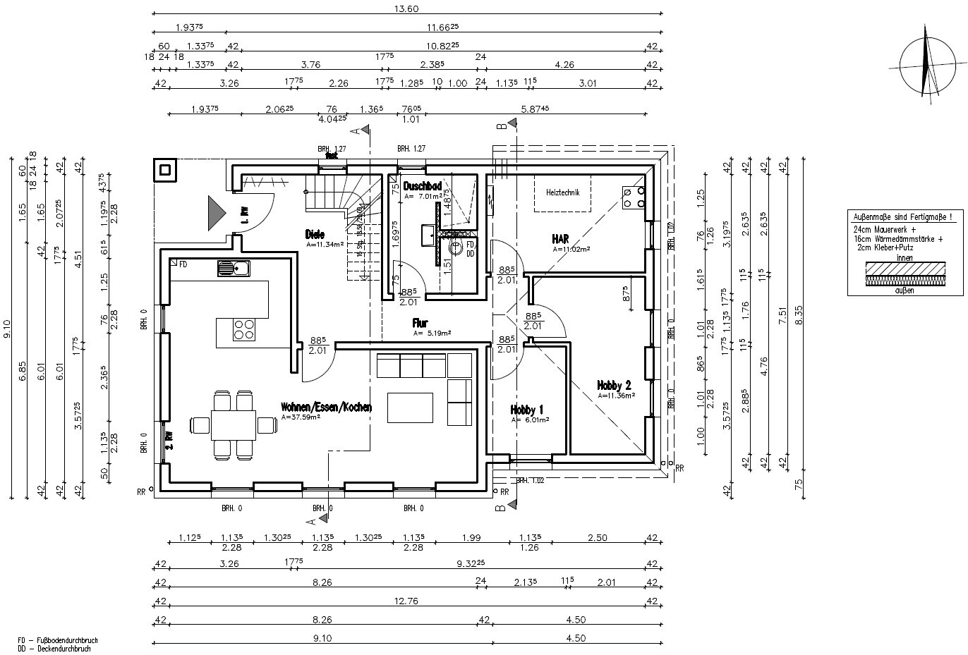
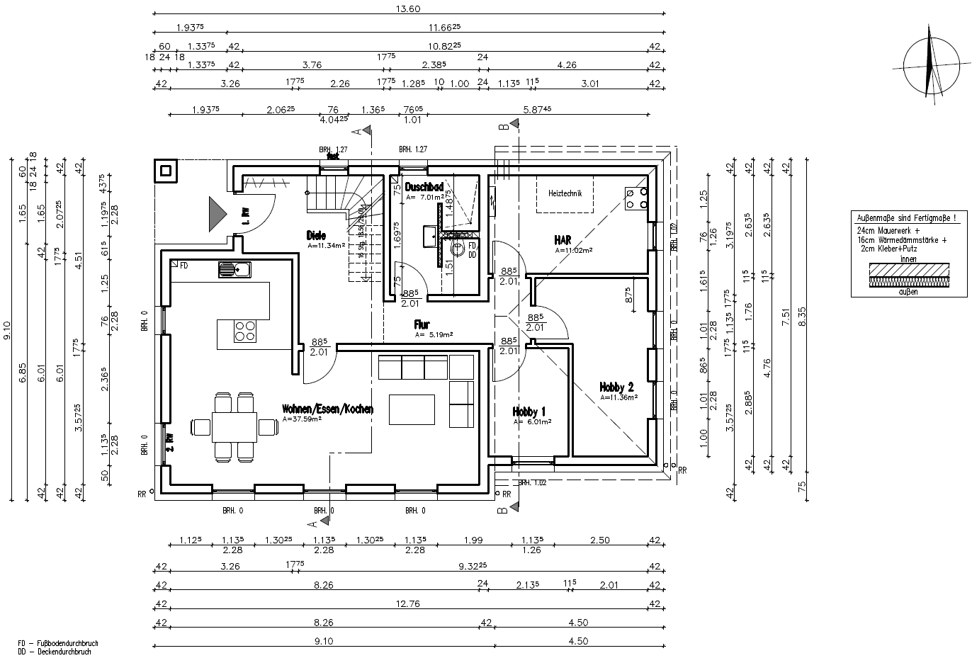
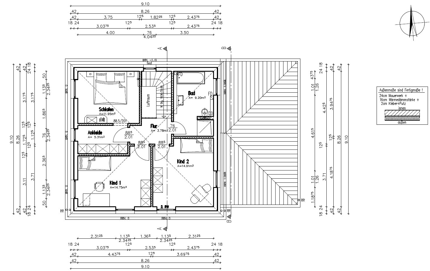
Bevor hier wieder über 30° aus- und ich zusammenbreche(n): Gestern kamen unsere voraussichtlich nun finalen Hauszeichnungen
Einen Keller gibt es bei uns nicht, es ist das Baugebiet Dannensee in Bovenden direkt neben Göttingen (Weende Nord).
Die wichtigste Änderung in diesen Zeichnungen war aus meiner Sicht, dass wir zusammen mit der sehr guten und schnellen Bauzeichnerin entschieden haben, das gesamte Häuschen 50 cm höher zu setzen.
Im Lageplan sehr Ihr, dass wir auf das Haus bezogen von Nordwesten aus gesehen einen Anstieg um 50 cm nach Osten, um 40 cm nach Süden und um 90 cm nach Südosten haben.
In der Süd-West und in der Süd-Ost Ansicht ist nun jeweils noch eine Drainage übrig geblieben, allerdings gestrichelt.
Telefonisch-mündlich hieß es dazu, dass wir auf die Drainagen verzichten könnten, wenn sie (werauchimmer...) das Gelände um das Haus herum entsprechend bearbeiten würden.
Was sagen Eure Erfahrungen:
1. Ist die Höhe des Hauses so ausreichend, damit wir nicht irgendwann unterwasser stehen?
Der maximalen Firsthöhe folgend ginge es noch Max. 100 cm weiter nach oben...
2. Wie muss das Gelände - vermutlich an der Südwestseite - "modelliert" werden, damit wir auf Drainagen verzichten können?
3. Was werden wir hier auf den Tonuntergrund (nach ca. 45 cm Mutterboden & Schluff) aufschütten müssen und mit welchen Kosten werden wir *etwa* dafür inkl. Verdichtung rechnen müssen?
Danke Euch im Voraus!
Beste Grüße,
Christian







Bevor hier wieder über 30° aus- und ich zusammenbreche(n): Gestern kamen unsere voraussichtlich nun finalen Hauszeichnungen
Einen Keller gibt es bei uns nicht, es ist das Baugebiet Dannensee in Bovenden direkt neben Göttingen (Weende Nord).
Die wichtigste Änderung in diesen Zeichnungen war aus meiner Sicht, dass wir zusammen mit der sehr guten und schnellen Bauzeichnerin entschieden haben, das gesamte Häuschen 50 cm höher zu setzen.
Im Lageplan sehr Ihr, dass wir auf das Haus bezogen von Nordwesten aus gesehen einen Anstieg um 50 cm nach Osten, um 40 cm nach Süden und um 90 cm nach Südosten haben.
In der Süd-West und in der Süd-Ost Ansicht ist nun jeweils noch eine Drainage übrig geblieben, allerdings gestrichelt.
Telefonisch-mündlich hieß es dazu, dass wir auf die Drainagen verzichten könnten, wenn sie (werauchimmer...) das Gelände um das Haus herum entsprechend bearbeiten würden.
Was sagen Eure Erfahrungen:
1. Ist die Höhe des Hauses so ausreichend, damit wir nicht irgendwann unterwasser stehen?
Der maximalen Firsthöhe folgend ginge es noch Max. 100 cm weiter nach oben...
2. Wie muss das Gelände - vermutlich an der Südwestseite - "modelliert" werden, damit wir auf Drainagen verzichten können?
3. Was werden wir hier auf den Tonuntergrund (nach ca. 45 cm Mutterboden & Schluff) aufschütten müssen und mit welchen Kosten werden wir *etwa* dafür inkl. Verdichtung rechnen müssen?
Danke Euch im Voraus!
Beste Grüße,
Christian
H
hampshire27.07.19 13:061. Höhe des Hauses - Bei den sich ändernden Wetterlagen ist das eine Wette. Ich würde diese eingehen und das Haus für hoch genug erachten.
2. Drainage - einfach mit machen lassen, an dem Ende würde ich aufgrund einer mündlichen Aussage nicht sparen.
3. Kosten Aufschütten - kann dazu leider nichts sagen.
2. Drainage - einfach mit machen lassen, an dem Ende würde ich aufgrund einer mündlichen Aussage nicht sparen.
3. Kosten Aufschütten - kann dazu leider nichts sagen.
H
hemali200328.07.19 06:51hampshire schrieb:
1. Höhe des Hauses - Bei den sich ändernden Wetterlagen ist das eine Wette. Ich würde diese eingehen und das Haus für hoch genug erachten.
2. Drainage - einfach mit machen lassen, an dem Ende würde ich aufgrund einer mündlichen Aussage nicht sparen.
3. Kosten Aufschütten - kann dazu leider nichts sagen.Da stimme ich zu.Die voraussichtlichen Kosten wirst du nur erfahren, wenn du es konkret beim Tiefbauer anfragst.