ᐅ Einfamilienhaus, ~160m², Bauhausstil; Erster Entwurf nach unseren Wünschen
Erstellt am: 23.08.19 22:03
N
Notstromivenh0 schrieb:
Die Insel ist blöd. Unter 2,50m Breite würde ich es sein lassen.
Streiche die Zeile mit den Unterschränken. Drehe die Insel und ziehe die Hochschränke bis ins Eck.
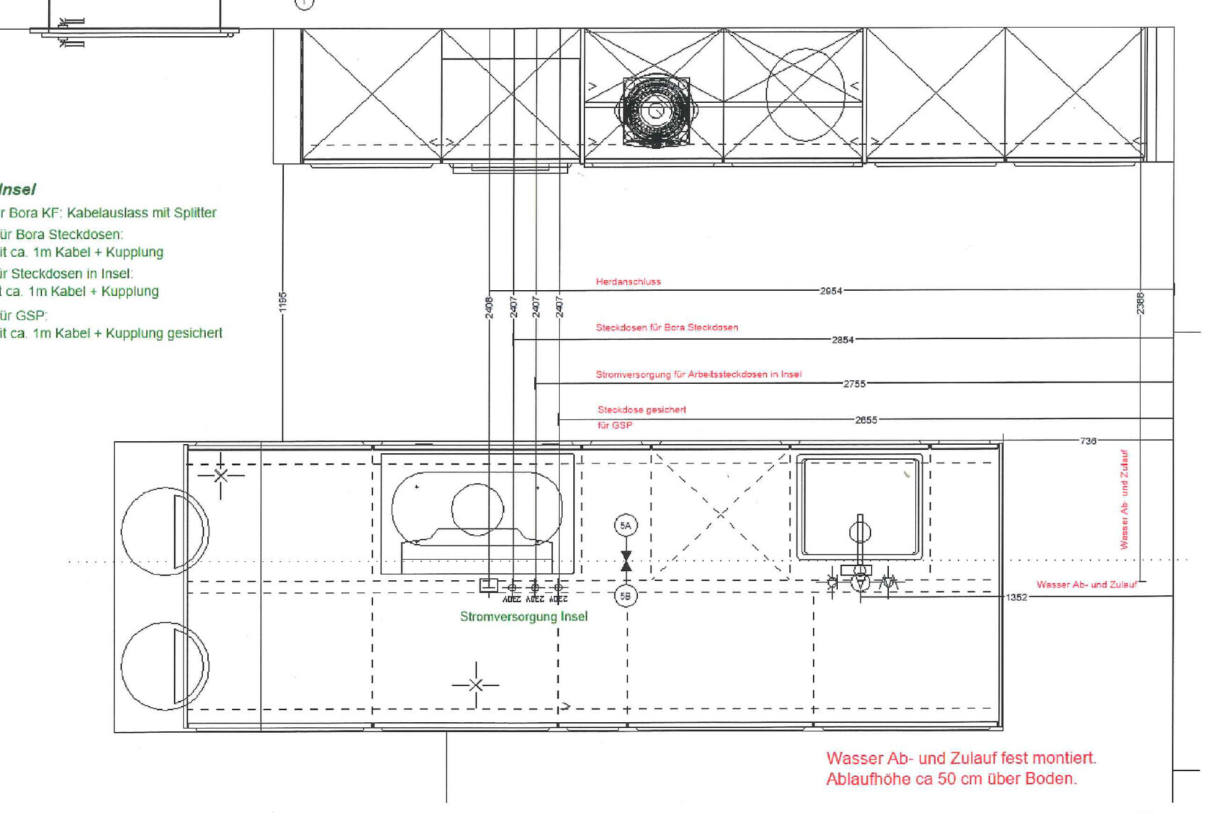
Im Endeffekt so wie du es sowieso auf einem deiner letzten Pläne hattest. Ganz simpel eine Hochschrankzeile an der Wand + Koch&SpülinselDanke für das konstruktive Feedback, damit können wir arbeiten ... warum min 2,50 wenn wir die Spüle doch gar nicht auf der Insel haben möchten?Notstrom schrieb:
Danke für das konstruktive Feedback, damit können wir arbeiten ... warum min 2,50 wenn wir die Spüle doch gar nicht auf der Insel haben möchten?Das Kochfeld ist am Rand der Insel, da Feld die Abstellmöglichkeit daneben. Außerdem spritzt euch ständig Fett auf den Boden.
Dass ihr die Spüle nicht auf der Insel haben wollt wisst ihr jetzt noch nicht. Wir haben leider nur das Kochfeld auf der Insel, das ist nicht optimal. Konserven und Nudel abtropfen, Eier abschrecken etc. dabei wird jedes mal der Boden vertropft
Ich kann nur bestätigen beides auf der Insel zu haben ist sehr praktisch. Jedoch könnte ich mir es genauso praktisch vorstellen die Spüle direkt im Rücken zur Kochinsel zu haben.
Wir haben unser Kochfeld auch an den Rand gesetzt (18cm) und bisher kann ich damit sehr gut leben. Klar, wenn ich es gekonnt hätte, wären 25/30cm besser. Für uns funktioniert es dennoch.
Unsere Insel ist 2,82x1,2m.
Viel Glück
Wir haben unser Kochfeld auch an den Rand gesetzt (18cm) und bisher kann ich damit sehr gut leben. Klar, wenn ich es gekonnt hätte, wären 25/30cm besser. Für uns funktioniert es dennoch.
Unsere Insel ist 2,82x1,2m.
Viel Glück
Wir haben uns nach Rücksprache bewusst für eine Spül- und Arbeitsinsel entschieden. Das Kochfeld liegt im Rücken oder Spüle leicht versetzt am der Wand.
Nach nun 2 Jahren im Haus sind wir immer noch begeistert und würden das immer wieder einer reinen Kochinsel vorziehen.
Man verbringt so viel mehr Zeit beim Kochen für die Vorbereitung, als für den eigentlichen Akt am Kochfeld.
Werde daher nie die Fraktion verstehen, welche das als Argument für eine "gesellige" Kochinsel aufführen.

Nach nun 2 Jahren im Haus sind wir immer noch begeistert und würden das immer wieder einer reinen Kochinsel vorziehen.
Man verbringt so viel mehr Zeit beim Kochen für die Vorbereitung, als für den eigentlichen Akt am Kochfeld.
Werde daher nie die Fraktion verstehen, welche das als Argument für eine "gesellige" Kochinsel aufführen.
matte1987 schrieb:
Man verbringt so viel mehr Zeit beim Kochen für die Vorbereitung, als für den eigentlichen Akt am Kochfeld.aber genau beim Vorbereiten möchten viele eben nicht vor einer Wand oder Fenster, wo er eh nicht rausschaut, stehen, sondern in den Raum schauen. Bei einer Spüle an der Wand kann man sehr gut im ersten Schritt alles abwaschen, im nächsten (neben Herd) an der Insel in den Raum vorbereiten, um peu a peu den Kochtopf zu füllen.
Bei mir ist zb die Spüle der Ort, wo der Schmutz gesammelt wird. Wenn ich durch bin mit vorbereiten, dreh ich mich dem Schmutz zu und wähle zw Grundstück und Handspülen, zb Messer oder Bretter.
während des Vorbereitens ist also bei mir die Insel relativ aufgeräumt und übersichtlich mit dem zukünftigen Essen gefüllt, hinter mir das, was über ist.
Letztendlich kann nur der seine Küchenplsnung machen, der wirklich die Zeit dort effektiv verbringt.
Ähnliche Themen