ᐅ Dehnungsfuge flexibel positionierbar???
Erstellt am: 06.04.19 16:22
Hallo Zusammen,
Wir bräuchten einmal dringend Hilfe.
Wir haben eine Frage zur Positionierung der Dehnungsfuge.
Da wir bautechnisch keine Experten sind, wollten wir die Frage hier absetzen.
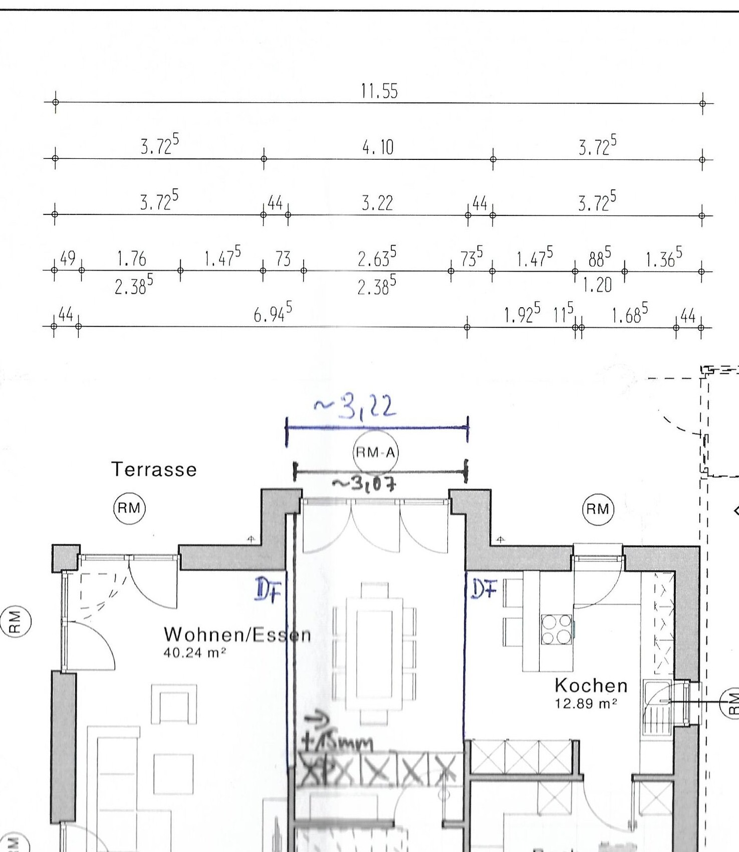
Getreu dem Motto 1 Bild sagt mehr als 1000 Worte haben wir eine Skizze angehangen.
Wir hoffen, dass die Situation dadurch verständlicher wird.
Darauf sind mit blauen Linien die Dehnungsfugen eingezeichnet, wie der Estrichverleger gerne agieren möchte.
Bei der Umsetzung hätten wir aber einen Abstand von DF zu DF von ca. 3,22m und müssten bei 60x60 Fliesen die sechste ganze Fliese beschneiden.
Finden wir ästhetisch natürlich als kompletten Mist.
Wir würden daher gerne die DF um 15mm nach vorne verlegen (siehe zweiten schwarzen Strich).
Dann würden wir bei ca. 3,07m landen und könnten fünf Fliesen unterbringen. So ist zumindest unsere Idee.
Jetzt zur eigentlichen Frage. Gibt es feste Regeln bei der Positionierung der Dehnungsfuge, welche dieser Vorgehensweise widersprechen?
Und dabei meinen wir nicht praktikabel Gründe wie z.B. so wird die Dehnungsfuge länger, sondern wirklich triftige Gründe, warum wir so nicht verfahren sollten.
Danke vielmals für eure Hilfe.
Gruß
Nicole & Marcel
P.S. Entkopplungsmatten würden wir aus Kostengründen gerne umgehen und nachträglich eine Dehnungsfuge in den Estrich flexen wird wahrscheinlich wegen der Bodenheizung (Schlauchverlegung) nicht möglich sein?!

Wir bräuchten einmal dringend Hilfe.
Wir haben eine Frage zur Positionierung der Dehnungsfuge.
Da wir bautechnisch keine Experten sind, wollten wir die Frage hier absetzen.
Getreu dem Motto 1 Bild sagt mehr als 1000 Worte haben wir eine Skizze angehangen.
Wir hoffen, dass die Situation dadurch verständlicher wird.
Darauf sind mit blauen Linien die Dehnungsfugen eingezeichnet, wie der Estrichverleger gerne agieren möchte.
Bei der Umsetzung hätten wir aber einen Abstand von DF zu DF von ca. 3,22m und müssten bei 60x60 Fliesen die sechste ganze Fliese beschneiden.
Finden wir ästhetisch natürlich als kompletten Mist.
Wir würden daher gerne die DF um 15mm nach vorne verlegen (siehe zweiten schwarzen Strich).
Dann würden wir bei ca. 3,07m landen und könnten fünf Fliesen unterbringen. So ist zumindest unsere Idee.
Jetzt zur eigentlichen Frage. Gibt es feste Regeln bei der Positionierung der Dehnungsfuge, welche dieser Vorgehensweise widersprechen?
Und dabei meinen wir nicht praktikabel Gründe wie z.B. so wird die Dehnungsfuge länger, sondern wirklich triftige Gründe, warum wir so nicht verfahren sollten.
Danke vielmals für eure Hilfe.
Gruß
Nicole & Marcel
P.S. Entkopplungsmatten würden wir aus Kostengründen gerne umgehen und nachträglich eine Dehnungsfuge in den Estrich flexen wird wahrscheinlich wegen der Bodenheizung (Schlauchverlegung) nicht möglich sein?!
H
hampshire06.04.19 18:56marcel83 schrieb:
P.S. Entkopplungsmatten würden wir aus Kostengründen gerne umgehenSchade, denn das ist die fachgerechte Lösung.Alternativ kann man bei dem Grundriss überlegen die Fliesen in 3 Diagonalfeldern mit Rand anzuordnen. Auch so fallen die Dehnungsfugen nicht auf - war unsere Lösung im Reihenhaus 2001.
Es gibt aber sicher einen Grund für Eure Wahl auf gleichmäßige 60x60 Fliesen.
H
hemali200307.04.19 00:37marcel83 schrieb:
Hallo Zusammen,
Wir bräuchten einmal dringend Hilfe.
Wir haben eine Frage zur Positionierung der Dehnungsfuge.
Da wir bautechnisch keine Experten sind, wollten wir die Frage hier absetzen.
Getreu dem Motto 1 Bild sagt mehr als 1000 Worte haben wir eine Skizze angehangen.
Wir hoffen, dass die Situation dadurch verständlicher wird.
Darauf sind mit blauen Linien die Dehnungsfugen eingezeichnet, wie der Estrichverleger gerne agieren möchte.
Bei der Umsetzung hätten wir aber einen Abstand von DF zu DF von ca. 3,22m und müssten bei 60x60 Fliesen die sechste ganze Fliese beschneiden.
Finden wir ästhetisch natürlich als kompletten Mist.
Wir würden daher gerne die DF um 15mm nach vorne verlegen (siehe zweiten schwarzen Strich).
Dann würden wir bei ca. 3,07m landen und könnten fünf Fliesen unterbringen. So ist zumindest unsere Idee.
Jetzt zur eigentlichen Frage. Gibt es feste Regeln bei der Positionierung der Dehnungsfuge, welche dieser Vorgehensweise widersprechen?
Und dabei meinen wir nicht praktikabel Gründe wie z.B. so wird die Dehnungsfuge länger, sondern wirklich triftige Gründe, warum wir so nicht verfahren sollten.
Danke vielmals für eure Hilfe.
Gruß
Nicole & Marcel
P.S. Entkopplungsmatten würden wir aus Kostengründen gerne umgehen und nachträglich eine Dehnungsfuge in den Estrich flexen wird wahrscheinlich wegen der Bodenheizung (Schlauchverlegung) nicht möglich sein?!Die von Dir eingezeichnete Variante wird nicht gehen, denn dieses 15 cm Stückchen wird abbrechen.
Wir haben die Fugen mit dem Estrichmenschen besprochen und +-1 m sind wohl in der Regel kein Problem (wenn der Plan nicht eh schon grenzwertig bei den Gesamtstrecken ist denke ich). Aber sie muss halt so platziert werden, dass nicht so ein Fitzelstück übrig bleibt, das droht zu brechen.
Wir haben die Dehnungsfuge in die Fliesen übernommen und ich hatte echt Panik, dass das störend sein wird (Holzoptikfliesen), bin sehr pingelig. Aber dank gutem Fliesenleger und guter Farbabstimmung stört es mich heute null!!
Der Estrich ist doch noch gar nicht gemacht? Wo ist jetzt das Problem? Verlegen die und gut ist. Würde ich machen.
Sollte der Estrich doch schon gemacht sein, kannst du bei 15mm überlegen die Dehnungsfuge im Oberbelag einfach zu versetzen. Nicht ganz ohne Risiko aber ich denke machbar.
Sollte der Estrich doch schon gemacht sein, kannst du bei 15mm überlegen die Dehnungsfuge im Oberbelag einfach zu versetzen. Nicht ganz ohne Risiko aber ich denke machbar.
H
hemali200307.04.19 10:28Bookstar schrieb:
Der Estrich ist doch noch gar nicht gemacht? Wo ist jetzt das Problem? Verlegen die und gut ist. Würde ich machen.
Sollte der Estrich doch schon gemacht sein, kannst du bei 15mm überlegen die Dehnungsfuge im Oberbelag einfach zu versetzen. Nicht ganz ohne Risiko aber ich denke machbar.Ich bin mir sicher, dass es um 15 cm geht!
Und die einfache Verschiebung der Fuge ist ganz sicher nicht möglich, weil planoben dadurch ein schmales Stück von 15 cm Breite entsteht. Das wird zwangsläufig brechen, weil ja die einzelnen Platten schwimmen und dieses Stück keinen Halt hat. Einmal draufgetreten und abgebrochen.
Ähnliche Themen