Defekte Wasserleitungen in Villa, welche Schadenersatzleistung

4,80 Stern(e) 4 Votes
Zuletzt aktualisiert 27.11.2025
Sie befinden sich auf der Seite 2 der Diskussion zum Thema: Defekte Wasserleitungen in Villa, welche Schadenersatzleistung
>> Zum 1. Beitrag <<

wrobel

wrobel

Zum Einwand vom Musketier
Es ist schon nicht so ungewöhnlich das Kunden/ Bauherren/ Geschädigte sich raus nehmen die Kosten für eine Nachbesserung möglichst hoch zu treiben.
Einen Hotelaufenthalt über eine Woche für ein Paar fehlende Fliesen zähle auch ich dazu.

Olli
 
Musketier

Musketier

Daher war mein Ansatz mit Hotel nicht als Ausgleich gedacht, sondern als Notwendigkeit, wenn das Haus keinen Seiteneingang hat.
Den Seitenhieb auf meinen Beruf find ich daher an dieser Stelle völlig unnötig, schon gar von einem Moderator.
Jeder macht Fehler, egal in welchem Beruf. Es is einfach menschlich. Warum man jedoch einen Berufsstand ausquetschen soll, während ein anderer Berufstand Fehler machen kann, und das meist ohne dafür belangt zu werden ist mir unverständlich. Ich könne hier einige Beispiele von Ärztefehler im näheren Bekannten und Verwandtenkreis aufführen, die nicht ausgeglichen wurden, das würde hier aber zu weit führen.

Warum man wegen einem zugegebenen Fehler "ausrasten" muß, verstehe ich nicht, genauso, warum man unbedingt ein "rundumsorglos" Hotel benötigt, statt einer Ferienwohnung, sofern das Haus tatsächlich für die Zeit nicht bewohnbar ein sollte.
 
P

Payday

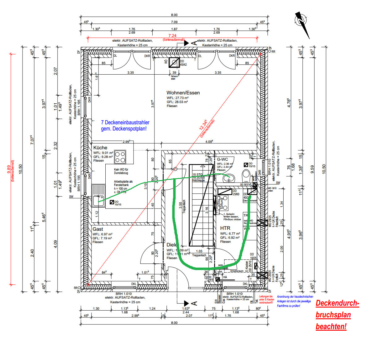
also wir haben uns natürlich schon etwas geärgert, vor allen aber erstmal wegen den miesen schlechten ausreden vom Sanitär zwecks das sei normal usw... erst nachdem ich direkt das bauunternehmen dank der planungsunterlagen belegen konnte, das wirklich was in argen liegt, will man nun was machen. geplant war ja eine ringleitung, so das es ein leichtes gewesen wäre, die zirkulation zu integrieren (warum auch immer man es nicht gleich so gemacht hat...). die haben sich einfach ein stück leitung geschenkt, welche nun nachkommen muss.

bewohnbar ist das haus natürlich weiterhin. es ist ja nun nicht so, das die den ganzen flur aufreissen. denke mal so 4-5 fliesen werden es werden (quer zur normalen laufrichtung), so das man sogar übers loch hinwegsteigen kann. und nach feierabend kommt ne platte drüber. lange kanns ja eh nicht dauern. mit richtig abgestimmten gewerken müßte das in 2-3tagen durch sein.

beim vor ort termin werden wir noch abstimmen, ob es nicht auch möglich wäre über die vorwandinstallation im gästebad zurück in den Hauswirtschaftsraum zu gehen. dann müßte nur eine wandfliese im gästebad runter und der Estrich bleibt intakt. einmal durch die wand kernbohren. am ende muss die vorwand wieder hergestellt werden +1fliese und fertig.


anbei ein bild wie der Sanitär es zugegeben hat, verlegt zu haben. dicker strich größerer rohrdurchmesser, dünner strich glaub 12x1 leitung. wenn mich nicht alles irrt müßten es alles kupferleitungen sein.

2D-Grundriss eines Hauses mit Wohnbereich, Küche, Diele und Treppen
 
wrobel

wrobel

Moin Moin

In diesem Fall hätte ich eine Verlegung vom Trinkwasserwärmer auf kürzestem Weg, das wären hier gut 7 m zur Küche u. 2 zum WC verlegt. Ohne Zirkulation.
Es scheint so als hatte da einer keine Lust die 3 Bohrungen auszuführen oder hatte den Überblick da nicht.
Die sinnvolle Lösung jetzt hast Du ja schon genannt. Vom WT Gäste-WC durch die Wand in den Hauswirtschaftsraum. Das ist ja nun nicht wirklich ein Problem. Die etwa 4 m Leitung zur Küchenspüle ist dann eine Stichleitung o. Zirkulation. Passt so


Olli
 
Zuletzt bearbeitet:
H

HilfeHilfe

ich würde es machen lassen. 20-30 Jahre immer auf das warme zu warten würde mich immer ärgern warum hab ich das nicht machen lassen. meine persönliche meinung.

Ja es ist blöd das nochmal die Handwerker im haus sind und nacharbeiten. aber ist es euch wirklich nicht wert und stattdessen jahre zu ärgern ?

wir haben jetzt 1 woche keine couch weil möbelhaus nicht geliefert hat. Erst hat frau großes drama gemacht wo wir sitzen sollen , dann habe ich ihr idomeni gezeigt und gefragt ob schlamm besser wäre,. Jetzt ist es ganz witzig auf kissen auf dem boden zu lümmeln
 
wrobel

wrobel

ach so....

ja natürlich machen lassen.
Der Installateur kommt morgens um acht, legt die Leitung frei, bohrt durch die Wand und legt die Leitung durch die Wand. Der Fliesenleger erscheint um elf und beginnt seine Arbeiten während im Technikraum die Pumpe montiert und Rohrleitungen gelegt werden.

Wer als Bauherr möchte geht während dessen einen Kaffee trinken oder zum Arzt.
Einen Hotelaufenthalt braucht es da nicht;). Der Kaffee geht dann auch gerne auf mich.


Olli
 
Zuletzt aktualisiert 27.11.2025
Im Forum Heizung / Klima gibt es 1848 Themen mit insgesamt 26914 Beiträgen


Ähnliche Themen zu Defekte Wasserleitungen in Villa, welche Schadenersatzleistung
Nr.ErgebnisBeiträge
1Neubau Kfw70 Fußbodenheizung und Fliesen - Seite 211
2Hilfe zu Bodenbelägen gesucht, insbesondere. Fliesen vs. Parkett 33
3Parkett oder Fliesen im Keller - Seite 211
4Welcher Bodenbelag - Fliesen oder Vinyl im Wohn-/Essbereich? - Seite 318
5Kosten für Sanitär & Wärmepumpe - Seite 231
6Fliesen - überall die gleichen? 14
7Fliesen wo anders günstiger kaufen? - Seite 539
8Fliesen im Wohnbereich - Sockel aus Fliesen oder Holz? - Seite 526
9Neubau - Kosten Sanitär & Heizung Erfahrungen? - Seite 215
10Hauswirtschaftsraum Raum ohne Fenster - Lüftungsanlage ausreichend? - Seite 326
11Badezimmerlayout Elternbad - Seite 22152
12Zeitschaltuhr Zirkulation an der Heizung 29
13Welcher Belag im Bad statt Fliesen 14
14Fliesen andere Hersteller finden / Bauträger Bemustern - Seite 213
1545x90 Feinsteinzeug-Fliesen 11
16Fußbodenheizung, Raumthermostate und kalte Fliesen 28
17Vinylboden auf Fliesen, Vorbehandlung 12
18Fliesen kaufen während Rohbau 24
19Fliesen, Vinyl oder anderweitiger Bodenbelag bei Fußbodenheizung? - Seite 223
20Riss zwischen Fliesen und Sockelleiste ?? - Seite 216

Oben