ᐅ Dach-Balken entfernen - Statikproblem?
Erstellt am: 22.11.25 19:22
Hallo,
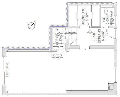
ich habe ein älteres Haus gekauft. Geabut 1970 und 2011 "leicht" umgebaut, wobei das EG 120mq aufgeteilt wurde:

OG ist quasi rohbau, nur durch einer schmalen Holzwand getrennt:

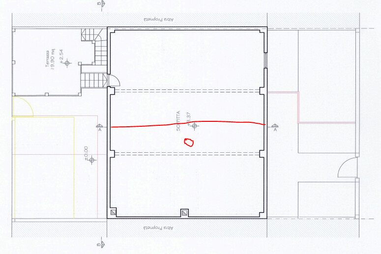
Ich habe Zutritt über die Terrasse, der Nachbar hat am roten Kreis eine klappbare+ausziehbare Treppe einbauen lassen.
Wie ihr euch vorstellen könnt, blieb das Dach gemeinschaftlich. Auf dem letzten Bild sind acht Stützen zu erkennen, die das Dach tragen. Hier sieht man sie von der Seite:

Tatsächlich gibt es noch zwei weitere Stützen, die im Plan nicht verzeichnet sind:

Auf dem letzten Bild sind zwei Dachstützbalken eingezeichnet, die auf den seitlichen Stützen aufliegen. Auf dem vorherigen Bild hingegen sieht man die Bögen, die alles tragen, und da es keinen First gibt, sind diese Balken entscheidend. Das Problem ist, dass diese Balken nach Estrich u.a. etwa 120 cm über dem Boden liegen würden, wodurch der Raum nicht nutzbar wäre. Außerdem sieht der Plan eine Verbindungstreppe vor:

Damit muss dieser Balken verschwinden.
Jetzt frage ich euch, Forumsteilnehmer, vielleicht sogar Ingenieure. Welche Möglichkeiten seht ihr? Welche Lösungen würdet ihr vorschlagen? Mir ist bewusst, dass der Dachbalken nicht einfach entfernt werden kann, ohne etwas zu verstärken, sonst würde mir das Dach auf den Kopf fallen. Der Balken trägt nicht nur das Gewicht nach unten, sondern wirkt auch den seitlichen Kräften entgegen (ich kenne die genauen Fachbegriffe nicht, entschuldigt bitte).
Ich habe ein paar Ideen und Meinungen, möchte aber zunächst eure hören, ohne euch zu beeinflussen.
Ich bin gespannt…
Danke aus Bozen.
ich habe ein älteres Haus gekauft. Geabut 1970 und 2011 "leicht" umgebaut, wobei das EG 120mq aufgeteilt wurde:
OG ist quasi rohbau, nur durch einer schmalen Holzwand getrennt:
Ich habe Zutritt über die Terrasse, der Nachbar hat am roten Kreis eine klappbare+ausziehbare Treppe einbauen lassen.
Wie ihr euch vorstellen könnt, blieb das Dach gemeinschaftlich. Auf dem letzten Bild sind acht Stützen zu erkennen, die das Dach tragen. Hier sieht man sie von der Seite:
Tatsächlich gibt es noch zwei weitere Stützen, die im Plan nicht verzeichnet sind:
Auf dem letzten Bild sind zwei Dachstützbalken eingezeichnet, die auf den seitlichen Stützen aufliegen. Auf dem vorherigen Bild hingegen sieht man die Bögen, die alles tragen, und da es keinen First gibt, sind diese Balken entscheidend. Das Problem ist, dass diese Balken nach Estrich u.a. etwa 120 cm über dem Boden liegen würden, wodurch der Raum nicht nutzbar wäre. Außerdem sieht der Plan eine Verbindungstreppe vor:
Damit muss dieser Balken verschwinden.
Jetzt frage ich euch, Forumsteilnehmer, vielleicht sogar Ingenieure. Welche Möglichkeiten seht ihr? Welche Lösungen würdet ihr vorschlagen? Mir ist bewusst, dass der Dachbalken nicht einfach entfernt werden kann, ohne etwas zu verstärken, sonst würde mir das Dach auf den Kopf fallen. Der Balken trägt nicht nur das Gewicht nach unten, sondern wirkt auch den seitlichen Kräften entgegen (ich kenne die genauen Fachbegriffe nicht, entschuldigt bitte).
Ich habe ein paar Ideen und Meinungen, möchte aber zunächst eure hören, ohne euch zu beeinflussen.
Ich bin gespannt…
Danke aus Bozen.
Anzeige
Ähnliche Themen