Hallo liebe Community,
Ich lese nun schon eine Weile mit und hab die Suchfunktion bemüht um mein Problem zu lösen. Wir lassen Ende April unseren Garten anlegen und Bewässerung ist nicht im Leistungsumfang enthalten. Zudem fangen wir mit dem hinteren Teil des Gartens an und arbeiten uns über die nächsten 1-2 Jahre nach vorne. Soviel zur Ausgangslage 🙂
Zurück zum Thema Bewässerung:
Kann ich das selber planen und umsetzen? Thema Planung sieht auf den ersten Blick nicht zu schwer aus, Kreise einzeichnen sich etwas Gedanken machen was man alles bewässern will?
Umsetzung laut YouTube mehr oder minder Plug&Play.
Stell ich mir das zu einfach vor?
Sollte ich lieber einen Fachmann planen lassen?
Derzeit scheitere ich zum Thema Komponenten. Was brauche ich? Und wie gehe ich am besten vor?
Muss ich bis der Gartenlandschaftsbauer anfängt alles hier haben und bereit sein loszulegen oder kann ich das meiste nachträglich einbauen?
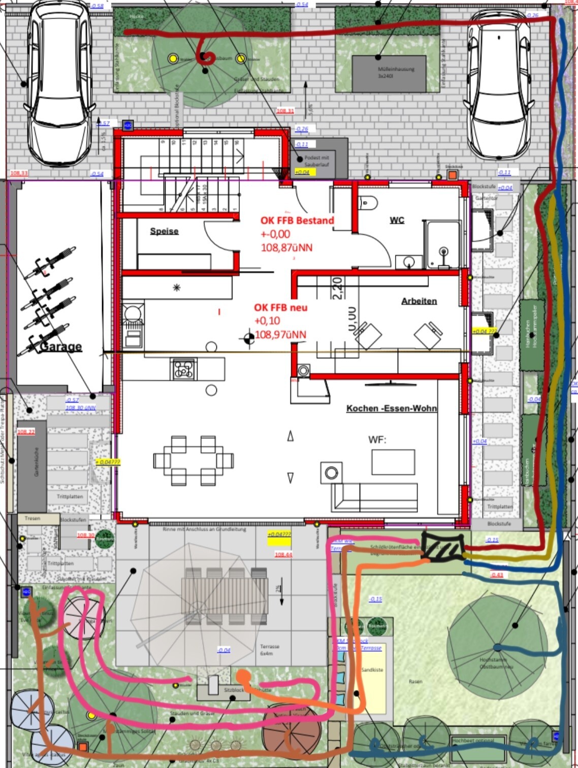
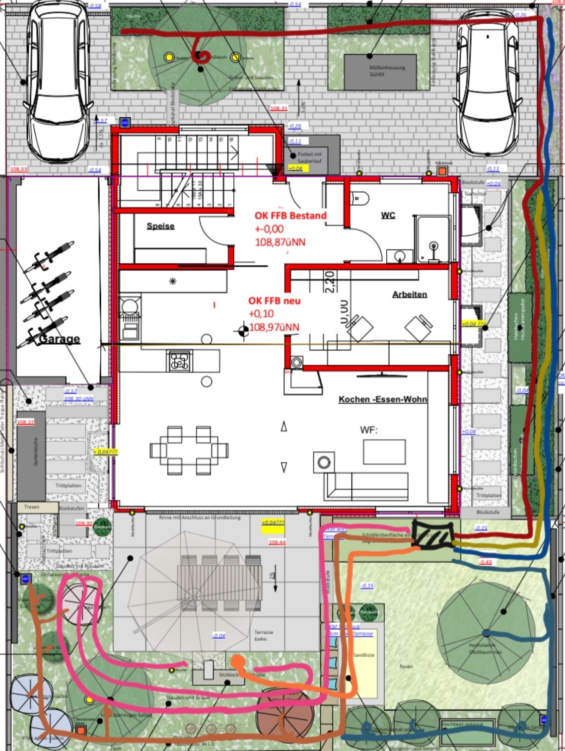
Ich habe einfach mal unseren Plan angehängt und schon ein paar Kreise eingezeichnet. Wasser beziehen wir "leider" aus einem Wasserhahn der ca. bei der schraffierten Verteilerdose aus dem Keller kommt. Ist sicher am Ende nicht 100% schick, aber ließ sich nicht anders umsetzen.
Wir haben, wie man auf dem Plan sieht, verschiedene Höhen. Um nun von unten nach oben zu kommen, kann ich ein KG Rohr unter dem Mauerfundament bis nach oben vorsehen und später einfach die Bewässerung durchschieben? Ander Vorschläge?
Lieber Tropfschläuche oder Rasensprenger? Im Bereich Terrasse haben wir Gräser und paar Blumen vorgesehen.
Sorry so viele Fragen!
Viele Grüße,
Jens

Ich lese nun schon eine Weile mit und hab die Suchfunktion bemüht um mein Problem zu lösen. Wir lassen Ende April unseren Garten anlegen und Bewässerung ist nicht im Leistungsumfang enthalten. Zudem fangen wir mit dem hinteren Teil des Gartens an und arbeiten uns über die nächsten 1-2 Jahre nach vorne. Soviel zur Ausgangslage 🙂
Zurück zum Thema Bewässerung:
Kann ich das selber planen und umsetzen? Thema Planung sieht auf den ersten Blick nicht zu schwer aus, Kreise einzeichnen sich etwas Gedanken machen was man alles bewässern will?
Umsetzung laut YouTube mehr oder minder Plug&Play.
Stell ich mir das zu einfach vor?
Sollte ich lieber einen Fachmann planen lassen?
Derzeit scheitere ich zum Thema Komponenten. Was brauche ich? Und wie gehe ich am besten vor?
Muss ich bis der Gartenlandschaftsbauer anfängt alles hier haben und bereit sein loszulegen oder kann ich das meiste nachträglich einbauen?
Ich habe einfach mal unseren Plan angehängt und schon ein paar Kreise eingezeichnet. Wasser beziehen wir "leider" aus einem Wasserhahn der ca. bei der schraffierten Verteilerdose aus dem Keller kommt. Ist sicher am Ende nicht 100% schick, aber ließ sich nicht anders umsetzen.
Wir haben, wie man auf dem Plan sieht, verschiedene Höhen. Um nun von unten nach oben zu kommen, kann ich ein KG Rohr unter dem Mauerfundament bis nach oben vorsehen und später einfach die Bewässerung durchschieben? Ander Vorschläge?
Lieber Tropfschläuche oder Rasensprenger? Im Bereich Terrasse haben wir Gräser und paar Blumen vorgesehen.
Sorry so viele Fragen!
Viele Grüße,
Jens
Flytime schrieb:
Plug&PlayEuer Plug&Play könnte so aussehen, einen Wasserhahn anzuschließen, den in der Hand zu halten und einfach den Rasen zu sprengen. Scheint ja sehr übersichtlich zu sein, dass eine technische Bewässerung in meinen Augen etwas zu aufwendig erscheint. Bäume und Sträucher brauchen oft nur die ersten drei Monate zum Anwachsen zusätzliches Wasser. Da sollte man eh das Anwachsen bzw die Gesundheit der Pflanzen per visuellen Überprüfung kontrollieren. 😉 gehen tut das. Aber ich bin auch mal im Urlaub und habe keine Nachbarn die hier gießen könnten. Zudem habe ich in den Hochsommertagen den Garten meiner Eltern gießen müssen, warst am Ende doch 30min pro Tag beschäftigt. Die würde ich halt lieber mit meinen Kids verbringen.
Beete, Hecken und eventuell Bäume mit Tropfbewässerung. Rasen mit Regnern. Die Regner müssen sich gegenseitig erreichen. Dadurch dass du aus der Wasserleitung speist musst du die Kreise recht klein halten. Da bleiben eigentlich nur die Rotatoren von Hunter oder vergleichbare Produkte von Rainbird oder Perrot.
Ähnliche Themen