Hausbau - Ratgeber
Bauherrenhilfe
- Bauherrenhilfe vor Vertragsabschluss
-- Warum einen unabhängigen Baubetreuer?
-- Vertragsgrundlagen
-- Bausumme
-- Zahlungsplan zur Kostenkontrolle
-- Pflichten des Bauherren vor Vertragsabschluss
-- Unterlagen beim Hausbau vor Vertragsabschluss
- Bauherrenhilfe nach Vertragsabschluss
-- Bauantrag bei Behörden
-- Bau-Genehmigungsverfahren bei Baubehörden
-- Bauspezifische Versicherungen
-- Bauzeitenplan
-- Baubeginn - die Letzten Pflichten der Bauherrschaft
- Bauherrenhilfe während der Bauzeit
- Gewährleistungsansprüche
- Bauabnahme
Baufinanzierung
- Baufinanzierung - Allgemeine Fragen
- Kreditarten
- Kredit-Konditionen
- Bausparen
- Staatliche Förderungen
- Verkehrswert
- Haushaltsrechnung und Bonität
Hausbau Planung
- Haustypen
- Hausbau Vorbereitungsarbeiten
- Das Baugrundstück
- Baugrund beim Hausbau
- Baurecht
- Gebäudeschutz
- Erdarbeiten und Wasserhaltung
- Stützmauern
- Einfriedung
- Untergeschoss
- Kanalisation
- Tragende Elemente
- Nichttragende Innenwände
- Fundation / Fundament
- Deckenkonstruktionen
- Dächer
- Kaminanlagen
- Treppen Rampen Leitern
- Dachbeläge und Spengler
- Fenster
- Sonnen und Wetterschutz
- Aussenputze
- Einbauten, Küchen, Türen
- Bodenbeläge und Unterlagsböden
- Parkett
- Gips, Wand, Decke
Haustechnik und Energie
- Heiztechnik
- Lüftung und Klimatechnik
- Sanitärtechnik
- Elektrotechnik
- Erneuerbare Energie
Whirlpools / Jacuzzi
Hausbau Magazin
- Baufinanzierung trotz Krise?
- Das Blockhaus
- Moderne Dämmstoffe im Vergleich
- Erker Vor- und Nachteile
- Glasflächen beim Hausbau
- Günstig ein Haus Bauen
- Mediterraner Hausbaustil
- Mehrgenerationenhaus
- Moderne Architektur
- Gartengestaltung leicht gemacht
- Traditioneller Ziegelbau
- Villa als höchster Traum
- Im Eigenheim Ruhestand geniessen
- Altbau sanieren
- Kauf einer Holzgarage
- Immobilienmakler
- Arbeitshandschuhe für den Winter
- Zuhause verschönern
- Outdoor-Plissees
- Schlafzimmer planen
- Terrassenüberdachung
- Wohngebäudeversicherung
- Zaunarten und Eigenschaften
- Hauseingang gestalten
- Der perfekte Grundriss
- Sparsamer heizen im Altbau
- Einfamilienhaus smart finanzieren
- Planung einer PV-Anlage
- Neues Haus
- Immobilienfinanzierung
- Installation einer Photovoltaikanlage
- Asbest erkennen und entfernen
- Gartenpflege im Frühling – worauf achten
- Sauna im Fokus - Wellness zuhause
- Erfolgreich vermieten
- Die perfekte Winterbekleidung
- Das Niedrigenergiehaus
- Der April und seine Stürme
- Architektonische Vielfalt
- Ökologisch und nachhaltig bauen
- Das perfekte Schlafzimmer
- Nachhaltige Energieversorgung
- Zukunftsorientiert bauen
- Nachhaltigkeit beim Hausbau
- Tiny Houses
- Wärmepumpen als nachhaltige Heizvariante
- Maßgeschneiderten Kleiderschrank
- Der richtige Baukredit
- Ratgeber für erfolgreichen Hausbau
- Haus als Altersvorsorge
Do-it-yourself Anleitungen
- Verlegeanleitung für Bodenbeläge und Parkett
- Bodenbeläge und Parkett reinigen und pflegen
- Malerarbeiten am Haus
- Garten Tipps
- Umzug und Reinigung

ᐅ Bauhaus Villa an Hanglage, Grundrisse für 5 Personen

Erstellt am: 22.04.20 19:06
M
Mellina
M
Mellina
22.04.20 19:06
Angeregt durch @Alessandro eröffne ich hier mal meinen eigenen Hausthread. Seit einigen Monaten bin ich fleissige Mitleserin, habe viele interessante, spannende und zum Teil auch unschöne Dinge in diesem Forum miterlebt, viel gelernt und auch viel mitgefreut/mitgefiebert/mitgelitten.
Wir haben unser Grundstück Ende 2016 gekauft, sehr lange geplant und noch viel länger auf die Baubewillgung gewartet, leider über ein Jahr. Mittlerweile sind wir seit einigen Wochen am Innenausbau und wegen Corona wird das vermutlich auch noch länger dauern .
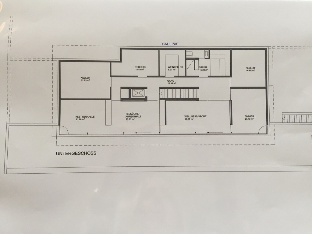
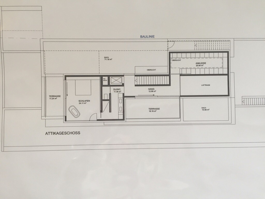
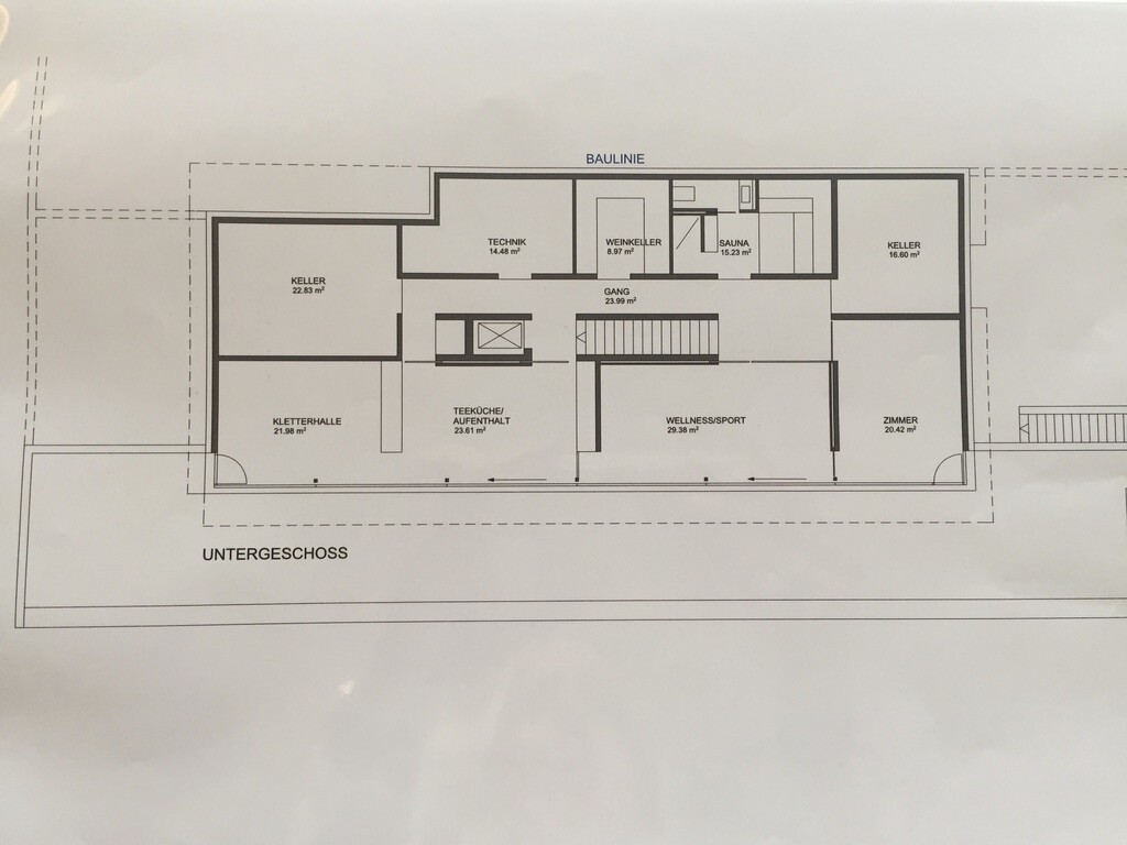
Hier noch mal Foto von Modell und ursprüngliche Grundrisse:

Architekturmodell eines modernen, mehrstöckigen weißen Gebäudes mit Glasfassaden.


3D-Architekturmodell einer modernen Villa auf Hang mit Terrassen und Bäumen


Grundriss Attikageschoss: Schlafzimmer, Ankleide, Du/WC, Gang und Terrasse.


Grundriss des Obergeschosses: Garage, Wohnbereich, Koch-/Essbereich, Abstellräume und Treppen.


Erdgeschoss-Grundriss: Gast, drei Kinderzimmer, Luftraum, HWR, Bad/WC, Terrasse.


Grundriss des Untergeschosses mit Kellern, Technik, Sauna, Wellness und Zimmer
1
11ant
22.04.20 20:37
Da ist ja das Oberlicht im Modell schon drin. Ist das eine Schikane in der Kletterhalle, was in der Fassade erst etwa auf Kniestockhöhe zurückspringt ?
https://www.instagram.com/11antgmxde/
https://www.linkedin.com/company/bauen-jetzt/
H
hampshire
22.04.20 20:50
Mir gefällt das konsequente Aufteilen der Stockwerke ausgesprochen gut. Trotz viel Luftraum ist im Attikageschoss ein guter Rückzugsraum - auch durch das Badezimmer als "Schallschutzblock". Bei kleinen Kindern hätte meine Frau die Entfernung zu diesen gestört, mich nicht. Bei größeren Kindern ist das ein Segen.
Den gemeinsamen Lebensbereich zentral auf Eingangsebene zu legen ist eine gute Wahl. Darunter haben Kinder und Gäste es gut - es entsteht ein weiterer Trakt, der gerade für Jugendliche sehr tauglich ist - Rückzugsraum für jeden. Spa nach unten und die Umsetzung einer Kletterhalle ist sind wunderbarer individueller Kick Lebensqualität.
Sicher kann man hier und da ausmessen und Zentimeter schieben - das Konzept ist klar, funktioniert und spiegelt Persönlichkeit wieder. Gute Architektur. Danke für`s Zeigen.
Gut dass Ihr die überdimensionierten Flaschenkunstwerke auf dem ersten Bild nicht umsetzt
1
11ant
22.04.20 23:21
hampshire schrieb:

Gut dass Ihr die überdimensionierten Flaschenkunstwerke auf dem ersten Bild nicht umsetzt
Das erinnert mich an eine Karrikatur von Gustav Peichl (im Zivilberuf selber Stararchitekt), wo eine Skizze eines Stararchitekten komplett in die gebaute Wirklichkeit übertragen wurde - einschließlich eines im Maßstab des Planes vergrößerten Kaffeefleckes
https://www.instagram.com/11antgmxde/
https://www.linkedin.com/company/bauen-jetzt/
R
rick2018
23.04.20 06:12
@Mellina wird es ein Edelstahlpool?
M
Mellina
23.04.20 08:20
11ant schrieb:

Da ist ja das Oberlicht im Modell schon drin. Ist das eine Schikane in der Kletterhalle, was in der Fassade erst etwa auf Kniestockhöhe zurückspringt ?

Die Kletterhalle ist eigentlich ein Partyraum / Turnhalle für die Kids. Der Rücksprung ist so eine Architektenidee, damit die Fassade schön aussieht oder so ähnlich...

@hampshire Danke... Die Idee ist auch, dass die Kids möglichst lange bei uns wohnen bleiben und da hilft natürlich, wenn sie genug Platz haben. Und sollte es doch einen früh in die weite Welt hinaus ziehen, haben sie immer ein pied à terre bei uns
fassaderückzugsraum