Ich würde die Tür nicht so herum anschlagen lassen. Im Beispiel von @ArminJG22 hat der Lichtschalter doch ohne Problem Platz zwischen Türrahmen und Glasabtrennung zur Dusche. Die Tür öffnet sich aber eben schöner in den Raum und die Glasabtrennung macht dann auch Sinn.
Bei dem Türentausch brauchst du einen Türenstopper, damit du die Tür nicht versehentlich in die Glaswand haust.
Bei dem Türentausch brauchst du einen Türenstopper, damit du die Tür nicht versehentlich in die Glaswand haust.
H
hanghaus202303.04.24 13:27Wo ist denn der Ablauf vom WC vorgesehen? Oder ist der noch nicht geplant?
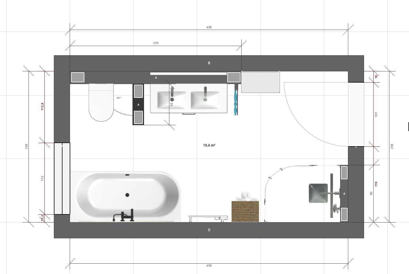
Danke für eure Rückmeldungen. Das hilft mir unheimlich weiter. Ich habe die Tür im Master-Bad jetzt gegen die Wand geöffnet und Platz für die Schalter ist dann tatsächlich noch da. Ablauf vom WC ist noch variabel, sollte also voraussichtlich auch in der entsprechenden Ecke vorgeplant werden.
Anbei ein aktualisierter Grundriss.
Auch habe den ersten Entwurf vom innenliegenden Gäste-WC 205x124 (Tür variabel) beigefügt. Hier würde ich gerne eine "Reserve-Dusche" platzieren, falls es doch mal zu Stau mit Kids/Besuch kommt. Eure Gedanken dazu?


Anbei ein aktualisierter Grundriss.
Auch habe den ersten Entwurf vom innenliegenden Gäste-WC 205x124 (Tür variabel) beigefügt. Hier würde ich gerne eine "Reserve-Dusche" platzieren, falls es doch mal zu Stau mit Kids/Besuch kommt. Eure Gedanken dazu?
B
Bau-beendet03.04.24 20:09@Alrico1
Es könnte sein das der Handtuchheizkörper neben der Badewanne da nicht hin darf. Es gibt so spezielle Zonen wo eben was hin darf und wo nicht. Hatte das selber ähnlich mal gehabt, wäre auch in unmittelbarer Nähe zur Wanne gewesen, ging aber nicht. Wahrscheinlich dann eher hinter der Türe.
Es könnte sein das der Handtuchheizkörper neben der Badewanne da nicht hin darf. Es gibt so spezielle Zonen wo eben was hin darf und wo nicht. Hatte das selber ähnlich mal gehabt, wäre auch in unmittelbarer Nähe zur Wanne gewesen, ging aber nicht. Wahrscheinlich dann eher hinter der Türe.
Alrico1 schrieb:
Ablauf vom WC ist noch variabel, sollte also voraussichtlich auch in der entsprechenden Ecke vorgeplant werden.Das Fallrohr ist abhängig vom EG… nicht vergessen. Wir sehen hier keine „entsprechende Ecke“.A
ArminJG2203.04.24 22:48Bau-beendet schrieb:
@Alrico1
Es könnte sein das der Handtuchheizkörper neben der Badewanne da nicht hin darf. Es gibt so spezielle Zonen wo eben was hin darf und wo nicht. Hatte das selber ähnlich mal gehabt, wäre auch in unmittelbarer Nähe zur Wanne gewesen, ging aber nicht. Wahrscheinlich dann eher hinter der Türe.Kommt drauf an - wenn es nur ein Heizkörper ist, der an die Fußbodenheizung angeschlossen ist, ist es egal. Bei einem hybriden oder rein elektrischen Anschluss darf keine Steckdose im Spritzbereich installiert werden - der elektrische Anschluss kann aber direkt abgedichtet erfolgen. Wir haben einen Heizkörper mit rein elektrischem Heizelemente im Ausgangsbereich der Walk-In Dusche eingeplant und wird auch so vom Elektriker freigegeben und abgenommen
Ähnliche Themen