ᐅ Auslegung einer zentralen Lüftungsanlage
Erstellt am: 01.03.22 16:33
Hallo zusammen,
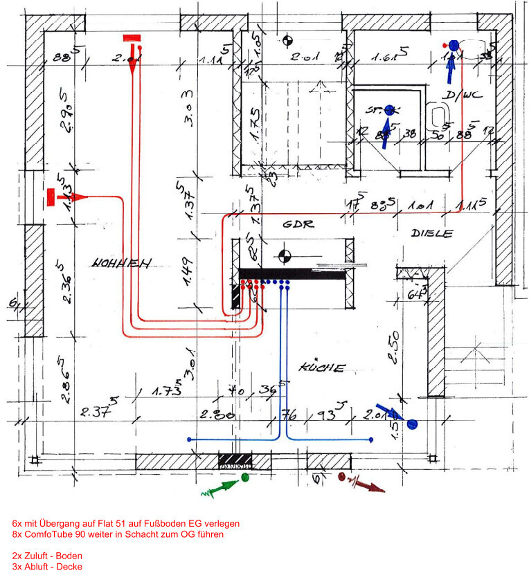
für unser Neubauvorhaben auf KfW55 Niveau planen wir den Einbau einer zentralen Lüftungsanlage mit Wärmerückgewinnung (ja, war haben lange darüber diskutiert und uns dafür entschieden). Nun habe ich die erste Planung von Zehnder erhalten, siehe Anhang.
Einige Punkte sind nicht korrekt aufgenommen, z.B. die Höhe im OG, da wir hier eine "offene Decke" planen. Die Berechnung geht von 2,50m Deckenhöhe aus, was deutlich zu gering ist. Auch sind die anderen Höhenangaben unschlüssig; einmal wurde das Oberkante Fertigfußboden Maß (EG) einmal OKRB (KG) herangezogen. Das habe ich bereits moniert.
Davon abgesehen lese ich immer wieder die Anlage eher etwas zu überdimensionieren, um einerseits Reserven zu haben, andererseits einen Teillastbetrieb fahren zu können. Zehnder hat uns Q350TR vorgeschlagen.
Was mich auch stutzig macht, ist die geringe Anzahl der Zuluftventile - oder täusche ich mich da etwa? So sind im Flur-/Garderobenbereich keine Ventile vorhanden. Auch in den Schlafräumen und Kinderzimmer hätte ich eher an 2 Ventile gedacht (?)




Uns ist es wichtig, möglichst keine Geräusche und/oder Luftzüge wahrzunehmen und sich nicht im Nachgang über eine Fehlentscheidung ärgern zu müssen, die sich anfangs als Sparmaßnehme aufdrängte. Auf einen Hersteller sind wir nicht festgelegt; Zehnder, weil ich bisher nur gutes gelesen habe.
Ich danke euch für's Drüberschauen!
Viele Grüße,
Jentopa
für unser Neubauvorhaben auf KfW55 Niveau planen wir den Einbau einer zentralen Lüftungsanlage mit Wärmerückgewinnung (ja, war haben lange darüber diskutiert und uns dafür entschieden). Nun habe ich die erste Planung von Zehnder erhalten, siehe Anhang.
Einige Punkte sind nicht korrekt aufgenommen, z.B. die Höhe im OG, da wir hier eine "offene Decke" planen. Die Berechnung geht von 2,50m Deckenhöhe aus, was deutlich zu gering ist. Auch sind die anderen Höhenangaben unschlüssig; einmal wurde das Oberkante Fertigfußboden Maß (EG) einmal OKRB (KG) herangezogen. Das habe ich bereits moniert.
Davon abgesehen lese ich immer wieder die Anlage eher etwas zu überdimensionieren, um einerseits Reserven zu haben, andererseits einen Teillastbetrieb fahren zu können. Zehnder hat uns Q350TR vorgeschlagen.
Was mich auch stutzig macht, ist die geringe Anzahl der Zuluftventile - oder täusche ich mich da etwa? So sind im Flur-/Garderobenbereich keine Ventile vorhanden. Auch in den Schlafräumen und Kinderzimmer hätte ich eher an 2 Ventile gedacht (?)
Uns ist es wichtig, möglichst keine Geräusche und/oder Luftzüge wahrzunehmen und sich nicht im Nachgang über eine Fehlentscheidung ärgern zu müssen, die sich anfangs als Sparmaßnehme aufdrängte. Auf einen Hersteller sind wir nicht festgelegt; Zehnder, weil ich bisher nur gutes gelesen habe.
Ich danke euch für's Drüberschauen!
Viele Grüße,
Jentopa
Vielen Dank @Mycraft
Meinst du ein zusätzliches Abluftventil im HAR? Eins ist ja geplant.
Spielt das Gebäudevolumen bei der Auslegung bzw. Berechnung keine Rolle?
Was ist deine Meinung zum Lüftungsgerät bzw. ist das ausreichend oder doch lieber eine Nummer größer (Q450)?
Noch kurz zu unseren besonderen Anforderungen falls du das meinst: möglichst Leise, insb. in den Schlafräumen. Daher mein Gedanke mit den 2 Zuluftventilen mit jeweils 1/2 Luftstrom - sofern das Sinn macht.
Sorry für die vielen Fragen.
Meinst du ein zusätzliches Abluftventil im HAR? Eins ist ja geplant.
Spielt das Gebäudevolumen bei der Auslegung bzw. Berechnung keine Rolle?
Was ist deine Meinung zum Lüftungsgerät bzw. ist das ausreichend oder doch lieber eine Nummer größer (Q450)?
Noch kurz zu unseren besonderen Anforderungen falls du das meinst: möglichst Leise, insb. in den Schlafräumen. Daher mein Gedanke mit den 2 Zuluftventilen mit jeweils 1/2 Luftstrom - sofern das Sinn macht.
Sorry für die vielen Fragen.
Jentopa schrieb:
Meinst du ein zusätzliches Abluftventil im HAR? Eins ist ja geplant.Das habe ich wohl übersehen.Jentopa schrieb:
Spielt das Gebäudevolumen bei der Auslegung bzw. Berechnung keine Rolle?Doch natürlich. Ist bei dir aber alles im grünen Bereich.Jentopa schrieb:
Was ist deine Meinung zum Lüftungsgerät bzw. ist das ausreichend oder doch lieber eine Nummer größer (Q450)?Die 350 ist ausreichend. Du kannst aber natürlich die 450er nehmen.Jentopa schrieb:
Noch kurz zu unseren besonderen Anforderungen falls du das meinst: möglichst Leise, insb. in den Schlafräumen. Daher mein Gedanke mit den 2 Zuluftventilen mit jeweils 1/2 Luftstrom - sofern das Sinn macht.Du kannst einfach ein größeres Ventil verbauen lassen, dann wird das Austrittsgeräusch nochmals leiser. Ich höre z.B. meine Anlage nur auf Volllast und ich habe einen sehr leichetn Schlaf.Ähnliche Themen