ᐅ 30 Jahre alte Dachgeschoss ETW Bewertung / Risiken
Erstellt am: 05.08.22 12:20
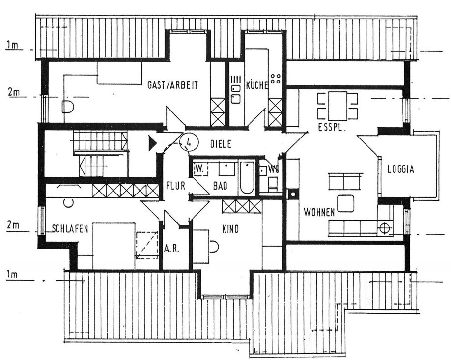
Für den denkbaren Kauf einer ETW-Wohnung würde ich hier gerne eure Meinungen zu Risiken und Renovierungsbedarf anfragen. Die wichtigsten Informationen zur Wohnung:
Der Preis der Wohnung wäre für die Lage, verglichen mit anderen Wohnungen, in Ordnung. Dennoch wurde an der Wohnung bis heute nicht viel renoviert. D.h. alles ist auf Stand von 1991. Entsprechend besteht die Sorge, dass die Folgekosten übermäßig hoch sein könnten. Somit möchte ich nachfragen:
Vielen herzlichen Dank für jede Hilfe




- BJ 1991
- Gas-Zentralheizung, BJ 2001
- Massivbau, 30cm Ziegel
- Holzfenster, zweifach-Verglaßung
- Dachgeschoss-Wohnung, 4-Parteien-Haus
- Energieverbrauch 105 m²a (Klasse D),
- Heizkosten nach Wirtschafts-Plan für 2022/2023 ca. 230 EUR pro Monat
- Scheint gut isoliert zu sein - Temperatur war in den letzten heißen Tagen bei ca. 24 Grad.
- Keine offensichtliche Probleme wie Schimmel.
- War bislang vermietet, ist unrenoviert
- Gefragte, ruhige Lage
Der Preis der Wohnung wäre für die Lage, verglichen mit anderen Wohnungen, in Ordnung. Dennoch wurde an der Wohnung bis heute nicht viel renoviert. D.h. alles ist auf Stand von 1991. Entsprechend besteht die Sorge, dass die Folgekosten übermäßig hoch sein könnten. Somit möchte ich nachfragen:
- Welche Vor/Nachteile würdet ihr bei der Wohnung grundsätzlich sehen (Bilder anbei)?
- Welche zwingenden Renovierungen stehen an? Zu rechnen wäre aus meiner Sicht mit den Fenster und den Bädern.
- Was sollte, wenn auch nicht zwingend, erneuert werden. Wir dachten an die Decken und die Fußböden.
- Kann insb. das Wohnzimmer mit dem einzelnen Heizkörper am Fenster warm gehalten werden?
- Stimmt es, dass das Risiko für Hellhörigkeit (insb. Trittschall) bei einer DG-Wohnung geringer ist?
Vielen herzlichen Dank für jede Hilfe
Fenster ist eh Gemeinschaftseigentum, da darfst du selber gar nicht renovieren. Woher soll der Trittschall (Körperschall) herkommen , wenn über dir niemand wohnt. du hast nur den Luftschall von den Wohnungen unter dir.
Soll weiter vermietet werden mit den bestehenden Mietern? Neue Mieter wird in dem Retrolook schwer werden, außer die Miete ist niedrig.
Selber einziehen würde ich auch nicht. Renovierungskosten lassen sich aber besser beim Finanzamt abschreiben, als gleich eine bessere Wohnung kaufen
Soll weiter vermietet werden mit den bestehenden Mietern? Neue Mieter wird in dem Retrolook schwer werden, außer die Miete ist niedrig.
Selber einziehen würde ich auch nicht. Renovierungskosten lassen sich aber besser beim Finanzamt abschreiben, als gleich eine bessere Wohnung kaufen
Zu deinen Fragen kann ich nicht viel beitragen, aber bei einer WEG mit 4 Wohnungen sollte unbedingt genaustens unter die Lupe genommen werden: Gab es in den letzten Jahren viel Streit, stehen Sanierungen/Sonderumlagen an, gibt es eine Verwaltung, wie hoch ist das Wohngeld und am aller wichtigsten: Passen die Leute zu dir.
Vielen Dank für die Antworten!
Bei dieser ETW sind Fenster Sondereigentum und wurden von anderen Bewohnern (alles Eigentümer) bereits erneurt.
Hatte es schon einmal erlebt, dass Trittgeräusche von einer Wohnung unterhalb hörbar waren. Vermutlich wurde der Trittschall über die Wände übertragen. Dieser war aber relativ leise, dennoch hörbar. Hat man beim Luftschall im DG auch Vorteile? Da man ja weniger Außenwände hat, müsste auch dieser reduziert sein?
Die Wohnung soll selbst bewohnt werden und der "Retro-Look :-)" wo möglich verbessert werden. Also Holzdecken durch Gipskarton ersetzten oder weiß streichen. Fenster innen weiß streichen. Neue Innentüren und Vinyl-Boden wo einfach möglich. Was wären die Gründe, weshalb du nicht selber einziehen würdest?
Grundaus schrieb:
Fenster ist eh Gemeinschaftseigentum, da darfst du selber gar nicht renovieren.
Bei dieser ETW sind Fenster Sondereigentum und wurden von anderen Bewohnern (alles Eigentümer) bereits erneurt.
Grundaus schrieb:
Woher soll der Trittschall (Körperschall) herkommen , wenn über dir niemand wohnt. du hast nur den Luftschall von den Wohnungen unter dir.
Hatte es schon einmal erlebt, dass Trittgeräusche von einer Wohnung unterhalb hörbar waren. Vermutlich wurde der Trittschall über die Wände übertragen. Dieser war aber relativ leise, dennoch hörbar. Hat man beim Luftschall im DG auch Vorteile? Da man ja weniger Außenwände hat, müsste auch dieser reduziert sein?
Grundaus schrieb:
Soll weiter vermietet werden mit den bestehenden Mietern? Neue Mieter wird in dem Retrolook schwer werden, außer die Miete ist niedrig.
Die Wohnung soll selbst bewohnt werden und der "Retro-Look :-)" wo möglich verbessert werden. Also Holzdecken durch Gipskarton ersetzten oder weiß streichen. Fenster innen weiß streichen. Neue Innentüren und Vinyl-Boden wo einfach möglich. Was wären die Gründe, weshalb du nicht selber einziehen würdest?
Lotti88 schrieb:
Zu deinen Fragen kann ich nicht viel beitragen, aber bei einer WEG mit 4 Wohnungen sollte unbedingt genaustens unter die Lupe genommen werden: Gab es in den letzten Jahren viel Streit, stehen Sanierungen/Sonderumlagen an, gibt es eine Verwaltung, wie hoch ist das Wohngeld und am aller wichtigsten: Passen die Leute zu dir.Die Wohnung hat einen Verwalter, die Protokolle waren soweit ohne auffällige Punkte. Bewohner konnte ich bislang nur einen sprechen. Hier war die Aussage, dass es sich um ein ruhiges Haus handelt. Nachbar-Wohnungen unter der ETW gibt es zwei, immer Paarweise bewohnt. Damit sicher ein Risiko, dass es ggf. nicht harmoniert.
A
Axolotl-neu08.08.22 11:39jjoschyy schrieb:
Bei dieser ETW sind Fenster Sondereigentum und wurden von anderen Bewohnern (alles Eigentümer) bereits erneurt.Nö, das stimmt nicht. Ist gesetzlich geregelt im WEG - Fenster sind IMMER Gemeinschaftseigentum. Davon kann auch in der Teilungserklärung oder Gemeinschaftsordnung nicht abgewichen werden bzw. Abweichung sind ungültig.*Klugscheißermodus aus*
Kann interessant werden, wenn mal ein Bewohner quer schießt. Im schlimmsten Fall müssen die neuen Fenster dann wieder raus. Deshalb mein Hinweis.
Bei einem 91er Baujahr würde ich bei einer vernünftigen Lage und halbwegs ordentlicher Nachfrage absolut nichts an der Wohnung machen.
Denn eine teure Sanierung kann im Zweifel nicht direkt abgeschrieben werden, sondern wird ggf. als nachträgliche Anschaffungs- und Herstellungskosten gewertet. Lieber mal bei einem Mieterwechsel in ein paar Jahren ein neues Bad oder neue Türen oder neuer Boden. Die kannst Du dann direkt als Werbungskosten absetzen und somit im besten Fall mit 42% bei der Steuer zurück bekommen.
Ähnliche Themen