ᐅ Grundriss und Raumkonzept Familien-Maisonette-Wohnung: Wo kommt was hin?
Erstellt am: 25.09.25 13:07
F
familienheim25.09.25 13:07Hallo zusammen!
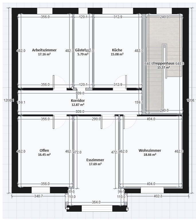
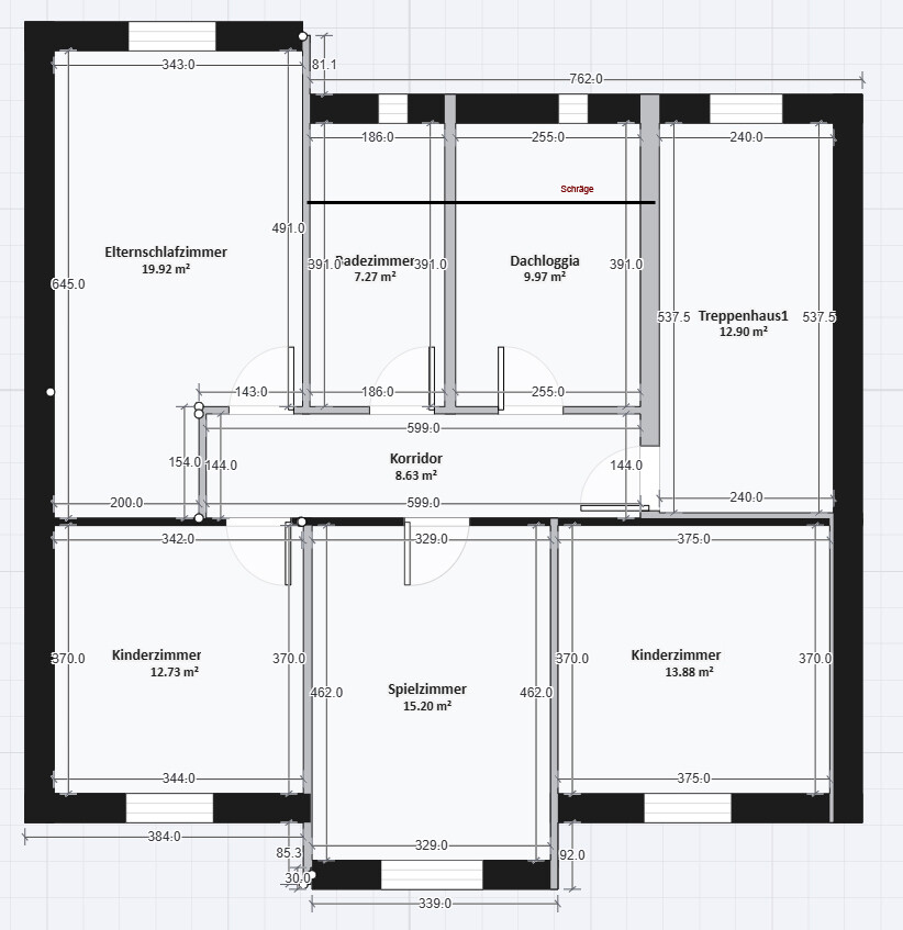
Wir brauchen mal Rat zur Raumnutzung einer Altbau-Maisonette (Decken ca. 3,10m hoch, Holzbalkendecken). Insgesamt gibt es viele Räume und viel Fläche, aber wir sind uns unschlüssig über die Raumaufteilung. Da ohnehin saniert werden soll, sind wir derzeit noch recht frei, welcher Raum wie genutzt werden soll. Das Treppenhaus ist abgetrennt und gehört insofern zur Wohnung.
Die Raumbeschriftungen in den Skizzen sind vorläufig. Derzeit sind unsere Überlegungen:
Es gibt auch noch einen (derzeit nicht ausgebauten) Spitzboden, der ggf. noch als Spielfläche bzw. Kreativbereich für die Kids nutzbar gemacht werden könnte (sich aber aufgrund der Höhe nicht als Arbeitszimmer eignet).
Vielen Dank euch im Voraus! Kreative Ideen - auch "outside the box" - nehmen wir gerne und sind empfänglich dafür 🙂


Wir brauchen mal Rat zur Raumnutzung einer Altbau-Maisonette (Decken ca. 3,10m hoch, Holzbalkendecken). Insgesamt gibt es viele Räume und viel Fläche, aber wir sind uns unschlüssig über die Raumaufteilung. Da ohnehin saniert werden soll, sind wir derzeit noch recht frei, welcher Raum wie genutzt werden soll. Das Treppenhaus ist abgetrennt und gehört insofern zur Wohnung.
Die Raumbeschriftungen in den Skizzen sind vorläufig. Derzeit sind unsere Überlegungen:
- Wohnzimmer/Esszimmer/Küche wollen wir zu einem einheitlichen Wohn-/Ess-/Kochbereich machen, d.h. die Wände dort insofern öffnen.
- Einbau Dachloggia im DG.
- Zwischen rechtem "Kinderzimmer" und "Spielzimmer" soll eine Wand eingebaut werden mit Tür, um ein Kinderzimmer und ein Spielzimmer einzurichten und das so aufzuteilen.
- 2 Kinderzimmer (möglichst nicht direkt nebeneinander, da Kids sehr geräuschsensibel)
- 2 Homeoffice-Arbeitsplätze (in getrennten Räumen; möglichst (wegen Telefonieren) auf verschiedenen Ebenen).
- Ideen, wie wir körperlichen Aktivitätsraum für die Kids schaffen können (Kletterwand? Schaukel? Turnstange?)
- Ideen für die Dachloggia: Wie soll die aussehen? Soll vorne ein Meter vom Raum bestehen bleiben, ggf. für kleine Kaffee/Kühlschrankecke (zur Versorgung der Dachloggia) oder Arbeitsecke?
- Kleiderschränke für Eltern? Wohin?
Es gibt auch noch einen (derzeit nicht ausgebauten) Spitzboden, der ggf. noch als Spielfläche bzw. Kreativbereich für die Kids nutzbar gemacht werden könnte (sich aber aufgrund der Höhe nicht als Arbeitszimmer eignet).
Vielen Dank euch im Voraus! Kreative Ideen - auch "outside the box" - nehmen wir gerne und sind empfänglich dafür 🙂
N
nordanney25.09.25 13:18Mehrfamilienhaus?
Zustimmung WEG?
Statik?
Abwasser läuft wie vom Bad DG über OG in welchen Raum darunter?
Budget?
Kernsanierung?
Himmelsausrichtung/Lageplan?
Spielzimmer mit Krach direkt zwischen den Kinderzimmern, in denen "lärmsensible" Kinder leben?
Usw.
Erzähl mal viel mehr zum Objekt und Eurer Lebensplanung.
Zustimmung WEG?
Statik?
Abwasser läuft wie vom Bad DG über OG in welchen Raum darunter?
Budget?
Kernsanierung?
Himmelsausrichtung/Lageplan?
Spielzimmer mit Krach direkt zwischen den Kinderzimmern, in denen "lärmsensible" Kinder leben?
Usw.
Erzähl mal viel mehr zum Objekt und Eurer Lebensplanung.
F
familienheim25.09.25 13:37Das mache ich sehr gerne. Es handelt sich um ein Mehrfamilienhaus, uns sind das 2. OG und das darüber liegende DG. Beide Etagen sind vom Treppenhaus zugänglich, das wir allerdings vor dem 2. OG abtrennen werden (sodass es quasi "Haus-im-Haus" wird).
Ich hoffe, jetzt ist der Kontext klarer. Ich freue mich auf Ideen und Vorschläge.
- WEG-rechtlich ist nichts zu beachten, da unproblematisch.
- Statik: Offen. Holzbalkendecken aus der Zeit um 1910.
- Budget: Da modernisierungsbedürftig haben wir einiges mit eingeplant. Da aber kleine Kids, wollen wir nicht "luxus" sanieren, sondern eher moderat und wenn möglich, erhalten was geht (also auch möglichst Wände nicht versetzen, nur wenn erforderlich sein sollte).
- Kernsanierung: Jedenfalls Elektrik/Wasser/Heizung/Fenster. Daher auch Boden und Wände neu.
- Himmelausrichtung: Küche zum Osten (leicht Nord), Kinderzimmer zum Westen (leicht Süd).
- Dachloggia ist wichtig, da kein Garten. Nur vor der Küche (2. OG) gibt es einen kleinen Balkon (der in der Skizze fehlt).
Ich hoffe, jetzt ist der Kontext klarer. Ich freue mich auf Ideen und Vorschläge.
Ohne die Informationen, die nordanney schon angefragt hat, ist eine qualifizierte Aussage zu den Umbauwünschen nicht möglich. Sie bennen eine Maisonette- WHG : ich sehe aber keine interne Treppe. Das Treppenhaus kann nicht gemeint sein : in einem Mehrfamilienhaus wäre eine solche Zusammenlegung von zwei WHG über das Treppenhaus (1. Rettungsweg) zu einer "Maisonette-"-WHG baurechtlich nicht gestattet. In einem Zweifamilienhaus müssten Sie die Umnutzung zu einem Einfamilienhaus baugenehmigen lassen. Da besteht also noch Klärungsbedarf bei der Ausgangssituation.
Abgesehen davon benötigen Sie für den Umbau einen Architekten (Dachloggia/Veränderung tragender Bauteile etc.). Dieser benötigt für seinen Projektplanungen vor allem aktuelle Bestandspläne, die am besten über einen 3D-Gebäudescan eines darauf spezialisierten Ingenieurbüros und daraus entwickelten 2D-Bestandsplänen als Planungsgrundlage erstellt werden. Auf dieser Grundlage erfolgt eine Bauaufnahme, in der alle konstruktiven/statischen Fragen geklärt werden, die mit der Umbauplanung in Zusammenhang stehen. Danach würde der Architekt nach Absprache mit Ihnen einen realistischen Vorentwurf mit Kostenschätzung anfertigen, der baugenehmigungsfähig sein muss.
Das wäre die professionelle Vorgehensweise, die am ehesten eine Projektplanung liefert, die später auch tatsächlich realisiert werden kann.
PS : Ich hatte die letzten Informationen zum Objekt noch nicht gesehen.
Abgesehen davon benötigen Sie für den Umbau einen Architekten (Dachloggia/Veränderung tragender Bauteile etc.). Dieser benötigt für seinen Projektplanungen vor allem aktuelle Bestandspläne, die am besten über einen 3D-Gebäudescan eines darauf spezialisierten Ingenieurbüros und daraus entwickelten 2D-Bestandsplänen als Planungsgrundlage erstellt werden. Auf dieser Grundlage erfolgt eine Bauaufnahme, in der alle konstruktiven/statischen Fragen geklärt werden, die mit der Umbauplanung in Zusammenhang stehen. Danach würde der Architekt nach Absprache mit Ihnen einen realistischen Vorentwurf mit Kostenschätzung anfertigen, der baugenehmigungsfähig sein muss.
Das wäre die professionelle Vorgehensweise, die am ehesten eine Projektplanung liefert, die später auch tatsächlich realisiert werden kann.
PS : Ich hatte die letzten Informationen zum Objekt noch nicht gesehen.
F
familienheim25.09.25 14:04Danke schon mal für die Rückmeldung! Das hilft bei der Konkretisierung. Bestandspläne gibt es natürlich. Und klar brauchen wir für Dachloggia + Treppenhaus einen Architekten. Gleichwohl stellt sich die Frage des Raumkonzepts...
Das Raumkonzept erarbeitet Ihnen der beauftragte Architekt - dafür wird er bezahlt. Er tut dies auf einer realistischen Planungsgrundlage, wie bereits beschrieben. Mit Bestandszeichnungen meine ich nicht die Original-Baugenehmigungspläne, sondern aktuell erstellte Aufmaßpläne, die den Jetzt-Zustand darstellen.
Abgesehen davon bleibt natürlich vorab zu prüfen, ob die Wohnung im DG, auf die Sie sich beziehen, in der Original-Baugenehmigung bereits als solche genehmigt worden ist oder ob es nur der "Trockenspeicher war, ev. mit ein oder zwei "Kammern", die aber keine abgeschlossene Wohnung darstellen. Wenn das der Fall ist, muss die Umnutzung des DG zu Wohnraum grundsätzlich baurechtlich geprüft werden.
Abgesehen davon bleibt natürlich vorab zu prüfen, ob die Wohnung im DG, auf die Sie sich beziehen, in der Original-Baugenehmigung bereits als solche genehmigt worden ist oder ob es nur der "Trockenspeicher war, ev. mit ein oder zwei "Kammern", die aber keine abgeschlossene Wohnung darstellen. Wenn das der Fall ist, muss die Umnutzung des DG zu Wohnraum grundsätzlich baurechtlich geprüft werden.
Ähnliche Themen