ᐅ Abdichtung Hauswand / Terrasse
Erstellt am: 01.04.17 20:54
S
Sinus198601.04.17 20:54Guten Abend Zusammen,
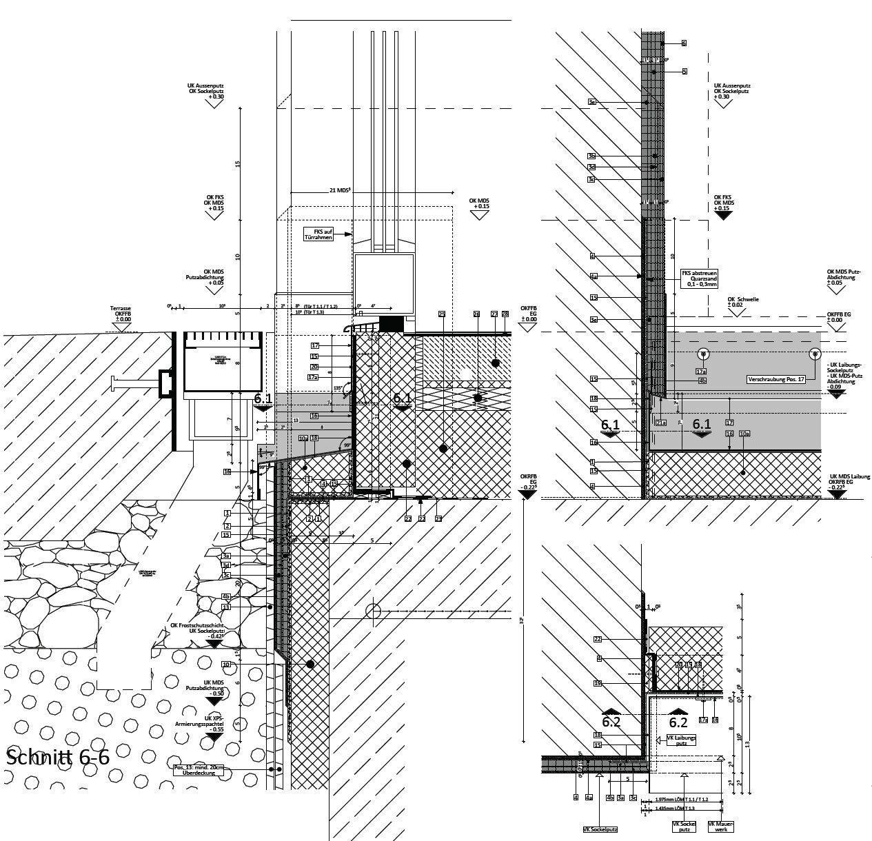
Wir beschäftigen uns derzeit mit dem Terrasse(auf-)Bau.
Das Haus steht soweit. Die Bodenplatte wurde auf einer Schotterschicht aufgebaut und die Bodenplatte Seiten entsprechend gedämmt.
Nun haben wir uns Terrassentüren ausgesucht, die einen Bodenebenen Übergang zur Terrasse ermöglichen sollen.
Die Terrasse soll ebenfalls auf einer Schotter/-Kiesschicht aufgebaut werden.
Dabei stellt sich mit dir Frage, wir hier eine vernünftige Abdichtung aussieht.
Vor der vorhandenen Bodenplatte Dämmung würden wir noch eine Noppenbahn anbringen, um die Dämmung zu schützen. Zusätzlich werden wir ein Gefälle realisieren <5%). Was sollte man noch darüber hinaus durchführen?
Außenputz ist noch nicht aufgetragen. Daher haben wir hier noch alle Möglichkeiten.
P.s. anbei ein Bild über die aktuelle Situation.
Freue mich auf eure Antworten.
Gruß Andre


Wir beschäftigen uns derzeit mit dem Terrasse(auf-)Bau.
Das Haus steht soweit. Die Bodenplatte wurde auf einer Schotterschicht aufgebaut und die Bodenplatte Seiten entsprechend gedämmt.
Nun haben wir uns Terrassentüren ausgesucht, die einen Bodenebenen Übergang zur Terrasse ermöglichen sollen.
Die Terrasse soll ebenfalls auf einer Schotter/-Kiesschicht aufgebaut werden.
Dabei stellt sich mit dir Frage, wir hier eine vernünftige Abdichtung aussieht.
Vor der vorhandenen Bodenplatte Dämmung würden wir noch eine Noppenbahn anbringen, um die Dämmung zu schützen. Zusätzlich werden wir ein Gefälle realisieren <5%). Was sollte man noch darüber hinaus durchführen?
Außenputz ist noch nicht aufgetragen. Daher haben wir hier noch alle Möglichkeiten.
P.s. anbei ein Bild über die aktuelle Situation.
Freue mich auf eure Antworten.
Gruß Andre
Das ist ein komplexes und schadensträchtiges Detail, bei dem mehrere Gewerke koordiniert werden müssen, insbesondere dann, wenn es wirklich ein sog. "barrierefreier" Übergang zwischen innen und außen werden soll, Max. mit einer 2cm-Sockelschwelle. Dieses Detail muß von einem unabhängigen Planer vorher entwickelt werden, der dann auch die Ausschreibung/Vergabe an die entsprechenden Fachfirmen und die Bauleitung übernimmt.
Die Gewerke Abdichtung/Putz/, eventuell Blech- und Kantarbeiten und die Gala-Bauarbeiten müssen Hand in Hand und manchmal kurz hintereinander in mehreren Durchgängen die mehrlagigen Details ausführen. Ungeplante Handwerkerbasteleien und spontane Entscheidungen auf der Baustelle sind wirklich nicht zielführend, was man wahrscheinlich 1-2 Jahre später sehen wird. Das, was bereits jetzt zu sehen ist, geht genau in diese = falsche Richtung und sollte zurückgebaut werden.


Die Gewerke Abdichtung/Putz/, eventuell Blech- und Kantarbeiten und die Gala-Bauarbeiten müssen Hand in Hand und manchmal kurz hintereinander in mehreren Durchgängen die mehrlagigen Details ausführen. Ungeplante Handwerkerbasteleien und spontane Entscheidungen auf der Baustelle sind wirklich nicht zielführend, was man wahrscheinlich 1-2 Jahre später sehen wird. Das, was bereits jetzt zu sehen ist, geht genau in diese = falsche Richtung und sollte zurückgebaut werden.
S
Sinus198603.04.17 13:59Unser Bauleiter schrieb folgendes:
1.) das rote Styrodur wird beim Aufputz zur Hälfte mitverputzt
2.) anschließend kommt eine Abdichtschlämme auf den Putz
3.) im Bereich wo Pflaster hinkommt, wird eine Dachpappe gegen das Mauerwerk gestellt, die oben mit dem Pflaster bündig abgeschnitten wird
4.) wo kein Pflaster bzw. wo nur Erde/ Schotter hinkommt, wird nur beigefüllt
1.) das rote Styrodur wird beim Aufputz zur Hälfte mitverputzt
2.) anschließend kommt eine Abdichtschlämme auf den Putz
3.) im Bereich wo Pflaster hinkommt, wird eine Dachpappe gegen das Mauerwerk gestellt, die oben mit dem Pflaster bündig abgeschnitten wird
4.) wo kein Pflaster bzw. wo nur Erde/ Schotter hinkommt, wird nur beigefüllt
Ähnliche Themen