ᐅ Einfamilienhaus barrierefrei - erste Entwürfe
Erstellt am: 14.03.26 12:09
Hallo zusammen,
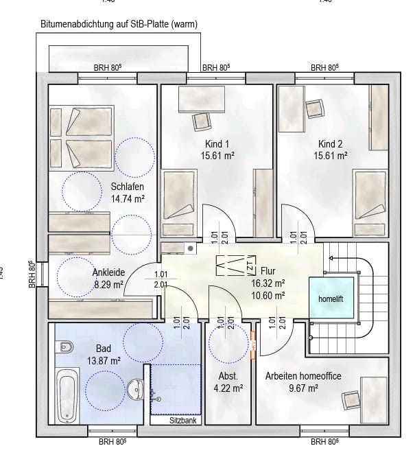
wir planen unser Einfamilienhaus und benötigen eure Unterstützung. Wir haben die ersten Entwürfe der Architektin erhalten und sind grundsätzlich ganz zufrieden damit. Was uns gar nicht gefällt ist der riesengroße Flur im Erdgeschoss, der trotz der Größe keinen guten Ort für eine Garderobe und Sitzbank(*) bietet, uns fällt aber auch keine gute Alternative ein. Aufgrund der Beschränkungen (Nachbarschaftsbebauung) dürfen wir nicht größer als 12x12m bauen und müssen einen Aufzug einbauen damit auch die obere Etage für mich als (Teilzeit-)Rollstuhlfahrerin zugänglich ist. Wir möchten einen Platform Lift (wahrscheinlich von der Firma aritco) einbauen, dieser müsste auch nicht direkt bei der Treppe sein, sondern könnte an jeder anderen Stelle verbaut werden.
Bebauungsplan/Einschränkungen
Größe des Grundstücks: ca. 900qm
Hang: das Grundstück steigt nach hinten hin (zum Wald) leicht an
Grundflächenzahl: 1
Geschossflächenzahl: 2
Anzahl Stellplatz: 2
Geschossigkeit: max 2 Vollgeschosse
Dachform: Walmdach
Stilrichtung: modern
Ausrichtung: Terrasse Richtung Süden (Wald)
weitere Vorgaben: Nachbarschaftsbebauung: max 12x12m überbaute Fläche plus Dachüberstand
Anforderungen der Bauherren
Stilrichtung, Dachform, Gebäudetyp: "Stadtvilla" mit zwei Vollgeschossen, Walmdach
Keller, Geschosse: kein Keller
Anzahl der Personen, Alter: zwei Erwachsene Personen, davon eine Rollstuhlfahrerin, aktuell ein Kind (2 Jahre), weiteres Kind in Planung
Raumbedarf im EG: Gästezimmer (nicht verhandelbar da regelmäßiger und viel Besuch über Nacht), Gästebad mit Dusche, Hauswirtschaftsraum, Wohnessbereich mit offener Küche
Raumbedarf im OG: Schlafzimmer mit Ankleide, zwei Kinderzimmer, Arbeitszimmer, Bad mit Wanne und Dusche
Büro: dauerhaft Homeoffice
Schlafgäste pro Jahr: viele
offene Küche, Kochinsel
Anzahl Essplätze: aktuell 3, später 4
Kamin: ja
Musik/Stereowand: ja
Balkon, Dachterrasse: Terrasse im EG
Garage, Carport: wahrscheinlich eher Carport, aktuell noch nicht in der Planung enthalten
weitere Wünsche/Besonderheiten/Tagesablauf: besonders wichtig ist, dass das gesamte Haus mit Rollstuhl gut nutzbar ist
Hausentwurf
Von wem stammt die Planung:
-Planung stammt vom Architekten des Bauunternehmens
insgesamt gefällt uns die Planung, allerdings finden wir den Flur im EG viel zu groß und unpraktisch. Was wir bereits umgeplant haben ist die Abstellkammer im OG, hier haben wir die Fläche auf Bad und Arbeitszimmer verteilt. Wir könnten uns auch vorstellen im EG den Hauswirtschaftsraum mit dem Gästebad zu tauschen, wichtig wäre, dass hier in der Nähe der Haustür Platz für eine Garderobe mit Sitzbank entsteht. Wir hatten überlegt, unter die Treppe eine Abstellkammer für Rollstuhl und Kinderwagen zu planen, allerdings müsste man aktuell durch den ganzen Flur laufen um dorthin zu gelangen und würde dabei alles dreckig machen.
Wir können weder auf das Gästezimmer noch auf das Büro verzichten, es funktioniert für uns nicht, beides in ein Zimmer zu legen da wir sehr oft Gäste auch unter der Woche haben und das Homeoffice dauerhaft genutzt wird.
Ich freue mich über eure Ideen.





wir planen unser Einfamilienhaus und benötigen eure Unterstützung. Wir haben die ersten Entwürfe der Architektin erhalten und sind grundsätzlich ganz zufrieden damit. Was uns gar nicht gefällt ist der riesengroße Flur im Erdgeschoss, der trotz der Größe keinen guten Ort für eine Garderobe und Sitzbank(*) bietet, uns fällt aber auch keine gute Alternative ein. Aufgrund der Beschränkungen (Nachbarschaftsbebauung) dürfen wir nicht größer als 12x12m bauen und müssen einen Aufzug einbauen damit auch die obere Etage für mich als (Teilzeit-)Rollstuhlfahrerin zugänglich ist. Wir möchten einen Platform Lift (wahrscheinlich von der Firma aritco) einbauen, dieser müsste auch nicht direkt bei der Treppe sein, sondern könnte an jeder anderen Stelle verbaut werden.
Bebauungsplan/Einschränkungen
Größe des Grundstücks: ca. 900qm
Hang: das Grundstück steigt nach hinten hin (zum Wald) leicht an
Grundflächenzahl: 1
Geschossflächenzahl: 2
Anzahl Stellplatz: 2
Geschossigkeit: max 2 Vollgeschosse
Dachform: Walmdach
Stilrichtung: modern
Ausrichtung: Terrasse Richtung Süden (Wald)
weitere Vorgaben: Nachbarschaftsbebauung: max 12x12m überbaute Fläche plus Dachüberstand
Anforderungen der Bauherren
Stilrichtung, Dachform, Gebäudetyp: "Stadtvilla" mit zwei Vollgeschossen, Walmdach
Keller, Geschosse: kein Keller
Anzahl der Personen, Alter: zwei Erwachsene Personen, davon eine Rollstuhlfahrerin, aktuell ein Kind (2 Jahre), weiteres Kind in Planung
Raumbedarf im EG: Gästezimmer (nicht verhandelbar da regelmäßiger und viel Besuch über Nacht), Gästebad mit Dusche, Hauswirtschaftsraum, Wohnessbereich mit offener Küche
Raumbedarf im OG: Schlafzimmer mit Ankleide, zwei Kinderzimmer, Arbeitszimmer, Bad mit Wanne und Dusche
Büro: dauerhaft Homeoffice
Schlafgäste pro Jahr: viele
offene Küche, Kochinsel
Anzahl Essplätze: aktuell 3, später 4
Kamin: ja
Musik/Stereowand: ja
Balkon, Dachterrasse: Terrasse im EG
Garage, Carport: wahrscheinlich eher Carport, aktuell noch nicht in der Planung enthalten
weitere Wünsche/Besonderheiten/Tagesablauf: besonders wichtig ist, dass das gesamte Haus mit Rollstuhl gut nutzbar ist
Hausentwurf
Von wem stammt die Planung:
-Planung stammt vom Architekten des Bauunternehmens
insgesamt gefällt uns die Planung, allerdings finden wir den Flur im EG viel zu groß und unpraktisch. Was wir bereits umgeplant haben ist die Abstellkammer im OG, hier haben wir die Fläche auf Bad und Arbeitszimmer verteilt. Wir könnten uns auch vorstellen im EG den Hauswirtschaftsraum mit dem Gästebad zu tauschen, wichtig wäre, dass hier in der Nähe der Haustür Platz für eine Garderobe mit Sitzbank entsteht. Wir hatten überlegt, unter die Treppe eine Abstellkammer für Rollstuhl und Kinderwagen zu planen, allerdings müsste man aktuell durch den ganzen Flur laufen um dorthin zu gelangen und würde dabei alles dreckig machen.
Wir können weder auf das Gästezimmer noch auf das Büro verzichten, es funktioniert für uns nicht, beides in ein Zimmer zu legen da wir sehr oft Gäste auch unter der Woche haben und das Homeoffice dauerhaft genutzt wird.
Ich freue mich über eure Ideen.
gsn24 schrieb:
(Teilzeit-)RollstuhlfahrerinUih, das liest sich nicht gut. Aber was bedeutet es für Dich bzw dem Haus? Wie ist denn die Prognose für Dich? Das Haus soll ja einige Zeit Euer Heim werden, da wäre (für ich) als Ratgebende wichtig, was da noch kommt bzw kommen kann.
Adhoc würde ich aus dem großen Gästezimmer ein Schlafzimmer mit Elternbad machen, Technik und Gast nach oben.
(Große Diele ist der Anordnung des Liftes innerhalb des Treppenauges geschuldet). das geht eventuell besser.
ypg schrieb:
Aber was bedeutet es für Dich bzw dem Haus? Wie ist denn die Prognose für Dich?Hallo ypg, danke für deine schnelle Antwort. Für uns bedeutet das, dass wir das gesamte Haus rollstuhlgerecht bauen, so dass es für mich dauerhaft in den wichtigsten Räumen gut erreichbar und nutzbar bleibt. Die Prognose kann ich dir nicht genau sagen, es ist möglich, dass ich in Zukunft den Rollstuhl auch im Haus nutzen werde, aktuell nutze ich ihn nur draußen.
ypg schrieb:
Adhoc würde ich aus dem großen Gästezimmer ein Schlafzimmer mit Elternbad machen, Technik und Gast nach oben.Warum würdest du es so machen? Durch den Lift ist ja auch die obere Etage immer für mich erreichbar.
ypg schrieb:
das geht eventuell besser.ja das. war auch unser Gedanke, hast du einen Vorschlag?
gsn24 schrieb:
Warum würdest du es so machen? Durch den Lift ist ja auch die obere Etage immer für mich erreichbar.Aber mit einem Aufwand! Wenn ich bedenke, wie oft ich die Treppen laufe, nur um aus dem Kleiderschrank etwas zu holen, in mein geräumiges Bad will oder am Bett etwas vergessen habe und da schon manches Mal die Treppe verfluche, dann ist zwar ein Lift praktisch, um von einer Etage in die andere zu kommen, aber immer noch ein Hindernis, wenn auch nur ein zeitliches.
Als ich erst nur den Text gelesen habe mit den 12 x 12, da dachte ich (ohne den Entwurf zu sehen): prima, 120qm auf einer Ebene sind die besten Voraussetzungen für das Wohnen von 2 Personen auf einer Ebene. Dazu dann zwei Kinderzimmer und Büro/Gastoption im Dachgeschoss, und man bekommt alles gut sortiert in einen Eingeschosser mit Dachausbau unter.
Dann lese ich das Wort "Stadtvilla" und denke mir, dass das für mich mit dem Thema "Rollstuhlgerechtes Wohnen" fast nicht passt. Nun muss man ja aber auch die Fläche von 12 x 12 von meiner Seite aus verherrlichen, deshalb ist Raum oben notwendig, aber auch ein Lift bietet nicht alle freien Möglichkeiten an. So sitzt Du da in der Lift-Kabine, mit Säugling nach oben ins Schlafzimmer ist das so einfach schonmal nicht. Ich suche auch in dem doch großen Haus adäquaten Platz zum Wäschewachen und -trocknen.
gsn24 schrieb:
Raumbedarf im EG: Gästezimmer (nicht verhandelbar da regelmäßiger und viel Besuch über Nacht)Ich halte es für sinnlos, für Gäste, die zwar häufig kommen sollen, einen großen Raum im EG freizuhalten, wenn der Raum bzw der Platz doch in der Alltagstauglichkeit eher gebraucht wird, und zwar von den Bewohnern, nicht von Gästen, die halt nur Gast sind und selbst ein Heim haben.
Ich zweifel ja das Gästezimmer gar nicht an, aber das hat oben auch Platz.
Nun schreibst Du auch, dass Du derzeit im Haus ohne Rollstuhl klar kommst. Aber das kann sich anscheinend eher auch auf das Haus erweitern, ist also keine temporäre Angelegenheit, sondern dauerhaft und eher mit einer Negativprognose behaftet.
Aber das ist nur meine Meinung.
gsn24 schrieb:
ja das. war auch unser Gedanke, hast du einen Vorschlag?Naja, man setzt nicht einfach mal die Treppe um und gut ist. Das wird dann jeden Raum betreffen und verändern.
Ich kann da nur voll bei Yvonne @ypg unterschreiben.
12x12 m .. quadratische Häuser sind im Grunde die schlechteste Basis für eine gelungenge Raumaufteilung.
Wenn ich es richtig sehe, sind die Bewegungskreise aktuell mit 100 cm Durchmesser eingezeichnet. Ist das ideal, wenn es auch auf eine Innennutzung Rollstuhl hinauslaufen kann? Sollte dann nicht wenig der eigene Schlaf/Badbereich auf Bewegungskreise bis 150 cm gehen?
Wer nutzt denn das Homeoffice? Die Rollstuhlfahrerin?
Ich denke, diese Hausplanung sollte mit Fachkräften aus dem Bereich Behindertenwohnplanung stattfinden.
Und, es sollten wirklich alle Lebenssituationen mal durchgegangen werden. Ich sehe da Gäste auch eher oben, evtl. auch Haustechnik/HAR.
12x12 m .. quadratische Häuser sind im Grunde die schlechteste Basis für eine gelungenge Raumaufteilung.
Wenn ich es richtig sehe, sind die Bewegungskreise aktuell mit 100 cm Durchmesser eingezeichnet. Ist das ideal, wenn es auch auf eine Innennutzung Rollstuhl hinauslaufen kann? Sollte dann nicht wenig der eigene Schlaf/Badbereich auf Bewegungskreise bis 150 cm gehen?
Wer nutzt denn das Homeoffice? Die Rollstuhlfahrerin?
Ich denke, diese Hausplanung sollte mit Fachkräften aus dem Bereich Behindertenwohnplanung stattfinden.
Und, es sollten wirklich alle Lebenssituationen mal durchgegangen werden. Ich sehe da Gäste auch eher oben, evtl. auch Haustechnik/HAR.
gsn24 schrieb:
weitere Vorgaben: Nachbarschaftsbebauung: max 12x12m überbaute Fläche plus Dachüberstandkbt09 schrieb:
12x12 m .. quadratische Häuser sind im Grunde die schlechteste Basis für eine gelungenge Raumaufteilung.Ich lese aus dem Katasterausschnitt kein derartiges faktisches Baufenster vorgegeben und kann es mir auch nicht recht sauber kodifiziert vorstellen, unter §34 ausgerechnet ein 12x12 m Quadrat vorzugeben - schon eher nach der faktischen Grundflächenzahl, daß sich Mitte der 140er qm Grundfläche ergeben. Ein Quadratgrundriss wäre allerdings in der Tat erst ab etwa 12 m Kantenlänge (exkl. Zuschlag für Mobilitätseinschränkungen) erträglich. Ich würde also klar ein quadratferneres Seitenverhältnis bevorzugen und empfehlen (mindestens 5:4). Welchen Zweck verfolgt die Ausbuchtung des Wohnzimmers ?
gsn24 schrieb:
Wir haben die ersten Entwürfe der Architektin erhalten und sind grundsätzlich ganz zufrieden damit.Mir erscheint die Einbettung in die Umgebung nicht realistisch. Die "Architektin" vermute ich mal im Back Office des vertrieblichen Ansprechpartners angesiedelt und empfehle grundsätzlich eine anbieter- (und bauweisen-) neutrale "Modul A" Planung, sowie auch bei nullbarriere.de hereinzuschauen. Eine Schwalbe macht noch keinen Sommer, und so macht auch das Einzeichnen von Rollstuhlwendekreisen noch keine Barrierefreiheit.
gsn24 schrieb:
Die Prognose kann ich dir nicht genau sagen, es ist möglich, dass ich in Zukunft den Rollstuhl auch im Haus nutzen werde, aktuell nutze ich ihn nur draußen.Prognose und nur draußen klingt nach MS oder dergleichen. Muskelschwäche, Gleichgewichtsstörungen, die Gründe für die Benutzung einer Gehalternative sind vielfältig. Wie weit ist denn geklärt, ob ein Aufzug überhaupt geeigneter ist als ein Steigungslift ?
ypg schrieb:
Ich halte es für sinnlos, für Gäste, die zwar häufig kommen sollen, einen großen Raum im EG freizuhalten, wenn der Raum bzw der Platz doch in der Alltagstauglichkeit eher gebraucht wird, und zwar von den Bewohnern, nicht von Gästen, die halt nur Gast sind und selbst ein Heim haben.Immerhin bringt die Anordnung eines Gästezimmers im EG auch "Achslast" dorthin, und damit Potential für eine Entscheidung pro "Anderthalbgeschösser" statt Anstattvilla. In jedem Fall würde ich es dort platzieren, wo es sich in der für die Grundrissplanung besseren "Waagschale" befindet.
https://www.instagram.com/11antgmxde/
https://www.linkedin.com/company/bauen-jetzt/
Ähnliche Themen