एकल-परिवार घर का मंजिल योजना वास्तुशिल्प योजना

  • Erstellt am 05/06/2015 18:29:06

ypg

07/06/2015 12:54:10
  • #1
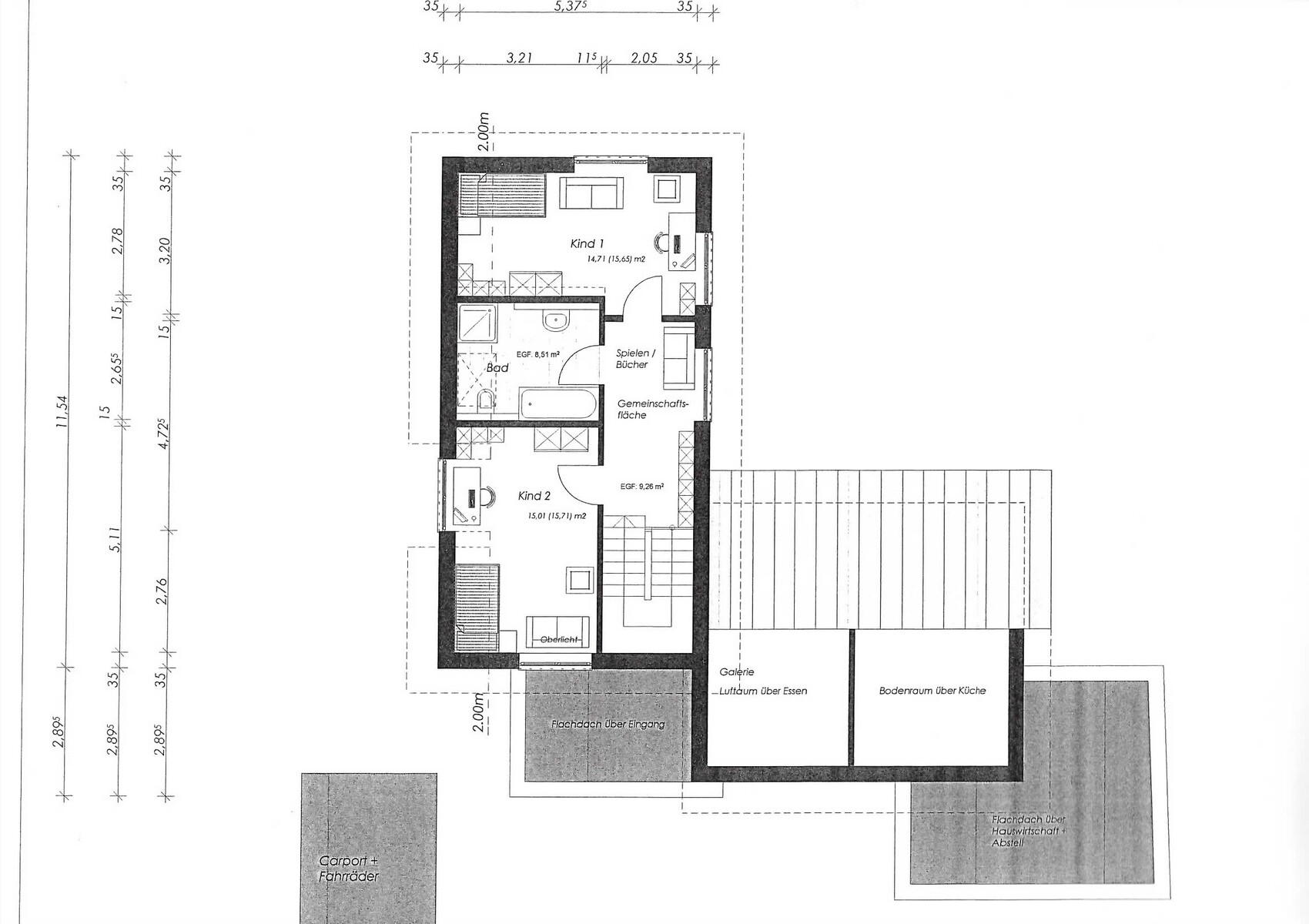
बाउएक्सपर्ट ने हालांकि लिविंग रूम को और भी बड़ा बनाया है, जो कि EG के अन्य कमरों के नुकसान पर हुआ है। मैं सोच रहा हूँ कि क्या आप लोगों ने अपने लिए कोई कमरे का कार्यक्रम बनाया है, क्योंकि लिविंग रूम में एक और टेबल रखने की योजना बनाना ठीक लगता है, जबकि भोजन क्षेत्र पहले ही बहुत बड़ा है। इसके अलावा, मुझे ऐसा लग रहा है कि एक स्पाइस पहले योजना में नहीं थी।
 

Tommes78

07/06/2015 12:59:49
  • #2
- मैं हमारे ड्राफ्ट और व्हज के आकार को ध्यान में रखकर चल रहा था और हमारे लिए यह ठीक है। हम वहाँ हमेशा के लिए कोई टेबल नहीं लगाना चाहते, सिर्फ कभी-कभार अगर कोई पार्टी हो।
स्पाइसेकामर इसलिए जोड़ा गया क्योंकि कई लोगों ने कहा कि स्टेप्स के ऊपर हाउसहोल्ड रूम तक का रास्ता बहुत लंबा होगा और स्टॉक और हीटिंग एक ही कमरे में होना ठीक नहीं होगा।
जैसे मैं देख रहा हूँ, हर कोई इस मामले को अलग तरह से देखता है....लेकिन यही तो है। अगर सबकी एक ही राय/दृष्टिकोण होता तो यह ठीक नहीं होता।
 

ypg

08/06/2015 00:16:13
  • #3
कृपया अपने आर्किटेक्ट से कहें कि वह आपके/आपके कमरे के प्रोग्राम के साथ एक नया ड्राफ्ट शुरू करें। इसका कोई लाभ नहीं है अगर आप एक तैयार ड्राफ्ट के सामने बैठे हैं और आपको याद आता है कि आपको अभी भी y कमरे की जरूरत है (देखें समस्या स्पाइस)। आम तौर पर कोई कमरे को इतनी आसानी से नहीं जोड़ सकता बिना कि अन्य कमरे प्रभावित हुए।
मुझे लगता है कि आप खुद ही इतना अभिभूत हो जाते हैं कि आप सुझावों या आइडियाज को सीधे अपने दिमाग में लागू नहीं कर पाते। यह जितना नकारात्मक लगता है उससे कम है, क्योंकि हर कोई 2D से 3D को पहचान नहीं सकता, या आभासी दीवारें खिसकाना नहीं जानता। लेकिन इसके लिए आपके पास एक आर्किटेक्ट है!
इसके अलावा, आपको एक अच्छी नजरिए से खुद को अलग करना होगा अगर अंदरूनी हिस्सा सही नहीं है। अगला ड्राफ्ट (क्योंकि वास्तव में और भी कई विकल्प हैं जो वर्तमान से विज़ुअल रूप से मिलते-जुलते हैं) बहुत बेहतर होगा अगर आप आर्किटेक्ट को यह दिखाएंगे कि आपको क्या चाहिए। लेकिन उसे कुछ आज़ादी दें और उसे छत के घुमाव से बाधित न करें।
मैं अगली बार का इंतजार कर रही हूं :)

शुभकामनाएं, यवोन

P.s. और फिर थोड़ा सस्ता ;)
 

Tommes78

08/06/2015 08:21:49
  • #4
- हमारा पहला ड्राफ्ट मूल रूप से वैसा ही था जैसा आपने वर्णन किया है (मेरी सोच में)। मैं फिर से भूतल और प्रथम तल संलग्न कर रहा हूँ। हमने इसे बदलवाया था क्योंकि हम माता-पिता के शयनकक्ष को ऊपर रखना चाहते थे और मेहमान कक्ष गायब था।

- हमने आर्किटेक्ट को हमारी आवश्यकताएँ दीं और यह नतीजा है ;(. मुझे लगता है कि आर्किटेक्ट को ही कुछ करना चाहिए था, लेकिन खैर..... जो बात मुझे दुखी करती है वह यह है कि जब हम बदलाव चाहते हैं तो वह शायद ही कभी कुछ नया सोचता है। मैं इसे भोजन कक्ष में भी देखता हूँ (जैसा कि आपने बताया) जिसे बेपरवाह तरीके से बस फेंक दिया गया है। प्रथम तल को भी देखें। हमने कहा था कि बाथरूम हमारे लिए बहुत छोटा है और क्या हुआ? यह 0.80 वर्ग मीटर बड़ा हो गया... खैर, इससे कोई खास सुधार नहीं हुआ। और फिर वह बाकि कमरों को प्रथम तल में जगह देने की कोशिश करता है बिना भवन के आकार को बदले। इसका परिणाम आप देख सकते हैं।

मैं अब धीरे-धीरे सोच रहा हूँ कि आर्किटेक्ट बदल दूं, पर मुझे नहीं पता कि उसने अब तक के ड्राइंग्स के लिए हमें क्या शुल्क लेगा। हमारा कोई अनुबंध नहीं हुआ है। पर जैसे ही मैं यह बात उठाऊँगा कि हमारी दृष्टि में सहयोग वैसा नहीं चल रहा जैसा कि हमने चाहा था, तो हमारा संबंध उसके साथ बिगड़ जाएगा और फिर कोई वापसी नहीं रहेगी।



 

kbt09

08/06/2015 08:54:16
  • #5
मुझे विभाजन (विशेष रूप से रसोई, भोजन कक्ष, गृहकार्य कक्ष, प्रवेश द्वार) सामान्यतः काफी बेहतर लगता है। कमी: शयनकक्ष WZ-स्तर पर है और तकनीकी कक्ष बाथरूम से काफी दूर है।

आपके बच्चे कितने साल के हैं? यदि वे अभी बहुत छोटे हैं, तो वर्तमान में ऊपर केवल 2 कमरे होना संभव नहीं है, जिनमें से एक आपका शयनकक्ष होगा, दूसरा बच्चों का शयनकक्ष होगा और नीचे बच्चों के लिए एक खेल कक्ष होगा। जब बच्चे लगभग 6 साल के होंगे, तब आप नीचे जा सकते हैं और बच्चों की अपनी मंजिल होगी।
 

Tommes78

08/06/2015 09:07:32
  • #6
अभी बच्चे नहीं हैं। दो बच्चे योजना में हैं, लेकिन कौन जाने। स्पष्ट है कि पहले एक बच्चे का कमरा शयनकक्ष के रूप में उपयोग किया जा सकता है। फिर भी, इस योजना में एक कार्यालय / अतिथि कक्ष नहीं है और नीचे का शयनकक्ष मुझे बहुत छोटा लगता है।
 

समान विषय
13.11.2013प्रारंभिक योजना खाका - सुझाव स्वागत हैं21
16.12.2013आर्किटेक्ट के साथ पूर्व-योजना - क्या अपनी खुद की फ्लोर प्लान होना सही है?18
06.04.2014योजना फ्लोर प्लान / पहली प्रतिक्रिया के लिए पहला मसौदा32
18.06.2014हमारा फ्लोर प्लान डिजाइन, आपकी राय20
15.02.2015ड्रेसिंग रूम/शयनकक्ष समस्या - फ़्लोर प्लान चर्चा25
11.03.2015बेसमेंट के साथ एक परिवार के घर के डिजाइन के लिए विचार47
01.05.2015ड्राफ्ट - एकल परिवार के घर के नए निर्माण में सभी दिशाएं91
09.10.2015युवा परिवार के लिए एकल-परिवार गृह की फ्लोर प्लानिंग25
03.08.2015फ्लोर प्लान ड्राफ्ट सिटी विला फीडबैक13
19.10.2016ढलान पर स्थित एकल परिवार का मध्यवर्ती मकान - डिजाइन18
30.05.2017पहला मसौदा एकल-परिवार घर 150 वर्ग मीटर के साथ तहखाने38
07.11.2016डबल गैरेज के साथ शहर विला का फ्लोर प्लान डिजाइन38
07.07.2017घर डिजाइन - एकल परिवार का घर - भविष्य में दो परिवारों के घर में विभाजित किया जा सकता है72
03.01.2018कृपया हमारे आधारभूत प्रारूप पर आलोचनात्मक नजर डालें13
27.01.2023एकल परिवार का घर, लगभग 160 वर्ग मीटर, बेहोस शैली; हमारी इच्छानुसार पहला मसौदा420
28.10.2021भोजन भंडार बनाम बड़ा रसोईघर बनाम उपयोगिता कक्ष13
08.10.20213. फ्लोर प्लान डिज़ाइन नया सिंगल-फैमिली हाउस 220 वर्गमीटर 2 पूर्ण मंजिलें छत का टैरेस61
06.01.2022नए एकल-परिवार गृह के लिए भू-आकार का प्रारूप - 610 वर्ग मीटर की जमीन - विचार मांगें50
09.09.2024फ्लोर प्लान डिजाइन: तहखाने वाला एकल परिवार का घर; 560 वर्ग मीटर जमीन65
20.11.2024ग्राउंड फ्लोर प्लान EFH165 वर्गमीटर पहला मसौदा - आर्किटेक्ट असंतुष्ट74

Oben