diebbdwelt
19.04.2013 11:49:44
- #1
Bonjour à tous,
je suis nouveau ici dans le forum et je suis en train de planifier notre nouvelle construction (maçonnerie massive) avec l’architecte.
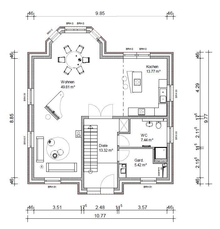
En cherchant des plans possibles, je suis tombé sur ce forum et je souhaite soumettre les documents de planification à la discussion.
La maison est orientée vers le sud avec le pignon en tour (donc tourner la maison de 180°). La salle de bains du grenier était côté nord-est. L’architecte l’a échangée avec une chambre d’enfant parce que les bruits des conduites d’eau et d’évacuation auraient causé beaucoup de gêne dans le salon. C’est pourquoi la buanderie au sous-sol a également changé de côté.
Avez-vous d’autres suggestions à ce sujet ?
Le grenier sera aménagé et utilisé comme bureau.
Je suis impatient de recevoir vos retours !
Cordialement
diebbdwelt




je suis nouveau ici dans le forum et je suis en train de planifier notre nouvelle construction (maçonnerie massive) avec l’architecte.
En cherchant des plans possibles, je suis tombé sur ce forum et je souhaite soumettre les documents de planification à la discussion.
La maison est orientée vers le sud avec le pignon en tour (donc tourner la maison de 180°). La salle de bains du grenier était côté nord-est. L’architecte l’a échangée avec une chambre d’enfant parce que les bruits des conduites d’eau et d’évacuation auraient causé beaucoup de gêne dans le salon. C’est pourquoi la buanderie au sous-sol a également changé de côté.
Avez-vous d’autres suggestions à ce sujet ?
Le grenier sera aménagé et utilisé comme bureau.
Je suis impatient de recevoir vos retours !
Cordialement
diebbdwelt