Planificación de la ampliación del ático - muro de rodilla y pendientes

  • Erstellt am 25.10.2017 20:37:12

kaho674

25.10.2017 20:37:12
  • #1
Hola queridos,
mi cuñado quiere acondicionar su ático. El objetivo es instalar 2 habitaciones para niños para sus nietos. Los "mayores" se mudan actualmente a la planta baja y los jóvenes se quedan en el primer piso. El ático se usará en conjunto. El abuelo tiene allí su minioficina (ya está y no se puede modificar) y cada familia debe necesariamente tener también un trastero.

Por favor, no os moleste que usen juntos la escalera y el ático. De todas formas corren todo el día arriba y abajo. Así quieren ellos.

Tenemos un tabique inferior de 74 cm (interior). Sin embargo, todas las medidas se han tomado reptando con un bebé de la mano. Debemos aceptar desviaciones. El aislamiento irá directamente sobre las inclinaciones, sin techo. Hay 2 buhardillas en las futuras habitaciones para niños: solo puedo sugerirlas como ventanas. El límite de 2 m está a 2 m del tabique inferior, marcado como línea. La situación de partida no es nada sencilla por las chimeneas y ventanas pequeñas. Y, por supuesto, todo no es perfectamente simétrico.

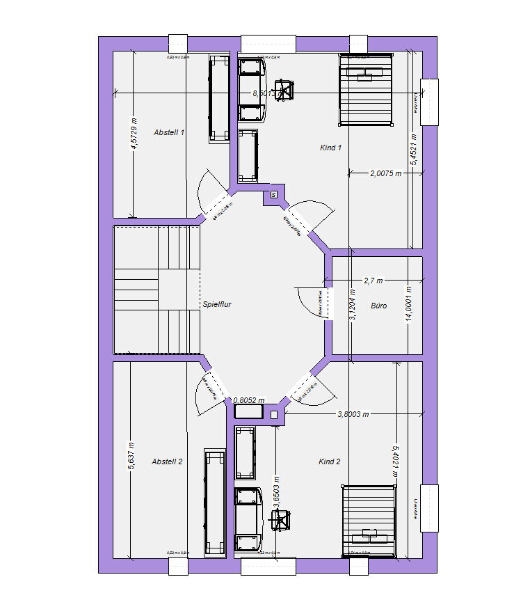
Adjunto el boceto del propietario. No me parece tan malo. Lo malo, claro, es el trastero 1 con la situación de puerta / pared y que la pared termina a mitad justo delante de la escalera.

He hecho una segunda propuesta con paredes inclinadas. Esto hace el pasillo más grande, pero el área útil de las habitaciones pierde poco, ya que el pasillo en zigzag de la propuesta del propietario de todas formas no es utilizable.

La tercera imagen solo muestra la situación inicial.

¿Alguien tiene más ideas?
 

kaho674

25.10.2017 20:54:56
  • #2
Aquí tienes otra variante - aún más inclinaciones.

 

garfunkel

25.10.2017 21:17:57
  • #3
Encuentro la última variante mejor.
 

haydee

26.10.2017 03:38:18
  • #4
La última me gusta
 

kaho674

26.10.2017 06:25:25
  • #5
Hola,
gracias por vuestras opiniones. Hasta ahora, todos prefieren la última solución. No soy fan de las inclinaciones, pero aquí realmente tiene ventajas.

He dibujado algunos muebles. Con una altura de pared de 74 cm probablemente tendré que separar las camas de la pared. Los niños seguro que necesitan la vertical para el armario y el escritorio.

He desplazado una pared junto a la chimenea de modo que ahora la estantería esté en el pasillo de juegos. A ver qué dice el dueño de la casa. Él tendría que construirlo. ;)

 

garfunkel

26.10.2017 14:41:09
  • #6
¿Por qué la cama alejada del Kniestock? En mi caso la cama está justo en el Kniestock y encaja bien. Aunque depende de la altura de la cama, por lo general hay suficiente espacio. También se puede probar cómo colocar la cama justo contra el Kniestock. Al menos yo encuentro desafortunado que esté separada del Kniestock.

También se podrían colocar las camas de manera que no sean visibles directamente desde la puerta. Personalmente siempre me gustó así, aunque no es obligatorio.

Antes también tenía mi escritorio justo en el Kniestock. Ahí tampoco la altura es realmente un problema. No sé exactamente cómo queda con las medidas y qué altura hay respecto a la inclinación cuando uno se sienta en el escritorio.

En todo caso, yo reservaría para muebles y otros objetos que necesiten obligatoriamente esta altura todas las esquinas y superficies que tengan 2 m de altura. Por ejemplo, el armario.
 

Temas similares
20.07.2013¿Aumentan los costos con una altura de muro de rodilla mayor?12
21.02.2014¿Cuál es la altura de mi rodilla?20
26.06.2015Pregunta de plano, escalera, ventana, orientación12
23.07.2015Aprovechar el ático en la nueva villa de la ciudad21
29.05.2016Casa unifamiliar, de un solo piso, muro de rodilla, ventana del piso superior30
12.10.2016Kniestock bajado posteriormente34
14.05.2017Nueva construcción: Ático ampliable o no14
05.08.2017¿Es necesario el solado? Ático sin terminar pero aislado23
17.10.2017Casa unifamiliar de aproximadamente 150 m² plano de planta - ¿Cómo planificar la escalera?65
02.02.2018¿Es el muro de la rodilla demasiado bajo? ¿A qué se refiere la medición?22
10.06.2018¿Construir una casa con muro de rodilla de 75 cm o dos pisos completos? ¿Su opinión?17
18.01.2019¿Planta completa o con muro de rodilla?20
12.08.2020Altura del ático - ¿Cuánto espacio de almacenamiento hay realmente?22
07.10.2021Construir el suelo del ático24
04.11.2021Planificación de planta para casa con techo a dos aguas (muro de rodilla 2,20 m) aproximadamente 170 m²42
16.01.2022Indeciso sobre la ampliación de una casa antigua en pendiente con escalera central10
14.09.2022Pendiente del techo y altura del muro rodilla al desear una buhardilla de techo plano26
20.05.2023¿Grandes buhardillas o muro de rodilla alto?33
09.08.2023Reabrir la losa del piso para la nueva escalera. ¿Sostener el techo en el medio?10
13.02.2025Plano de planta de una casa (2 pisos + ático opcional)10

Oben