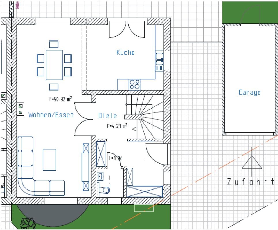
Propuesta de plano para una casa adosada de 8,5 m x 10 m. Se buscan sugerencias.

  • Erstellt am 18.09.2014 22:14:44

mannymaus

18.09.2014 22:14:44
  • #1
Hola a todos,

queremos construir una casa pareada el próximo primavera.

Las medidas de nuestra casa pareada son 8,5 m x 10 m, nuestra parte del terreno tiene aprox. 400 m².

Garaje con techo (Carport) hacia la casa en el oeste, allí también se encuentra la entrada.

Planta baja: consta de cocina abierta (1 línea en la pared del Carport y 1 isla de cocina con vista al comedor) y comedor (ambos en el sur, ventanas de suelo a techo hacia la terraza). La sala está en el norte.

Planta alta: en el norte dormitorio principal y baño, en el sur dos habitaciones infantiles planificadas.

Sótano con pozo de luz (Norden).

Estoy muy agradecido por sugerencias :)

¡Muchas gracias de antemano! :rolleyes:
 

ypg

18.09.2014 22:38:16
  • #2
Mira aquí, hay paralelismos, al menos en las dimensiones y en la planta superior, especialmente el baño :)

Me parece que aquí (es decir, en el otro) la planta superior está mejor resuelta.

¿Construiréis con sótano?
Yo pondría la ventana del WC al norte (así se tiene más privacidad, incluso si la ventana está más alta ;))
El pasillo me parece demasiado estrecho, pero ahora mismo no veo el beneficio de cambiar el WC y el guardarropa para que pudiera ser más ancho.

Un comentario/pequeño consejo breve: aquellos que pueden hacerlo aquí con nosotros (casi todos) se han hecho una segunda terraza al norte o noroeste, porque el sol en verano hacia la tarde (desde las 19 h) se desplaza más hacia el noroeste que hacia el oeste, de modo que aquí simplemente se puede disfrutar del sol hasta tarde por la noche.
Deberíais dejaros abierta esta posibilidad en el norte :)
 

lastdrop

19.09.2014 08:19:18
  • #3
Cambiaría la cocina y la sala de estar.
 

kbt09

19.09.2014 08:38:49
  • #4
No, encuentro la cocina allí muy práctica... justo junto a la puerta de la terraza al jardín.

Y como ypg, veo el pasillo demasiado estrecho. Yo movería el baño hacia la izquierda y no haría un vestidor cerrado, sino un armario grande y un perchero pequeño a la izquierda en la pared del baño.

De esta manera se tiene un poco más de espacio en la zona de la puerta.

 

Manu1976

19.09.2014 08:58:52
  • #5
Únete a kbt. Cambiar el WC y el guardarropa. Eso hace que todo sea más acogedor y luminoso. Además, reflejaría la escalera y haría la pared entre la puerta principal y la escalera en pendiente de la escalera, en lugar de subirla completamente, de lo contrario se siente opresiva. Supongo que tienen un sótano?
 

mannymaus

19.09.2014 15:15:01
  • #6
¡Muchísimas gracias por los consejos y el enlace :)!

- Sí, construiremos con sótano.
- La ventana del baño realmente la colocaremos en el norte... también me parece mejor por la privacidad ;-).
- ¿El pasillo está realmente demasiado estrecho? Pensé que por la forma de L sería más espacioso...
- La cocina y la sala de estar originalmente estaban intercambiadas. Queríamos conscientemente tener la cocina en el sur para que el camino a la terraza sea corto y el rincón de la televisión en el "más oscuro" norte.
- La propuesta de un armario abierto me parece interesante. Pensamos que en un armario cerrado se pueden guardar de manera más desordenada los zapatos/chaquetas y, por ejemplo, allí guardar la aspiradora... Pero volveré a pensar en la solución abierta y más aireada.
- ¿Cómo se entiende eso de "espejar la subida de las escaleras"? ¿O sea subir por el lado derecho y solo poner una barandilla y no una pared?

Muchas gracias :)
 

Temas similares
27.08.2014Planificación del espacio habitable y la cocina de una casa adosada en Núremberg13
26.06.2015Pregunta de plano, escalera, ventana, orientación12
11.02.2016Ventanas / Puertas / Armario13
25.07.2017Sugerencias para el plano de planta116
09.02.2018Plano de planta para una casa unifamiliar de 150 m² con sala de estar orientada al norte21
20.12.2017¿Graves errores en el plano? ¿Cocina demasiado pequeña?39
03.06.2018Construcción nueva de una vivienda adosada de aproximadamente 8x11, evaluación del plano y las ventanas35
21.02.2020Casa unifamiliar nueva de aproximadamente 190 m², garaje doble sin sótano, diseño inicial21
05.07.2020Plano de casa unifamiliar aprox. 200 m² garaje doble sótano32
03.08.2020Primer diseño de plano básico casa adosada semi independiente 90m² superficie15
26.11.2020Optimización del plano de una casa adosada en 380 m² toalla13
04.05.2021Optimización del plano de casa unifamiliar en pendiente, planta baja + sótano32
11.12.2020El asesor calcula el precio para una casa adosada KFW55 de 112 m² con sótano en casi 600.000 €32
28.05.2021Plano para vivienda adosada estrecha - Sótano + 2 Buena suerte + Ático sin muro de rodilla53
29.06.2022Plano de 120 m², casa unifamiliar 1,5, cochera cubierta. Opiniones, ideas, sugerencias42
26.03.2024¿Renovar casa de 1988 - ventanas y puerta principal?15
12.02.2024¿Las ventanas que no llegan al suelo en la sala de estar están pasadas de moda? ¿Qué cortinas poner?17
26.08.2024Discusión del plano de planta para media casa adosada de 130 m² de superficie habitable sin sótano11
14.10.2024Plano de casa unifamiliar de 136m² con garaje y sótano17

Oben