RechtsamWald
07.05.2024 21:41:34
- #1
Buenas noches,
planeo una casa al estilo "Cuadrado, práctico y bueno" con dimensiones de 10 por 10 metros en una ladera. La entrada desde la calle está en la planta baja y el acceso al jardín se encuentra en el sótano. Es un antiguo plan de desarrollo con pocas especificaciones. El terreno ya está adquirido y un estudio del suelo certifica una construcción de dos plantas. Para tres plantas es necesario un cambio de suelo para soportar cargas mayores. Actualmente estoy en las fases preliminares, aún sin arquitecto ni ingeniero estructural en el equipo. Me interesaría conocer vuestras opiniones sobre esta distribución.
Los datos clave son:
Terreno: 660 m²
Parcela en la ladera
Longitud a la calle: 21 m
Coeficiente de ocupación del suelo 0,4
Coeficiente de utilización del suelo 0,8
Pendiente del techo 20 - 35°
Construcción abierta
Garaje de 8 m posible en la línea de parcela
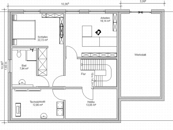
En la planta baja estará la zona de estar y para invitados, en el sótano la zona de dormitorio y trabajo.
La eficiencia y las energías renovables en la casa son muy importantes para mí. Por ello, la forma del techo debe ofrecer la mayor superficie posible para fotovoltaicos orientados al sur.
Debido a un alto porcentaje de teletrabajo, la oficina está diseñada algo más amplia. No hay habitaciones para niños previstas; los invitados vendrán tal vez 2 o 3 veces al año. Aún está abierto un posible acceso al jardín desde la planta baja. Estoy deseando leer vuestros comentarios e ideas.

planeo una casa al estilo "Cuadrado, práctico y bueno" con dimensiones de 10 por 10 metros en una ladera. La entrada desde la calle está en la planta baja y el acceso al jardín se encuentra en el sótano. Es un antiguo plan de desarrollo con pocas especificaciones. El terreno ya está adquirido y un estudio del suelo certifica una construcción de dos plantas. Para tres plantas es necesario un cambio de suelo para soportar cargas mayores. Actualmente estoy en las fases preliminares, aún sin arquitecto ni ingeniero estructural en el equipo. Me interesaría conocer vuestras opiniones sobre esta distribución.
Los datos clave son:
Terreno: 660 m²
Parcela en la ladera
Longitud a la calle: 21 m
Coeficiente de ocupación del suelo 0,4
Coeficiente de utilización del suelo 0,8
Pendiente del techo 20 - 35°
Construcción abierta
Garaje de 8 m posible en la línea de parcela
En la planta baja estará la zona de estar y para invitados, en el sótano la zona de dormitorio y trabajo.
La eficiencia y las energías renovables en la casa son muy importantes para mí. Por ello, la forma del techo debe ofrecer la mayor superficie posible para fotovoltaicos orientados al sur.
Debido a un alto porcentaje de teletrabajo, la oficina está diseñada algo más amplia. No hay habitaciones para niños previstas; los invitados vendrán tal vez 2 o 3 veces al año. Aún está abierto un posible acceso al jardín desde la planta baja. Estoy deseando leer vuestros comentarios e ideas.