Soulcollector
10.04.2016 21:39:11
- #1
Hola a todos,
después de haber navegado mucho en este foro y habernos inspirado, nos gustaría también publicar aquí para debate el plano de planta de nuestro proyecto de construcción.
Quizás antes, la licencia de construcción ya está emitida y estamos en la fase final de la planificación ejecutiva. Hasta ahora estamos satisfechos con todos los aspectos de la planificación, pero al final muchos ojos ven más que cuatro y tal vez a vosotros os llame la atención algo más.
Actualmente nos ocupan o queremos replantear los siguientes puntos:
- Probablemente querremos elevar la altura del alféizar en la ventana del dormitorio del primer piso también a 1m
- Ejecución de las ventanas como balcones franceses o acristalamiento fijo en la parte inferior – más bien tendemos a lo último
- La planificación de la estufa está solicitada a varios fabricantes, pero aún no está decidida
- La posición y el sentido de apertura de ventanas y puertas se han establecido recientemente, pero no estamos 100 % seguros con alguna puerta (por ejemplo, baño del primer piso o habitación de niños 1).
Ahora estamos naturalmente ansiosos por conocer vuestras opiniones, ¿qué os llama la atención, qué haríais diferente, dónde veis potencial de mejora...?
PD: Ah, la rosa de los vientos está cortada en las imágenes, la casa está ligeramente girada a la izquierda hacia el sur, el plano de situación está orientado al norte.
PDD: Aquí los datos marco:
Plan de ordenación/Restricciones
Diseño de la casa
De quién es la planificación:
Planificador de una empresa constructora con varias adaptaciones a petición nuestra
¿Qué nos gusta especialmente?
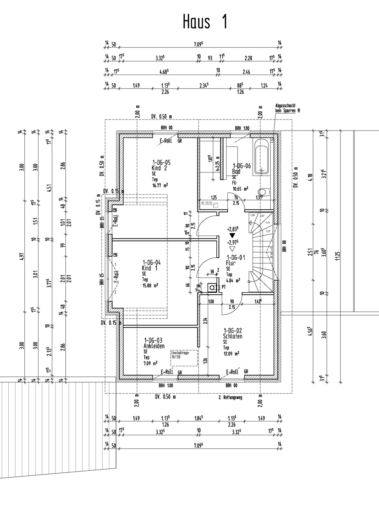
Nos gusta fundamentalmente la separación de la entrada de la casa y la planta de vivienda, ya que en la planta baja tenemos un recibidor amplio y en la planta superior no falta espacio por la entrada de la casa. Somos conscientes de las desventajas (palabra clave vivienda adaptada a la edad). Nos gusta la zona de estar amplia y esperemos que muy luminosa (todas las ventanas orientadas al sur y hasta el suelo), incluyendo la puerta corredera elevable no barata de 4 metros. El tamaño y la distribución de las habitaciones en el primer piso nos gustan mucho.
¿Qué no nos gusta?
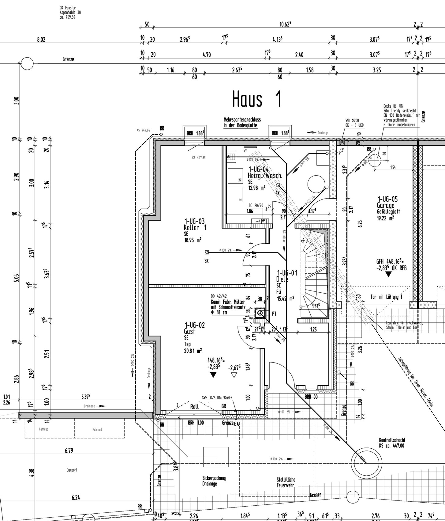
El área del baño de invitados/trastero en la planta baja fue un acomodar y reacomodar considerable, pero nos decidimos por la ducha a nivel del piso y en contra de un trastero mayor. La cocina podría ser quizás unos metros cuadrados más grande, así como el baño en el primer piso. La habitación de invitados en el sótano es casi un poco grande, pero por otro lado ahí podemos cumplir nuestro sueño del cine en casa.
Ah, y la chimenea muy alta tipo casita de bruja , pero debido a la altura de las ventanas de la casa vecina algo más alta, con el técnico de chimeneas no era compatible de otra forma...
Estimación de precio según arquitecto/planificador:
Precio según contrato de obra 330.000 sin terreno y sin costes adicionales, modificaciones al contrato de obra (por ejemplo chimenea...) son en su mayoría conocidas y al final estaremos poco menos de 400.000 sin terreno y sin costes adicionales de construcción.
Tecnología de calefacción preferida: caldera de condensación de gas






después de haber navegado mucho en este foro y habernos inspirado, nos gustaría también publicar aquí para debate el plano de planta de nuestro proyecto de construcción.
Quizás antes, la licencia de construcción ya está emitida y estamos en la fase final de la planificación ejecutiva. Hasta ahora estamos satisfechos con todos los aspectos de la planificación, pero al final muchos ojos ven más que cuatro y tal vez a vosotros os llame la atención algo más.
Actualmente nos ocupan o queremos replantear los siguientes puntos:
- Probablemente querremos elevar la altura del alféizar en la ventana del dormitorio del primer piso también a 1m
- Ejecución de las ventanas como balcones franceses o acristalamiento fijo en la parte inferior – más bien tendemos a lo último
- La planificación de la estufa está solicitada a varios fabricantes, pero aún no está decidida
- La posición y el sentido de apertura de ventanas y puertas se han establecido recientemente, pero no estamos 100 % seguros con alguna puerta (por ejemplo, baño del primer piso o habitación de niños 1).
Ahora estamos naturalmente ansiosos por conocer vuestras opiniones, ¿qué os llama la atención, qué haríais diferente, dónde veis potencial de mejora...?
PD: Ah, la rosa de los vientos está cortada en las imágenes, la casa está ligeramente girada a la izquierda hacia el sur, el plano de situación está orientado al norte.
PDD: Aquí los datos marco:
Plan de ordenación/Restricciones
[*
- Licencia de construcción concedida.
[*]El terreno tiene una pendiente bastante fuerte de este a oeste en ascenso (se puede ver representado en la vista sur)
Requisitos de los promotores
[*]Número de personas, edad: Dos adultos, a principios de los 30, además un niño de 3 años, se planifican en total dos niños
[*]Necesidades de espacio en planta baja, primer piso:
[LIST]
[*]Primer piso: dos habitaciones infantiles, dormitorio con vestidor, baño con ducha a nivel del suelo
[*]Planta baja: zona de estar/cocina/comedor, despacho, baño de invitados (no se pudo representar en el sótano, además queremos un aseo en la planta de vivienda). Hubiera sido bonito un cuarto trastero/despensa, como compromiso tenemos ahora este nicho de 1x1 en el que queremos integrar un armario empotrado (para aspiradora y lo necesario para la limpieza). El dormitorio debería estar separado por el ruido de la zona de estar/cocina.
[*]Oficina: ¿uso familiar o teletrabajo? Teletrabajo necesario
[*]Huéspedes por año: Irregular, pero hay espacio previsto en el sótano para esto – uso doble como pequeño cine en casa
[*]Cocina abierta, isla de cocina: Cocina abierta con área de cocción en la barra, campana extractora hacia abajo
[*]Chimenea: chimenea panorámica de obra planificada
[*]Pared de música/estéreo: en el salón de la planta baja sistema estéreo "normal" planificado, en la sala de invitados en el sótano/cine en casa sonido envolvente, se deben colocar cables/tuberías vacías
[*]Garaje, carport: los dos plazas asignadas por el plan de ordenación se implementan con una plaza de garaje y un carport
Diseño de la casa
De quién es la planificación:
Planificador de una empresa constructora con varias adaptaciones a petición nuestra
¿Qué nos gusta especialmente?
Nos gusta fundamentalmente la separación de la entrada de la casa y la planta de vivienda, ya que en la planta baja tenemos un recibidor amplio y en la planta superior no falta espacio por la entrada de la casa. Somos conscientes de las desventajas (palabra clave vivienda adaptada a la edad). Nos gusta la zona de estar amplia y esperemos que muy luminosa (todas las ventanas orientadas al sur y hasta el suelo), incluyendo la puerta corredera elevable no barata de 4 metros. El tamaño y la distribución de las habitaciones en el primer piso nos gustan mucho.
¿Qué no nos gusta?
El área del baño de invitados/trastero en la planta baja fue un acomodar y reacomodar considerable, pero nos decidimos por la ducha a nivel del piso y en contra de un trastero mayor. La cocina podría ser quizás unos metros cuadrados más grande, así como el baño en el primer piso. La habitación de invitados en el sótano es casi un poco grande, pero por otro lado ahí podemos cumplir nuestro sueño del cine en casa.
Ah, y la chimenea muy alta tipo casita de bruja , pero debido a la altura de las ventanas de la casa vecina algo más alta, con el técnico de chimeneas no era compatible de otra forma...
Estimación de precio según arquitecto/planificador:
Precio según contrato de obra 330.000 sin terreno y sin costes adicionales, modificaciones al contrato de obra (por ejemplo chimenea...) son en su mayoría conocidas y al final estaremos poco menos de 400.000 sin terreno y sin costes adicionales de construcción.
Tecnología de calefacción preferida: caldera de condensación de gas