初步草案 - 请求您的意见

  • Erstellt am 2015-07-13 21:08:51

eclipse84

2015-07-14 18:48:43
  • #1
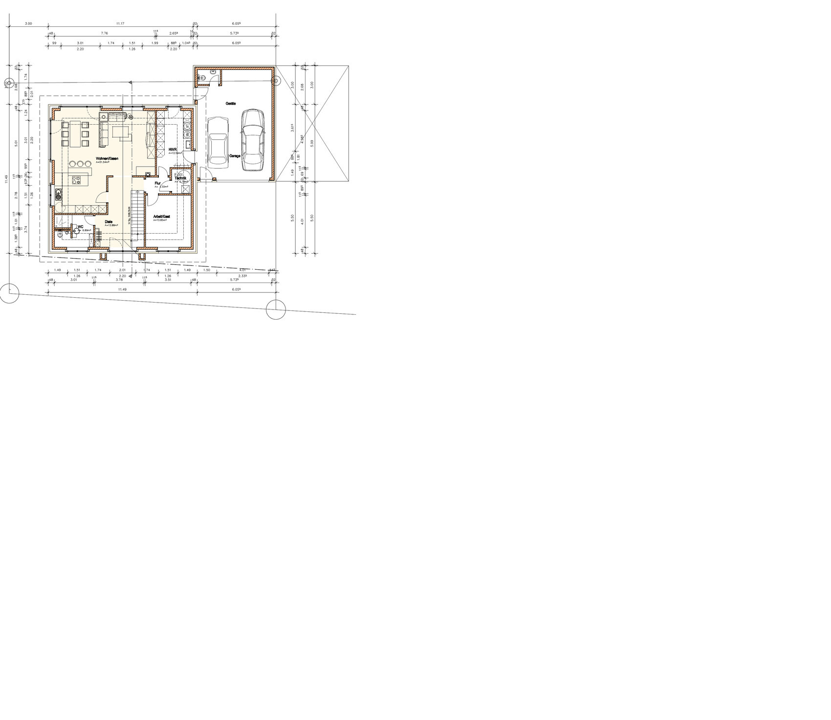
回到正题。是的,关于厨房的事情我们也考虑过,可能会和起居区交换位置。浴室的事情我也一定会跟建筑师提到。我们还不是很满意的是卧室区域的分配。我们认为主卧室应该稍微小一点,但是两个儿童房应该大一些。
 

Bautraum2015

2015-07-14 19:40:43
  • #2
儿童房大一平方米并没有区别。我觉得楼上的还好,除了提到的浴缸位置。楼下的话我觉得餐桌太拥挤了……但这很大程度上取决于家具的摆放位置。
 

Bodo!

2015-07-18 13:52:15
  • #3
正如我所说,我会把厨房保留在那里,因为客厅的位置非常好……
 

Legurit

2015-07-18 15:57:18
  • #4
双车库宽5.7米,停车不方便……两边各只有不到50厘米的空间。再加上一辆自行车经过……
 

eclipse84

2015-07-20 15:20:12
  • #5
谢谢你们的建议。明天我们将再次与建筑师会面。一旦我拿到新的图纸,我会把它放在这里。
 

eclipse84

2015-07-29 13:34:54
  • #6
大家好, 今天收到了修改后的 。你们觉得怎么样?
 

类似主题
24.09.2013平面图,厨房内部空间分隔的想法23
16.12.2013与建筑师的前期规划——拥有自己的平面图是否明智?18
21.08.2014与建筑师合作建造时的建造成本。你的经验是怎样的?18
12.10.2017封闭空间的费用。已与建筑师讨论了初稿27
15.05.2018带有5间儿童房的斜坡房屋平面设计370
09.09.2017新建筑中的实木:餐厅、客厅、厨房和走廊10
10.02.2018走廊、厨房和浴室的天花板灯10
09.07.2018单户住宅平面图设计(城市别墅)约140平方米(3个儿童房)42
06.08.2018156平方米的独户住宅(2个儿童房+家庭办公室)21
18.10.2018改造现有房屋 - 为厨房和浴室提供更多空间 - 有什么想法?20
30.08.2020平房平面图150平方米,封闭式厨房,带顶露台40
23.07.2019独栋住宅约190平方米,三间儿童房,无地下室 - 反馈会非常好19
11.12.2019新建独户住宅160-170平方米,3个儿童房39
10.01.2020独栋住宅,3个儿童房,2个浴室,约10.5x10.5平方米31
06.01.2022建筑师或预制房屋成本核算及后续步骤27
15.11.2021建筑师的愿望清单32
24.01.2023无地下室的独栋住宅平面图,3个儿童房和一间办公室18
13.11.2023目录房屋或与建筑师自由规划12
01.10.2024单户住宅三间儿童卧室的平面图 - 潜力?43
27.12.2024独栋住宅平面图155平方米,无地下室,3间儿童房,1个办公室38

Oben