K
Kurpfaelzer20.11.19 01:05Hallo zusammen,
ich möchte euch mein Projekt vorstellen. Für Ideen, Vorschläge, Anregungen bin ich offen.
Das Haus (1967) hat zwei Vollgeschosse und ein schon ausgebautes Dachgeschoss. Elektrik und Wasser ist sanierungsbedürftig. Im 1. OG haben wir schon angefangen mit Beidem, während wir in dieser Etage wohnen. WC, Bad, Flur, Esszimmer und Küche sind schon gemacht. EG ist vermietet, DG steht leer. Dach ist schlecht gedämmt und mit Eternitplatten belegt (asbesthaltig). Das Dach soll neu gedämmt und gedeckt werden, 1 Dachgaube nach Westen, eventuell Photovoltaik. Im Zuge der Sanierung wollen wir 1. OG und DG zusammenlegen.
Hier ein Grundriss vom 1. OG.

Der Kamin mit außen liegendem Edelstahlrohr existiert heute (20 Jahre alt oder so).
Erste Frage ist, wo soll die Treppe hin. Das Treppenhaus geht bis ins DG, allerdings hat es keine Heizkörper und ist damit ein kaltes Mehrfamilienhaus-Treppenhaus. Will man sie benutzen für die Verbindung zw. OG und DG, müsste man die Treppe nach unten verschließen und irgendwie warm und halbwegs wohnlich bekommen. Außerdem ist sie maximal weit vom gefühlten Zentrum der Wohnung (Küche/Esszimmer/Wohnzimmer) entfernt.
Soll die Treppe in die Wohnung als Wendel- oder gerade Treppe verliert man in beiden Ebenen Wohnfläche, muss aber nicht so weit zur Treppe laufen und hat sie automatisch "warm". Dafür brauch man ein Loch in der Betondecke, was auch irgendwie Überwindung kostet.
Im DG stehen außer dem zentralen Kamin von der Heizung keine tragenden Wände. Erste Idee ist, auf der westlichen Seite eine lange Gaube einzubauen, da dort das Bad über dem Bad im OG liegt, und durch die Dachschräge kaum nutzbar ist. Außerdem ist der Ausblick nach Westen schöner und die Sonne geht dort unter. Auf der anderen Seite könnte man Schlaf- und Kinderzimmer unterbringen, da würde die Dachschräge nicht so stören.
Der Dachfirst verläuft entlang der Nord-Süd-Achse des Hauses. Da auf das Dach eventuell eine Photovoltaikanlage soll, ist mir das außenliegende Kaminrohr noch ein wenig ein Dorn im Auge. Der Kamin selbst soll bleiben. Da innerhalb der nächsten Jahre ein Filter nachgerüstet werden muss, könnte man den Kamin auch durch einen neuen an einer anderen Position im OG ersetzen, wenn damit der Schattenwurf reduziert werden könnte. Da bin ich noch unschlüssig.
Das Dach wird noch einen Termin beim Statiker brauchen, da die Traglast wohl nur für die leichten Eternitplatten reicht. Die Fassade soll nicht gedämmt werden, sondern nur gestrichen, wenn das Gerüst für das Dach steht.
Jetzt fragt sich der ein oder andere vielleicht, warum wurde/wird nicht alles auf einmal gemacht und man zieht in der Zwischenzeit aus? Nun, die Möglichkeit hat sich erst in diesem Jahr ergeben, die beiden Etagen zusammen zu legen. Da hatten wir schon angefangen, die eine Hälfte der Wohnung im OG zu sanieren. Da das Dach jetzt auch gemacht werden muss, hat man den maximalen Gestaltungsspielraum.
Übersehe ich etwas oder habt ihr Anregungen?
Grüße
ich möchte euch mein Projekt vorstellen. Für Ideen, Vorschläge, Anregungen bin ich offen.
Das Haus (1967) hat zwei Vollgeschosse und ein schon ausgebautes Dachgeschoss. Elektrik und Wasser ist sanierungsbedürftig. Im 1. OG haben wir schon angefangen mit Beidem, während wir in dieser Etage wohnen. WC, Bad, Flur, Esszimmer und Küche sind schon gemacht. EG ist vermietet, DG steht leer. Dach ist schlecht gedämmt und mit Eternitplatten belegt (asbesthaltig). Das Dach soll neu gedämmt und gedeckt werden, 1 Dachgaube nach Westen, eventuell Photovoltaik. Im Zuge der Sanierung wollen wir 1. OG und DG zusammenlegen.
Hier ein Grundriss vom 1. OG.
Der Kamin mit außen liegendem Edelstahlrohr existiert heute (20 Jahre alt oder so).
Erste Frage ist, wo soll die Treppe hin. Das Treppenhaus geht bis ins DG, allerdings hat es keine Heizkörper und ist damit ein kaltes Mehrfamilienhaus-Treppenhaus. Will man sie benutzen für die Verbindung zw. OG und DG, müsste man die Treppe nach unten verschließen und irgendwie warm und halbwegs wohnlich bekommen. Außerdem ist sie maximal weit vom gefühlten Zentrum der Wohnung (Küche/Esszimmer/Wohnzimmer) entfernt.
Soll die Treppe in die Wohnung als Wendel- oder gerade Treppe verliert man in beiden Ebenen Wohnfläche, muss aber nicht so weit zur Treppe laufen und hat sie automatisch "warm". Dafür brauch man ein Loch in der Betondecke, was auch irgendwie Überwindung kostet.
Im DG stehen außer dem zentralen Kamin von der Heizung keine tragenden Wände. Erste Idee ist, auf der westlichen Seite eine lange Gaube einzubauen, da dort das Bad über dem Bad im OG liegt, und durch die Dachschräge kaum nutzbar ist. Außerdem ist der Ausblick nach Westen schöner und die Sonne geht dort unter. Auf der anderen Seite könnte man Schlaf- und Kinderzimmer unterbringen, da würde die Dachschräge nicht so stören.
Der Dachfirst verläuft entlang der Nord-Süd-Achse des Hauses. Da auf das Dach eventuell eine Photovoltaikanlage soll, ist mir das außenliegende Kaminrohr noch ein wenig ein Dorn im Auge. Der Kamin selbst soll bleiben. Da innerhalb der nächsten Jahre ein Filter nachgerüstet werden muss, könnte man den Kamin auch durch einen neuen an einer anderen Position im OG ersetzen, wenn damit der Schattenwurf reduziert werden könnte. Da bin ich noch unschlüssig.
Das Dach wird noch einen Termin beim Statiker brauchen, da die Traglast wohl nur für die leichten Eternitplatten reicht. Die Fassade soll nicht gedämmt werden, sondern nur gestrichen, wenn das Gerüst für das Dach steht.
Jetzt fragt sich der ein oder andere vielleicht, warum wurde/wird nicht alles auf einmal gemacht und man zieht in der Zwischenzeit aus? Nun, die Möglichkeit hat sich erst in diesem Jahr ergeben, die beiden Etagen zusammen zu legen. Da hatten wir schon angefangen, die eine Hälfte der Wohnung im OG zu sanieren. Da das Dach jetzt auch gemacht werden muss, hat man den maximalen Gestaltungsspielraum.
Übersehe ich etwas oder habt ihr Anregungen?
Grüße
Kurpfaelzer schrieb:
Hier ein Grundriss vom 1. OG.Na, dann tu´ mal noch die anderen dazu.https://www.instagram.com/11antgmxde/
https://www.linkedin.com/company/bauen-jetzt/
K
Kurpfaelzer20.11.19 17:50kbt09 schrieb:
Wäre es nicht optional evtl. besser EG/OG zusammenzulegen und DG zu vermieten?Ein EG sehe ich ggf. leichter abteilbar, aber dazu:kbt09 schrieb:
fehlen ja jede Menge Infos ...Originalpläne (aus denen sich meist noch mehr Details herauslesen lassen) statt maß- und wandstärkenlosen Skizzen brächten da erfahrungsgemäß erheblich weiter.https://www.instagram.com/11antgmxde/
https://www.linkedin.com/company/bauen-jetzt/
K
Kurpfaelzer28.03.20 09:12Hallo zusammen,
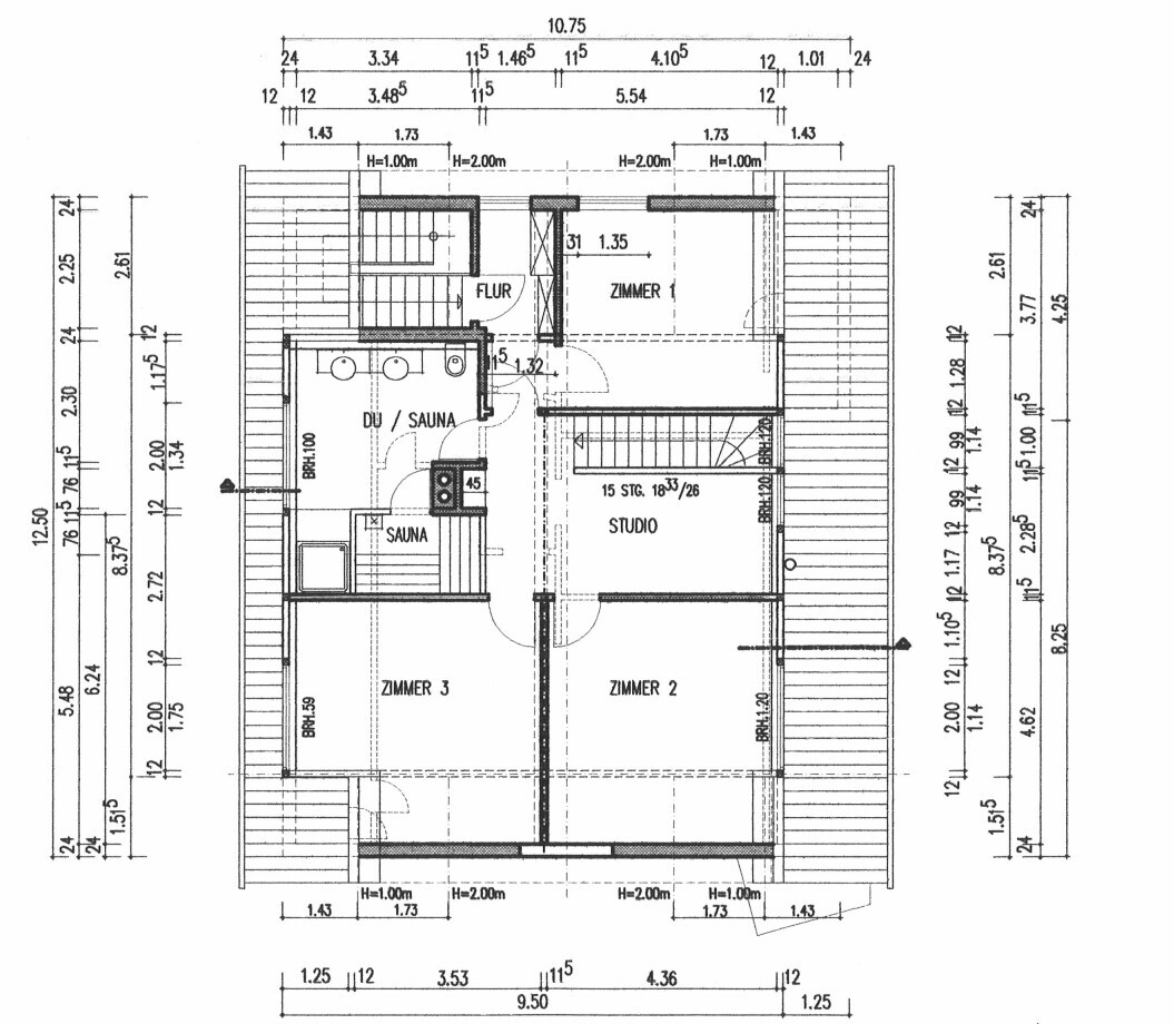
danke für die beiden Rückmeldungen. Ihr habt schon recht, mit richtigen Plänen lässt sich einfacher arbeiten. Anbei der Plan des Erdgeschoss (aktuell), der Plan von OG und DG, wie sie vom Architekt gezeichnet wurden.
Warum nicht EG/OG zusammenlegen? Ganz einfach: weil EG aktuell vermietet ist und weil man im Alter eine kleine ebenerdige Wohnung braucht und keine zweistöckige Riesenbude. Als junge Familie kann man auchmal Treppen steigen. Idee ist, dass wir im Alter im EG wohnen werden.
Wie viele Leute sollen da wohnen?
EG wie gesagt außen vor. Im neuen OG/DG sollen 2 Erwachsene + 2-3 Kinder wohnen. Aktuell suchen wir noch für die Oma eine Wohnung. Sie wohnt aktuell allein in einem Haus. Idee 1: Mietern wegen Eigenbedarf kündigen (wäre schade um das lange bestehende, vertrauensvolle Mietverhältnis), Idee 2: Oma zieht nach der Zusammenlegung vorübergehend im OG ein, wo ja noch ein Schlafzimmer vorhanden ist. Wir schlafen dann im DG. Wohnungen sind aber eben verbunden mit nur einer Küche. Idee 3: wir finden noch eine andere Wohnung in der Umgebung.
Heizkörper oder Fußbodenheizung?
Aktuell Fußbodenheizung in OG Bad und Küche/Esszimmer. Rest Heizkörper. Geplant: Fußbodenheizung auch in das neue große Wohnzimmer im OG und überall im DG. Ziel: luftwärmepumpe. Wenn das Ziel nicht erreicht werden kann, haben wir noch einen Gasanschluss. Aktuell der gute Ölbrenner
Ca. Budget: Architekt hat uns mal grob 150.000 Euro genannt. Da auch noch die Fassade gestrichen werden soll und wir ein neues Balkongeländer brauchen, evtl. neue Hauseingangstür sag ich mal 200.000 Euro. Es soll nicht luxuriös werden, sondern langlebig und sinnvoll.
Danke vorab für alle Überlegungen. Bleibt gesund!





danke für die beiden Rückmeldungen. Ihr habt schon recht, mit richtigen Plänen lässt sich einfacher arbeiten. Anbei der Plan des Erdgeschoss (aktuell), der Plan von OG und DG, wie sie vom Architekt gezeichnet wurden.
Warum nicht EG/OG zusammenlegen? Ganz einfach: weil EG aktuell vermietet ist und weil man im Alter eine kleine ebenerdige Wohnung braucht und keine zweistöckige Riesenbude. Als junge Familie kann man auchmal Treppen steigen. Idee ist, dass wir im Alter im EG wohnen werden.
Wie viele Leute sollen da wohnen?
EG wie gesagt außen vor. Im neuen OG/DG sollen 2 Erwachsene + 2-3 Kinder wohnen. Aktuell suchen wir noch für die Oma eine Wohnung. Sie wohnt aktuell allein in einem Haus. Idee 1: Mietern wegen Eigenbedarf kündigen (wäre schade um das lange bestehende, vertrauensvolle Mietverhältnis), Idee 2: Oma zieht nach der Zusammenlegung vorübergehend im OG ein, wo ja noch ein Schlafzimmer vorhanden ist. Wir schlafen dann im DG. Wohnungen sind aber eben verbunden mit nur einer Küche. Idee 3: wir finden noch eine andere Wohnung in der Umgebung.
Heizkörper oder Fußbodenheizung?
Aktuell Fußbodenheizung in OG Bad und Küche/Esszimmer. Rest Heizkörper. Geplant: Fußbodenheizung auch in das neue große Wohnzimmer im OG und überall im DG. Ziel: luftwärmepumpe. Wenn das Ziel nicht erreicht werden kann, haben wir noch einen Gasanschluss. Aktuell der gute Ölbrenner
Ca. Budget: Architekt hat uns mal grob 150.000 Euro genannt. Da auch noch die Fassade gestrichen werden soll und wir ein neues Balkongeländer brauchen, evtl. neue Hauseingangstür sag ich mal 200.000 Euro. Es soll nicht luxuriös werden, sondern langlebig und sinnvoll.
Danke vorab für alle Überlegungen. Bleibt gesund!
Ähnliche Themen