ᐅ Zwei Hausgrundrisse in der engeren Wahl - Danke für Feedback
Erstellt am: 06.10.14 09:04
H
Häuslebauer15H
Häuslebauer1506.10.14 09:04Hallo zusammen,
wir sind ganz neu auf dieser Forums-Seite und haben schon einige interessante Beiträge in den letzten Tagen durchgelesen. Ebenso fanden wir es sehr interessant, welche hilfreichen Tipps und Ratschläge man hier von den "alten Hasen" unter Ihnen bekommt die einem sicherlich in vielen Dingen und Situationen sehr weiter helfen!
Wir selbst schauen seit ca. 1,5 Jahren nach einer gebrauchten Immobilie. Für uns ist wichtig dass das Haus nicht zu alt ist (ca. 10 - 15 Jahre) oder schon viel saniert wurde. Auch wenn wir handwerklich recht begabt sind und auch im Familien- und Freundeskreis einige handwerklich beruflich tätige Menschen haben, möchten wir kein völlig sanierungsbedürftiges Haus kaufen, um es auf den heutigen Stand der Technik & Co zu bringen. Da sich auf dem Markt in unserer Region allerdings kaum bis gar nichts tut haben wir uns nun dazu entschlossen zweigleisig zu fahren. Wir haben vor ein paar Monaten damit begonnen, uns mit dem Gedanken "Hausbau" zu beschäftigen und hatten nun auch schon zwei Termine bei möglichen Baufirmen. Einmal Danwood (Fertighausbau) und Viebrockhaus (Massivhausbau). Nach unserem Gespräch bei Viebrockhaus (wir wissen dass diese Firma anscheinend der Porsche unter den Anbietern ist, zumindest was man am Ende sicherlich alles mit bezahlt) steht für uns fest, dass wenn wir bauen zunächst die Massivbauweise an erster Stelle in Frage kommt. Wir haben ebenso bereits ein Gespräch bei einem Finanzberater gehabt, um die finanzielle Situation bzw. unsere monatliche Belastungsmöglichkeit zu prüfen. Wir beide sind Vollzeit in einem sicheren Arbeitsverhältnis, 27 und 34 Jahre alt, und wollen uns unser Nest bauen für einen Familienzuwachs von ein bis zwei Kindern.
Was wir nun festgestellt haben ist dass es doch sehr von Vorteil ist, wenn man doch schon recht genaue Vorstellungen hat, was das zukünftige Hausbauprojekt betrifft. Wir stellen uns ein 1,5-geschössiges Haus ohne Keller (ca. 130 - 150 qm) mit Klinker vor, im EG soll ein offener Küchen-/Ess-/Wohnbereich entstehen (dieser Leberaum soll lichtdurchflutet sein), ein großer Hauswirtschaftsraum (ca. 10 qm, so dass hier ausreichend Platz für Heizung, Waschmaschine, Trockner, Regale und auch Platz für einen Wäscheständer ist) der von der Küche erreichbar ist als auch eine Tür nach draußen (zum Carport) hat, ebenso sollte das EG ein Gäste-WC inkl. bodentiefer Dusche haben sowie ein Arbeitszimmer, welches später ggf. als Schlafzimmer genutzt werden könnte. Im OG sollen zwei ca. gleichgroße Kinderzimmer entstehen, ein Schlafzimmer (hier muss nur ein Bett rein passen), ein separates Ankleidezimmer mit Tageslicht sowie ein Familienbad. Wir träumen von einem Haus im Friesenstil, allerdings nicht mit einem ganz spitzen Friesengiebel sondern einem weiter geöffneten... schwierig zu beschreiben, ich denke ihr wisst was wir meinen, wir laden noch mal ein Foto hoch Ist es dann überhaupt der Friesenstil? Oder einfach nur ein Dach mit Giebel? (In diesem Thema sind wir noch unbeholfen.) Wenn möglich (finanziell) sowohl vorn als auch hinten.
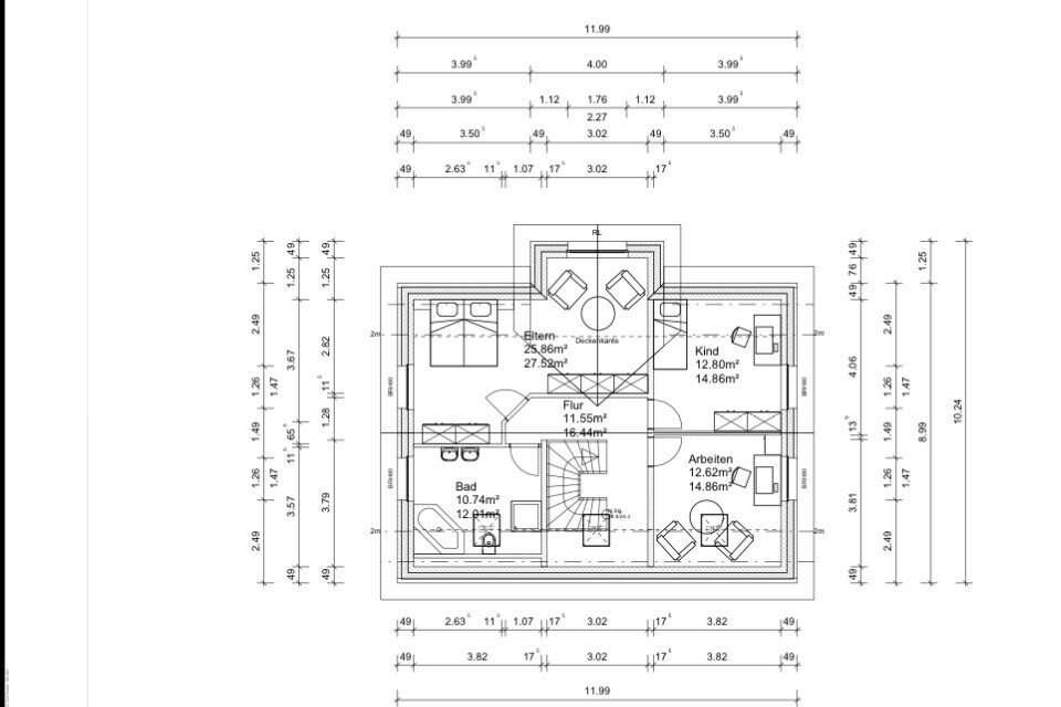
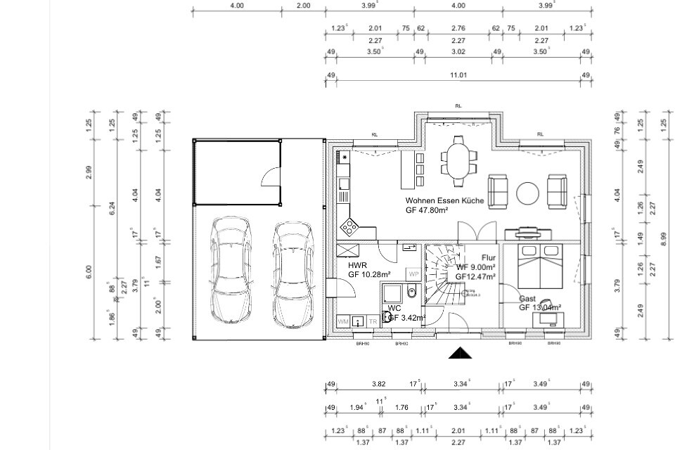
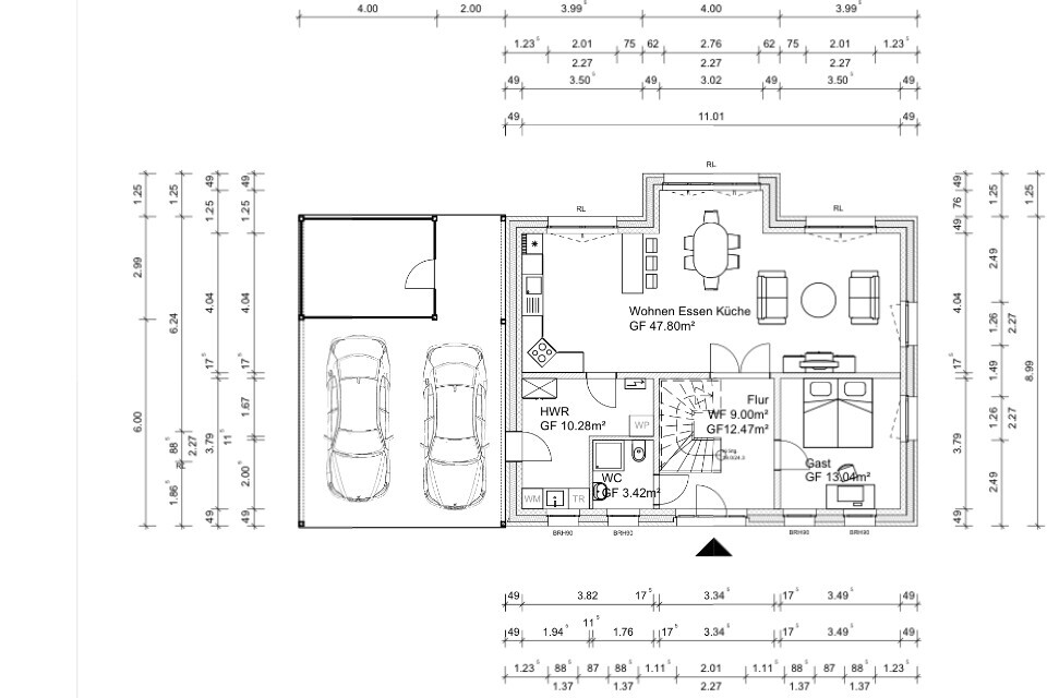
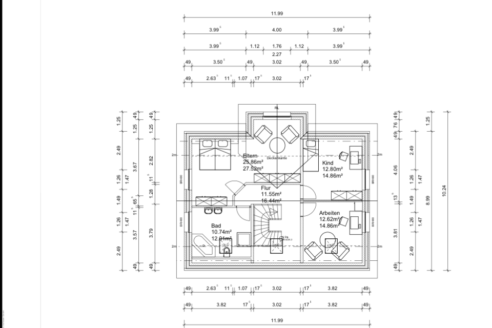
Nun unsere ersten Vorstellungen zum Thema Grundriss, wir haben zwei die in die engere Auswahl kommen. Wie ist Eure Meinung dazu? Kritik ist gewünscht!
Ebenso sind wir auf der Suche nach guten Bauunternehmen im Heidekreis (ehemals Soltau-Fallingbostel). Gibt es hier eigene Erfahrungen oder wisst ihr, welche Bauunternehmen einen guten Ruf haben von denen anzunehmen ist, dass dieses Unternehmen auch noch die nächsten Jahre bestehen bleibt?
Bei Viebrockhaus scheint es so, und das ist auch aus den meisten Baublogs zu entnehmen, dass man sich wirklich auf die Ausführung und den Zeitenplan verlassen kann. Wie sind hier eure Erfahrungen mit kleineren Bauunternehmen und Familienbetrieben? Muss man hier immer wieder mit Druck daran arbeiten, dass gewisse Gewerke durchgeführt werden?
Vielen Dank im Voraus und herzliche Grüße!

wir sind ganz neu auf dieser Forums-Seite und haben schon einige interessante Beiträge in den letzten Tagen durchgelesen. Ebenso fanden wir es sehr interessant, welche hilfreichen Tipps und Ratschläge man hier von den "alten Hasen" unter Ihnen bekommt die einem sicherlich in vielen Dingen und Situationen sehr weiter helfen!
Wir selbst schauen seit ca. 1,5 Jahren nach einer gebrauchten Immobilie. Für uns ist wichtig dass das Haus nicht zu alt ist (ca. 10 - 15 Jahre) oder schon viel saniert wurde. Auch wenn wir handwerklich recht begabt sind und auch im Familien- und Freundeskreis einige handwerklich beruflich tätige Menschen haben, möchten wir kein völlig sanierungsbedürftiges Haus kaufen, um es auf den heutigen Stand der Technik & Co zu bringen. Da sich auf dem Markt in unserer Region allerdings kaum bis gar nichts tut haben wir uns nun dazu entschlossen zweigleisig zu fahren. Wir haben vor ein paar Monaten damit begonnen, uns mit dem Gedanken "Hausbau" zu beschäftigen und hatten nun auch schon zwei Termine bei möglichen Baufirmen. Einmal Danwood (Fertighausbau) und Viebrockhaus (Massivhausbau). Nach unserem Gespräch bei Viebrockhaus (wir wissen dass diese Firma anscheinend der Porsche unter den Anbietern ist, zumindest was man am Ende sicherlich alles mit bezahlt) steht für uns fest, dass wenn wir bauen zunächst die Massivbauweise an erster Stelle in Frage kommt. Wir haben ebenso bereits ein Gespräch bei einem Finanzberater gehabt, um die finanzielle Situation bzw. unsere monatliche Belastungsmöglichkeit zu prüfen. Wir beide sind Vollzeit in einem sicheren Arbeitsverhältnis, 27 und 34 Jahre alt, und wollen uns unser Nest bauen für einen Familienzuwachs von ein bis zwei Kindern.
Was wir nun festgestellt haben ist dass es doch sehr von Vorteil ist, wenn man doch schon recht genaue Vorstellungen hat, was das zukünftige Hausbauprojekt betrifft. Wir stellen uns ein 1,5-geschössiges Haus ohne Keller (ca. 130 - 150 qm) mit Klinker vor, im EG soll ein offener Küchen-/Ess-/Wohnbereich entstehen (dieser Leberaum soll lichtdurchflutet sein), ein großer Hauswirtschaftsraum (ca. 10 qm, so dass hier ausreichend Platz für Heizung, Waschmaschine, Trockner, Regale und auch Platz für einen Wäscheständer ist) der von der Küche erreichbar ist als auch eine Tür nach draußen (zum Carport) hat, ebenso sollte das EG ein Gäste-WC inkl. bodentiefer Dusche haben sowie ein Arbeitszimmer, welches später ggf. als Schlafzimmer genutzt werden könnte. Im OG sollen zwei ca. gleichgroße Kinderzimmer entstehen, ein Schlafzimmer (hier muss nur ein Bett rein passen), ein separates Ankleidezimmer mit Tageslicht sowie ein Familienbad. Wir träumen von einem Haus im Friesenstil, allerdings nicht mit einem ganz spitzen Friesengiebel sondern einem weiter geöffneten... schwierig zu beschreiben, ich denke ihr wisst was wir meinen, wir laden noch mal ein Foto hoch Ist es dann überhaupt der Friesenstil? Oder einfach nur ein Dach mit Giebel? (In diesem Thema sind wir noch unbeholfen.) Wenn möglich (finanziell) sowohl vorn als auch hinten.
Nun unsere ersten Vorstellungen zum Thema Grundriss, wir haben zwei die in die engere Auswahl kommen. Wie ist Eure Meinung dazu? Kritik ist gewünscht!
Ebenso sind wir auf der Suche nach guten Bauunternehmen im Heidekreis (ehemals Soltau-Fallingbostel). Gibt es hier eigene Erfahrungen oder wisst ihr, welche Bauunternehmen einen guten Ruf haben von denen anzunehmen ist, dass dieses Unternehmen auch noch die nächsten Jahre bestehen bleibt?
Bei Viebrockhaus scheint es so, und das ist auch aus den meisten Baublogs zu entnehmen, dass man sich wirklich auf die Ausführung und den Zeitenplan verlassen kann. Wie sind hier eure Erfahrungen mit kleineren Bauunternehmen und Familienbetrieben? Muss man hier immer wieder mit Druck daran arbeiten, dass gewisse Gewerke durchgeführt werden?
Vielen Dank im Voraus und herzliche Grüße!
Denk dran, dass Du bei Firmen wie Danwood zu den angegebenen Preisen noch ordentlich zulegen musst. Da kostet dann sogar das Anliefern des Hauses noch mal extra.
Tönjes und Meissner bauen sicherlich auch im Heidekreis. Von denen habe ich sehr viel Gutes gehört.
Ansonsten würde ich anders herangehen: Ermittelt Euer Budget und schreibt eine Bedarfsplanung. Also: Wie groß sollen welche Zimmer sein und eben solche Angaben, wie Du hier schon gemacht hast. Und damit gehst Du dann zum Häuslebauer.
Tönjes und Meissner bauen sicherlich auch im Heidekreis. Von denen habe ich sehr viel Gutes gehört.
Ansonsten würde ich anders herangehen: Ermittelt Euer Budget und schreibt eine Bedarfsplanung. Also: Wie groß sollen welche Zimmer sein und eben solche Angaben, wie Du hier schon gemacht hast. Und damit gehst Du dann zum Häuslebauer.
B
Bauexperte06.10.14 12:10Hallo,
ich habe zwar die Namen der Anbieter zunächst gekürzt (ändere ich im Anschluss an diesen post wieder), sehe aber ein, daß es hier primär um eine Diskussion um mögliche Anbieter gehen wird. Deshalb habe ich den Thread in das moderierte Forum verschoben.
Grüße, Bauexperte
ich habe zwar die Namen der Anbieter zunächst gekürzt (ändere ich im Anschluss an diesen post wieder), sehe aber ein, daß es hier primär um eine Diskussion um mögliche Anbieter gehen wird. Deshalb habe ich den Thread in das moderierte Forum verschoben.
Grüße, Bauexperte
Na, mit den 2 Anbietern habt ihr euch ja 2 total unterschiedliche herausgesucht:
Einmal einer von den teuersten in Massivbauweise und einmal einer der günstigsten aus dem Fertighausbereich.
Ihr müsst euch erst mal darüber klar werden, wie ihr bauen wollt: Fertigbauweise (Holzständer), Massiv mit dünnen Steinen und dicker Dämmung oder dicke Steine, dafür keine Dämmung.
Schaut auch mal nach Generalunternehmen oder Bauträger in eurer Gegend. Wir bauen gerade mit einem kleinen Gu, der deutschlandweit baut.
Was die Grundrisse betrifft: Sie sind in Ordnung. Nichts überraschendes zwar, was aber nicht heißt, dass sie mir nicht gefallen. Ich finde jedoch den 2. Grundriss etwas schöner
.
Bei Grundriss 1 müsst ihr immer um den Esstisch oder der Couch rum laufen, wenn ihr auf die Terrasse wollt. Und es fehlt mir hier im Flur wieder Platz für die Garderobe. Ich kann nur immer wieder betonen, das mit Kinder so einiges an Taschen, Schuhen, Jacken und Accesoirs (Mützen, Handschuhe..), Regenkleidung, Matschklamotten zusammen kommt, die irgendwo untergebracht werden müssen. nicht zu vergessen in den ersten Jahren, Babysafe, Wickeltasche, Kinderwagen.
Bei Grundriss 2 habt ihr nen schönen Platz für die Garderobe. Außerdem habt ihr im OG, bei entsprechender Raumaufteilung, die Möglichkeit einen Eltern und einen Kinderbereich mit eigenem Kinderbad zu schaffen - wenn ihr sowas wollt. Im Wohnzimmer habt ihr auch die Möglichkeit auf die Terrasse zu kommen, ohne irgendwo vorbeischluppen zu müssen. Beim 2. Grundriss könntet ihr noch nen Zugang vom Flur zum Hauswirtschaftsraum schaffen, was ich eigentlich praktischer finde, als von der Küche aus, denn dann muss man 1. den Wäschekorb nicht um zig Ecken tragen und wenn mal ein Techniker kommt, bekommt der nicht gleich ne komplette Hausführung Und man muss nicht immer erst durch dei Küche laufen, wenn man gerade von draußen reinkommt und man noch Jacke und Schuhe an hat.
Einmal einer von den teuersten in Massivbauweise und einmal einer der günstigsten aus dem Fertighausbereich.
Ihr müsst euch erst mal darüber klar werden, wie ihr bauen wollt: Fertigbauweise (Holzständer), Massiv mit dünnen Steinen und dicker Dämmung oder dicke Steine, dafür keine Dämmung.
Schaut auch mal nach Generalunternehmen oder Bauträger in eurer Gegend. Wir bauen gerade mit einem kleinen Gu, der deutschlandweit baut.
Was die Grundrisse betrifft: Sie sind in Ordnung. Nichts überraschendes zwar, was aber nicht heißt, dass sie mir nicht gefallen. Ich finde jedoch den 2. Grundriss etwas schöner
.
Bei Grundriss 1 müsst ihr immer um den Esstisch oder der Couch rum laufen, wenn ihr auf die Terrasse wollt. Und es fehlt mir hier im Flur wieder Platz für die Garderobe. Ich kann nur immer wieder betonen, das mit Kinder so einiges an Taschen, Schuhen, Jacken und Accesoirs (Mützen, Handschuhe..), Regenkleidung, Matschklamotten zusammen kommt, die irgendwo untergebracht werden müssen. nicht zu vergessen in den ersten Jahren, Babysafe, Wickeltasche, Kinderwagen.
Bei Grundriss 2 habt ihr nen schönen Platz für die Garderobe. Außerdem habt ihr im OG, bei entsprechender Raumaufteilung, die Möglichkeit einen Eltern und einen Kinderbereich mit eigenem Kinderbad zu schaffen - wenn ihr sowas wollt. Im Wohnzimmer habt ihr auch die Möglichkeit auf die Terrasse zu kommen, ohne irgendwo vorbeischluppen zu müssen. Beim 2. Grundriss könntet ihr noch nen Zugang vom Flur zum Hauswirtschaftsraum schaffen, was ich eigentlich praktischer finde, als von der Küche aus, denn dann muss man 1. den Wäschekorb nicht um zig Ecken tragen und wenn mal ein Techniker kommt, bekommt der nicht gleich ne komplette Hausführung Und man muss nicht immer erst durch dei Küche laufen, wenn man gerade von draußen reinkommt und man noch Jacke und Schuhe an hat.
Schlüter Bauregie in Dollern/Harsefeld und WOBau in Ostereistedt (muss doch auch irgendwo in Eurer Ecke liegen)
Mit Letzterem haben unsere Nachbarn einen Bungalow gebaut und sind durchweg zufrieden.
Ersteres haben wir uns auch mal angeschaut, die bauen auch mit freier Planung.
Viebrockhaus würde ich bei VW einordnen: solide, aber teuer. Die bieten wohl 10-Jahres-Garantie, wie mir kürzlich erzählt wurde, durch kurze Bauzeiten muss man aber mit Feuchtigkeit hinter Spiegeln etc rechnen.
Für einen Preisvergleich könnt Ihr gut entsprechende Grundrisse nehmen, dennoch sind beide jetzt noch nicht das Nonplusultra.
Bei regionalen Firmen hätte ich ein besseres Gefühl: die haben mehr "Ruf" in ihrem Umland zu verlieren. Arbeiten tun sie alle meist mit Subs.
Mir fällt noch WITO ein, auch ein regionaler...
Mit Letzterem haben unsere Nachbarn einen Bungalow gebaut und sind durchweg zufrieden.
Ersteres haben wir uns auch mal angeschaut, die bauen auch mit freier Planung.
Viebrockhaus würde ich bei VW einordnen: solide, aber teuer. Die bieten wohl 10-Jahres-Garantie, wie mir kürzlich erzählt wurde, durch kurze Bauzeiten muss man aber mit Feuchtigkeit hinter Spiegeln etc rechnen.
Für einen Preisvergleich könnt Ihr gut entsprechende Grundrisse nehmen, dennoch sind beide jetzt noch nicht das Nonplusultra.
Bei regionalen Firmen hätte ich ein besseres Gefühl: die haben mehr "Ruf" in ihrem Umland zu verlieren. Arbeiten tun sie alle meist mit Subs.
Mir fällt noch WITO ein, auch ein regionaler...
Schön wenn man sein Traumhaus hat, aber kein passendes Grundstück,...
Zuerst sollte man schauen ob es finanziell überhaupt geht (inkl Zukunftsblick mit 2 Kindern).
Dann sollte das Grundstück kommen - habt ihr das passende für euch gefunden müsst ihr schauen was ihr darauf bauen dürft - nicht was ihr bauen wollt.
Anhand des Budgets und der Vorgaben kann man sich dann an die Hausgestaltung machen. Schade wenn keine Gauben erlaubt sind, ihr aber unbedingt so ein Haus wollt,...
Bei uns sind Grundstücke noch rarer als Bestandsimmobilien - da nimmst du was du bekommst - und darfst dann zu 99% nicht das bauen was du bauen möchtest.
Zuerst sollte man schauen ob es finanziell überhaupt geht (inkl Zukunftsblick mit 2 Kindern).
Dann sollte das Grundstück kommen - habt ihr das passende für euch gefunden müsst ihr schauen was ihr darauf bauen dürft - nicht was ihr bauen wollt.
Anhand des Budgets und der Vorgaben kann man sich dann an die Hausgestaltung machen. Schade wenn keine Gauben erlaubt sind, ihr aber unbedingt so ein Haus wollt,...
Bei uns sind Grundstücke noch rarer als Bestandsimmobilien - da nimmst du was du bekommst - und darfst dann zu 99% nicht das bauen was du bauen möchtest.
Ähnliche Themen