Hausbau - Ratgeber
Bauherrenhilfe
- Bauherrenhilfe vor Vertragsabschluss
-- Warum einen unabhängigen Baubetreuer?
-- Vertragsgrundlagen
-- Bausumme
-- Zahlungsplan zur Kostenkontrolle
-- Pflichten des Bauherren vor Vertragsabschluss
-- Unterlagen beim Hausbau vor Vertragsabschluss
- Bauherrenhilfe nach Vertragsabschluss
-- Bauantrag bei Behörden
-- Bau-Genehmigungsverfahren bei Baubehörden
-- Bauspezifische Versicherungen
-- Bauzeitenplan
-- Baubeginn - die Letzten Pflichten der Bauherrschaft
- Bauherrenhilfe während der Bauzeit
- Gewährleistungsansprüche
- Bauabnahme
Baufinanzierung
- Baufinanzierung - Allgemeine Fragen
- Kreditarten
- Kredit-Konditionen
- Bausparen
- Staatliche Förderungen
- Verkehrswert
- Haushaltsrechnung und Bonität
Hausbau Planung
- Haustypen
- Hausbau Vorbereitungsarbeiten
- Das Baugrundstück
- Baugrund beim Hausbau
- Baurecht
- Gebäudeschutz
- Erdarbeiten und Wasserhaltung
- Stützmauern
- Einfriedung
- Untergeschoss
- Kanalisation
- Tragende Elemente
- Nichttragende Innenwände
- Fundation / Fundament
- Deckenkonstruktionen
- Dächer
- Kaminanlagen
- Treppen Rampen Leitern
- Dachbeläge und Spengler
- Fenster
- Sonnen und Wetterschutz
- Aussenputze
- Einbauten, Küchen, Türen
- Bodenbeläge und Unterlagsböden
- Parkett
- Gips, Wand, Decke
Haustechnik und Energie
- Heiztechnik
- Lüftung und Klimatechnik
- Sanitärtechnik
- Elektrotechnik
- Erneuerbare Energie
Whirlpools / Jacuzzi
Hausbau Magazin
- Baufinanzierung trotz Krise?
- Das Blockhaus
- Moderne Dämmstoffe im Vergleich
- Erker Vor- und Nachteile
- Glasflächen beim Hausbau
- Günstig ein Haus Bauen
- Mediterraner Hausbaustil
- Mehrgenerationenhaus
- Moderne Architektur
- Gartengestaltung leicht gemacht
- Traditioneller Ziegelbau
- Villa als höchster Traum
- Im Eigenheim Ruhestand geniessen
- Altbau sanieren
- Kauf einer Holzgarage
- Immobilienmakler
- Arbeitshandschuhe für den Winter
- Zuhause verschönern
- Outdoor-Plissees
- Schlafzimmer planen
- Terrassenüberdachung
- Wohngebäudeversicherung
- Zaunarten und Eigenschaften
- Hauseingang gestalten
- Der perfekte Grundriss
- Sparsamer heizen im Altbau
- Einfamilienhaus smart finanzieren
- Planung einer PV-Anlage
- Neues Haus
- Immobilienfinanzierung
- Installation einer Photovoltaikanlage
- Asbest erkennen und entfernen
- Gartenpflege im Frühling – worauf achten
- Sauna im Fokus - Wellness zuhause
- Erfolgreich vermieten
- Die perfekte Winterbekleidung
- Das Niedrigenergiehaus
- Der April und seine Stürme
- Architektonische Vielfalt
- Ökologisch und nachhaltig bauen
- Das perfekte Schlafzimmer
- Nachhaltige Energieversorgung
- Zukunftsorientiert bauen
- Nachhaltigkeit beim Hausbau
- Tiny Houses
- Wärmepumpen als nachhaltige Heizvariante
- Maßgeschneiderten Kleiderschrank
- Der richtige Baukredit
- Ratgeber für erfolgreichen Hausbau
- Haus als Altersvorsorge
Do-it-yourself Anleitungen
- Verlegeanleitung für Bodenbeläge und Parkett
- Bodenbeläge und Parkett reinigen und pflegen
- Malerarbeiten am Haus
- Garten Tipps
- Umzug und Reinigung

ᐅ Wohnfläche ~ 8 m² geringer bei Antragszeichnungen als bei Entwurf (GU)

Erstellt am: 16.04.25 11:23
I
ITSM2025
I
ITSM2025
16.04.25 15:23
ypg schrieb:

Links ist also der Entwurf, den der "GU" gezeichnet hat?

Ja genau. Und danke für deinen Beitrag!
11ant16.04.25 15:30
ITSM2025 schrieb:

"Entsprechend den Anforderungen an KfW40 und den (vorab-) Angaben unseres Statikers, haben wir die Außenwände von ursprünglich Breite = 42,5 cm auf nun 49 cm erweitert, zudem im Erdgeschoss Innenwände nach Statik mit b = 17,5 cm eingeplant, dies führt zu einem kleinen Verlust der tatsächlichen Wohnfläche, ebenso wie kleinen Verschiebungen der Innenwände nach Statik. Dies ist jedoch zwingend erforderlich.
Na, dann ist doch alles klar !
ITSM2025 schrieb:

Den Kapitänsgiebel haben wir – kostenlos – in der Breite erweitert, von ursprünglich Breite = 3,49 m auf nun b = 3,74 m. Grund hierfür ist, dass die zwei Stützen im Erdgeschoss mit ca. 55 cm ausgebildet werden müssen (statisch bedingt), damit aber der Hauseingangsbereich nicht eng und klein wirkt, gleichzeitig die Stützen aber sehr mächtig, und die Stützen optisch schön zur Geltung kommen, haben wir uns für die Vergrößerung entschieden."
Klar erkennbar keiner, der Dich übervorteilen will. Dein GU plant übrigens sauber im Oktameterraster, also ohne Steinesägerei / Pfuschertaschen. Schon darum werden Dich viele Bauherren beneiden - mindestens solche, die ungeschützt zu einem GU gehen.
ITSM2025 schrieb:

Also worauf ich hier eigentlich hinaus wollte: Sollte ich hier jetzt ein Fass beim GU aufmachen oder ist das "einfach so" und damit müsse ich jetzt leben?
Wie schon gesagt, da gibt es kein Faß aufzumachen und es ist auch kein Fall von "ist einfach so". Du bist an einen vorbildlichen GU geraten und Dein Versäumnis, ihm nicht gesagt zu haben, daß er eine Wandstärkenanpassung wohnflächenunschädlich (also dann eben nach außen) vornehmen soll, kannst Du noch mit einer Dreizeiler-eMail heilen. Das kostet den ein paar Mausklicke, dann hast Du Dein 13 cm breiter und tiefer gewordenes Haus und den Preis dafür.
https://www.instagram.com/11antgmxde/
https://www.linkedin.com/company/bauen-jetzt/
I
ITSM2025
16.04.25 15:54
11ant schrieb:

Na, dann ist doch alles klar !

Klar erkennbar keiner, der Dich übervorteilen will. Dein GU plant übrigens sauber im Oktameterraster, also ohne Steinesägerei / Pfuschertaschen. Schon darum werden Dich viele Bauherren beneiden - mindestens solche, die ungeschützt zu einem GU gehen.

Wie schon gesagt, da gibt es kein Faß aufzumachen und es ist auch kein Fall von "ist einfach so". Du bist an einen vorbildlichen GU geraten und Dein Versäumnis, ihm nicht gesagt zu haben, daß er eine Wandstärkenanpassung wohnflächenunschädlich (also dann eben nach außen) vornehmen soll, kannst Du noch mit einer Dreizeiler-eMail heilen. Das kostet den ein paar Mausklicke, dann hast Du Dein 13 cm breiter und tiefer gewordenes Haus und den Preis dafür.

Ok, d.h. also für mich als Laien, dass dieses Vorgehen so üblich bzw. korrekt im rechtlichen wie technischem Sinne ist? Und wenn der GU dann sagt, dass ich die Verbreiterung der Fläche auf die Flächen wie im Entwurf bezahlen soll, ist das so absolut verständlich und nachvollziehbar aus deiner Sicht?
11ant16.04.25 16:11
ITSM2025 schrieb:

Ok, d.h. also für mich als Laien, dass dieses Vorgehen so üblich bzw. korrekt im rechtlichen wie technischem Sinne ist?
So ist es mehr als korrekt, sondern geradezu vorbildlich !
Wie gesagt, der Fehler liegt 1. bei Dir, und ist 2. durch eine einfache klitzekleine eMail deinerseits zu beheben.
ITSM2025 schrieb:

Und wenn der GU dann sagt, dass ich die Verbreiterung der Fläche auf die Flächen wie im Entwurf bezahlen soll, ist das so absolut verständlich und nachvollziehbar aus deiner Sicht?
Niemand anderer als Du hat den Konflikt (EH 40, Kaliber 425, Konstruktionsmauerschale aus Kalksandstein - also drei Anforderungen, von denen immer nur zwei gleichzeitig erfüllbar sind) heraufbeschworen, und daher liegt es auch ausschließlich in Deiner Hand, ihn zu lösen. Ob Du dabei die Wandstärkenerhöhung nach außen legen läßt oder vernünftigerweise vom Kalksandstein für die Konstruktionsmauerschale abrückst, ist Deine Wahl. In Porenbeton kannst Du hier auf Kaliber 425 zurück gehen (oder ggf. auf Kaliber 440, die anderthalb Zentimeter nimmst Du dann aber besser von innen, um außen im Baurichtmaß zu bleiben).
https://www.instagram.com/11antgmxde/
https://www.linkedin.com/company/bauen-jetzt/
I
ITSM2025
16.04.25 16:23
11ant schrieb:

So ist es mehr als korrekt, sondern geradezu vorbildlich !
Wie gesagt, der Fehler liegt 1. bei Dir, und ist 2. durch eine einfache klitzekleine eMail deinerseits zu beheben.

Niemand anderer als Du hat den Konflikt (EH 40, Kaliber 425, Konstruktionsmauerschale aus Kalksandstein - also drei Anforderungen, von denen immer nur zwei gleichzeitig erfüllbar sind) heraufbeschworen, und daher liegt es auch ausschließlich in Deiner Hand, ihn zu lösen. Ob Du dabei die Wandstärkenerhöhung nach außen legen läßt oder vernünftigerweise vom Kalksandstein für die Konstruktionsmauerschale abrückst, ist Deine Wahl. In Porenbeton kannst Du hier auf Kaliber 425 zurück gehen (oder ggf. auf Kaliber 440, die anderthalb Zentimeter nimmst Du dann aber besser von innen, um außen im Baurichtmaß zu bleiben).

Könntest du das bitte konkretisieren? Weshalb ist das mein Fehler? Ich habe dem GU doch von Anfang an kommuniziert was ich haben möchte? Woraufhin er diese bunte Skizze angefertigt hat mit entsprechenden Flächen die in der Mitte der Räume in Zahlen ausgedrückt sind. Verstehe ich nicht, tut mir leid. Ich bin nicht vom Fach.

Werde ihm dann mal diese kleine, einfache Mail schreiben und dann weiterschauen. Klingt ja einfach.
I
ITSM2025
16.04.25 16:35
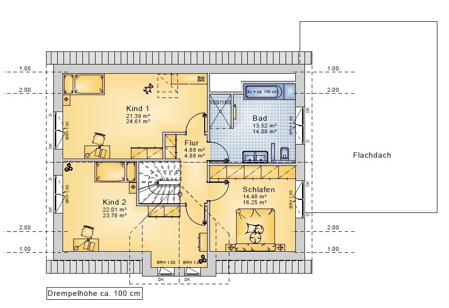
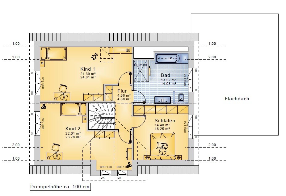
Anbei noch die restlichen Skizzen/Zeichnungen.
Grundriss eines Dachbodens: Gelber Bereich von 94,40 m² mit zentraler Spiraltreppe und Tür.

Architektur-Grundriss: Gebäudegrundriss mit Treppenhaus, Flur, Bodenraum und Maßlinien

Grundriss des Obergeschosses: Schlafzimmer, zwei Kinderzimmer, Flur, Bad, Treppenhaus, Flachdach.

Dachgeschoss-Grundriss: Schlafen, zwei Kinderzimmer, Bad, Flur, Treppe.

Architektur-Schnitte A-A und B-B eines Hauses mit Dachstuhl, Treppen und Räumen.
konstruktionsmauerschalekalksandstein