ᐅ Wasserentnahmestellen / Wasserrohre / Bewässerung im Garten - Ideen
Erstellt am: 19.03.21 09:53
W
world-eHallo zusammen,
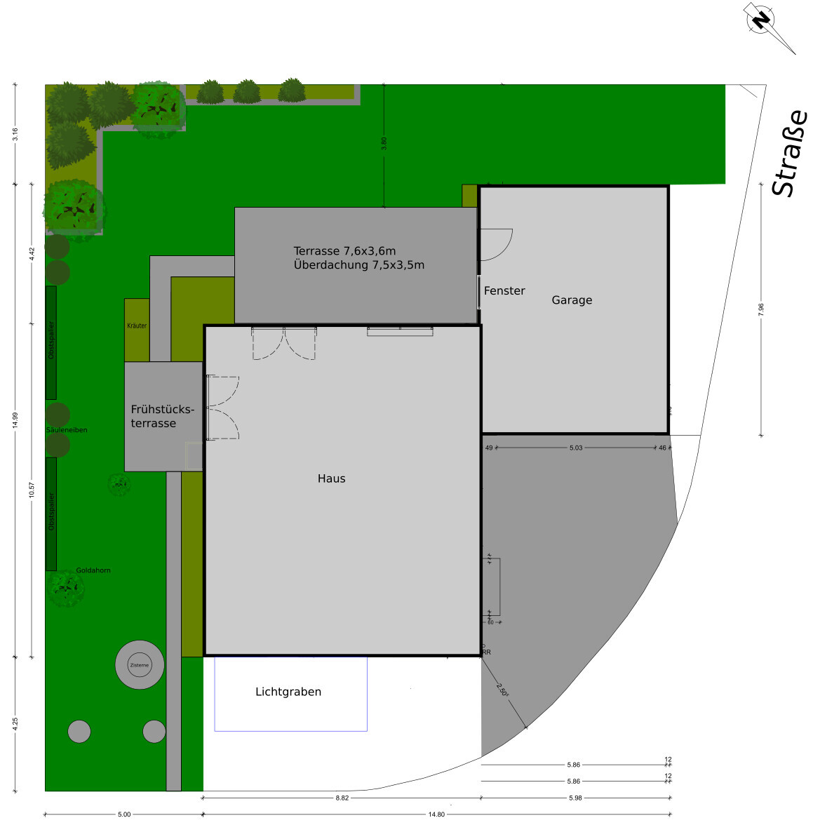
hier erhoffe ich mir ein paar Ideen, wo ihr Wasserentnahmestellen im Garten platzieren würdet. Bzw. wo man jetzt schon Wasserrohre im Garten legen sollte, falls man mal zumindest teilweise automatisch bewässern möchte. Dass eine automatische Gartenbewässerung mehr Planung benötigt, ist klar. Dazu habe ich aber keine Zeit und Muse dazu momentan. Genauso sieht es zeitlich auch nicht so aus, dass man dies in nächster Zeit machen könnte. Aber zumindest könnte man die Wasserrohre schon mal planen und verlegen, damit man später zumindest die Möglichkeit dazu hat. Anbei eine eine Skizze der bisherigen Überlegungen für den Garten. Folgende Fakten.

hier erhoffe ich mir ein paar Ideen, wo ihr Wasserentnahmestellen im Garten platzieren würdet. Bzw. wo man jetzt schon Wasserrohre im Garten legen sollte, falls man mal zumindest teilweise automatisch bewässern möchte. Dass eine automatische Gartenbewässerung mehr Planung benötigt, ist klar. Dazu habe ich aber keine Zeit und Muse dazu momentan. Genauso sieht es zeitlich auch nicht so aus, dass man dies in nächster Zeit machen könnte. Aber zumindest könnte man die Wasserrohre schon mal planen und verlegen, damit man später zumindest die Möglichkeit dazu hat. Anbei eine eine Skizze der bisherigen Überlegungen für den Garten. Folgende Fakten.
- Terrasse samt Überdachung stehen schon
- Frühstücksterrasse und Wege sind bisher nur geplant, aber soll hier auch nicht Thema sein
- Garten ist noch nicht angelegt, Humus ist auch noch nicht verteilt
- Links oben sollen erhöhte Pflanzbeete erstellt werden. Hier würde ich auf jeden Fall eine Entnahmestelle einplanen
- Rechts von der Garage geht es leicht zur Straße hoch. Dort soll etwas pflegeleichtes hin
- Unterhalb vom Haus ist ein Lichtgraben und rechts vom Lichtgraben steht eine Wärmepumpe
- In die Zisterne soll später eine Pumpe, also können Wasserrohre von hier aus verlegt werden
- Von der Zisterne geht ein Leerrohr zur Garage für ein Wasserrohr
- In der Garage links oben gibt es schon einen Wasserhahn mit Leitungswasser und ein Ausgussbecken
Genau jetzt ist die Zeit die Bewässerung zu Planen und einzubauen. Du musst nicht graben und kannst "wild" verlegen und danach nur noch überdecken.
So einfach wird es nie wieder. Wenn du es später machst musst du erneut aufgraben.
Baue eine Pumpe wie z.B. Tipp 30082 AJ 4 plus 100/57 AUT in die Zisterne ein.
Strom liegt in der Zisterne? Wenn du ein Leerrohr in die Garage hast könntest du dort die Steuerung anbringen.
Dann noch Wasserleitung in die Zisterne zur Nachfüllung.
Ob du jetzt nur die Rohre verlegst oder alle paar Meter noch einen Regner anschließt ist kein großer Mehraufwand.
Du hast eine relativ einfache Situation mit keinen großen Freiflächen.
Du benötigst nur 1-2 verschiedene Regnerköpfe (MP1000 und MP2000).
Sprich du führst eine PE-HD Leitung (DN32) von der Zisternenpumpe raus, zweigst 1 x in eine Verteilerbox einen weiteren Strang führst du weiter um die Bodendosen anzufahren. Neben dem Beet und Terrasse und wo du sonst noch meinst eine zu benötigen.
Ins Hochbeet, Hecken und Bäume kommt Tropfbewässerung oder Wurzelbewässerung.
Regnergehäuse PRO Spray PRS40-CV. Verbinder von Unidelta. Ventile auch unbedingt in DN32.
Steuerung Hunter Hydrawise falls funktional, stabil und Standalone gewünscht ist.
Von der Verteilerbox führst du die Steuerleitung zu Steuerung. Die Wasserleitungen zu den einzelnen Kreisen.
Die Regner setzt du immer an den Rändern (innen und außen) der zu beregneten Fläche. Absatz von Regner zu Regner ist immer die Wurfweite dass sie sich gegenseitig erreichen.
An den Beeten legst du nur die Wasserleitung (extra Kreise) rein. Dann mit Tropfschlauch (empfehle Hunter XFS) weiter machen. Mit der genannten Pumpe benötigst du eine Druckminderer.
Die genannten Regnerköpfe mit der kleinen Reichweite haben einen sehr geringen Wasserverbrauch. Somit kann man viele Regner in einen Kreis packen.
Bei deiner Rasenfläche kommst du mit 2-3 Kreisen aus. Dann noch die Tröpfchen bzw. Wurzelbewässerung also nochmal 2-3 Kreise.
In einem Tag ist das ganze mit zwei Personen verlegt da du nicht graben musst.
So einfach wird es nie wieder. Wenn du es später machst musst du erneut aufgraben.
Baue eine Pumpe wie z.B. Tipp 30082 AJ 4 plus 100/57 AUT in die Zisterne ein.
Strom liegt in der Zisterne? Wenn du ein Leerrohr in die Garage hast könntest du dort die Steuerung anbringen.
Dann noch Wasserleitung in die Zisterne zur Nachfüllung.
Ob du jetzt nur die Rohre verlegst oder alle paar Meter noch einen Regner anschließt ist kein großer Mehraufwand.
Du hast eine relativ einfache Situation mit keinen großen Freiflächen.
Du benötigst nur 1-2 verschiedene Regnerköpfe (MP1000 und MP2000).
Sprich du führst eine PE-HD Leitung (DN32) von der Zisternenpumpe raus, zweigst 1 x in eine Verteilerbox einen weiteren Strang führst du weiter um die Bodendosen anzufahren. Neben dem Beet und Terrasse und wo du sonst noch meinst eine zu benötigen.
Ins Hochbeet, Hecken und Bäume kommt Tropfbewässerung oder Wurzelbewässerung.
Regnergehäuse PRO Spray PRS40-CV. Verbinder von Unidelta. Ventile auch unbedingt in DN32.
Steuerung Hunter Hydrawise falls funktional, stabil und Standalone gewünscht ist.
Von der Verteilerbox führst du die Steuerleitung zu Steuerung. Die Wasserleitungen zu den einzelnen Kreisen.
Die Regner setzt du immer an den Rändern (innen und außen) der zu beregneten Fläche. Absatz von Regner zu Regner ist immer die Wurfweite dass sie sich gegenseitig erreichen.
An den Beeten legst du nur die Wasserleitung (extra Kreise) rein. Dann mit Tropfschlauch (empfehle Hunter XFS) weiter machen. Mit der genannten Pumpe benötigst du eine Druckminderer.
Die genannten Regnerköpfe mit der kleinen Reichweite haben einen sehr geringen Wasserverbrauch. Somit kann man viele Regner in einen Kreis packen.
Bei deiner Rasenfläche kommst du mit 2-3 Kreisen aus. Dann noch die Tröpfchen bzw. Wurzelbewässerung also nochmal 2-3 Kreise.
In einem Tag ist das ganze mit zwei Personen verlegt da du nicht graben musst.
rick2018 schrieb:
Genau jetzt ist die Zeit die Bewässerung zu Planen und einzubauen. Du musst nicht graben und kannst "wild" verlegen und danach nur noch überdecken.
So einfach wird es nie wieder. Wenn du es später machst musst du erneut aufgraben.
Baue eine Pumpe wie z.B. Tipp 30082 AJ 4 plus 100/57 AUT in die Zisterne ein.
Strom liegt in der Zisterne? Wenn du ein Leerrohr in die Garage hast könntest du dort die Steuerung anbringen.
Dann noch Wasserleitung in die Zisterne zur Nachfüllung.
Ob du jetzt nur die Rohre verlegst oder alle paar Meter noch einen Regner anschließt ist kein großer Mehraufwand.
Du hast eine relativ einfache Situation mit keinen großen Freiflächen.
Du benötigst nur 1-2 verschiedene Regnerköpfe (MP1000 und MP2000).
Sprich du führst eine PE-HD Leitung (DN32) von der Zisternenpumpe raus, zweigst 1 x in eine Verteilerbox einen weiteren Strang führst du weiter um die Bodendosen anzufahren. Neben dem Beet und Terrasse und wo du sonst noch meinst eine zu benötigen.
Ins Hochbeet, Hecken und Bäume kommt Tropfbewässerung oder Wurzelbewässerung.
Regnergehäuse PRO Spray PRS40-CV. Verbinder von Unidelta. Ventile auch unbedingt in DN32.
Steuerung Hunter Hydrawise falls funktional, stabil und Standalone gewünscht ist.
Von der Verteilerbox führst du die Steuerleitung zu Steuerung. Die Wasserleitungen zu den einzelnen Kreisen.
Die Regner setzt du immer an den Rändern (innen und außen) der zu beregneten Fläche. Absatz von Regner zu Regner ist immer die Wurfweite dass sie sich gegenseitig erreichen.
An den Beeten legst du nur die Wasserleitung (extra Kreise) rein. Dann mit Tropfschlauch (empfehle Hunter XFS) weiter machen. Mit der genannten Pumpe benötigst du eine Druckminderer.
Die genannten Regnerköpfe mit der kleinen Reichweite haben einen sehr geringen Wasserverbrauch. Somit kann man viele Regner in einen Kreis packen.
Bei deiner Rasenfläche kommst du mit 2-3 Kreisen aus. Dann noch die Tröpfchen bzw. Wurzelbewässerung also nochmal 2-3 Kreise.
In einem Tag ist das ganze mit zwei Personen verlegt da du nicht graben musst.Danke für die Rückmeldung.
Habe mir die Infos mal angeschaut, aber ganz schlau bin ich nicht geworden. Bisher liegt noch kein Strom in der Zisterne. Aber es geht ein bisher leeres KG-Rohr von der Garage zur Zisterne. Dort könnte man Kabel und Wasserleitung installieren. Leider sind es momentan eine Fülle an Informationen, die ich erst mal verarbeiten muss. Hier fehlt mir auch ein Schema vom grundsätzlichen Aufbau.
- Eine PE-HD-Wasserleitung zu der Verteilerbox? Und welche Leitungen gehen dann von der Verteilerbox zu den Regner? Also eine Leitung je Regner? Oder werden diese an einer Leitung jeweils abgezweigt
- Würde dann alles über die Hydrawise-Steuer laufen oder nur die Regner?
- Meinst du eine Verteilerdose mit inkludierten Ventilen? Oder welche Ventile sollten es sein?
- Mit Bodendose meinst du eine Dose, wo man einen normalen Gartenschlauch anschließen kann?
- Gibt es eine Software, wo man das alles planen kann?
- Plant man die Regner mit der maximalen Wurfweite ein oder gibt es einen anderen Richtwert?
- Die Steuerung aktiviert die Bewässerung nach einer Zeiteinstellung? Eine Messung der Feuchtigkeit gibt es nicht bzw. könnte man optional machen? Ich habe eine SPS im Haus verbaut, die die Ventile auch ansteuern könnte. Habe mich aber bisher zu wenig eingelesen, was die Hunter Steuerung alles machen kann.
Habe mal die Regner skizziert. Von einer Planung ist das noch weit entfernt. Ebenfalls ist mir noch nicht klar, wie man die Wassermenge beachten muss und welche Regner man in einem Strang packen kann. Links oben fehlen mir auch noch Ideen. Man möchte ja nicht, dass Wege immer komplett bewässert werden. Und wie weit die einzelnen Regner sich überlappen müssen und was mit den kleinen Freiflächen ist.
2 verschiedene Regner werden wohl nicht reichen speziell in den Ecken.

2 verschiedene Regner werden wohl nicht reichen speziell in den Ecken.
Das bekommen wir schon hin 😉
Erstmal die direkten Punkte :
Die Zisterne solltest du auch nachfüllen können. Durch das KG Rohr legst du halt noch ein PE-HD-Rohr. Diese schließt du an einer Wasserstelle im Garage an. Durch das KG-Rohr legst du auch noch die Steuerleitung für die Ventile. Benötigte Adern sind Anzahl Ventile + 1. Und noch Strom für die Pumpe.
Die Nachfüllung könntest du über ein weiteres Ventil steuern. Ist aber nicht notwendig.
Es gibt inzwischen einige Threads hier im Forum bezüglich Bewässerung.
Erstmal die direkten Punkte :
- Eine PE-HD-Wasserleitung zu der Verteilerbox? Und welche Leitungen gehen dann von der Verteilerbox zu den Regner? Also eine Leitung je Regner? Oder werden diese an einer Leitung jeweils abgezweigt -> Von der Pumpe läuft ein PE-HD-Rohr zur Verteilerbox. Die Verteilerbox enthält eine Wasserunterverteilung mit den Ventilen. Also pro Regnerkreis, Tröpfchenkreis... geht ein PE-HD-Rohr vom Ventil ab. Für jeden Kreis ist ein Ventil zuständig. In diesen Kreis werden dann alle Regner im Kreis angeschlossen. Die von mir genannten Regnergehäuse regulieren den Druck auf 2,8 bar. Somit egal wie du die Regner im Kreis anordnest. (Solange mehr als 2,8 bar zu Verfügung stehen). Ab der Pumpe machst du alles mit PE-HD Rohren (DN32)
- Würde dann alles über die Hydrawise-Steuer laufen oder nur die Regner? -> Alle Ventile werden über Hydrawise geschaltet. Egal ob in dem Kreis Regner oder Tröpfchenbewässerung hängt.
- Meinst du eine Verteilerdose mit inkludierten Ventilen? Oder welche Ventile sollten es sein? -> Ja, am einfachsten fertige Box mit zusätzlichem Anschluss für Druckluft. Somit im Herbst einfach ausblasen.
- Mit Bodendose meinst du eine Dose, wo man einen normalen Gartenschlauch anschließen kann? -> Ja, diese werden von der Leitung abgezweigt zwischen Pumpe und Ventilen. Somit sind diese nicht geschaltet aber du benötigst keine extra Ventile. Die Pumpe die ich genannt habe hat eine integrierte Steuerung mit Druckschalter. Musst nur den Stecker reinstecken. Ist der Druck aufgebaut schaltet sie ab. Gibt es eine Wasserentnahme (egal ob durch Ventile die öffnen oder Bodendosen) springt sie wieder an.
- Gibt es eine Software, wo man das alles planen kann? Jein. Wird nicht benötigt. geht in jedem einfachen Zeichenprogramm oder schnell mit Zirkel. Du setzt ein Regner in die Ecke. Der nächste dann am Ende der Wurfweite. usw.
- Plant man die Regner mit der maximalen Wurfweite ein oder gibt es einen anderen Richtwert? Auf der Hunter Website kannst du die Liste Runterladen wie weit welcher Regner bei wie viel Druck wirft. Dies ist noch 25% einstellbar. Du hast immer 2,8Bar Druck.
- Die Steuerung aktiviert die Bewässerung nach einer Zeiteinstellung? Eine Messung der Feuchtigkeit gibt es nicht bzw. könnte man optional machen? Ich habe eine SPS im Haus verbaut, die die Ventile auch ansteuern könnte. Habe mich aber bisher zu wenig eingelesen, was die Hunter Steuerung alles machen kann. -> in SPS wird es recht kompliziert. Hydrawise greift auf lokale Wetterstationen zu. Somit werden Temperatur, Wind, Niederschlag und Niederschlagswahrscheinlichkeit einbezogen. Funktioniert somit extrem gut ohne lokale Sensoren. Die Bewässerung kann man auch automatisch anpassen lassen (z.B. längere Bewässerung bei höheren Temperaturen, weniger bei Niedrigeren, ab einer min. Temperatur gar keine, bei starkem Wind nicht, ...) Die Kreise werden nacheinander angesteuert (ansonsten reicht der Wasserdruck und Durchfluß nicht). Man kann Gruppen bilden oder auch einzelne "Programme" erstellen. Dies geschieht über das Webportal oder die App.
Die Zisterne solltest du auch nachfüllen können. Durch das KG Rohr legst du halt noch ein PE-HD-Rohr. Diese schließt du an einer Wasserstelle im Garage an. Durch das KG-Rohr legst du auch noch die Steuerleitung für die Ventile. Benötigte Adern sind Anzahl Ventile + 1. Und noch Strom für die Pumpe.
Die Nachfüllung könntest du über ein weiteres Ventil steuern. Ist aber nicht notwendig.
Es gibt inzwischen einige Threads hier im Forum bezüglich Bewässerung.
Mal schnell der hintere Bereich. Unterschiedliche Farben nur wegen besserer Übersicht.
So sollte die Überdeckung aussehen.

Und genau so einfach sind auch die anderen Bereiche. Das schöne an den MP Rotatoren ist dass du die Regnerköpfe einfach kombinieren kannst. Das Gehäuse bleibt immer das gleiche. Lade dir von Hunter die Tabelle (Verlinkungen sind heir nicht erlaubt). Rechne mal mit max. 2.000 liter / Stunde / Kreis.
Die Regner die ich eingezeichnete habe brauchen nur 1,44m3/h. Dennoch ist es sinnvoll für den Eckbereich und den linken Bereich einen Extrakreis zu bilden. Auf Grund Sonnenexposition unterschiedlicher Wasserbedarf.
So sollte die Überdeckung aussehen.
Und genau so einfach sind auch die anderen Bereiche. Das schöne an den MP Rotatoren ist dass du die Regnerköpfe einfach kombinieren kannst. Das Gehäuse bleibt immer das gleiche. Lade dir von Hunter die Tabelle (Verlinkungen sind heir nicht erlaubt). Rechne mal mit max. 2.000 liter / Stunde / Kreis.
Die Regner die ich eingezeichnete habe brauchen nur 1,44m3/h. Dennoch ist es sinnvoll für den Eckbereich und den linken Bereich einen Extrakreis zu bilden. Auf Grund Sonnenexposition unterschiedlicher Wasserbedarf.
Ähnliche Themen