Hausbau - Ratgeber
Bauherrenhilfe
- Bauherrenhilfe vor Vertragsabschluss
-- Warum einen unabhängigen Baubetreuer?
-- Vertragsgrundlagen
-- Bausumme
-- Zahlungsplan zur Kostenkontrolle
-- Pflichten des Bauherren vor Vertragsabschluss
-- Unterlagen beim Hausbau vor Vertragsabschluss
- Bauherrenhilfe nach Vertragsabschluss
-- Bauantrag bei Behörden
-- Bau-Genehmigungsverfahren bei Baubehörden
-- Bauspezifische Versicherungen
-- Bauzeitenplan
-- Baubeginn - die Letzten Pflichten der Bauherrschaft
- Bauherrenhilfe während der Bauzeit
- Gewährleistungsansprüche
- Bauabnahme
Baufinanzierung
- Baufinanzierung - Allgemeine Fragen
- Kreditarten
- Kredit-Konditionen
- Bausparen
- Staatliche Förderungen
- Verkehrswert
- Haushaltsrechnung und Bonität
Hausbau Planung
- Haustypen
- Hausbau Vorbereitungsarbeiten
- Das Baugrundstück
- Baugrund beim Hausbau
- Baurecht
- Gebäudeschutz
- Erdarbeiten und Wasserhaltung
- Stützmauern
- Einfriedung
- Untergeschoss
- Kanalisation
- Tragende Elemente
- Nichttragende Innenwände
- Fundation / Fundament
- Deckenkonstruktionen
- Dächer
- Kaminanlagen
- Treppen Rampen Leitern
- Dachbeläge und Spengler
- Fenster
- Sonnen und Wetterschutz
- Aussenputze
- Einbauten, Küchen, Türen
- Bodenbeläge und Unterlagsböden
- Parkett
- Gips, Wand, Decke
Haustechnik und Energie
- Heiztechnik
- Lüftung und Klimatechnik
- Sanitärtechnik
- Elektrotechnik
- Erneuerbare Energie
Whirlpools / Jacuzzi
Hausbau Magazin
- Baufinanzierung trotz Krise?
- Das Blockhaus
- Moderne Dämmstoffe im Vergleich
- Erker Vor- und Nachteile
- Glasflächen beim Hausbau
- Günstig ein Haus Bauen
- Mediterraner Hausbaustil
- Mehrgenerationenhaus
- Moderne Architektur
- Gartengestaltung leicht gemacht
- Traditioneller Ziegelbau
- Villa als höchster Traum
- Im Eigenheim Ruhestand geniessen
- Altbau sanieren
- Kauf einer Holzgarage
- Immobilienmakler
- Arbeitshandschuhe für den Winter
- Zuhause verschönern
- Outdoor-Plissees
- Schlafzimmer planen
- Terrassenüberdachung
- Wohngebäudeversicherung
- Zaunarten und Eigenschaften
- Hauseingang gestalten
- Der perfekte Grundriss
- Sparsamer heizen im Altbau
- Einfamilienhaus smart finanzieren
- Planung einer PV-Anlage
- Neues Haus
- Immobilienfinanzierung
- Installation einer Photovoltaikanlage
- Asbest erkennen und entfernen
- Gartenpflege im Frühling – worauf achten
- Sauna im Fokus - Wellness zuhause
- Erfolgreich vermieten
- Die perfekte Winterbekleidung
- Das Niedrigenergiehaus
- Der April und seine Stürme
- Architektonische Vielfalt
- Ökologisch und nachhaltig bauen
- Das perfekte Schlafzimmer
- Nachhaltige Energieversorgung
- Zukunftsorientiert bauen
- Nachhaltigkeit beim Hausbau
- Tiny Houses
- Wärmepumpen als nachhaltige Heizvariante
- Maßgeschneiderten Kleiderschrank
- Der richtige Baukredit
- Ratgeber für erfolgreichen Hausbau
- Haus als Altersvorsorge
Do-it-yourself Anleitungen
- Verlegeanleitung für Bodenbeläge und Parkett
- Bodenbeläge und Parkett reinigen und pflegen
- Malerarbeiten am Haus
- Garten Tipps
- Umzug und Reinigung

ᐅ Wand versetzen (möglich?) / Kosten für Statik

Erstellt am: 14.04.16 15:25
W
webjumper
W
webjumper
14.04.16 15:25
Hallo,
wir wollen eine Wand versetzen und brauchen dazu einen Statiker. Was darf ein Statiker kosten? Es geht hier um die Berechnung, ob oder wie man das machen kann, nicht um die dann fällige Arbeit.

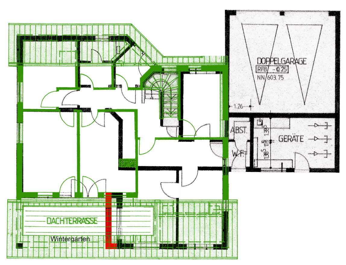
Im Bild soll die vorhandene Wand im EG um knapp 1 Meter nach links versetzt werden (rot = neuer Standpunkt). Darüber befindet sich eine Dachterrasse. Wenn irgendwie möglich ohne Stahlträger - wir brauchen Platz für einen Esstisch - da kann ich keine Stütze mitten im Raum und auch keine Stahlträger an der Wand vor dem Fenster gebrauchen.

Danke für Meinungen und Gruß.

Grundriss eines Hauses mit Dachterrasse, Wintergarten, mehreren Zimmern und Garage.

Anzeige
Hallo webjumper,

schau mal hier: Wand versetzen (möglich?) / Kosten für Statik. Da wird jeder fündig!
P
Payday
01.05.16 17:56
wenn ich das richtig sehe ist unten eine überdachte Terrasse, welche oben mit der Dachterrasse über einen träger nach unten links geht (das eckige schwarze teil auf der Zeichnung). dieser träger kann euch schon mal keine Probleme machen, da er im Grunde verkürzt wird. wenn die eg Decke quasi aus 1 Stück ist (also die decke nicht gerade auf eurer zu verschiebenden Mauer befindet sondern die Dachterrasse durchgeht), dürfte es statisch auch keine Veränderungen geben. sollte die geschossdecke genau auf eurer mauer dort geteilt sein muss auf jeden fall nen anständiger träger rein.

die kosten für die Berechnung sind davon abhängig, welche unterlagen ihr habt. beim Neubau sollte das ohne neuer Statik machbar sein, beim bestandshaus mit der ausgehändigten Statik (Doku zum Haus) sollte ein Statiker das in wenigen stunden (sagen wir mal ~500€) hinbekommen, wenn man ohne vor Ort Termin, großen gesabbel und am ohne Gewährleistung auf alles auskommt. mit rechtssicherheit (wobei diese meistens mit klauseln auch wieder wirkungslos ist) wird das sicher fix teuer. wenn ihr jemand mit Erfahrungen in mechanik habt und die Statik besitzt, kann er sich das anschauen und vielleicht auch kostenneutral eine aussage treffen.

Probleme können eher bei der Ausführung auftreten, da ihr eine Außenwand verschieben wollt.
statikerdachterrassestahlträgermauer