ᐅ Wärmepumpenleistung und Pufferspeichergröße(n) für Neubau Einfamilienhaus
Erstellt am: 25.09.23 20:45
D
Dachshund90D
Dachshund9025.09.23 20:45Hallo zusammen,
wir möchten gerne zeitnah unsere Komponenten für die Heizung bestellen.
Folgende Daten liegen zu Grunde:
- Neubau Einfamilienhaus nach gesetzlichen Standards
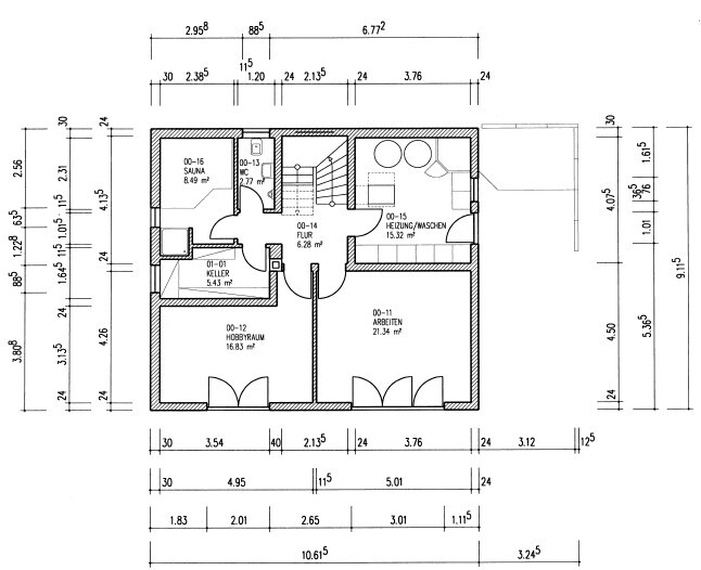
- beheizte Wohnfläche: 193m² (Grundrisse anbei)
- vorgesehene Wärmepumpe: Erdwärmepumpe Bosch CS 7800iLW 8 F 8kW
- vorgesehener Pufferspeicher: Stora WH 370 LP1B
- Bohrungstiefe wird noch festgelegt gem. der Anlage
- ausgelegt für einen 4 Personen-Haushalt
Fragen: haltet ihr die 8kW Erdwärmepumpe für ausreichend? Haltet ihr den Pufferspeicher mit 350L Inhalt für ausreichend? Benötigt man keinen zweiten Puffer für das Heizungswasser?
vielen Dank und viele Grüße



wir möchten gerne zeitnah unsere Komponenten für die Heizung bestellen.
Folgende Daten liegen zu Grunde:
- Neubau Einfamilienhaus nach gesetzlichen Standards
- beheizte Wohnfläche: 193m² (Grundrisse anbei)
- vorgesehene Wärmepumpe: Erdwärmepumpe Bosch CS 7800iLW 8 F 8kW
- vorgesehener Pufferspeicher: Stora WH 370 LP1B
- Bohrungstiefe wird noch festgelegt gem. der Anlage
- ausgelegt für einen 4 Personen-Haushalt
Fragen: haltet ihr die 8kW Erdwärmepumpe für ausreichend? Haltet ihr den Pufferspeicher mit 350L Inhalt für ausreichend? Benötigt man keinen zweiten Puffer für das Heizungswasser?
vielen Dank und viele Grüße
Puffer raus, falls einer geplant ist. was du meinst ist der Warmwasserspeicher.
Raumweise Heizlastberechnung machen lassen, auf maximal 32 Grad Vorlauf auslegen lassen. Dann Leistung der Wärmepumpe auf die Heizlast anpassen mit Tendenz die kleinere Wärmepumpe zu wählen. Danach die benötigten Bohrmeter ermitteln lassen, verbessertes Verpressmaterial nutzen. Bestenfalls nur eine Bohrung und nicht mehrere - das geht auch tiefer als 100m.
Einzelraumregelung weg lassen / befreien / ungehorsam sein / abklemmen.
Glückwunsch zur kosteneffizienten Wärmepumpenanlage.
Raumweise Heizlastberechnung machen lassen, auf maximal 32 Grad Vorlauf auslegen lassen. Dann Leistung der Wärmepumpe auf die Heizlast anpassen mit Tendenz die kleinere Wärmepumpe zu wählen. Danach die benötigten Bohrmeter ermitteln lassen, verbessertes Verpressmaterial nutzen. Bestenfalls nur eine Bohrung und nicht mehrere - das geht auch tiefer als 100m.
Einzelraumregelung weg lassen / befreien / ungehorsam sein / abklemmen.
Glückwunsch zur kosteneffizienten Wärmepumpenanlage.
W
WilderSueden25.09.23 22:19Dachshund90 schrieb:
Benötigt man keinen zweiten Puffer für das Heizungswasser?Hat man früher gemacht, als der Öl-/Gasbrenner eine Weile Vollgas lief und dann wieder ausgeschaltet wurde. Der Thermostat am Heizkörper hat dann geregelt, wie viel von dem Wasser durch die Heizung geht.Heute wird die Vorlauftemperatur per Außentemperatursensor gesteuert, die Wärmepumpe moduliert entsprechend. Kleinere Unterbrechungen puffert der Estrich ab. Die Thermostate an den Wänden reagieren viel zu spät, um wirklich von Nutzen zu sein. Ich habe entsprechend die meisten Heizkreise auf manuell offen. Ist ohnehin besser, da es in diesem Haushalt Leute gibt, die daran rumdrehen und nach 10 Minuten nochmal...
Der kritische Punkt wurde schon erwähnt, lass dir die Heizung nicht in der Billigvariante auf 35 Grad auslegen.
D
Dachshund9026.09.23 10:40Hallo zusammen,
danke für eure Antworten, das heißt doch, dass wir auf einem guten Weg sind.
Und wie stellt ihr für die Räume verschiedene Temperaturen ein, wenn ihr kein Thermostat habt? Manuell auf/zu?
Viel Glück
danke für eure Antworten, das heißt doch, dass wir auf einem guten Weg sind.
Und wie stellt ihr für die Räume verschiedene Temperaturen ein, wenn ihr kein Thermostat habt? Manuell auf/zu?
Viel Glück
R
RotorMotor26.09.23 11:00Dachshund90 schrieb:
Hallo zusammen,
danke für eure Antworten, das heißt doch, dass wir auf einem guten Weg sind.
Und wie stellt ihr für die Räume verschiedene Temperaturen ein, wenn ihr kein Thermostat habt? Manuell auf/zu?
Viel GlückWie sieht der Weg denn aus?Ich sehe statt Raumweisenheizlastberechnungen nur Grundrisse. ;-)
Ähnliche Themen