Hi,
nach dem ich hier nun schon einige Zeit mitlese, möchte ich gerne unseren Entwurf zu Diskussion stellen.
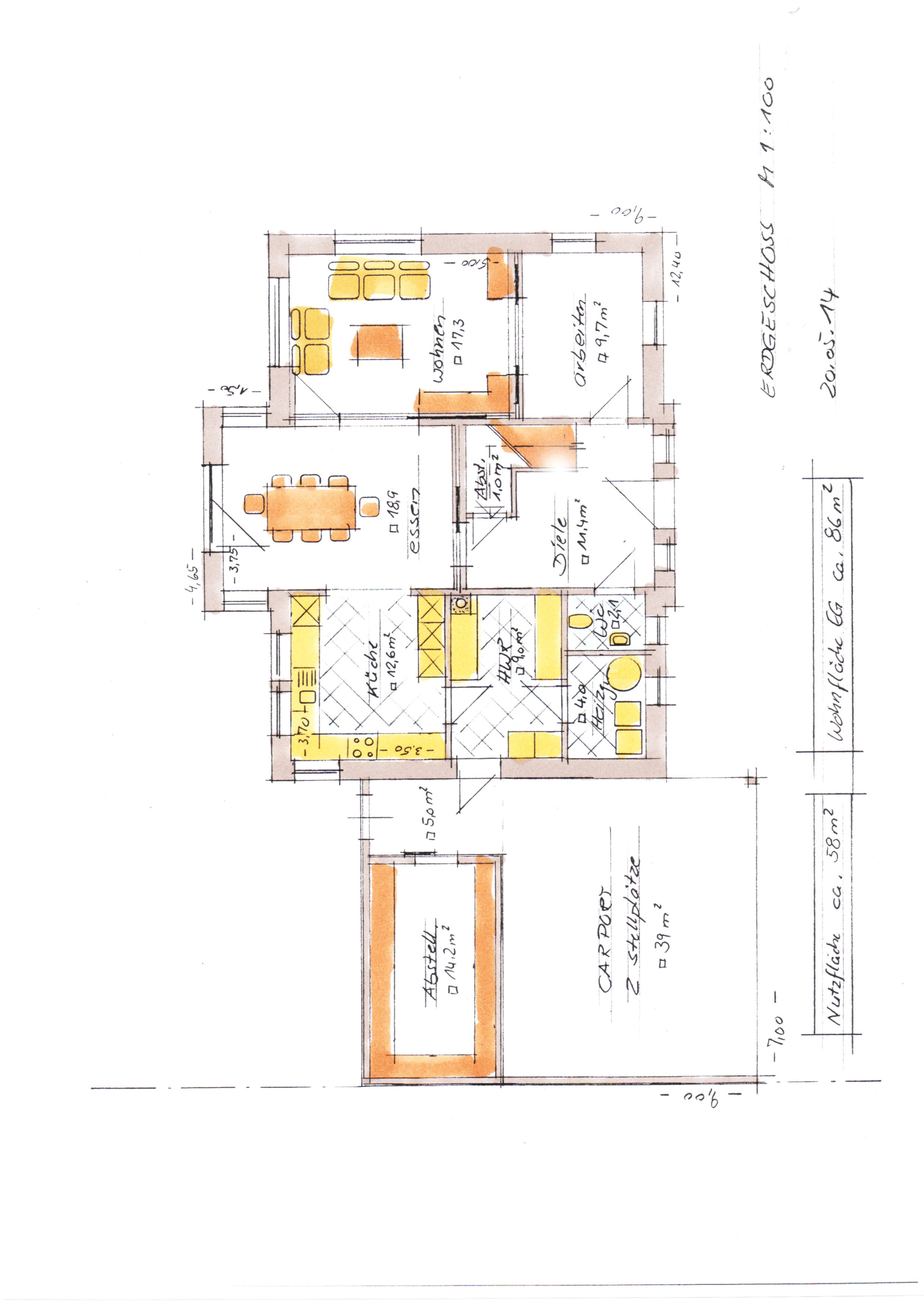
Grundstück:
ca. 23 x 39 m ( ca. 900 qm)
Zufahrt von Norden an der Ostecke
Zur Orientierung: Haustür im Norden, EZ im Süden/ WZ im Südwesten
Das Carport planen wir auf die Grundstücksgrenze im Osten zu bauen (einige Meter nach Süden gerückt).
Gem. Bebauungsplan: 1 geschossig, keine Stadtvilla
Anmerkungen zu den Entwurfszeichnungen:
Das Gelände ist nicht abschüssig.
ca. 170 qm Wohnfläche, kein Keller
Gäste-WC: soll noch etwas größer damit Platz für eine Dusche ist.
Ein Kamin soll ins Esszimmer rechts unten, dafür muss das GZ/Hobby im OG zumindest teilweise etwas eingerückt werden, sonst ist kein Platz für die Tür ins KZ.
Vom Flur in EZ eine ins EZ öffnende Tür statt Schiebetür, keine Tür/Schiebetür zwischen EZ und WZ, dafür eine Schiebetür zwischen Küche und EZ
Küche ist noch nicht geplant, alle Möbel sind Platzhalter, sowie das meiste andere Mobiliar. Das sofa habe ich behelfsmäßig verschoben.
Wäscheabwurf vom Bad in den Hauswirtschaftsraum ist auch noch nicht eingezeichnet.
Über Anregungen und Kritik würde ich mich freuen.
Grüße


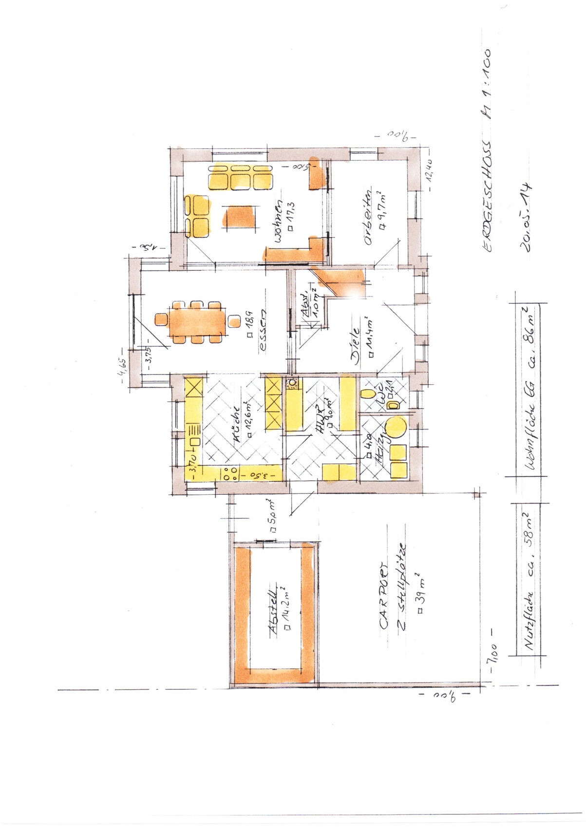
nach dem ich hier nun schon einige Zeit mitlese, möchte ich gerne unseren Entwurf zu Diskussion stellen.
Grundstück:
ca. 23 x 39 m ( ca. 900 qm)
Zufahrt von Norden an der Ostecke
Zur Orientierung: Haustür im Norden, EZ im Süden/ WZ im Südwesten
Das Carport planen wir auf die Grundstücksgrenze im Osten zu bauen (einige Meter nach Süden gerückt).
Gem. Bebauungsplan: 1 geschossig, keine Stadtvilla
Anmerkungen zu den Entwurfszeichnungen:
Das Gelände ist nicht abschüssig.
ca. 170 qm Wohnfläche, kein Keller
Gäste-WC: soll noch etwas größer damit Platz für eine Dusche ist.
Ein Kamin soll ins Esszimmer rechts unten, dafür muss das GZ/Hobby im OG zumindest teilweise etwas eingerückt werden, sonst ist kein Platz für die Tür ins KZ.
Vom Flur in EZ eine ins EZ öffnende Tür statt Schiebetür, keine Tür/Schiebetür zwischen EZ und WZ, dafür eine Schiebetür zwischen Küche und EZ
Küche ist noch nicht geplant, alle Möbel sind Platzhalter, sowie das meiste andere Mobiliar. Das sofa habe ich behelfsmäßig verschoben.
Wäscheabwurf vom Bad in den Hauswirtschaftsraum ist auch noch nicht eingezeichnet.
Über Anregungen und Kritik würde ich mich freuen.
Grüße
Der Ankleideraum ist im Prinzip ja nur Gang. Ihr habt dort 2 Türen + ein zwei bodentiefe Fenster (laut Ansicht). Ist hinter der Tür zum Gang genügend Platz für einen schrank mit 60cm Tiefe? Ich hab gerade keine bessere Idee, aber ich denke als „Ankleidezimmer“ wird das nichts werden.
Ja, die Ankleide bereitet noch Kopfschmerzen.
Es kommen auf jeden Fall keine bodentiefen Fenster rein, nur normale. Die Tür soll evtl. etwas in die Mitte Rücken damit auf der linken Seite mehr Platz für einen Schrank ist, außerdem die Badezimmertür weiter nach oben damit die Wand noch einige cm nach oben Rücken kann, dann kommt da auf ca. 205 cm Raumbreite und bekommt einen 2 Meter breiten Schrank mit entsprechender Tiefe da hin.
Es kommen auf jeden Fall keine bodentiefen Fenster rein, nur normale. Die Tür soll evtl. etwas in die Mitte Rücken damit auf der linken Seite mehr Platz für einen Schrank ist, außerdem die Badezimmertür weiter nach oben damit die Wand noch einige cm nach oben Rücken kann, dann kommt da auf ca. 205 cm Raumbreite und bekommt einen 2 Meter breiten Schrank mit entsprechender Tiefe da hin.
W
Wanderdüne27.05.14 09:30Zum EG:
Treppe liegt ungünstig, wer ins OG möchte läuft durch den Schmutzbereich, wenn die Garderobe an die Wand zum Hauswirtschaftsraum kommt. Hauswirtschaftsraum als gefangener Raum hinter Esszimmer und Küche ist unpraktisch. Wohnzimmer introvertiert und als Durchgangszimmer, ungemütlich. Fernsehen geht wie? Wozu braucht man bodentiefe Fenster, wenn man Sitzmöbel davor stellt? Sichtachsen im Wohnzimmer? Küche besser rechtzeitig planen und einbeziehen, mit oder ohne Kochinsel, Speise,...
Zum OG:
Ankleide ist angesprochen, besser so planen, daß das Schlafzimmer dann nicht auch noch Kleidung aufnehmen muß (aber darf, wenn gewollt). Zugang zum Schlafzimmer wäre besser weiter planlinks, da ruhiger. Zugang zum Bad in Ecke zusammen mit Ankleide überdenken.
=> Nix zum Jubeln
WD
Treppe liegt ungünstig, wer ins OG möchte läuft durch den Schmutzbereich, wenn die Garderobe an die Wand zum Hauswirtschaftsraum kommt. Hauswirtschaftsraum als gefangener Raum hinter Esszimmer und Küche ist unpraktisch. Wohnzimmer introvertiert und als Durchgangszimmer, ungemütlich. Fernsehen geht wie? Wozu braucht man bodentiefe Fenster, wenn man Sitzmöbel davor stellt? Sichtachsen im Wohnzimmer? Küche besser rechtzeitig planen und einbeziehen, mit oder ohne Kochinsel, Speise,...
Zum OG:
Ankleide ist angesprochen, besser so planen, daß das Schlafzimmer dann nicht auch noch Kleidung aufnehmen muß (aber darf, wenn gewollt). Zugang zum Schlafzimmer wäre besser weiter planlinks, da ruhiger. Zugang zum Bad in Ecke zusammen mit Ankleide überdenken.
=> Nix zum Jubeln
WD
Ähnliche Themen