ᐅ Standard-Elektroinstallation oder mit KNX-Lösung
Erstellt am: 22.06.2021 09:31
JürgenJosef 22.06.2021 09:31
Hallo zusammen,
zur Zeit wird eine 100 qm Wohnung in einem 6-Familienhaus für mich und meine Frau erstellt. Mit dem Rohbau wurde jetzt begonnen.
Als Standard ist eine konventionelle Elektroinstallation vorgesehen.
Allerdings haben sich meine Anforderungen in der Zwischenzeit geändert. Nun soll folgendes vorgesehen werden:
1. Rollläden Steuerung (evtl. mit Wetterstation)
2. Dachfenster von Lamilux über Wetterstation und Windsensor (Gäste-WC und Flur)
3. Licht per Taster + Dimmen, eventuell Szenen
4. Zentrale Funktionen (mit einem Knopf alle Lichter aus etc.)
5. Tiefgaragenplatz: Video
6. Sprechanlage mit Video (bereits in der Grundausstattung von Busch-Jäger mit Kamera am Eingang und Sichtpult in der Wohnung)
7. Abstellraum im Keller: Überwachung Gefrierschrank
8. Steuerung später einmal Klimaanlage (Vorbereitung für Installation 2 Klimainnengeräte Schlafzimmer und Wohnbereich)
9. Steuerung 2 Lüfter Lunos e2 60, einer im Schlafzimmer und einer im Wohnbereich
10. Eventuell später Steuerung Markise auf Balkon oder Sonnensegel.
Würdet ihr empfehlen, alles über KNX zu steuern oder konventionell über einzelne Modulbausteine. Ich selber habe sehr wenig Ahnung von der Materie und wäre für Ratschläge dankbar.
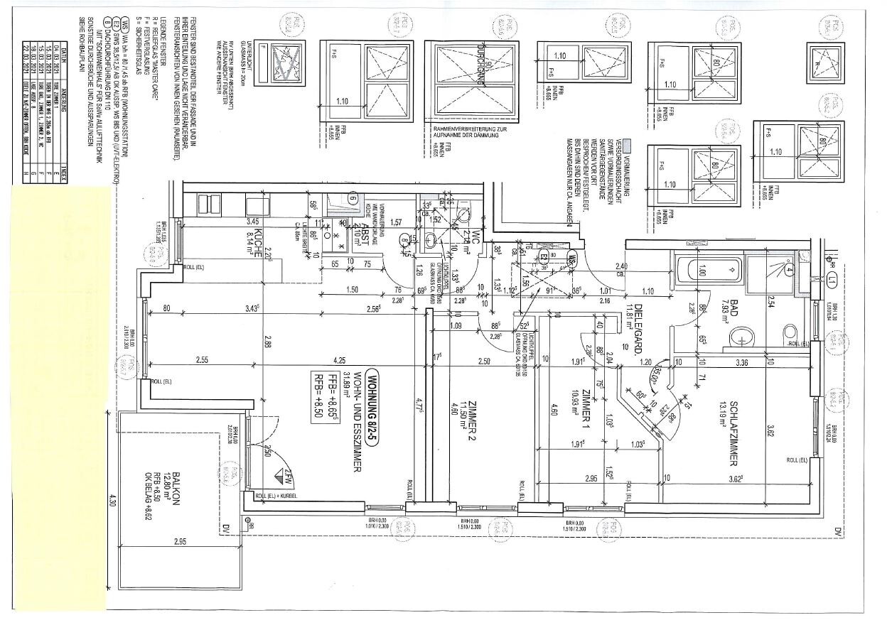
Im Anhang ist der Bauplan. Was Programmierung anbelangt, wäre ich nicht zu faul, mich in die Materie einzuarbeiten, um eventuell vieles bedienungsfreundlicher zu machen und zu visualisieren. Dann könnte man doch auf einige Aktoren eventuell verzichten.
Herzliche Grüße
Jürgen

zur Zeit wird eine 100 qm Wohnung in einem 6-Familienhaus für mich und meine Frau erstellt. Mit dem Rohbau wurde jetzt begonnen.
Als Standard ist eine konventionelle Elektroinstallation vorgesehen.
Allerdings haben sich meine Anforderungen in der Zwischenzeit geändert. Nun soll folgendes vorgesehen werden:
1. Rollläden Steuerung (evtl. mit Wetterstation)
2. Dachfenster von Lamilux über Wetterstation und Windsensor (Gäste-WC und Flur)
3. Licht per Taster + Dimmen, eventuell Szenen
4. Zentrale Funktionen (mit einem Knopf alle Lichter aus etc.)
5. Tiefgaragenplatz: Video
6. Sprechanlage mit Video (bereits in der Grundausstattung von Busch-Jäger mit Kamera am Eingang und Sichtpult in der Wohnung)
7. Abstellraum im Keller: Überwachung Gefrierschrank
8. Steuerung später einmal Klimaanlage (Vorbereitung für Installation 2 Klimainnengeräte Schlafzimmer und Wohnbereich)
9. Steuerung 2 Lüfter Lunos e2 60, einer im Schlafzimmer und einer im Wohnbereich
10. Eventuell später Steuerung Markise auf Balkon oder Sonnensegel.
Würdet ihr empfehlen, alles über KNX zu steuern oder konventionell über einzelne Modulbausteine. Ich selber habe sehr wenig Ahnung von der Materie und wäre für Ratschläge dankbar.
Im Anhang ist der Bauplan. Was Programmierung anbelangt, wäre ich nicht zu faul, mich in die Materie einzuarbeiten, um eventuell vieles bedienungsfreundlicher zu machen und zu visualisieren. Dann könnte man doch auf einige Aktoren eventuell verzichten.
Herzliche Grüße
Jürgen
nordanney 22.06.2021 09:55
JürgenJosef schrieb:
Würdet ihr empfehlen, alles über KNX zu steuern oder konventionell über einzelne Modulbausteine.Natürlich geht beides. KNX ist aber viel mehr, als die paar Goodies, die Du nennst. Dafür kostet es aber auch mehr. Im Hinblick darauf, dass Du allerdings "nur" eine Wohnung (vom Bauträger?) baust, könnte es zu massiven Problemen mit dem Upgrade auf KNX kommen. Zuständigkeiten, Vergabe, Preise, Qualifikation. Es hilft Dir nämlich nicht, wenn Du KNX haben möchtest, aber der vom Bauunternehmen beauftragte Handwerker keine Ahnung davon hat. Oder wenn Du Elektro komplett raus nimmst, und selbst vergibst ==> kleine Gutschrift gegen hohe neue Kosten.Schnittstellenkoordination im Hinblick auf "Wer plant die Leitungen aus Keller/TG in Deine Wohnung?".
Ich persönlich würde es bei der "normalen" Elektrik belassen.
Mycraft 22.06.2021 10:00
KNX ist die Eierlegende Wollmilchsau kostet allerdings dementsprechend und auch der EInstieg in die Materie für den Laien ist relativ hoch auch wenn es dann später alles (zu mindest was die Parametrierung der Grundfunktionen angeht) als Kinderkram erscheint(weil es eben recht einfach ist).
Aber du benötigst das Buskabel an allen Ecken und Enden sprich höchstwahrscheinlich auch im Keller bei deiner Gefriertruhe und auch im Dachgeschoss. Falls du dort auch sensoren planst oder etwas von dort auch bedienen möchtest und eine Kommunikation mit dem rest der Anlage wünschst.
Fragt sich dann auch wie bei dir die Konstellation ist und was der Elektriker überhaupt anbietet und womit er sich auskennt. B-J lässt z.B. vermuten, dass da vllt. free@home nicht weit ist und das ist quasi KNX-Light(leider zu ähnlichen Preisen ohne die Vorteile). Aber vielleicht reicht das für deine Zwecke auch aus.
Aber du benötigst das Buskabel an allen Ecken und Enden sprich höchstwahrscheinlich auch im Keller bei deiner Gefriertruhe und auch im Dachgeschoss. Falls du dort auch sensoren planst oder etwas von dort auch bedienen möchtest und eine Kommunikation mit dem rest der Anlage wünschst.
Fragt sich dann auch wie bei dir die Konstellation ist und was der Elektriker überhaupt anbietet und womit er sich auskennt. B-J lässt z.B. vermuten, dass da vllt. free@home nicht weit ist und das ist quasi KNX-Light(leider zu ähnlichen Preisen ohne die Vorteile). Aber vielleicht reicht das für deine Zwecke auch aus.
Myrna_Loy 22.06.2021 10:06
Videoüberwachung des TG Stellplatzes dürfte rechtlich knifflig sein.
Mycraft 22.06.2021 10:11
Solange ausßließlich das eigene Auto auf diesem einen Platz zu sehen ist und eine sichtbare Kennzeichnung am Platz und den Eingängen vorhanden. Sehe ich da jetzt nicht wirklich Probleme.
Allerdings kommt es natürlich immer anders als man denkt. Videoüberwachung ist immer heikel.
Allerdings kommt es natürlich immer anders als man denkt. Videoüberwachung ist immer heikel.
Myrna_Loy 22.06.2021 10:23
Mycraft schrieb:
Solange ausßließlich das eigene Auto auf diesem einen Platz zu sehen ist und eine sichtbare Kennzeichnung am Platz und den Eingängen vorhanden. Sehe ich da jetzt nicht wirklich Probleme.
Allerdings kommt es natürlich immer anders als man denkt. Videoüberwachung ist immer heikel.Genau das meinte ich mit knifflig. 🙂 Bei einer Eigentümergemeinschaft ist die Installation eventuell auch zustimmungspflichtig. War zumindest bei uns so (und wurde mangels Zustimmung auch abgelehnt).Ähnliche Themen