Hausbau - Ratgeber
Bauherrenhilfe
- Bauherrenhilfe vor Vertragsabschluss
-- Warum einen unabhängigen Baubetreuer?
-- Vertragsgrundlagen
-- Bausumme
-- Zahlungsplan zur Kostenkontrolle
-- Pflichten des Bauherren vor Vertragsabschluss
-- Unterlagen beim Hausbau vor Vertragsabschluss
- Bauherrenhilfe nach Vertragsabschluss
-- Bauantrag bei Behörden
-- Bau-Genehmigungsverfahren bei Baubehörden
-- Bauspezifische Versicherungen
-- Bauzeitenplan
-- Baubeginn - die Letzten Pflichten der Bauherrschaft
- Bauherrenhilfe während der Bauzeit
- Gewährleistungsansprüche
- Bauabnahme
Baufinanzierung
- Baufinanzierung - Allgemeine Fragen
- Kreditarten
- Kredit-Konditionen
- Bausparen
- Staatliche Förderungen
- Verkehrswert
- Haushaltsrechnung und Bonität
Hausbau Planung
- Haustypen
- Hausbau Vorbereitungsarbeiten
- Das Baugrundstück
- Baugrund beim Hausbau
- Baurecht
- Gebäudeschutz
- Erdarbeiten und Wasserhaltung
- Stützmauern
- Einfriedung
- Untergeschoss
- Kanalisation
- Tragende Elemente
- Nichttragende Innenwände
- Fundation / Fundament
- Deckenkonstruktionen
- Dächer
- Kaminanlagen
- Treppen Rampen Leitern
- Dachbeläge und Spengler
- Fenster
- Sonnen und Wetterschutz
- Aussenputze
- Einbauten, Küchen, Türen
- Bodenbeläge und Unterlagsböden
- Parkett
- Gips, Wand, Decke
Haustechnik und Energie
- Heiztechnik
- Lüftung und Klimatechnik
- Sanitärtechnik
- Elektrotechnik
- Erneuerbare Energie
Whirlpools / Jacuzzi
Hausbau Magazin
- Baufinanzierung trotz Krise?
- Das Blockhaus
- Moderne Dämmstoffe im Vergleich
- Erker Vor- und Nachteile
- Glasflächen beim Hausbau
- Günstig ein Haus Bauen
- Mediterraner Hausbaustil
- Mehrgenerationenhaus
- Moderne Architektur
- Gartengestaltung leicht gemacht
- Traditioneller Ziegelbau
- Villa als höchster Traum
- Im Eigenheim Ruhestand geniessen
- Altbau sanieren
- Kauf einer Holzgarage
- Immobilienmakler
- Arbeitshandschuhe für den Winter
- Zuhause verschönern
- Outdoor-Plissees
- Schlafzimmer planen
- Terrassenüberdachung
- Wohngebäudeversicherung
- Zaunarten und Eigenschaften
- Hauseingang gestalten
- Der perfekte Grundriss
- Sparsamer heizen im Altbau
- Einfamilienhaus smart finanzieren
- Planung einer PV-Anlage
- Neues Haus
- Immobilienfinanzierung
- Installation einer Photovoltaikanlage
- Asbest erkennen und entfernen
- Gartenpflege im Frühling – worauf achten
- Sauna im Fokus - Wellness zuhause
- Erfolgreich vermieten
- Die perfekte Winterbekleidung
- Das Niedrigenergiehaus
- Der April und seine Stürme
- Architektonische Vielfalt
- Ökologisch und nachhaltig bauen
- Das perfekte Schlafzimmer
- Nachhaltige Energieversorgung
- Zukunftsorientiert bauen
- Nachhaltigkeit beim Hausbau
- Tiny Houses
- Wärmepumpen als nachhaltige Heizvariante
- Maßgeschneiderten Kleiderschrank
- Der richtige Baukredit
- Ratgeber für erfolgreichen Hausbau
- Haus als Altersvorsorge
Do-it-yourself Anleitungen
- Verlegeanleitung für Bodenbeläge und Parkett
- Bodenbeläge und Parkett reinigen und pflegen
- Malerarbeiten am Haus
- Garten Tipps
- Umzug und Reinigung

ᐅ Spots in Filigrandecke planen

Erstellt am: 22.05.13 22:29
L
lisawe
L
lisawe
22.05.13 22:29
Hallo,

wir sind zurzeit am bauen und würden gerne jetzt die Filigran-Decken bestellen.
Als Beleuchtung hätten wir gerne im kompletten EG LED-Spots. Erst hatten wir vor, die Decke abzuhängen. Allerdings kann man die Filigran-Decken ja auch direkt mit Aussparungen für die Spots bestellen. Der Vorteil ist, dass es einfacher ist und dass keine Raumhöhe verloren geht.
Leider haben wir aber keine Ahnung, wie wir die Spots sinnvoll anordnen sollen, damit es gut aussieht und damit es hell genug bzw. nicht zu hell ist.
Kann jemand helfen?

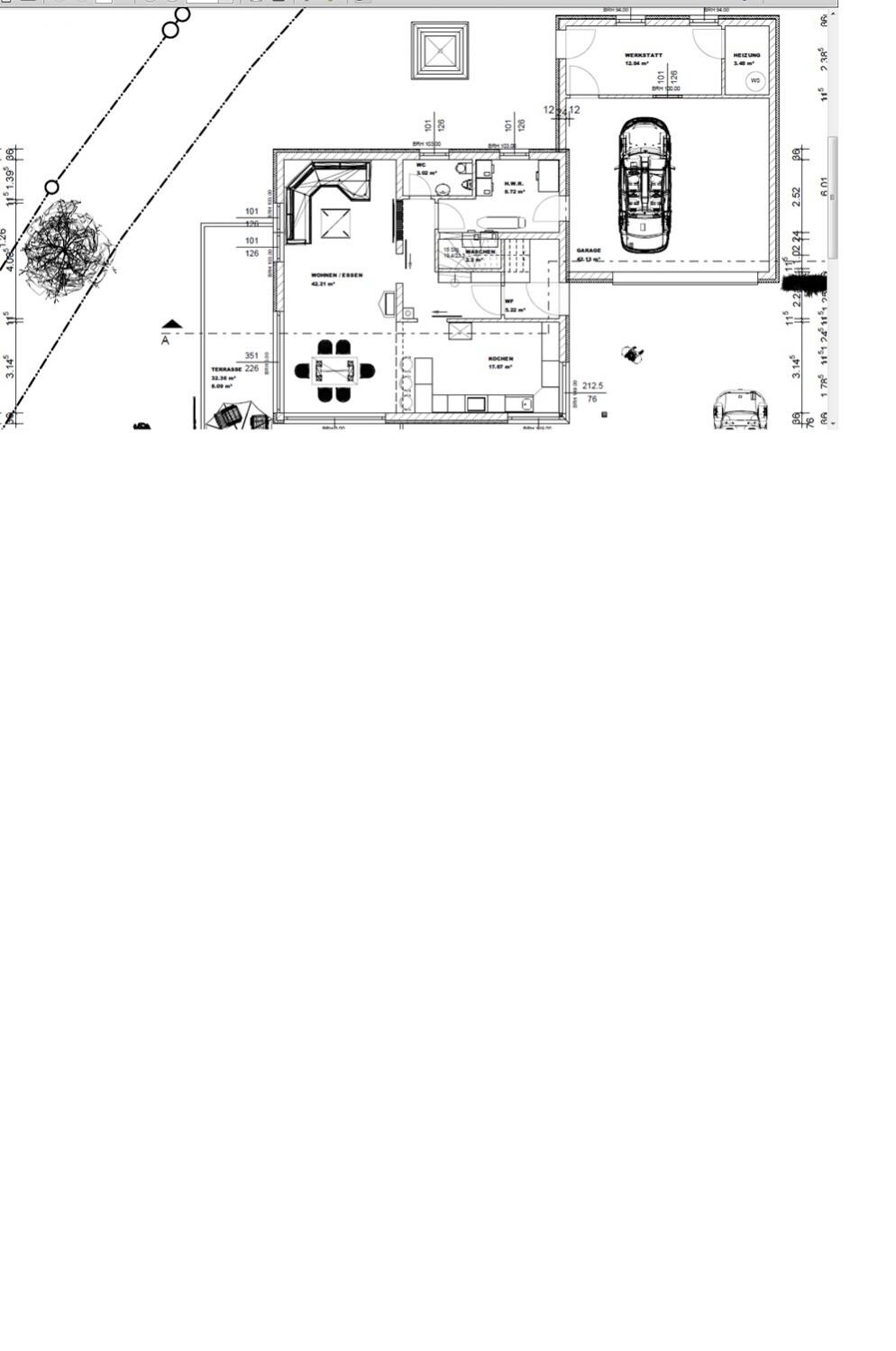
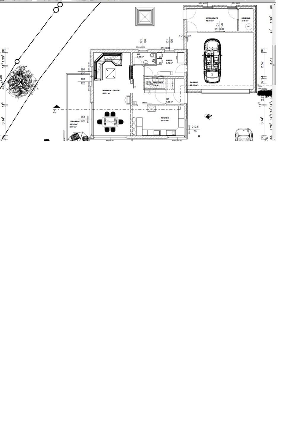
PS: Ich würde gerne unseren EG-Plan anhängen, aber die PDF-Datei ist zu groß... Bekomme ich die irgendwie kleiner?

Liebe Grüße
B
backbone23
22.05.13 23:17
Mach ein Screenshot und schneide den Rest weg oder benutze das Snipping Tool falls du Windows 7 hast.
L
lisawe
22.05.13 23:41
Danke


Grundriss eines Hauses: offener Wohn-Ess-Küche, Terrasse und Garage mit Auto.
M
mybaublog
23.05.13 00:53
Hallo,

wir haben die Spots im Abstand von etwa 1m positioniert.

Die Aussparungen sind Kayserdosen (Halox Dosen). Jede 3. ist mit Tunnel für den Trafo gesetzt worden. (Für die Lautsprecher in den Decken haben Kompax 3 Dosen genommen)

Zu viele Dosen kann man kaum nehmen, denn Du kannst ja welche für den späteren Gebrauch zu spachteln. Wenn es Dir zu hell sein sollte, kannst Du das Licht ja dimmen.

Es ist auch etwas eine Preisfrage, denn pro Spot (Kayserdose werden etwa 50 - 60 Euro fällig für die Lautsprecherdosen etwa 120 Euro/Stück inkl. Einbau beim Deckenhersteller.

Bei diesen Preisen läuft man Gefahr zu wenige zu nehmen und am falschen Ende zu sparen
M
mybaublog
23.05.13 01:06
Hallo noch mal.

Die grünen Dosen sind für die Spots und die Präsenzmelder/Rauchmelder (die Anhängsel an einigen Dosen ist der Schacht/Tunnel für den Trafo).

Die runden Dosen sind für die Lautsprecher

Grüße
A
angoletti1
23.05.13 03:59
Oh Vorsicht, deine Decken sind auch viel dicker geplant, da alle Rohre im Beton verlaufen. Das ist mit hoher Wahrscheinlichkeit beim lisawe nicht der Fall, heißt da werden die Kompax schon mal nicht rein passen. Bevor man so fette Dosen im Einfamilienhaus-Bereich großzügig verteilt, sollte man vielleicht auch noch mal mit dem Statiker sprechen...
Ich hab die Decken ganz normal kommen lassen und dann als sie verlegt waren, entschieden wo Lampen hin sollen. 80er Loch von unten, Kabel rein, fertig.
kompaxdosenfiligranlautsprecher