Ich brauch eure Hilfe...
Ich weiß nicht wie ich Spots anordnen soll. Erstens möchte ich im Dachkasten Spots, super schick. Leider kann ich mich auf keine Anordnung einigen.. :/
Dann möchte ich im Haus auch welche...Flur, Bad usw. was sagt ihr?
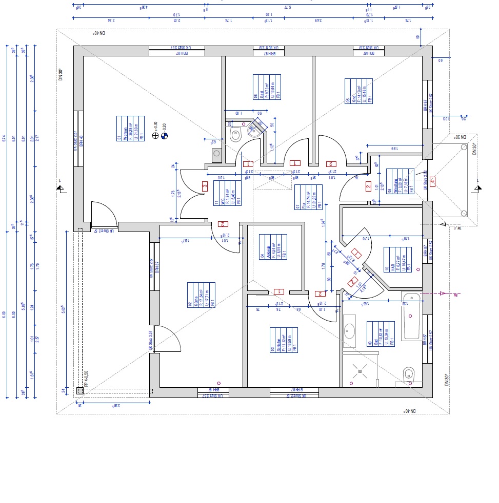
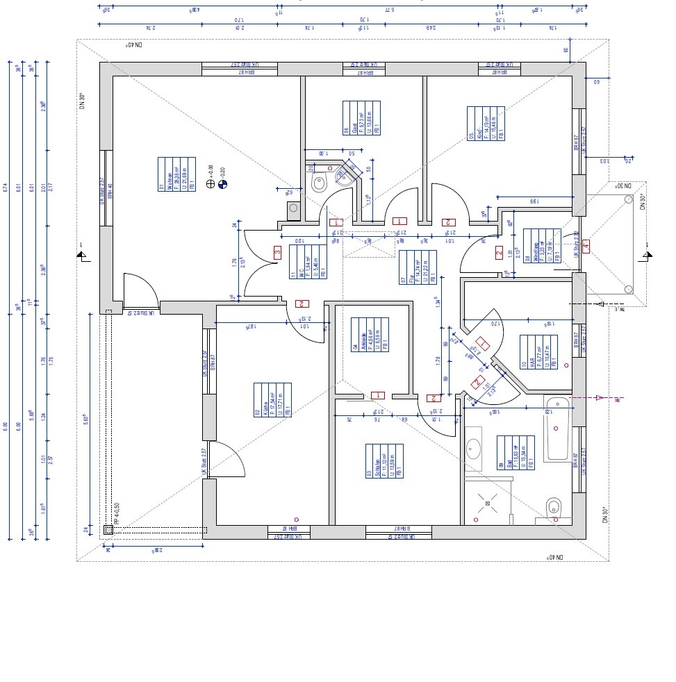
vielen Dank für jede brauchbare Idee. Grundriss im Anhang! 13m Lang, 12,74m Hauseingangseite breit + 60cm Dachüberstand!
Lieben Gruß

Ich weiß nicht wie ich Spots anordnen soll. Erstens möchte ich im Dachkasten Spots, super schick. Leider kann ich mich auf keine Anordnung einigen.. :/
Dann möchte ich im Haus auch welche...Flur, Bad usw. was sagt ihr?
vielen Dank für jede brauchbare Idee. Grundriss im Anhang! 13m Lang, 12,74m Hauseingangseite breit + 60cm Dachüberstand!
Lieben Gruß
G
garfunkel10.09.16 22:21Das kannst du doch machen wie du willst?
Ich würde im Abstand von 30cm zur Wand welche Setzen, dann die nächste Reihe mit 70cm oder ähnlich bis man sich in der Mitte trifft.
Kannst du regelmäßig machen oder unregelmäßig. An der Ecke Decke-Wand könntest du auch LED-Lichtstreifen.
Da gibt es fast schon unendliche Möglichkeiten.
Wichtig ist letztlich nur, Bau lieber etwas mehr Spots ein als du vielleicht brauchst. Den ein oder anderen Spot dunkel schalten ist wesentlich einfach als nachträglich noch einen Spot zu setzen.
Spots sind super und in vielen Räumen eine Bereicherung, in manchen Räumen würde ich aber eher zu dekorativen Lampen greifen. So bleibt das Raumbild im ganzen wohnlicher.
Im Wohnzimmer z. B. würde ich es mir gut überlegen nur auf Spots zu setzen, da soll es ja in aller Regel etwas gemütlicher sein und da können "normale" Lampen deutlich besser wirken.
Weiß ja nicht wo deine Relaxzone ist, Bad, Wohnzimmer, Schlafzimmer oder Küche oder wo auch immer, aber überlege dir ob du dort nur Licht von Spots haben willst.
Spots wirken meiner Meinung nach etwas kalt und ungemütlich, je nach dem.
Alternativ kannst du dir auch Doppelschalter setzen lassen. Machst dann das Hauptlicht mit Spots und noch ein indirektes Licht mit xy Beleuchtung.
Man kann so viel machen, kannst dich ja mal beraten lassen von Lichtplanern oder dergleichen. Ist echt Hammer hart was es da alles gibt
Ich würde im Abstand von 30cm zur Wand welche Setzen, dann die nächste Reihe mit 70cm oder ähnlich bis man sich in der Mitte trifft.
Kannst du regelmäßig machen oder unregelmäßig. An der Ecke Decke-Wand könntest du auch LED-Lichtstreifen.
Da gibt es fast schon unendliche Möglichkeiten.
Wichtig ist letztlich nur, Bau lieber etwas mehr Spots ein als du vielleicht brauchst. Den ein oder anderen Spot dunkel schalten ist wesentlich einfach als nachträglich noch einen Spot zu setzen.
Spots sind super und in vielen Räumen eine Bereicherung, in manchen Räumen würde ich aber eher zu dekorativen Lampen greifen. So bleibt das Raumbild im ganzen wohnlicher.
Im Wohnzimmer z. B. würde ich es mir gut überlegen nur auf Spots zu setzen, da soll es ja in aller Regel etwas gemütlicher sein und da können "normale" Lampen deutlich besser wirken.
Weiß ja nicht wo deine Relaxzone ist, Bad, Wohnzimmer, Schlafzimmer oder Küche oder wo auch immer, aber überlege dir ob du dort nur Licht von Spots haben willst.
Spots wirken meiner Meinung nach etwas kalt und ungemütlich, je nach dem.
Alternativ kannst du dir auch Doppelschalter setzen lassen. Machst dann das Hauptlicht mit Spots und noch ein indirektes Licht mit xy Beleuchtung.
Man kann so viel machen, kannst dich ja mal beraten lassen von Lichtplanern oder dergleichen. Ist echt Hammer hart was es da alles gibt
Ähnliche Themen