N
NeuDabei202519.01.25 14:56Hallo zusammen!
Ich habe immer fleißig euer Forum während unsers Hausbaus verfolgt und wir stehen jetzt selber vor der Entscheidung wie die Küche werden soll.
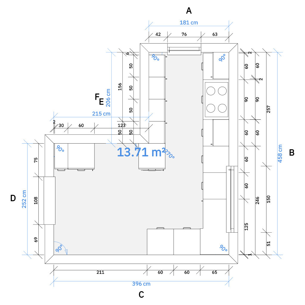
Eigentlich wollten wir mal eine begehbare Abstellkammer. Das wird unseres Erachtens aber nicht mehr funktionieren, weswegen wir die Küche jetzt als L mit viel Stauraum gestaltet haben. Wasseranschluss und Elektroplanung sind noch ausstehend.
Wir haben eine erste Planung machen lassen (3D Bilder; Grundriss wurden von mir nachgebaut), aber uns fehlt die Erfahrung, da wir bisher keine Küche gekauft haben und freuen uns auf Anregungen eurerseits! Vielen Dank vorab...
Gruß
----------------------------------------------------------------------------------------------------
Bei den technischen Geräten sind wir uns noch unschlüssig, aber könnten uns folgendes vorstellen:
Dunstabzugshaube
Siemens iQ500 LC81KAN60
Kochfeld
Siemens iQ700 EX845HVC1E
Backofen
Siemens iQ700 HB774G1B1
Geschirrspüler
Siemens iQ500 SN65EX12CE
waschbecken haben wir uns folgendes überlegt:
Franke Maris MRG 611-78 (Wie auf dem Bild)
Ich habe dort auch viel kritisches bzgl. Haltbarkeit und Abfärbung von Lebensmittel gelesen.
----------------------------------------------------------------------------------------------------
Zur Küche kann ich euch folgendes mitgeben:
Hersteller
Nobilia
Fronten
Touch 336 Lacklaminat Magnolia supermatt
Arbeitsplatte
149 Beton Terragrau
Korpus
120 Magnolia
----------------------------------------------------------------------------------------------------
Kurze Erläuterung zum Aufbau (orientiert am Grundriss und den 3D-Bildern):
Allgemein
Wir werden wahrscheinlich eine direkten Durchgang vom Flur in die Küchen haben, der offen bleiben wird.
Wir sind insgesamt noch unschlüssig, ob man die Küche überhaupt 240 cm machen sollten (ggf. zu hoch) und/oder bis oben eine blende setzt, damit diese geschlossen ist zur Decke. Bei Freunden sah die geschlossene Küche bis zur Decke sehr gut aus.
Die Griffe sollen alle Mitte sein, egal ob Auszug oder normale Tür.
Wir haben uns auch noch nicht entschieden, was wir als Nischendekor (also an der Wand) nehmen wollen.
Wand neben der Tür
Wand links neben dem bodentiefen Fenster
Wand rechts neben dem bodentiefen Fenster




Ich habe immer fleißig euer Forum während unsers Hausbaus verfolgt und wir stehen jetzt selber vor der Entscheidung wie die Küche werden soll.
Eigentlich wollten wir mal eine begehbare Abstellkammer. Das wird unseres Erachtens aber nicht mehr funktionieren, weswegen wir die Küche jetzt als L mit viel Stauraum gestaltet haben. Wasseranschluss und Elektroplanung sind noch ausstehend.
Wir haben eine erste Planung machen lassen (3D Bilder; Grundriss wurden von mir nachgebaut), aber uns fehlt die Erfahrung, da wir bisher keine Küche gekauft haben und freuen uns auf Anregungen eurerseits! Vielen Dank vorab...
Gruß
----------------------------------------------------------------------------------------------------
Bei den technischen Geräten sind wir uns noch unschlüssig, aber könnten uns folgendes vorstellen:
Dunstabzugshaube
Siemens iQ500 LC81KAN60
Kochfeld
Siemens iQ700 EX845HVC1E
Backofen
Siemens iQ700 HB774G1B1
Geschirrspüler
Siemens iQ500 SN65EX12CE
waschbecken haben wir uns folgendes überlegt:
Franke Maris MRG 611-78 (Wie auf dem Bild)
Ich habe dort auch viel kritisches bzgl. Haltbarkeit und Abfärbung von Lebensmittel gelesen.
----------------------------------------------------------------------------------------------------
Zur Küche kann ich euch folgendes mitgeben:
Hersteller
Nobilia
Fronten
Touch 336 Lacklaminat Magnolia supermatt
Arbeitsplatte
149 Beton Terragrau
Korpus
120 Magnolia
----------------------------------------------------------------------------------------------------
Kurze Erläuterung zum Aufbau (orientiert am Grundriss und den 3D-Bildern):
Allgemein
Wir werden wahrscheinlich eine direkten Durchgang vom Flur in die Küchen haben, der offen bleiben wird.
Wir sind insgesamt noch unschlüssig, ob man die Küche überhaupt 240 cm machen sollten (ggf. zu hoch) und/oder bis oben eine blende setzt, damit diese geschlossen ist zur Decke. Bei Freunden sah die geschlossene Küche bis zur Decke sehr gut aus.
Die Griffe sollen alle Mitte sein, egal ob Auszug oder normale Tür.
Wir haben uns auch noch nicht entschieden, was wir als Nischendekor (also an der Wand) nehmen wollen.
Wand neben der Tür
- es soll ein ggf. Kühlschrank mit French Door werden, der mittig an der Wand von der Tür platziert wird
- links neben dem Kühlschrank soll der Herd sein und rechts daneben der Geschirrspüler (hochgesetzt)
- wir sind noch unschlüssig, ob der linke Schrank nur eine Tür oder mehrere haben sollte
- es wäre schön, wenn der Geschirrspüler gleichhoch wie der Herd ist, dann wäre es aber sehr hoch und ist laut Planner nicht möglich beim Hersteller
Wand links neben dem bodentiefen Fenster
- in der L-Form sollen an der linken Seite Stauraum für alles sein, da wir keinen Abstellraum mehr haben
- die Schränke können wegen dem Fenster nur 40 cm sein
- wir sind unschlüssig, ob diese nur eine, zwei oder drei Türen haben sollen
Wand rechts neben dem bodentiefen Fenster
- die Standardbreite der Schubladen soll 60 sein
- die Höhe mit Arbeitsplatte ist m.E. 90 cm und der Sockel 10 cm (ich bin mir aber nicht sicher)
- der Herd soll 90 cm breit sein und wir haben uns für eine Abzugshaube entschieden, da ein Kochfeld mit Abzug noch teurer und lauter wäre
- das Waschbecken soll mittig zum Fenster sein
- wir sind unschlüssig, ob wir ein Waschbecken von Franke aus Keramik oder dem anderen einfacheren Material nehmen sollen
- das Waschbecken soll Cashmere oder so sein
- am Ende der L-Form haben wir einen Schrank mit Rondell
K
K a t j a20.01.25 07:20NeuDabei2025 schrieb:
Eigentlich wollten wir mal eine begehbare Abstellkammer. Das wird unseres Erachtens aber nicht mehr funktionieren,Sorry, ich bin kein Küchenprofi, aber warum soll das nicht gehen?Wir hatten das Thema mit der Küche im letzten Herbst (Einbau ist in zwei Wochen).
Was uns geholfen hat:
Was uns geholfen hat:
- Es gibt ein schönes Forum zu dem Thema, wo man super beraten wird.
- Wir haben uns eine große Küchenausstellung im Möbelhaus angeschaut. Nicht um direkt dort zu kaufen (die Beratung war aber trotzdem gut), sondern, um einen Überblick zu bekommen, was überhaupt möglich ist und wo die Unterschiede zwischen Herstellern und Materialien liegen. In kleinen Küchenstudios (in so einem haben wir letztendlich gekauft) ist die Ausstellfläche begrenzt und somit gibt es dort weniger zu sehen bzw. zum anpassen
- Es gibt bei Küchen kein Limit. Ihr müsst euch aber eins setzen! Du wirst immer einen Hersteller finden, der es besser macht und wo es noch schicker aussieht. Aber auch Mittelklasseküchen sind nicht nach 5 Jahren sofort hinüber
- Wenn ihr euch einig seid, holt euch mit der Wunschplanung ein zweites Angebot
Insel um 60cm länger und nur den Kühlschrank planoben, statt der Hochschränke Arbeits- und Abstellfläche. Oder ähnlich. Den oberen Bereich mit den Hochschränken im Ursprungsplan kann man mit einer einfachen (sehr einfachen) Schiebetür abtrennen (da dann auf einer Seite Hochschränke, auf der anderen Arbeitsfläche), um die Küche optisch gelungener wirken zu lassen. Die Trenntür kann man beim Arbeiten offen stehen lassen und nur bei Besuch zumachen.
Vielleicht hat Kerstin Ideen? @kbt09
Vielleicht hat Kerstin Ideen? @kbt09
Noch ein paar Ergänzungen zu eurer Planung:
- Prüft, ob die Höhe der Arbeitsplatte für euch passt. Wir (173cm/165cm) kommen mit 91cm gut zurecht.
- Kochfeld inkl. Muldenlüfter ist nicht grundsätzlich teurer. Man darf halt nur nicht den Fehler machen, Äpfel und Birnen zu vergleichen. Also z.B. von Siemens auf Bora zu wechseln. Beides hat Vor- und Nachteile.
- Bei den Elektrogeräten lässt sich viel sparen, ohne eine Einschränkung haben zu müssen. Wir haben beim Backofen z.B. die einfachste Variante von Neff genommen. Farbdisplay mit hundert Programmen brauchen wir nicht. Das Ofen soll das mit den Grundfunktionen (Grill, Umluft, Ober- Unterhitze) das Essen warm machen.
- Bei Backofen und Mikrowelle würde ich Geräte vom selben Hersteller nehmen, damit es optisch passt. Bei den anderen Geräten ist es egal, da lieber auf Funktion und Preis/Leistung achten.
- Wenn der Dunstabzug so dicht an den Hängeschränken anliegt, wird die Reinigung dahinter fast unmöglich und es besteht über die Jahre die Gefahr, dass die Schränke aufquellen.
- Ich würde größere Schubladen als 60cm nehmen, wenn es optisch zu den Hängeschränken passt. Dann hättet ihr weniger Griffe, das wirkt ruhiger. Die Schubladen selbst kann man ja unterteilen.
- Mittige Griffe bei Türen lassen sich schlecht öffnen. Habt ihr das mal ausprobiert?
- Benötigt ihr überall diese hohen Schubladen? Die kann man nur mit hohen Küchengeräten füllen, wenn man nicht alles übereinander stapeln möchte. Das sieht vom Stauraum her nicht optimal aus. Mit Nobilia geht das auch anders.
Und noch etwas Allgemeines:
- Setzt euch (zumindest kurz) mit den Materialien auseinander, damit ihr euch später nicht ärgert. Bei Nobilia gibt es z.B. wenig lackierte Fronten, sondern eher lackierte Folie.
- Wir haben jetzt ein Rondell und finden es nervig, weil ständig etwas runter fällt und man dann nur noch schlecht dran kommt. Daher haben wir bei der neuen Küchen uns für eine "tote Ecke" entschieden. Das spart Geld und der Stauraumverlust hält sich in Grenzen.
Ähnliche Themen