ᐅ Planung Einfamilienhaus mit Einlieger - ~230m² - Keller - Satteldach
Erstellt am: 28.07.16 13:22
Hallo zusammen,
Nach langem mitlesen nun mein erster Beitrag. Ich finde es bisher klasse wie hier bisher sinnvoll allen zukünftigen Bauherren geholfen wird. Nun zu unserer Planung, und ich hOfen ihr könnt uns noch den ein oder anderen Tipp bzw. Hilfestellung geben.
Wer will bauen und wie?
Anzahl der Personen: 2 Erw. + 1 Kind
Grundstück: ca. 1200qm (22m breit)
Bebauungsplan: ja (bereits berücksichtigt in der Planung)
Hauskosten: ca. 440.000 €
Was ist uns wichtig?
Viel Licht, Ofenn, Galerie, Ofen, Modern (zeitlos),
Welche Vorgaben gibt es technisch?
KFW 55 Haus, Wohnkeller und Wellnesskeller, Einliegerwohnung später,
Luft-Wasser-Wärmepumpe, Photovoltaik + Speicher, KNX. Fertig-Doppelgarage (mit Abstellraum), Zentrale kontrollierte Wohnraumbelüftung
Welche Vorgaben gibt es für die Geschosse?
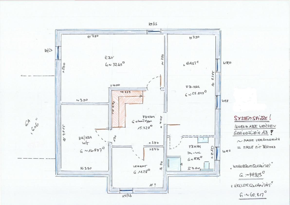
Keller:
• Technik Raum (Heizung, Elektrik, Server)
• Hauswirtschaftsraum
• Gästezimmer
• Duschbad
• Sauna / Fitness
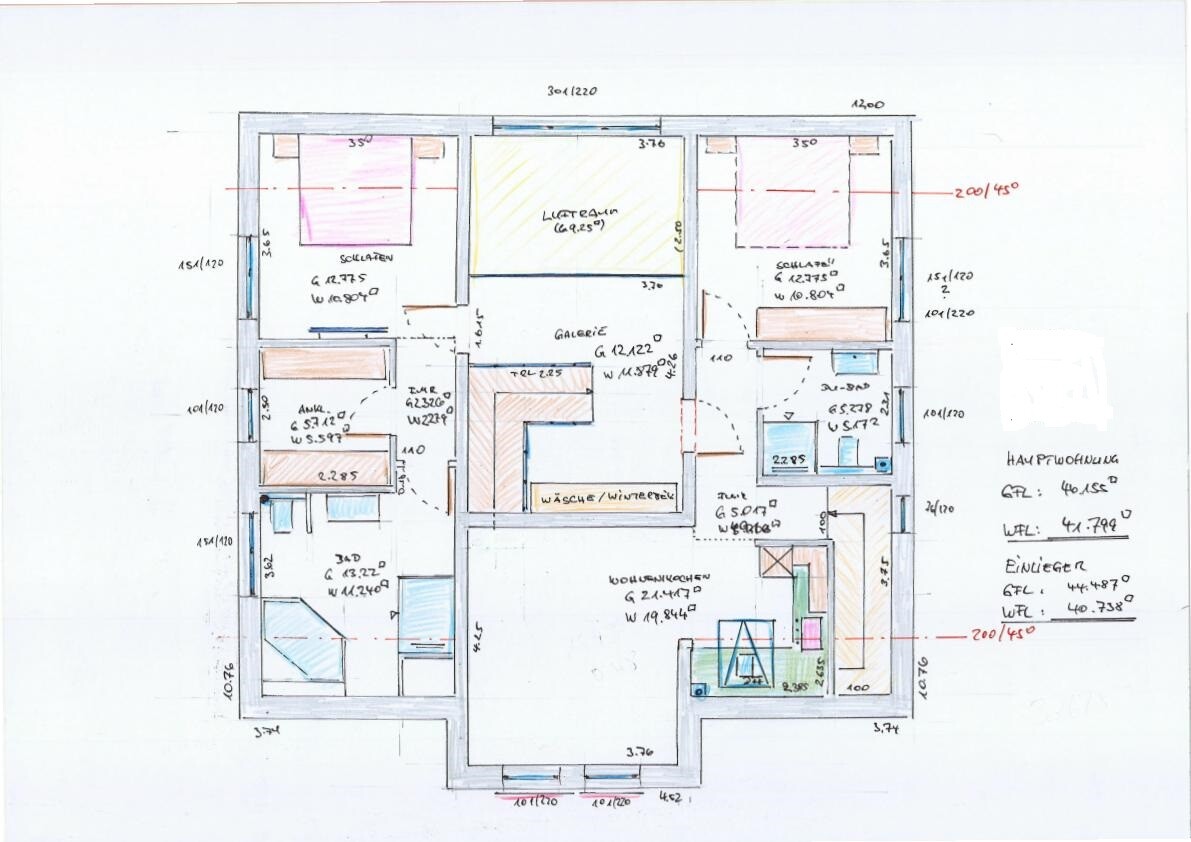
Erdgeschoss:
• Gäste-WC
• Büro
• Abgeschlossene Garderobe
• Wohn- /Esszimmer (Galerie)
• Ofen Tür Küche durch Schiebetür
• Abstellraum
1. OG:
• 2 getrennte Bereiche (durch den Flur getrennt oder ähnlich)
• Elternschlafzimmer
• Ankleide
• Wannen und Duschbadezimmer
• Kinderschlafzimmer
• Duschbadezimmer
• Spielzimmer
• Abstellraum
Gibt es noch Besonderheiten?
Der Bereich unseres Kindes soll später in eine Einliegerwohnung verwandelt werden.
Zwecks Kfw Förderung aber auch direkt so ausgeführt werden.
Über eure Kommentare + Verbesserungsvorschläge würde ich mich freuen.

Nach langem mitlesen nun mein erster Beitrag. Ich finde es bisher klasse wie hier bisher sinnvoll allen zukünftigen Bauherren geholfen wird. Nun zu unserer Planung, und ich hOfen ihr könnt uns noch den ein oder anderen Tipp bzw. Hilfestellung geben.
Wer will bauen und wie?
Anzahl der Personen: 2 Erw. + 1 Kind
Grundstück: ca. 1200qm (22m breit)
Bebauungsplan: ja (bereits berücksichtigt in der Planung)
Hauskosten: ca. 440.000 €
Was ist uns wichtig?
Viel Licht, Ofenn, Galerie, Ofen, Modern (zeitlos),
Welche Vorgaben gibt es technisch?
KFW 55 Haus, Wohnkeller und Wellnesskeller, Einliegerwohnung später,
Luft-Wasser-Wärmepumpe, Photovoltaik + Speicher, KNX. Fertig-Doppelgarage (mit Abstellraum), Zentrale kontrollierte Wohnraumbelüftung
Welche Vorgaben gibt es für die Geschosse?
Keller:
• Technik Raum (Heizung, Elektrik, Server)
• Hauswirtschaftsraum
• Gästezimmer
• Duschbad
• Sauna / Fitness
Erdgeschoss:
• Gäste-WC
• Büro
• Abgeschlossene Garderobe
• Wohn- /Esszimmer (Galerie)
• Ofen Tür Küche durch Schiebetür
• Abstellraum
1. OG:
• 2 getrennte Bereiche (durch den Flur getrennt oder ähnlich)
• Elternschlafzimmer
• Ankleide
• Wannen und Duschbadezimmer
• Kinderschlafzimmer
• Duschbadezimmer
• Spielzimmer
• Abstellraum
Gibt es noch Besonderheiten?
Der Bereich unseres Kindes soll später in eine Einliegerwohnung verwandelt werden.
Zwecks Kfw Förderung aber auch direkt so ausgeführt werden.
Über eure Kommentare + Verbesserungsvorschläge würde ich mich freuen.
N
nordanney28.07.16 13:48Andere sind da besser als ich 😉
Wenn Ihr nur ein Kind habt/wollte, verschenkt Ihr oben massig Platz für x Jahre.
Der Zugang zur Einliegerwohnung bzw. zur Treppe durch Euren Wohnbereich - das ist nicht wirklich eine abgeschlossene Wohnung und macht Euch später auch keinen Spaß.
Budget könnte bei Euren Ansprüchen schon sehr sportlich sein.
Wenn Ihr nur ein Kind habt/wollte, verschenkt Ihr oben massig Platz für x Jahre.
Der Zugang zur Einliegerwohnung bzw. zur Treppe durch Euren Wohnbereich - das ist nicht wirklich eine abgeschlossene Wohnung und macht Euch später auch keinen Spaß.
Budget könnte bei Euren Ansprüchen schon sehr sportlich sein.
J
j.bautsch28.07.16 13:57im eg Grundriss steht rechts unten "späterer Einliegerwohnung eingang" denke da soll das Fenster gegen eine tür getauscht werden wenn es so weit ist 😉 aber finde auch das er grundriss sehr verschachtelt ist, ihr habt doch sehr viel verkehrsfläche
@nordanney: Der Zugang zur Einliegerwohnung ist solange mein Sohn dort sein Reich haben wird über unsere Treppe zu erreichen. Die andere Treppe wird später durch den Austausch des Fenster durch eine Tür in Gebrauch genommen, gleichzeitig die Tür im OG zugemauert
Unser Budget ist in diesem Fall nicht gemeint gewesen. Wir haben bereits Angebote für das Haus ohne Photovoltaik, und KNX vorliegen. Liegt bei 400.000€
@j.bautsch: Wo denkst du denn das wir Verkehrsfläche verlieren ? bzw. Optimieren könnten.
Unser Budget ist in diesem Fall nicht gemeint gewesen. Wir haben bereits Angebote für das Haus ohne Photovoltaik, und KNX vorliegen. Liegt bei 400.000€
@j.bautsch: Wo denkst du denn das wir Verkehrsfläche verlieren ? bzw. Optimieren könnten.
J
Jochen10428.07.16 15:00Hallo!
Ich finde das Haus auch relativ stark verwinkelt. Zudem kommt die Fläche für die beiden Eingangsbereiche und die zweite Treppe ins OG. Leider kann man ohne weitere Details zum Grundstück nicht allzu viel sagen, aber gibt es keine Möglichkeit die Einliegerwohnung z. B. im KG zu realisieren?
mcvnet schrieb:
Zwecks KfW Förderung aber auch direkt so ausgeführt werden.
mcvnet schrieb:Das widerspricht sich meiner Meinung nach aber. Wenn du die Förderung für zwei Wohneinheiten in Anspruch nehmen möchtest, musst du auch gleich zwei Wohneinheiten erstellen.
Der Zugang zur Einliegerwohnung ist solange mein Sohn dort sein Reich haben wird über unsere Treppe zu erreichen. Die andere Treppe wird später durch den Austausch des Fenster durch eine Tür in Gebrauch genommen, gleichzeitig die Tür im OG zugemauert
Ich finde das Haus auch relativ stark verwinkelt. Zudem kommt die Fläche für die beiden Eingangsbereiche und die zweite Treppe ins OG. Leider kann man ohne weitere Details zum Grundstück nicht allzu viel sagen, aber gibt es keine Möglichkeit die Einliegerwohnung z. B. im KG zu realisieren?
Verstehe ich das richtig, dass du die Einliegerwohnung gleich so ausführen lassen willst, damit du die KFW Förderung für 2 Wohneinheiten direkt 2x bekommst?
Wenn ja:
Abgesehen davon, dass das hier nicht gerade auf Zustimmung stößt, da du ja keine 2 Wohneinheiten erstellst, sondern nur so tust, wirst du da sowieso probleme bekommen, da du die Kriterien (Eigener und ausschließlich einziger Zugang, usw...) nicht erfüllst.
€: Zu Spät ^^
Wenn ja:
Abgesehen davon, dass das hier nicht gerade auf Zustimmung stößt, da du ja keine 2 Wohneinheiten erstellst, sondern nur so tust, wirst du da sowieso probleme bekommen, da du die Kriterien (Eigener und ausschließlich einziger Zugang, usw...) nicht erfüllst.
€: Zu Spät ^^
Ähnliche Themen