ᐅ Pfusch am Bau - Regen- und Schmutzwasser wird ins Erdreich abgeleitet
Erstellt am: 19.10.24 10:57
P
papa1981Hallo zusammen.
Seit 5 Tagen bin ich mit einem großen Problem beschäftigt und weiß leider nicht mehr weiter.
Wir haben seit ein paar Wochen in unserem Schlafzimmer einen muffigen Geruch festgestellt. Meine Vermutung war ein Fallrohr, welches sich im Mauerwerk befindet.
Habe dann an der ungefähren Stelle die Steinplatten entfernt und bin auf den Anschluss gestoßen. Dabei konnte man auch sehen, wie nass die Wand ist (wurde bei der Versicherung gemeldet und wird geprüft). Habe dann Wasser durch das Fallrohr laufen lassen und siehe da, es läuft an der Seite komplett in den Boden und nicht ins Rohr. Der Anschluss ist undicht. Nachdem ich das Verbindungsstück entfernt hatte, konnte ich den Pfusch deutlich sehen. Bei dem Fallrohr handelt es sich um 70 mm Rohr und das Verbindungsstück ein 100 mm Rohr. Um es zu fixieren hat man eine Klebemaße verwendet. Absoluter Pfusch!
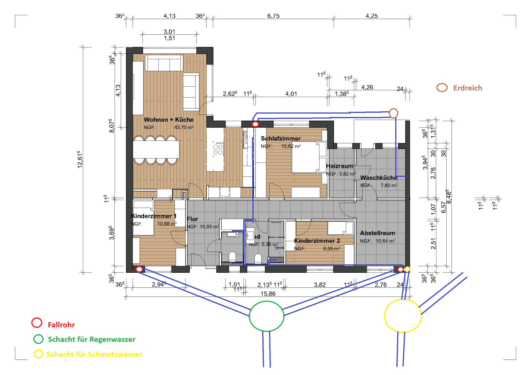
Wie dem auch sei. dabei ist mir noch aufgefallen, dass das Wasser trotzdem nicht abläuft obwohl eine Neigung vorhanden ist. Nach dem ich weitere Platten entfernt habe, konnte ich ein T-Stück ausfindig machen, welches nach oben offen war. Die haben hier als Unterboden komplett Sand und Erde verwendet, welches mit der Zeit ebenfalls in Rohr gelaufen ist. Konnte es mit einer Kamera genau prüfen. Ich habe dann angefangen den Inhalt mit einem Nasssauger komplett abzusaugen. Da ich nicht weiter gekommen bin, habe ich vermutet, dass das Rohr zu ist. Habe dann angefangen die Schächte auf meinem Grundstück anhand der alten Baupläne zu suchen. Laut Plan vom Entwässerungsamt, gibt es nur einen Schacht für das Schmutzwasser. Ich habe zwei Schächter gefunden! Der Schacht der angeblich für das Schmutzwasser ist, ist der für's Regenwasser. Den Schmutzwasserschacht habe ich durch meine Nachbarn erfahren. Meine Nachbarn haben sich mit dem Urbesitzer damals geeinigt, dass die beiden sich den Schacht teilen. Habe beide Schächter überprüft und habe im Haus das Wasser laufen lassen, Toiletten gespült usw. Kam alles ohne Probleme raus. Dachte mir nun, dass das Rohr auf der hinteren Seite verstopft ist und nun eine Rohrreinigungsfirma dran muss. Die Rohrreinigungsfirma war hier und kam ebenfalls nicht weiter. Die Vermutung des Rohrreinigers ist, dass es ein Rohrbruch gibt und dass man da den Boden aufstemmen muss usw. Was mich gewundert hat war, dass während der Spülung der Waschraum angefangen hat zu stinken.
Da ich der Sache weiter auf den Grund gehen wollte, habe ich das Rohr weiterabgesaugt und mit der Kamera begutachtet. Das Rohr endet im Erdreich und ein gelbes Drainagerohr ist deutlich zu sehen. Aufgrund des Gestanks im Waschraum ahnte ich schon böses und bat meine Frau während der Begutachtung das Wasser laufen zu lassen. Erschreckend konnte ich beobachten, wie das Schmutzwasser ebenfalls ins Erdreich abfloss. Warum da so ein Pfusch gemacht wurde, kann ich nicht sagen. Das Haus ist von 1978 und wir haben es seit März 2019. Was mich ebenfalls wundert ist, dass das Entwässerungsamt bzw. Bauamt alles schriftlich bestätigt hat, was die Entwässerung angeht. Habe das Dokument ebenfalls vorliegen.
Da ich nun nicht weiter weiß, bräuchte ich ein paar Tipps. In der Zeichnung habe ich mal den IST-Zustand eingezeichnet.
Mir geht es viel mehr um den Anschluss im Waschraum, der mit dem Schmutzwasseranschluss verbunden werden muss. Was wäre die beste Lösung?
Kann ich gegen den Urbesitzer oder gegen das Amt für Entwässerung gerichtlich vorgehen? Schließlich habe ich nun ein Schaden. Alleine die Außenwand ist über die Jahre nass geworden.
Eckdaten zum Haus: Bungalow von 1978 ohne Keller und Obergeschoss.
Viele Grüße

Seit 5 Tagen bin ich mit einem großen Problem beschäftigt und weiß leider nicht mehr weiter.
Wir haben seit ein paar Wochen in unserem Schlafzimmer einen muffigen Geruch festgestellt. Meine Vermutung war ein Fallrohr, welches sich im Mauerwerk befindet.
Habe dann an der ungefähren Stelle die Steinplatten entfernt und bin auf den Anschluss gestoßen. Dabei konnte man auch sehen, wie nass die Wand ist (wurde bei der Versicherung gemeldet und wird geprüft). Habe dann Wasser durch das Fallrohr laufen lassen und siehe da, es läuft an der Seite komplett in den Boden und nicht ins Rohr. Der Anschluss ist undicht. Nachdem ich das Verbindungsstück entfernt hatte, konnte ich den Pfusch deutlich sehen. Bei dem Fallrohr handelt es sich um 70 mm Rohr und das Verbindungsstück ein 100 mm Rohr. Um es zu fixieren hat man eine Klebemaße verwendet. Absoluter Pfusch!
Wie dem auch sei. dabei ist mir noch aufgefallen, dass das Wasser trotzdem nicht abläuft obwohl eine Neigung vorhanden ist. Nach dem ich weitere Platten entfernt habe, konnte ich ein T-Stück ausfindig machen, welches nach oben offen war. Die haben hier als Unterboden komplett Sand und Erde verwendet, welches mit der Zeit ebenfalls in Rohr gelaufen ist. Konnte es mit einer Kamera genau prüfen. Ich habe dann angefangen den Inhalt mit einem Nasssauger komplett abzusaugen. Da ich nicht weiter gekommen bin, habe ich vermutet, dass das Rohr zu ist. Habe dann angefangen die Schächte auf meinem Grundstück anhand der alten Baupläne zu suchen. Laut Plan vom Entwässerungsamt, gibt es nur einen Schacht für das Schmutzwasser. Ich habe zwei Schächter gefunden! Der Schacht der angeblich für das Schmutzwasser ist, ist der für's Regenwasser. Den Schmutzwasserschacht habe ich durch meine Nachbarn erfahren. Meine Nachbarn haben sich mit dem Urbesitzer damals geeinigt, dass die beiden sich den Schacht teilen. Habe beide Schächter überprüft und habe im Haus das Wasser laufen lassen, Toiletten gespült usw. Kam alles ohne Probleme raus. Dachte mir nun, dass das Rohr auf der hinteren Seite verstopft ist und nun eine Rohrreinigungsfirma dran muss. Die Rohrreinigungsfirma war hier und kam ebenfalls nicht weiter. Die Vermutung des Rohrreinigers ist, dass es ein Rohrbruch gibt und dass man da den Boden aufstemmen muss usw. Was mich gewundert hat war, dass während der Spülung der Waschraum angefangen hat zu stinken.
Da ich der Sache weiter auf den Grund gehen wollte, habe ich das Rohr weiterabgesaugt und mit der Kamera begutachtet. Das Rohr endet im Erdreich und ein gelbes Drainagerohr ist deutlich zu sehen. Aufgrund des Gestanks im Waschraum ahnte ich schon böses und bat meine Frau während der Begutachtung das Wasser laufen zu lassen. Erschreckend konnte ich beobachten, wie das Schmutzwasser ebenfalls ins Erdreich abfloss. Warum da so ein Pfusch gemacht wurde, kann ich nicht sagen. Das Haus ist von 1978 und wir haben es seit März 2019. Was mich ebenfalls wundert ist, dass das Entwässerungsamt bzw. Bauamt alles schriftlich bestätigt hat, was die Entwässerung angeht. Habe das Dokument ebenfalls vorliegen.
Da ich nun nicht weiter weiß, bräuchte ich ein paar Tipps. In der Zeichnung habe ich mal den IST-Zustand eingezeichnet.
Mir geht es viel mehr um den Anschluss im Waschraum, der mit dem Schmutzwasseranschluss verbunden werden muss. Was wäre die beste Lösung?
Kann ich gegen den Urbesitzer oder gegen das Amt für Entwässerung gerichtlich vorgehen? Schließlich habe ich nun ein Schaden. Alleine die Außenwand ist über die Jahre nass geworden.
Eckdaten zum Haus: Bungalow von 1978 ohne Keller und Obergeschoss.
Viele Grüße
Anzeige
Hallo papa1981,
schau mal hier: Pfusch am Bau - Regen- und Schmutzwasser wird ins Erdreich abgeleitet. Da wird jeder fündig!
schau mal hier: Pfusch am Bau - Regen- und Schmutzwasser wird ins Erdreich abgeleitet. Da wird jeder fündig!
Ähnliche Themen