Hendrik , was muss sich alles an deinem jetzigen Haus ändern, damit es für euch passt? Ich schätze mal mehr Kinderzimmer und ein größeres Wohnzimmer oder Alltaum. Einfach eine Bestandsaufnahme. lässt sich leicht umsetzen bzw. in das vorhandene Haus leicht integrieren? z.B. Heizungsanlage für die Mehrfläche ausreichend?
Wenn es bei den ganzen oberen Punkten irgendwo groß zwickt, dann erst an den Neubau denken.
Wenn es bei den ganzen oberen Punkten irgendwo groß zwickt, dann erst an den Neubau denken.
blaupuma schrieb:
11ant du bist echt lustig ehrlich... aber nicht das Thema.blaupuma schrieb:
Was bist du eigentlich
Mann, Frau, jung, alt?Lies´ mal den grauen Kasten neben den Beiträgen: am 1. 2. 2017 war ich 48 Jahre alt (die Forensoftware zählt nicht weiter), Geschlecht und Beruf und Bundesland stehen auch da.Anonym gibt es im Internet für aktive Forenmitglieder nicht - aus meinen Kommentaren (und wenn Du dazu noch schaust, welchen Kommentaren anderer Beitragender ich "Likes" anhefte) müßtest Du mein Haus inzwischen auswendig nachzeichnen können.
https://www.instagram.com/11antgmxde/
https://www.linkedin.com/company/bauen-jetzt/
H
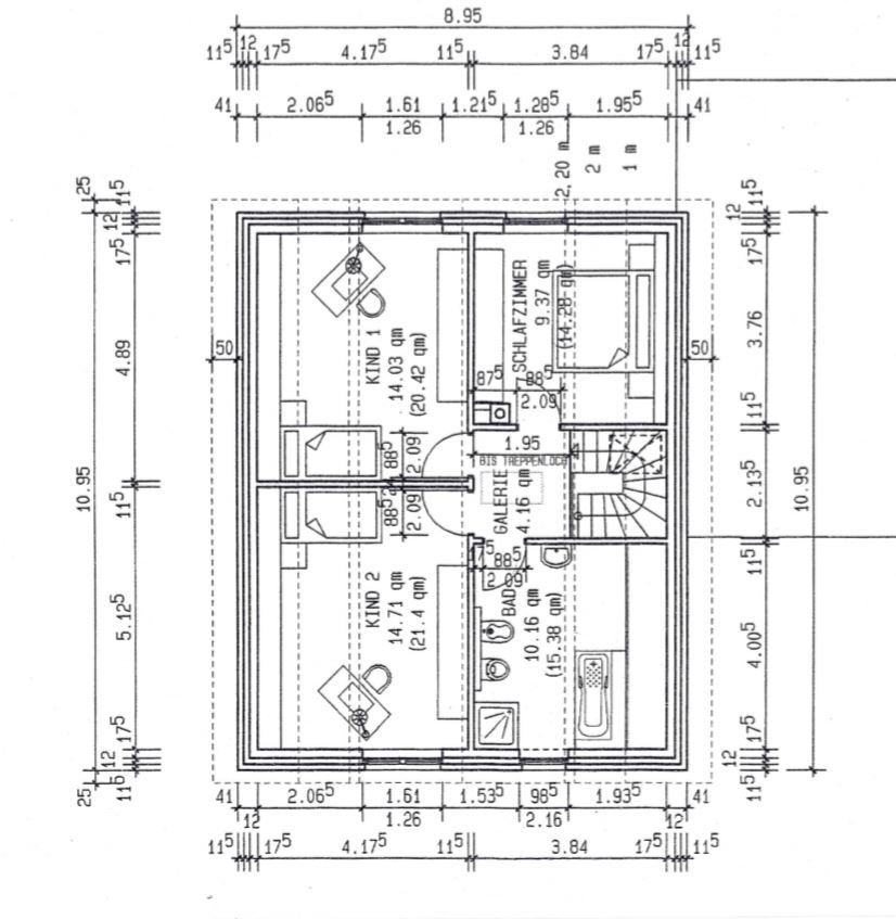
Hendrik M02.10.18 21:43Hallo,
leider gelingt es mir nicht, diese Bilder im Post zu verlinken. Nun eben an dieser Stelle.
Ich würde mich freuen, wenn ihr mir eure Ideen mitteilen könntet. Vom Wohnwintergarten und dessen Sinnhaftigkeit beziehungsweise dem Fehlen davon konntet ihr mich schon ganz gut überzeugen, sodass ich mittlerweile wieder für sämtliche Lösungen offen bin, die 2 Kinderzimmer und mehr Raum im EG zum Leben sowie eine größere Küche schaffen (das war einer der Gründe für den WWG).
Viele Grüße
Hendrik





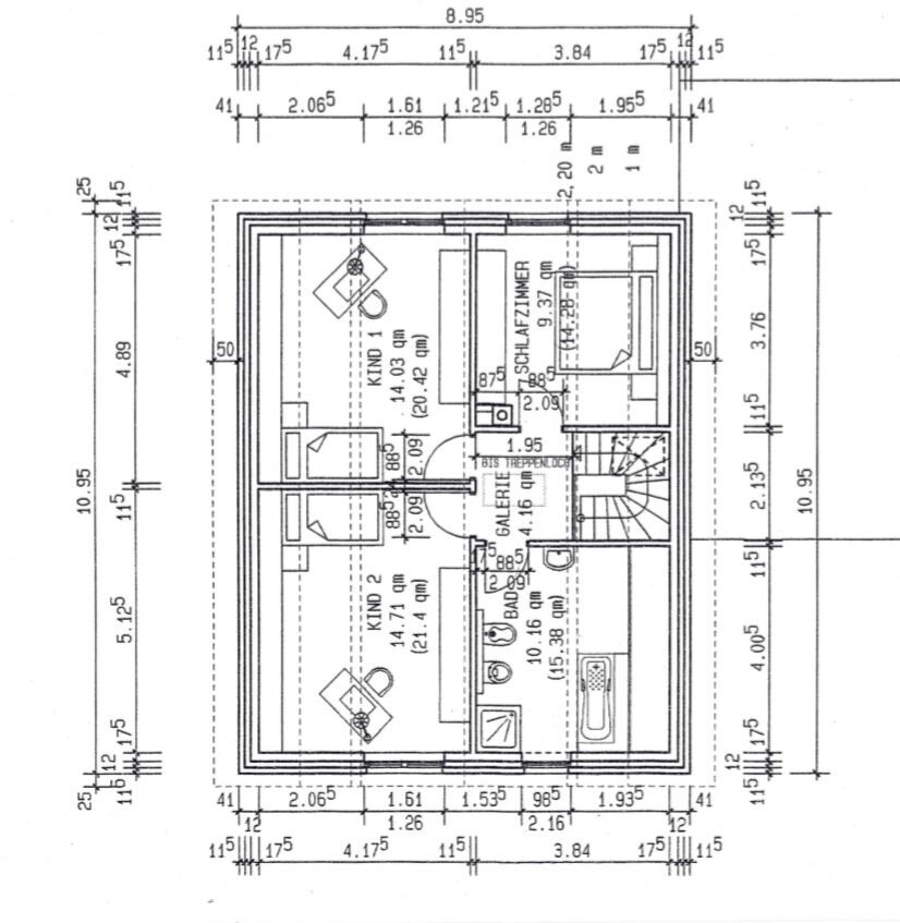
leider gelingt es mir nicht, diese Bilder im Post zu verlinken. Nun eben an dieser Stelle.
Ich würde mich freuen, wenn ihr mir eure Ideen mitteilen könntet. Vom Wohnwintergarten und dessen Sinnhaftigkeit beziehungsweise dem Fehlen davon konntet ihr mich schon ganz gut überzeugen, sodass ich mittlerweile wieder für sämtliche Lösungen offen bin, die 2 Kinderzimmer und mehr Raum im EG zum Leben sowie eine größere Küche schaffen (das war einer der Gründe für den WWG).
Viele Grüße
Hendrik
Fürs Planen braucht man Zahlen.
Grundstück, Bebauungsplan, Haus, Kapazität, Konto.
Und man braucht Fachwissen.
Drillinge braucht man sehr wahrscheinlich die ersten Jahre nicht trennen. Allerdings kenne ich es nur von eineinigen Zwillingen: die darf man nicht trennen und haben eine starke Bindung.
Insofern würde ich sagen, habt ihr 5 Jahre Puffer. Vielleicht kann man diese Zeit nutzen und schauen, wie sich die Drillinge gegenseitig brauchen oder nicht.
Wenn letztendlich vier Kinderzimmern gebraucht werden, wäre eine Möglichkeit, die zwei bestehenden Kinderzimmern zu verkleinern und dazwischen einen Zugang zu einem dritten Giebel zu machen, wo dann ein neues Zimmer generiert wird. Darunter entsteht ein Erker beim Essbereich. Den dritten Giebel kann man natürlich noch größer bzw breiter ziehen, dass ein L-Haus entsteht.
Anbau bzw Erweiterung würde ich mit weißer Holzverkleidung versehen.
Ansonsten sehe ich noch die Möglichkeit, das Büro unten als Wäscheraum/Ankleide/Abstell zu nutzen, von wo man in einen Anbau gehen kann, wo Elterntrakt wäre.
Ein Überbau der Garage sehe ich nicht wegen der Abstandsflächen.
Grundstück, Bebauungsplan, Haus, Kapazität, Konto.
Und man braucht Fachwissen.
Drillinge braucht man sehr wahrscheinlich die ersten Jahre nicht trennen. Allerdings kenne ich es nur von eineinigen Zwillingen: die darf man nicht trennen und haben eine starke Bindung.
Insofern würde ich sagen, habt ihr 5 Jahre Puffer. Vielleicht kann man diese Zeit nutzen und schauen, wie sich die Drillinge gegenseitig brauchen oder nicht.
Wenn letztendlich vier Kinderzimmern gebraucht werden, wäre eine Möglichkeit, die zwei bestehenden Kinderzimmern zu verkleinern und dazwischen einen Zugang zu einem dritten Giebel zu machen, wo dann ein neues Zimmer generiert wird. Darunter entsteht ein Erker beim Essbereich. Den dritten Giebel kann man natürlich noch größer bzw breiter ziehen, dass ein L-Haus entsteht.
Anbau bzw Erweiterung würde ich mit weißer Holzverkleidung versehen.
Ansonsten sehe ich noch die Möglichkeit, das Büro unten als Wäscheraum/Ankleide/Abstell zu nutzen, von wo man in einen Anbau gehen kann, wo Elterntrakt wäre.
Ein Überbau der Garage sehe ich nicht wegen der Abstandsflächen.
Ähnliche Themen