C
Costruttrice31.10.22 13:41gregman22 schrieb:
Der Pool im Allgemeinen wird auch nochmal spannend, da er außerhalb des Baufensters liegt. Ich hoffe, wir kriegen das genehmigt.Unsrer liegt auch außerhalb, das hat bei der Genehmigung keine Rolle gespielt, Pool gilt als Nebenanlage. Was allerdings eine Rolle spielt ist, die Grundflächenzahl.Oder schreibt der Bebauungsplan sonst noch explizit etwas zu Pools vor?
gregman22 schrieb:
An sich fanden wir den Glaskorridor cool - mal was anderes. Aber der Nachteil des WZ-Blicks ist durchaus valide. Auch das werde ich nochmal mit meiner Frau diskutieren.Alternative wäre eine Spiegelwand. Hatten wir mal in ner Wohnung meiner Kindheit. Hat den Flur unglaublich vergrößert und erhellt (War innenliegend, alsso ohne Fenster). Wenn man die Wand als Stellfläche nicht braucht...G
gregman2231.10.22 13:54Costruttrice schrieb:
Was allerdings eine Rolle spielt ist, die Grundflächenzahl.
Oder schreibt der Bebauungsplan sonst noch explizit etwas zu Pools vor?Guter Punkt. Die Grundflächenzahl würden wir mit dem Pool überschreiten. Ansonsten ist zum Pool im Bebauungsplan von 1970 nichts weiter definiert.gregman22 schrieb:
Guter Punkt. Die Grundflächenzahl würden wir mit dem Pool überschreiten. Ansonsten ist zum Pool im Bebauungsplan von 1970 nichts weiter definiert.Im Keller wäre imho genug Platz. Dann hast Du ihn gleich überdacht. 😉Mir persönlich gefällt der Entwurf besonders die Evolution ziemlich gut. Einzelne Elemente, wie Ankleide/Schlafzimmer und Eingang oder WC kann man sicher noch optimieren.

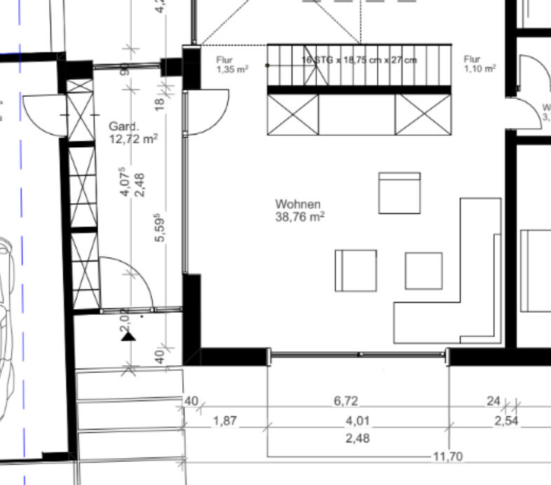
Überlegt euch aber nochmal die Fensterfront zwischen dem Garderoben-Bereich und dem WZ. Sämtliche "Haustürgeschäfte", eben was Vorbeibringen und so können mit einem Schritt in den Flurbereich direkt HausherrInnen auf dem sofa gammeln sehen. Das Thema Vorhang wurde schon angesprochen.
In anderen Entwürfen wird so etwas "Schmutzschleuse" genannt, da will ich doch nicht vom Sofa draufgucken.
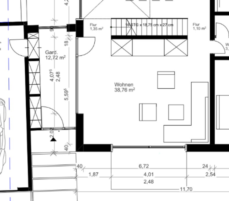
Überlegt euch aber nochmal die Fensterfront zwischen dem Garderoben-Bereich und dem WZ. Sämtliche "Haustürgeschäfte", eben was Vorbeibringen und so können mit einem Schritt in den Flurbereich direkt HausherrInnen auf dem sofa gammeln sehen. Das Thema Vorhang wurde schon angesprochen.
In anderen Entwürfen wird so etwas "Schmutzschleuse" genannt, da will ich doch nicht vom Sofa draufgucken.
Ähnliche Themen