Hausbau - Ratgeber
Bauherrenhilfe
- Bauherrenhilfe vor Vertragsabschluss
-- Warum einen unabhängigen Baubetreuer?
-- Vertragsgrundlagen
-- Bausumme
-- Zahlungsplan zur Kostenkontrolle
-- Pflichten des Bauherren vor Vertragsabschluss
-- Unterlagen beim Hausbau vor Vertragsabschluss
- Bauherrenhilfe nach Vertragsabschluss
-- Bauantrag bei Behörden
-- Bau-Genehmigungsverfahren bei Baubehörden
-- Bauspezifische Versicherungen
-- Bauzeitenplan
-- Baubeginn - die Letzten Pflichten der Bauherrschaft
- Bauherrenhilfe während der Bauzeit
- Gewährleistungsansprüche
- Bauabnahme
Baufinanzierung
- Baufinanzierung - Allgemeine Fragen
- Kreditarten
- Kredit-Konditionen
- Bausparen
- Staatliche Förderungen
- Verkehrswert
- Haushaltsrechnung und Bonität
Hausbau Planung
- Haustypen
- Hausbau Vorbereitungsarbeiten
- Das Baugrundstück
- Baugrund beim Hausbau
- Baurecht
- Gebäudeschutz
- Erdarbeiten und Wasserhaltung
- Stützmauern
- Einfriedung
- Untergeschoss
- Kanalisation
- Tragende Elemente
- Nichttragende Innenwände
- Fundation / Fundament
- Deckenkonstruktionen
- Dächer
- Kaminanlagen
- Treppen Rampen Leitern
- Dachbeläge und Spengler
- Fenster
- Sonnen und Wetterschutz
- Aussenputze
- Einbauten, Küchen, Türen
- Bodenbeläge und Unterlagsböden
- Parkett
- Gips, Wand, Decke
Haustechnik und Energie
- Heiztechnik
- Lüftung und Klimatechnik
- Sanitärtechnik
- Elektrotechnik
- Erneuerbare Energie
Whirlpools / Jacuzzi
Hausbau Magazin
- Baufinanzierung trotz Krise?
- Das Blockhaus
- Moderne Dämmstoffe im Vergleich
- Erker Vor- und Nachteile
- Glasflächen beim Hausbau
- Günstig ein Haus Bauen
- Mediterraner Hausbaustil
- Mehrgenerationenhaus
- Moderne Architektur
- Gartengestaltung leicht gemacht
- Traditioneller Ziegelbau
- Villa als höchster Traum
- Im Eigenheim Ruhestand geniessen
- Altbau sanieren
- Kauf einer Holzgarage
- Immobilienmakler
- Arbeitshandschuhe für den Winter
- Zuhause verschönern
- Outdoor-Plissees
- Schlafzimmer planen
- Terrassenüberdachung
- Wohngebäudeversicherung
- Zaunarten und Eigenschaften
- Hauseingang gestalten
- Der perfekte Grundriss
- Sparsamer heizen im Altbau
- Einfamilienhaus smart finanzieren
- Planung einer PV-Anlage
- Neues Haus
- Immobilienfinanzierung
- Installation einer Photovoltaikanlage
- Asbest erkennen und entfernen
- Gartenpflege im Frühling – worauf achten
- Sauna im Fokus - Wellness zuhause
- Erfolgreich vermieten
- Die perfekte Winterbekleidung
- Das Niedrigenergiehaus
- Der April und seine Stürme
- Architektonische Vielfalt
- Ökologisch und nachhaltig bauen
- Das perfekte Schlafzimmer
- Nachhaltige Energieversorgung
- Zukunftsorientiert bauen
- Nachhaltigkeit beim Hausbau
- Tiny Houses
- Wärmepumpen als nachhaltige Heizvariante
- Maßgeschneiderten Kleiderschrank
- Der richtige Baukredit
- Ratgeber für erfolgreichen Hausbau
- Haus als Altersvorsorge
Do-it-yourself Anleitungen
- Verlegeanleitung für Bodenbeläge und Parkett
- Bodenbeläge und Parkett reinigen und pflegen
- Malerarbeiten am Haus
- Garten Tipps
- Umzug und Reinigung

ᐅ Meinungen zu unserem Grundriss Entwurf erwünscht

Erstellt am: 25.03.17 10:46
K
KingSong
KingSong27.03.17 21:06
Ja nicht nur das.... Mehrkosten von 17k sprechen auch dagegen.
KingSong24.09.17 17:39
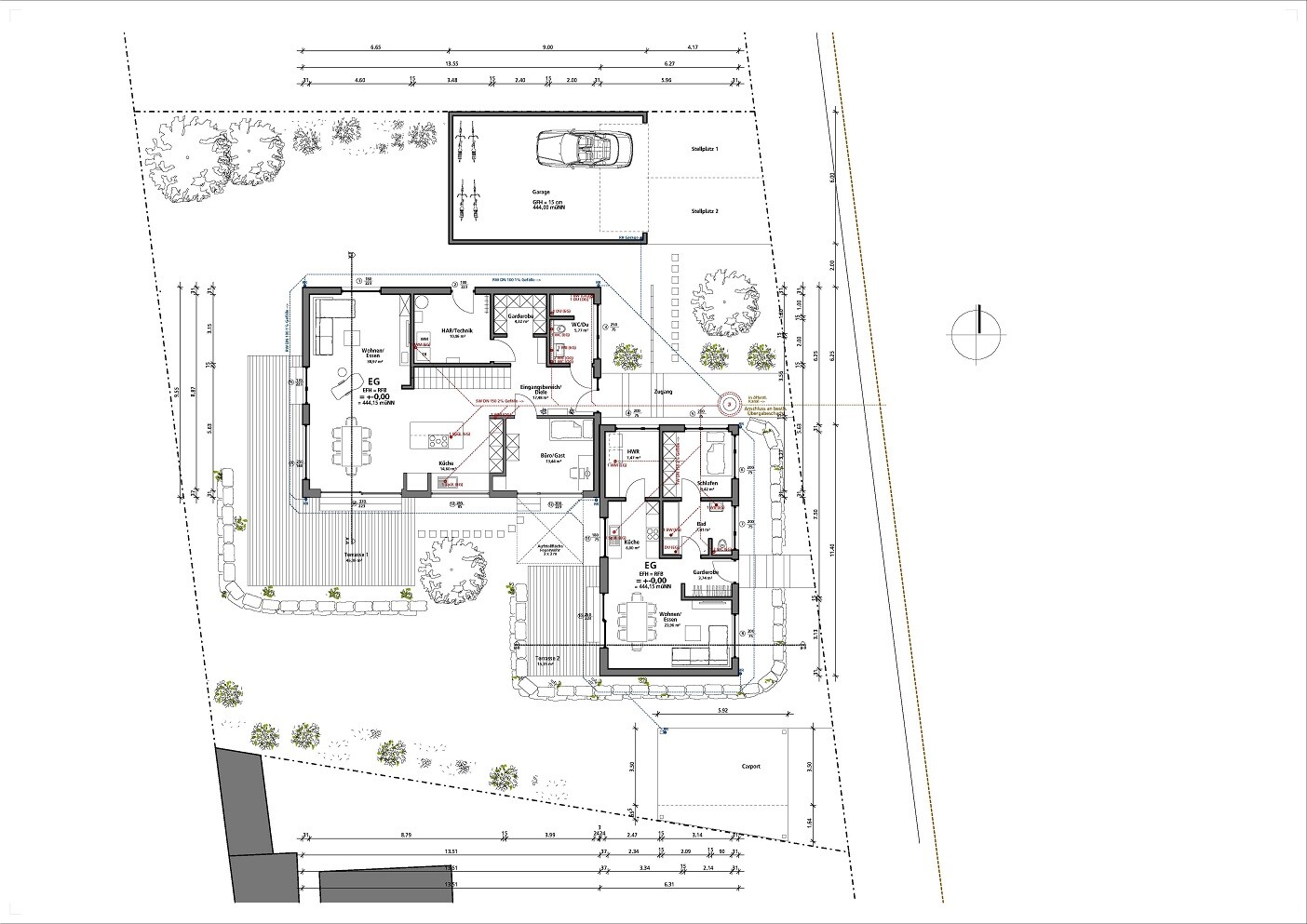
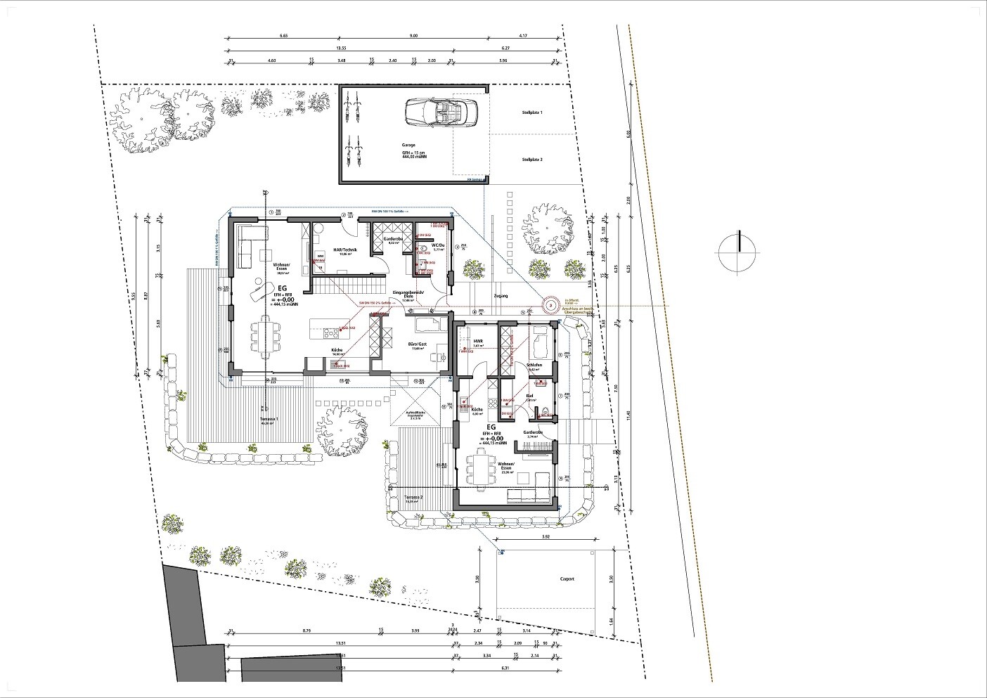
UPDATE! Hier mal unsere aktuelle Planung, Meinungen nach wie vor gerne erwünscht!!!
Detaillierter Grundriss eines Einfamilienhauses mit Garten, Carport und Garage, Maßangaben.

Grundriss eines Einfamilienhauses mit Garten, Terrasse und Zufahrt von oben
kbt0924.09.17 17:49
.. gefällt gut .. als Küchen- und Vorbereitungsfan würde ich nur eine Spülen/Vorbereitungsinsel bevorzugen und wg. der Großzügigkeit den wohl geplanten Side By Side Kühlschrank? (innerhalb der abgetrennten Mauerteile an der jetzigen Spülenzeile) rausschmeißen .
KingSong24.09.17 17:52
An Spülen soll es nicht mangeln, an der Fensterseite wird es ein Doppelspülbecken und vorbereitet wird auf der Insel, da gibt es noch mal eine Spüle und jede Menge Platz zwischen Spüle und Kochfeld....

Und der Side By Side Kühlschrank muss bleiben
M
matte
24.09.17 17:56
Gefällt mir auch gut. Ich würde wohl die Türe zum Gästezimmer im EG weiter nach planrechts schieben, die Öffnungsrichtung in den Raum ändern, dass dahinter an die plalinke Wand ein Schrank passt.
kbt0924.09.17 17:58
Warum? .. Wg. Eiswürfeln, da gibt es auch tolle andere Geräte. Ich finde einfach, dass er Luftigkeit neben der großen Fensterfläche klaut. Evtl. wäre es eine Lösung, die planrechte Wand der Küche ohne Zeilenanbindung quasi länger zu machen, entweder Side By Side Kühlschrank in dieser dann Hochschrankwand zu integrieren oder auf andere Kühlschrankvarianten auszuweichen. Dafür dann planunten mit Abstand zur Hochschrankzeile nur eine wie auch immer-Zeile bis zur großen Terrassentür. Spart eine blöde Ecke in der Küchenmöblierung und wirkt luftiger. Was meiner Meinung nach euer Grundriss ausdrücken soll.

EDIT: Stimme matte1987 übrigens zu
kühlschrankspüle