ᐅ Lichtplanung für eine Doppelhaushälfte, über Feedback und Tipps freue ich mich
Erstellt am: 15.01.20 11:03
K
koestechHallo zusammen,
wir sind inzwischen langsam an dem Punkt den Rohbau ausschreiben zu wollen.
Da ich die Decken nicht abhängen möchte will ich die entsprechenden Lichtauslässe gerne jetzt festlegen um die bereits im Rohbau in den Betondecken vorzusehen.
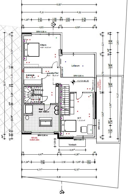
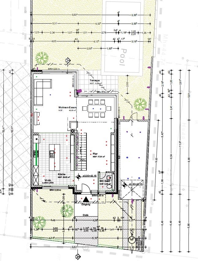
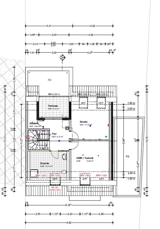
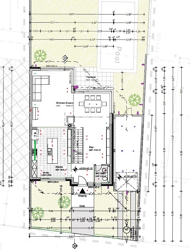
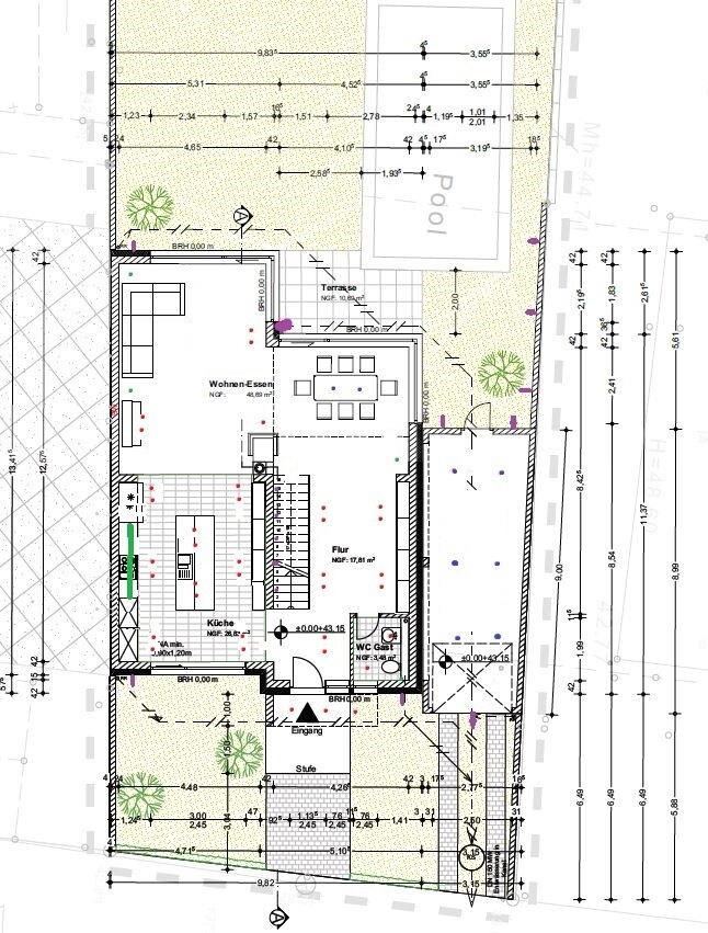
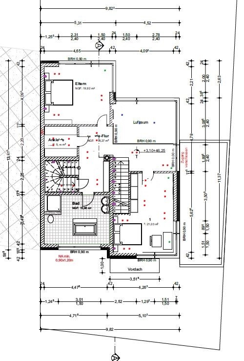
Ich habe mir jetzt einige Threads zu dem Thema durchgelesen und mir einige Architektenentwürfe zur Inspiration durchgeschaut. Ergebnis ist der im Anhang befindliche grobe Plan. Ich habe dort einfach auf Screenshots meiner Grundrisse entsprechende Punkte für die Brennstellen eingezeichnet.
Rote Punkte: Spots (ich möchte gerne die Constaled 24V Deep Tunable White 4+4W Spots nutzen. Ein KNX Bus möchte ich zudem einbauen.
Blaue Punkte: Deckenauslässe mit 230V für Pendelleuchten oder normale Deckenleuchten
Grüne Punkte: Steh/Tischleuchten
Lila Punkte/Striche: Wandleuchten
Da ich die Badplanung noch nicht wirklich abgeschlossen habe, habe ich dort noch keine Leuchten vorgesehen.
Über Feedback bzw. weitere Ideen und Verbesserungsvorschäge würde ich mich freuen.
Wenn jemand einen empfehlenswerten Lichtplaner in Köln und Umgebung kennt, würde ich mich auch über Tipps freuen.
Vielen Dank.
Viele Grüße,
Christian



wir sind inzwischen langsam an dem Punkt den Rohbau ausschreiben zu wollen.
Da ich die Decken nicht abhängen möchte will ich die entsprechenden Lichtauslässe gerne jetzt festlegen um die bereits im Rohbau in den Betondecken vorzusehen.
Ich habe mir jetzt einige Threads zu dem Thema durchgelesen und mir einige Architektenentwürfe zur Inspiration durchgeschaut. Ergebnis ist der im Anhang befindliche grobe Plan. Ich habe dort einfach auf Screenshots meiner Grundrisse entsprechende Punkte für die Brennstellen eingezeichnet.
Rote Punkte: Spots (ich möchte gerne die Constaled 24V Deep Tunable White 4+4W Spots nutzen. Ein KNX Bus möchte ich zudem einbauen.
Blaue Punkte: Deckenauslässe mit 230V für Pendelleuchten oder normale Deckenleuchten
Grüne Punkte: Steh/Tischleuchten
Lila Punkte/Striche: Wandleuchten
Da ich die Badplanung noch nicht wirklich abgeschlossen habe, habe ich dort noch keine Leuchten vorgesehen.
Über Feedback bzw. weitere Ideen und Verbesserungsvorschäge würde ich mich freuen.
Wenn jemand einen empfehlenswerten Lichtplaner in Köln und Umgebung kennt, würde ich mich auch über Tipps freuen.
Vielen Dank.
Viele Grüße,
Christian
Spots sind zu wenig und auch seltsam angeordnet.
Wieso immer im Zweierpack?
Die im Wohnzimmer würde ich ganz weglassen, da sind Spots einfach nur ungemütlich.
Der Deckenauslass über dem Couchtisch... weg damit.
Flur und Küche mehr Spots und regelmäßig verteilen. In die Riesenküche gehören 20 Spots aufwärts.
Über der Insel macht es Sinn wie geplant, aber der Rest ist total willkürlich momentan.
Oben das gleiche, die Anordnung ist total strange.
In der Ankleide ist die zentrale Platzierung auch nicht gut, 2x2 nahe an den Schränken / Spiegeln wäre da imho besser.
Insgesamt für mich gar nicht gelungen, das Geld für einen Lichtplaner wäre sicher gut investiert, ich kenne allerdings keinen.
Und Hollerdijo, ihr habt aber einen Mörder Flur unten, da kann man, mit entsprechender Beleuchtung ja Staatsempfänge abhalten.
Wieso immer im Zweierpack?
Die im Wohnzimmer würde ich ganz weglassen, da sind Spots einfach nur ungemütlich.
Der Deckenauslass über dem Couchtisch... weg damit.
Flur und Küche mehr Spots und regelmäßig verteilen. In die Riesenküche gehören 20 Spots aufwärts.
Über der Insel macht es Sinn wie geplant, aber der Rest ist total willkürlich momentan.
Oben das gleiche, die Anordnung ist total strange.
In der Ankleide ist die zentrale Platzierung auch nicht gut, 2x2 nahe an den Schränken / Spiegeln wäre da imho besser.
Insgesamt für mich gar nicht gelungen, das Geld für einen Lichtplaner wäre sicher gut investiert, ich kenne allerdings keinen.
Und Hollerdijo, ihr habt aber einen Mörder Flur unten, da kann man, mit entsprechender Beleuchtung ja Staatsempfänge abhalten.
Hallo zusammen,
vielen Dank schon mal für das ausführliche Feedback.
Mir gefielen die Entwürfe von dem Architekten Bünck gang gut. Dort habe ich das mit den paarweisen etwas verteilten Spots gesehen.
Die Badplanung steht noch nicht so ganz, von daher ist das im DG erst mal nur exemplarisch zu sehen.
Viele Grüße,
Christian
vielen Dank schon mal für das ausführliche Feedback.
Mir gefielen die Entwürfe von dem Architekten Bünck gang gut. Dort habe ich das mit den paarweisen etwas verteilten Spots gesehen.
Die Badplanung steht noch nicht so ganz, von daher ist das im DG erst mal nur exemplarisch zu sehen.
Viele Grüße,
Christian
Ähnliche Themen